賃貸マンション
近鉄京都線 向島駅 徒歩8分 3階建 築38年の賃貸物件情報(3LDK/2階)
| 家賃 | 管理費等 | 敷金 | 礼金 | 間取り | 専有面積 |
|---|---|---|---|---|---|
| 7.2万円 | 8,000円 | なし | 10.8万円 | 3LDK | 50m2 |
入居決定でお祝い金最大100,000円
Point
とっても大きなキッチン。 さらに3LDKと広いお部屋ですよ。
提供:株式会社 京都ライフ 小倉店(賃貸スモッカ経由)

詳細情報 近鉄京都線 向島駅 徒歩8分 3階建 築38年
物件紹介
近鉄京都線向島駅から徒歩8分にあり、駅近で通勤通学に便利なマンションです。
このお部屋は2階以上に位置しているので、通行人や周囲の住人からの視線が気になりにくく、防犯面でも安心です。
人気の南向きのお部屋。角部屋でもあるため、周囲の居住者の生活音も気になりにくい場所です。バス・トイレ別の仕様で、のんびりお風呂タイムも楽しめます。
通信設備面では、インターネット接続が可能です(別途工事、契約料が必要な場合あり)。
このお部屋は2階以上に位置しているので、通行人や周囲の住人からの視線が気になりにくく、防犯面でも安心です。
人気の南向きのお部屋。角部屋でもあるため、周囲の居住者の生活音も気になりにくい場所です。バス・トイレ別の仕様で、のんびりお風呂タイムも楽しめます。
通信設備面では、インターネット接続が可能です(別途工事、契約料が必要な場合あり)。
お金・契約の情報
※「-」と表示されているものは、実際は料金が発生するものもございます。詳細はお問い合わせください。
| 家賃 | 7.2万円 | 管理費・共益費 | 8,000円 |
|---|---|---|---|
| 敷金 | なし | 礼金 | 10.8万円 |
| 入居決定でお祝い金最大100,000円 | |||
| 保証金 | - | 償却・敷引 | - |
| 住宅保険料 | 住宅保険料あり | 更新料 | - |
| 契約形態 | - | 契約期間 | 2年 |
| 入居・引渡期間 | 即時 | 現況 | 空室 |
| 契約備考 | 近鉄向島駅まで徒歩8分の3LDKマンションです。京阪、近鉄のダブルアクセス。敷金、更新料ナシです。嬉しい3点セパレートなど充実の設備。コンビニ、スーパーなど近くにあって便利ですよ。光ファイバー対応しています。 駐輪ステッカー代:1,100円 契約事務手数料:11,000円 入居者サポート:22,000円 更新料:無し 保証会社:利用必須 初回:月額賃料等の40%、月額:支払い手数料として月額賃料等の1%、更新時:1万円/1年 その他設備/条件:独立洗面台、TVドアホン、即入居可 | ||
部屋の情報
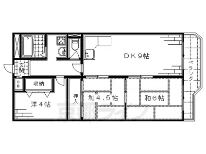
| 間取り | 3LDK | 専有面積 | 50m2 |
|---|---|---|---|
| 間取り詳細 | 和室(4.5帖)、和室(6帖)、洋室(4帖)、LDK(9帖) | ||
| 所在階 / 向き | 2階 / 南 | バルコニー面積 | - |
| 水道 / ガス | ガス【都市】 | ||
| 設備 | バス・トイレ別、2階以上、インターネット対応、エアコン、温水洗浄便座、南向き、角部屋、バルコニー、洗濯機:室内 | ||
| 当社物件ID | 160541481 | ||
建物の情報
| 建物名 | 近鉄京都線 向島駅 徒歩8分 3階建 築38年 | ||
|---|---|---|---|
| 所在地 | 京都府京都市伏見区向島津田町 | ||
| 交通 | 近鉄京都線 向島駅 徒歩8分 京阪電気鉄道宇治線 観月橋駅 徒歩15分 | ||
| 階数 | 3階建 | 総戸数 | - |
| 築年月 | 1988年07月 / 築38年 | エレベーター | - |
| 駐車場 | - | バイク置き場 | あり |
| 駐輪場 | あり | 管理人/管理会社 | - |
| 建物種別 | マンション | 建物構造 | RC(鉄筋コンクリート) |
この部屋の取扱い不動産会社
| 会社名 | 株式会社 京都ライフ 小倉店(賃貸スモッカ経由) | ||
|---|---|---|---|
| 所在地 | 宇治市小倉町神楽田21-5 | 交通 | - |
| 営業時間 | - | 定休日 | - |
| 免許番号 | 京都府知事(11)第6353号 | 取引態様 | 仲介 |
| 不動産会社管理番号 | kyotolife_46642-201-11 | 当社管理番号 | 463 |
| 所属団体 | 京都府宅地建物取引業協会\n公益社団法人近畿地区不動産公正取引協議会 | ||
| 公正取引協議会 | 全国宅地建物取引業保証協会 | ||
| 取扱い物件情報 | 物件詳細へ | ||
※各種情報と現状に差異がある場合は、現状優先となります。問い合わせをすることで、より詳しい条件、情報を確認する事ができます。
提供:株式会社 京都ライフ 小倉店(賃貸スモッカ経由)
この物件が気になったら掲載期限まであと6日
近鉄京都線 向島駅 徒歩8分 3階建 築38年に条件(家賃・エリア)が近い物件一覧
| 写真 | 家賃 管理費等 | 敷金 礼金 | 間取り 専有面積 | 築年数 | 最寄り駅 所在地 | キープ | 詳細 |
|---|---|---|---|---|---|---|---|
アパート 東海道本線 長岡京駅 徒歩40分 築27年(1K/1階) | |||||||
![]() | 6.3万円 5,000円 | なし 6.3万円 | 1K 20.37m2 | 築27年 | 東海道本線 長岡京駅 徒歩40分 阪急電鉄京都線 西向日駅 徒歩40分 京都府京都市伏見区羽束師志水町 | 詳細を見る | |
アパート 奈良線 木幡駅(JR) 徒歩4分 築40年(2DK/2階) | |||||||
![]() | 6万円 5,000円 | 6万円 8万円 | 2DK 35m2 | 築40年 | 奈良線 木幡駅(JR) 徒歩4分 京阪電気鉄道宇治線 木幡駅(京阪) 徒歩5分 京都府宇治市木幡中村 | 詳細を見る | |
マンション 阪急電鉄京都線 西山天王山駅 徒歩9分 築28年(1K/4階) | |||||||
![]() | 4.7万円 3,000円 | 10万円 なし | 1K 22.68m2 | 築28年 | 阪急電鉄京都線 西山天王山駅 徒歩9分 東海道本線 長岡京駅 徒歩15分 京都府長岡京市友岡1丁目 | 詳細を見る | |
アパート 近鉄京都線 伊勢田駅 徒歩7分 築10年(1K/1階) | |||||||
![]() | 9.2万円 7,000円 | なし 9.2万円 | 1K 24.12m2 | 築10年 | 近鉄京都線 伊勢田駅 徒歩7分 近鉄京都線 大久保駅(京都) 徒歩15分 京都府宇治市伊勢田町 | 詳細を見る | |
マンション ジュネス神楽田(1K/3階) | |||||||
![]() | 4.5万円 6,000円 | 4.5万円 なし | 1K 17.4m2 | 築38年 | 近鉄京都線 小倉駅(京都) 徒歩2分 JR奈良線 JR小倉駅 徒歩7分 近鉄京都線 伊勢田駅 徒歩14分 京都府宇治市小倉町神楽田 | 詳細を見る | |
アパート 近鉄京都線 小倉駅(京都) 徒歩6分 築4年(1K/2階) | |||||||
![]() | 7.25万円 4,600円 | なし 7.25万円 | 1K 30.19m2 | 築4年 | 近鉄京都線 小倉駅(京都) 徒歩6分 JR奈良線 JR小倉駅 徒歩6分 近鉄京都線 伊勢田駅 徒歩14分 京都府宇治市小倉町西山 | 詳細を見る | |
アパート 近鉄京都線 伏見駅(京都) 徒歩12分 築22年(1K/1階) | |||||||
![]() | 5.8万円 3,000円 | なし なし | 1K 30m2 | 築22年 | 近鉄京都線 伏見駅(京都) 徒歩12分 京阪電気鉄道京阪線 墨染駅 徒歩13分 京都府京都市伏見区深草仙石屋敷町 | 詳細を見る | |








