賃貸マンション
ビレッジハウス大野7号棟の賃貸物件情報(2K/5階)
| 家賃 | 管理費等 | 敷金 | 礼金 | 間取り | 専有面積 |
|---|---|---|---|---|---|
| 2万円 | なし | なし | なし | 2K | 33.54m2 |
入居決定でお祝い金最大100,000円
- 保証金
- -
- 償却・敷引
- -
- 築年数
- 築55年
- 所在階
- 5階
- 向き
- 南東
- 交通
- 鹿島臨海鉄道 荒野台駅 徒歩53分
鹿島臨海鉄道 長者ケ浜潮騒はまなす公園前駅 徒歩53分
鹿島線 鹿島サッカースタジアム駅 徒歩80分
- 所在地
- 茨城県鹿嶋市大字中171
ビレッジハウス大野7号棟
[地図を表示]
Point
まずはお問い合わせ!
不動産会社は街のプロ、あなたに合った物件がきっと見つかります。
提供:ビレッジハウス住まい相談センター

詳細情報 ビレッジハウス大野7号棟
物件紹介
ビレッジハウス大野7号棟は鹿島臨海鉄道荒野台駅から徒歩53分にあるマンションです。
このお部屋は2階以上に位置しているので、通行人や周囲の住人からの視線が気になりにくく、防犯面でも安心です。
バス・トイレ別の仕様で、のんびりお風呂タイムも楽しめます。
ペット飼育の相談ができますので、あなたの大切な家族の一員も快適に暮らせるか、ぜひ確認してみてください。
このお部屋は2階以上に位置しているので、通行人や周囲の住人からの視線が気になりにくく、防犯面でも安心です。
バス・トイレ別の仕様で、のんびりお風呂タイムも楽しめます。
ペット飼育の相談ができますので、あなたの大切な家族の一員も快適に暮らせるか、ぜひ確認してみてください。
お金・契約の情報
※「-」と表示されているものは、実際は料金が発生するものもございます。詳細はお問い合わせください。
| 家賃 | 2万円 | 管理費・共益費 | なし |
|---|---|---|---|
| 敷金 | なし | 礼金 | なし |
| フリーレント | 1ヶ月 | ||
| 入居決定でお祝い金最大100,000円 | |||
| 保証金 | - | 償却・敷引 | - |
| 住宅保険料 | 1万円(2年) | 更新料 | - |
| 保証会社利用 | - | 保証会社名 | - |
| 保証会社費用 | - | 保証会社備考 | - |
| 契約形態 | - | 契約期間 | - |
| 入居・引渡期間 | - | 現況 | 空室 |
| 入居可能条件 | 2人入居可、高齢者相談、学生可、ペット相談 | ||
| 契約備考 | 契約種類:普通契約、24時間緊急対応、ウォシュレット、ウォームレット | ||
部屋の情報
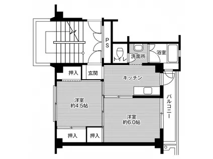
| 間取り | 2K | 専有面積 | 33.54m2 |
|---|---|---|---|
| 所在階 / 向き | 5階 / 南東 | バルコニー面積 | - |
| 水道 / ガス | - | ||
| 設備 | バス・トイレ別、エアコン、バルコニー、給湯、洗濯機:室外 | ||
| 当社物件ID | 117108572 | ||
建物の情報
| 建物名 | ビレッジハウス大野7号棟 | ||
|---|---|---|---|
| 所在地 | 茨城県鹿嶋市大字中171 | ||
| 交通 | 鹿島臨海鉄道 荒野台駅 徒歩53分 鹿島臨海鉄道 長者ケ浜潮騒はまなす公園前駅 徒歩53分 鹿島線 鹿島サッカースタジアム駅 徒歩80分 | ||
| 階数 | 5階建 | 総戸数 | - |
| 築年月 | 1971年08月 / 築55年 | エレベーター | - |
| 駐車場 | 空有 円 | バイク置き場 | - |
| 駐輪場 | - | 管理人/管理会社 | 日勤 |
| 建物種別 | マンション | 建物構造 | RC(鉄筋コンクリート) |
この部屋の取扱い不動産会社
| 会社名 | ビレッジハウス住まい相談センター | ||
|---|---|---|---|
| 所在地 | 愛知県名古屋市中区大須4-10-32 上前津KDビル5階 | 交通 | 名城線「上前津駅」徒歩3分 |
| 営業時間 | 平日:9:00-18:30/土日祝:9:00-18:00 | 定休日 | 年中無休(年末年始を除く) |
| 免許番号 | 東京都知事(2)第100758号 | 取引態様 | 貸主 |
| 不動産会社管理番号 | 00013671417 | 当社管理番号 | 459 |
| 所属団体 | 公益社団法人東京都宅地建物取引業協会会員 日本賃貸住宅管理協会会員 | ||
| 取扱い物件情報 | 物件詳細へ | ||
※各種情報と現状に差異がある場合は、現状優先となります。問い合わせをすることで、より詳しい条件、情報を確認する事ができます。
提供:ビレッジハウス住まい相談センター
この物件が気になったら掲載期限まであと12日
ビレッジハウス大野7号棟に条件(家賃・エリア)が近い物件一覧
| 写真 | 家賃 管理費等 | 敷金 礼金 | 間取り 専有面積 | 築年数 | 最寄り駅 所在地 | キープ | 詳細 |
|---|---|---|---|---|---|---|---|
アパート パークハウス深芝(1K/2階) | |||||||
![]() | 2.7万円 1,000円 | なし なし | 1K 23.18m2 | 築34年 | 茨城県神栖市深芝南1丁目 | 詳細を見る | |
アパート アークヒルズフクモトNO.1(1K/2階) | |||||||
![]() | 2.75万円 なし | なし なし | 1K 20.86m2 | 築34年 | 鹿島線 鹿島神宮駅 徒歩39分 茨城県神栖市深芝南1丁目 | 詳細を見る | |
アパート ヤングハウスC棟(2DK/1階) | |||||||
![]() | 3.2万円 1,000円 | なし なし | 2DK 30m2 | 築37年 | JR鹿島線 鹿島神宮駅 徒歩99分 茨城県神栖市大野原中央 | 詳細を見る | |
アパート ヤングハウス(2DK/1階) | |||||||
![]() | 3.2万円 1,000円 | なし なし | 2DK 30m2 | 築37年 | 茨城県神栖市大野原中央5丁目 | 詳細を見る | |
アパート ピュアガーデン(1K/1階) | |||||||
![]() | 3万円 なし | なし なし | 1K 26.5m2 | 築35年 | 成田線 小見川駅 徒歩133分 茨城県神栖市知手 | 詳細を見る | |
アパート コーポマリーナ(2K/2階) | |||||||
![]() | 2.5万円 3,000円 | なし なし | 2K 28.93m2 | 築35年 | 茨城県鹿嶋市大字国末 | 詳細を見る | |
マンション ロワイヤルユウ鹿島(ワンルーム/4階) | |||||||
![]() | 2.4万円 3,000円 | なし なし | ワンルーム 16.5m2 | 築35年 | 鹿島線 鹿島神宮駅 徒歩2分 茨城県鹿嶋市宮下2丁目 | 詳細を見る | |
マンション ナカタマンション知手(1DK/1階) | |||||||
![]() | 3万円 なし | 3万円 なし | 1DK 23.6m2 | 築36年 | 成田線 下総橘駅 徒歩109分 茨城県神栖市知手中央5丁目 | 詳細を見る | |


/105x80-f1-q70-wp1)
/105x80-f1-q70-wp1)

/105x80-f1-q70-wp1)
/105x80-f1-q70-wp1)
/105x80-f1-q70-wp1)
/105x80-f1-q70-wp1)
/105x80-f1-q70-wp1)