賃貸アパート
ラインの館の賃貸物件情報(1K/1階)
| 家賃 | 管理費等 | 敷金 | 礼金 | 間取り | 専有面積 |
|---|---|---|---|---|---|
| 2.1万円 | 2,000円 | なし | なし | 1K | 22.23m2 |
入居決定でお祝い金最大100,000円
Point
外壁等リフォーム済み
提供:(有)オーハシ地所(SUUMO経由)

詳細情報 ラインの館
物件紹介
人気の南向きのお部屋。また、フローリングなのでお掃除もラクラク。バス・トイレ別の仕様で、のんびりお風呂タイムも楽しめます。
通信設備面ではBSアンテナがありますので、おうち時間も充実するでしょう(別途工事、契約料が必要な場合あり)。
通信設備面ではBSアンテナがありますので、おうち時間も充実するでしょう(別途工事、契約料が必要な場合あり)。
お金・契約の情報
※「-」と表示されているものは、実際は料金が発生するものもございます。詳細はお問い合わせください。
| 家賃 | 2.1万円 | 管理費・共益費 | 2,000円 |
|---|---|---|---|
| 敷金 | なし | 礼金 | なし |
| 入居決定でお祝い金最大100,000円 | |||
| 保証金 | - | 償却・敷引 | - |
| 住宅保険料 | - | 更新料 | - |
| 契約形態 | - | 契約期間 | - |
| 入居・引渡期間 | 即時 | 現況 | - |
| 契約備考 | 敷金礼金無し。南向き日当たり見晴らし良好 1K 損保【1.8万円2年】 バストイレ別、バルコニー、エアコン、フローリング、室内洗濯置、シューズボックス、南向き、即入居可、IHクッキングヒーター、シューズWIC、BS、敷金・礼金不要 | ||
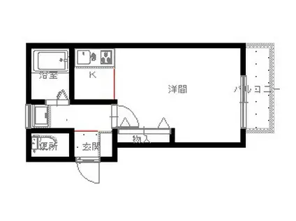
部屋の情報
| 間取り | 1K | 専有面積 | 22.23m2 |
|---|---|---|---|
| 所在階 / 向き | 1階 / 南 | バルコニー面積 | 1m2 |
| 水道 / ガス | - | ||
| 設備 | バス・トイレ別、エアコン、南向き、バルコニー、フローリング、コンロ:IH、BSアンテナ、洗濯機:室内 | ||
| 当社物件ID | 15011280 | ||
建物の情報
| 建物名 | ラインの館 | ||
|---|---|---|---|
| 所在地 | 石川県金沢市鈴見台 | ||
| 交通 | 北陸新幹線 金沢駅 バス乗車時間:60分 最寄りバス停で下車 徒歩7分 | ||
| 階数 | 2階建 | 総戸数 | - |
| 築年月 | 1994年03月 / 築32年 | エレベーター | - |
| 駐車場 | 空有 2000円 | バイク置き場 | - |
| 駐輪場 | - | 管理人/管理会社 | - |
| 周辺環境 | その他 albis杜の里店(スーパー)まで842m その他 ファミリーマートしばはら杜の里店(コンビニ)まで782m その他 クスリのアオキ鈴見店(ドラッグストア)まで890m その他 ゲオ金沢桜町店(レンタルビデオ)まで993m その他 餃子の王将杜の里店(飲食店)まで877m その他 六豊会すずみが丘病院(病院)まで698m | ||
| 建物種別 | アパート | 建物構造 | 木造 |
この部屋の取扱い不動産会社
| 会社名 | (有)オーハシ地所(SUUMO経由) | ||
|---|---|---|---|
| 所在地 | 石川県金沢市幸町 6-10 | 交通 | - |
| 営業時間 | 9:00~18:00 | 定休日 | 日曜日 |
| 免許番号 | 石川県知事3150 | 取引態様 | 仲介 |
| 不動産会社管理番号 | 100323908851 | 当社管理番号 | 89 |
| 所属団体 | (公社)石川県宅地建物取引業協会会員 | ||
| 公正取引協議会 | 北陸不動産公正取引協議会加盟 | ||
| 取扱い物件情報 | 物件詳細へ | ||
※各種情報と現状に差異がある場合は、現状優先となります。問い合わせをすることで、より詳しい条件、情報を確認する事ができます。
提供:(有)オーハシ地所(SUUMO経由)
この物件が気になったら掲載期限まであと-1日
ラインの館に条件(家賃・エリア)が近い物件一覧
| 写真 | 家賃 管理費等 | 敷金 礼金 | 間取り 専有面積 | 築年数 | 最寄り駅 所在地 | キープ | 詳細 |
|---|---|---|---|---|---|---|---|
マンション グランヴィレッジ本多町(1K/1階) | |||||||
![]() | 2万円 5,500円 | 4万円 なし | 1K 23.02m2 | 築35年 | 石川県金沢市本多町 | 詳細を見る | |
マンション 東力レジデンス(1K/2階) | |||||||
![]() | 2.8万円 5,500円 | なし なし | 1K 19.74m2 | 築35年 | 北陸鉄道石川線 新西金沢駅 徒歩21分 IRいしかわ鉄道 西金沢駅 徒歩23分 北陸鉄道石川線 西泉駅 徒歩30分 石川県金沢市東力 | 詳細を見る | |
アパート グリーンハウス(ワンルーム/2階) | |||||||
![]() | 3.1万円 3,000円 | なし なし | ワンルーム 28.38m2 | 築55年 | 石川県金沢市山の上町 | 詳細を見る | |
マンション OMレジデンス金沢十三間町(1K/3階) | |||||||
![]() | 2.4万円 3,200円 | なし なし | 1K 19.6m2 | 築34年 | 北陸鉄道石川線 野町駅 徒歩17分 石川県金沢市十三間町 | 詳細を見る | |
アパート パンシオン額新保(1K/1階) | |||||||
![]() | 2.9万円 5,000円 | なし 2.9万円 | 1K 26.71m2 | 築34年 | 北陸鉄道石川線 額住宅前駅 徒歩9分 石川県金沢市額新保 | 詳細を見る | |
アパート コーポN3(1DK/2階) | |||||||
![]() | 3万円 3,000円 | なし なし | 1DK 26.08m2 | 築39年 | IRいしかわ鉄道 松任駅 徒歩24分 IRいしかわ鉄道 野々市駅(IR) 徒歩40分 石川県白山市宮永市町 | 詳細を見る | |
マンション グランド・ルナ(1K/4階) | |||||||
![]() | 2万円 3,000円 | なし なし | 1K 21.33m2 | 築35年 | 北陸鉄道石川線 馬替駅 徒歩7分 石川県野々市市位川 | 詳細を見る | |
アパート グリーンハウス(1K/2階) | |||||||
![]() | 2.1万円 2,400円 | なし なし | 1K 26.45m2 | 築40年 | 北陸鉄道石川線 新西金沢駅 徒歩9分 IRいしかわ鉄道 西金沢駅 徒歩10分 北陸鉄道石川線 西泉駅 徒歩15分 石川県金沢市糸田新町 | 詳細を見る | |








