賃貸マンション
CASTALIA 銀座の賃貸物件情報(1K/7階)
| 家賃 | 管理費等 | 敷金 | 礼金 | 間取り | 専有面積 |
|---|---|---|---|---|---|
| 15.7万円 | 1万円 | 15.7万円 | なし | 1K | 29.57m2 |
入居決定でお祝い金最大100,000円
- 保証金
- -
- 償却・敷引
- -
- 築年数
- 築21年
- 所在階
- 7階
- 向き
- 南西
Point
◆銀座一丁目、昭和通より内側、中央通側の唯一のスタイリッシュデザイン■白を基調としたモダンな室内仕様設備と開放感溢れるスタジオタイプの広々とした居室空間&お洒落なダウンライト■セカンドルームに最適
提供:(株)アプレム(SUUMO経由)

詳細情報 CASTALIA 銀座
物件紹介
CASTALIA 銀座は東京メトロ有楽町線銀座一丁目駅から徒歩2分にあり、駅近で通勤通学に便利なマンションです。
このお部屋は2階以上に位置しているので、通行人や周囲の住人からの視線が気になりにくく、防犯面でも安心。建物のエントランスはオートロックがついており、インターホンにはTVモニタもついているため、相手の顔を確認してから来客対応することができます。
おしゃれなデザイナーズ物件!人気の南向きのお部屋。また、フローリングなのでお掃除もラクラク。キッチンはシステムキッチン仕様になっていますので、お料理好きの方にもぴったり。また、バス・トイレは別で、のんびりお風呂タイムも楽しめるでしょう。
通信設備面では、インターネットが無料で使えるので、月々の出費を抑えられるのも魅力です。また、BSアンテナ・CSアンテナもありますので、おうち時間も充実するでしょう(別途工事、BS・CSの契約料等が必要な場合あり)。
建物にはエレベーターがついているので、重い荷物があっても安心。共用部には宅配ボックスが設定されているので、不在の時にも荷物を受け取ることができます。
このお部屋は2階以上に位置しているので、通行人や周囲の住人からの視線が気になりにくく、防犯面でも安心。建物のエントランスはオートロックがついており、インターホンにはTVモニタもついているため、相手の顔を確認してから来客対応することができます。
おしゃれなデザイナーズ物件!人気の南向きのお部屋。また、フローリングなのでお掃除もラクラク。キッチンはシステムキッチン仕様になっていますので、お料理好きの方にもぴったり。また、バス・トイレは別で、のんびりお風呂タイムも楽しめるでしょう。
通信設備面では、インターネットが無料で使えるので、月々の出費を抑えられるのも魅力です。また、BSアンテナ・CSアンテナもありますので、おうち時間も充実するでしょう(別途工事、BS・CSの契約料等が必要な場合あり)。
建物にはエレベーターがついているので、重い荷物があっても安心。共用部には宅配ボックスが設定されているので、不在の時にも荷物を受け取ることができます。
お金・契約の情報
※「-」と表示されているものは、実際は料金が発生するものもございます。詳細はお問い合わせください。
| 家賃 | 15.7万円 | 管理費・共益費 | 1万円 |
|---|---|---|---|
| 敷金 | 15.7万円 | 礼金 | なし |
| 入居決定でお祝い金最大100,000円 | |||
| 保証金 | - | 償却・敷引 | - |
| 住宅保険料 | - | 更新料 | - |
| 保証会社利用 | 必須 | 保証会社名 | - |
| 保証会社費用 | - | 保証会社備考 | 保証会社利用必 初回保証料:月額賃料等の50%相当額~ |
| 契約形態 | - | 契約期間 | - |
| 入居・引渡期間 | - | 現況 | - |
| 契約備考 | 巡回管理/★弊社仲介手数料ナシ♪対象住戸★★インターネット常時接続使用料無料★1階にはゲストにも好評な屋内型コインパーキング★屋内専用駐輪場は無料です。 1K 二人入居可 損保【要】 バストイレ別、エアコン、ガスコンロ対応、フローリング、TVインターホン、オートロック、室内洗濯置、システムキッチン、南向き、温水洗浄便座、脱衣所、エレベーター、洗面化粧台、2口コンロ、駐輪場、宅配ボックス、礼金不要、BS・CS、防犯カメラ、独立型キッチン、グリル付、保証人不要、仲介手数料不要、敷金1ヶ月、二人入居相談、デザイナーズ、玄関ホール、LDK15畳以上、ネット専用回線、ネット使用料不要、ダブルロックキー、24時間換気システム、南面リビング、人感照明センサー、フラットフロア、クロゼット3ヶ所、耐震構造、ハイサッシ、3駅以上利用可、3沿線以上利用可、駅前、駅徒歩5分以内、天井高2.5m以上、高層階、24時間ゴミ出し可、風除室、敷地内ごみ置き場、寝室10畳以上、食品庫、都市ガス、ワイドバルコニー、天井高シューズクロゼット、玄関収納、ダウンライト、高速ネット対応、マルチメディアコンセント、保証会社利用可 入居日:'26年3月下旬 | ||
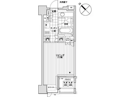
部屋の情報
| 間取り | 1K | 専有面積 | 29.57m2 |
|---|---|---|---|
| 所在階 / 向き | 7階 / 南西 | バルコニー面積 | - |
| 水道 / ガス | - | ||
| 設備 | バス・トイレ別、2階以上、オートロック、テレビドアホン、宅配ボックス、インターネット対応、システムキッチン、エアコン、エレベーター、温水洗浄便座、南向き、バルコニー、フローリング、2口コンロ、コンロ:ガス、デザイナーズ、CSアンテナ、BSアンテナ、インターネット使用料無料、洗濯機:室内 | ||
| 当社物件ID | 27419920 | ||
建物の情報
| 建物名 | CASTALIA 銀座 | ||
|---|---|---|---|
| 所在地 | 東京都中央区銀座 | ||
| 交通 | 東京メトロ有楽町線 銀座一丁目駅 徒歩2分 東京メトロ銀座線 銀座駅 徒歩6分 東京メトロ日比谷線 銀座駅 徒歩6分 | ||
| 階数 | 地下1地上13階建 | 総戸数 | - |
| 築年月 | 2005年01月 / 築21年 | エレベーター | あり |
| 駐車場 | なし | バイク置き場 | - |
| 駐輪場 | あり | 管理人/管理会社 | - |
| 周辺環境 | その他 中央区役所(役所)まで400m その他 KIRARITO GINZA(ショッピングセンター)まで146m その他 サンクス銀座1丁目店(コンビニ)まで20m その他 松屋銀座店(ショッピングセンター)まで280m その他 銀座三越(ショッピングセンター)まで390m その他 銀座中央通り(その他)まで150m | ||
| 建物種別 | マンション | 建物構造 | RC(鉄筋コンクリート) |
この部屋の取扱い不動産会社
| 会社名 | (株)アプレム(SUUMO経由) | ||
|---|---|---|---|
| 所在地 | 東京都中央区月島1-12-12 | 交通 | - |
| 営業時間 | 10:00~19:00 | 定休日 | 水曜日 |
| 免許番号 | 東京都知事99527 | 取引態様 | 仲介 |
| 不動産会社管理番号 | 100477684804 | 当社管理番号 | 89 |
| 所属団体 | (公社)東京都宅地建物取引業協会会員 | ||
| 公正取引協議会 | (公社)首都圏不動産公正取引協議会加盟 | ||
| 取扱い物件情報 | 物件詳細へ | ||
※各種情報と現状に差異がある場合は、現状優先となります。問い合わせをすることで、より詳しい条件、情報を確認する事ができます。
提供:(株)アプレム(SUUMO経由)
この物件が気になったら掲載期限まであと10日
CASTALIA 銀座に条件(家賃・エリア)が近い物件一覧
| 写真 | 家賃 管理費等 | 敷金 礼金 | 間取り 専有面積 | 築年数 | 最寄り駅 所在地 | キープ | 詳細 |
|---|---|---|---|---|---|---|---|
マンション エストゥルース亀戸(1K/2階) | |||||||
![]() | 9.75万円 1万円 | なし なし | 1K 25.66m2 | 築1年 | 東武鉄道亀戸線 小村井駅 徒歩3分 東武鉄道亀戸線 東あずま駅 徒歩9分 東京都墨田区文花2丁目 | 詳細を見る | |
マンション プラウドフラット両国サウス(1K/4階) | |||||||
![]() | 12.6万円 1万円 | 12.6万円 なし | 1K 25.16m2 | 築4年 | 東京都大江戸線 森下駅(東京) 徒歩8分 東京都新宿線 森下駅(東京) 徒歩8分 総武・中央緩行線 両国駅 徒歩10分 東京都墨田区千歳1丁目 | 詳細を見る | |
マンション ジーグランデ森下(1LDK/9階) | |||||||
![]() | 21万円 1万円 | なし なし | 1LDK 44.03m2 | 築1年 | 東京都新宿線 森下駅(東京) 徒歩5分 東京都大江戸線 両国駅 徒歩9分 総武・中央緩行線 両国駅 徒歩9分 東京都墨田区千歳3丁目 | 詳細を見る | |
マンション アルファコート曳舟(1LDK/2階) | |||||||
![]() | 13.1万円 1.5万円 | 13.1万円 なし | 1LDK 30.71m2 | 築2年 | 東武伊勢崎・大師線 東向島駅 徒歩6分 東武伊勢崎・大師線 曳舟駅 徒歩7分 京成電鉄押上線 京成曳舟駅 徒歩7分 東京都墨田区東向島3丁目 | 詳細を見る | |
マンション AZEST浅草(1LDK/7階) | |||||||
![]() | 17.5万円 1.5万円 | なし なし | 1LDK 40.7m2 | 築4年 | 東武伊勢崎・大師線 浅草駅(東武・都営・メトロ) 徒歩10分 東京都台東区浅草6丁目 | 詳細を見る | |
マンション コンフォリア・リヴ根岸二丁目(1LDK/12階) | |||||||
![]() | 18.2万円 1.2万円 | 18.2万円 18.2万円 | 1LDK 40.13m2 | 築4年 | 山手線 鶯谷駅 徒歩3分 東京地下鉄日比谷線 入谷駅(東京) 徒歩10分 山手線 日暮里駅 徒歩10分 東京都台東区根岸2丁目 | 詳細を見る | |







