賃貸マンション
グランマーレ16の賃貸物件情報(ワンルーム/7階)
| 家賃 | 管理費等 | 敷金 | 礼金 | 間取り | 専有面積 |
|---|---|---|---|---|---|
| 5.9万円 | 3,000円 | 5.9万円 | なし | ワンルーム | 25.5m2 |
入居決定でお祝い金最大100,000円
- 保証金
- -
- 償却・敷引
- -
- 築年数
- 築24年
- 所在階
- 7階
- 向き
- 西
Point
★★★本物件取扱センター★★★シティホーム≪紙屋町≫センター●当物件以外にもインターネットに掲載のある物件(他センター・他業者様の掲載物件)も合わせてご紹介・ご案内可能です。ご来店お待ちしております!
提供:(株)シティホーム紙屋町センター(SUUMO経由)

詳細情報 グランマーレ16
物件紹介
グランマーレ16は広島電鉄宇品線鷹野橋駅から徒歩3分にあり、駅近で通勤通学に便利なマンションです。
このお部屋は2階以上に位置しているので、通行人や周囲の住人からの視線が気になりにくく、防犯面でも安心。建物のエントランスはオートロックがついており、インターホンにはTVモニタもついているため、相手の顔を確認してから来客対応することができます。
おしゃれなデザイナーズ物件!人気の角部屋で周囲の居住者の生活音も気になりにくく、また、フローリングのお部屋なのでお掃除もラクラク。バス・トイレ別の仕様で、のんびりお風呂タイムも楽しめます。また、浴室乾燥機を使えば、雨の日でもお洗濯は問題ありません。
通信設備面では、インターネットが無料で使えるので、月々の出費を抑えられるのも魅力です。また、BSアンテナもありますので、おうち時間も充実するでしょう(別途工事、BSの契約料等が必要な場合あり)。
建物にはエレベーターがついているので、重い荷物があっても安心。
このお部屋は2階以上に位置しているので、通行人や周囲の住人からの視線が気になりにくく、防犯面でも安心。建物のエントランスはオートロックがついており、インターホンにはTVモニタもついているため、相手の顔を確認してから来客対応することができます。
おしゃれなデザイナーズ物件!人気の角部屋で周囲の居住者の生活音も気になりにくく、また、フローリングのお部屋なのでお掃除もラクラク。バス・トイレ別の仕様で、のんびりお風呂タイムも楽しめます。また、浴室乾燥機を使えば、雨の日でもお洗濯は問題ありません。
通信設備面では、インターネットが無料で使えるので、月々の出費を抑えられるのも魅力です。また、BSアンテナもありますので、おうち時間も充実するでしょう(別途工事、BSの契約料等が必要な場合あり)。
建物にはエレベーターがついているので、重い荷物があっても安心。
お金・契約の情報
※「-」と表示されているものは、実際は料金が発生するものもございます。詳細はお問い合わせください。
| 家賃 | 5.9万円 | 管理費・共益費 | 3,000円 |
|---|---|---|---|
| 敷金 | 5.9万円 | 礼金 | なし |
| 入居決定でお祝い金最大100,000円 | |||
| 保証金 | - | 償却・敷引 | - |
| 住宅保険料 | - | 更新料 | - |
| 契約形態 | - | 契約期間 | - |
| 入居・引渡期間 | 相談 | 現況 | - |
| 入居可能条件 | 事務所可 | ||
| 契約備考 | 巡回管理/リフォームあり/●参考写真・参考動画になります●現況を優先致します●シティホーム紙屋町センターは広島ゲートパーク(旧市民球場跡地)の道路挟んで目の前です●オンライン内見・現地集合でのご案内・広島駅などのお迎えなどご相談下さい●ご予約はメール若しくはお電話≪≫までお願い致します●予約無しでのご来店も大歓迎●ご来店お待ちしております!学生割引やご紹介キャンペーンなど様々のキャンペーン実施中! ワンルーム バストイレ別、バルコニー、エアコン、ガスコンロ対応、クロゼット、フローリング、シャワー付洗面台、TVインターホン、浴室乾燥機、オートロック、室内洗濯置、陽当り良好、シューズボックス、角住戸、脱衣所、エレベーター、洗面所独立、洗面化粧台、2口コンロ、駐輪場、光ファイバー、礼金不要、2面採光、対面式キッチン、防犯カメラ、全居室収納、全居室洋室、単身者相談、敷金1ヶ月、24時間緊急通報システム、全居室フローリング、デザイナーズ、玄関ホール、2沿線利用可、ネット専用回線、駅まで平坦、ネット使用料不要、内装リフォーム済、保証金不要、事務所相談、24時間換気システム、平坦地、学生相談、2駅利用可、3駅以上利用可、バス2路線、駅徒歩5分以内、駅徒歩10分以内、バス停徒歩3分以内、敷地内ごみ置き場、全居室8畳以上、都市ガス、天井高シューズクロゼット、BS、高速ネット対応、リノベーション、年内入居可、年度内入居可、IT重説対応物件 | ||
部屋の情報
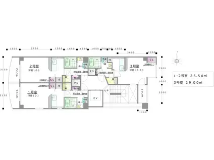
| 間取り | ワンルーム | 専有面積 | 25.5m2 |
|---|---|---|---|
| 所在階 / 向き | 7階 / 西 | バルコニー面積 | - |
| 水道 / ガス | - | ||
| 設備 | バス・トイレ別、2階以上、オートロック、テレビドアホン、浴室乾燥機、インターネット対応、エアコン、エレベーター、角部屋、バルコニー、フローリング、洗髪洗面化粧台、2口コンロ、コンロ:ガス、デザイナーズ、BSアンテナ、インターネット使用料無料、洗濯機:室内 | ||
| 当社物件ID | 2806371 | ||
建物の情報
| 建物名 | グランマーレ16 | ||
|---|---|---|---|
| 所在地 | 広島県広島市中区千田町 | ||
| 交通 | 広島電鉄宇品線 鷹野橋駅 徒歩3分 広島電鉄宇品線 日赤病院前駅 徒歩5分 広島高速交通アストラムライン 本通駅 徒歩20分 | ||
| 階数 | 9階建 | 総戸数 | - |
| 築年月 | 2002年10月 / 築24年 | エレベーター | あり |
| 駐車場 | 近隣 200m19800円 | バイク置き場 | - |
| 駐輪場 | あり | 管理人/管理会社 | - |
| 周辺環境 | その他 アーバス東千田(ショッピングセンター)まで472m その他 おかず工房鷹野橋店(スーパー)まで407m その他 マツモトキヨシ大手町店(ドラッグストア)まで393m その他 広島赤十字・原爆病院(病院)まで208m その他 広島鷹野橋郵便局(郵便局)まで220m その他 セブンイレブン広島鷹野橋店(コンビニ)まで169m | ||
| 建物種別 | マンション | 建物構造 | RC(鉄筋コンクリート) |
この部屋の取扱い不動産会社
| 会社名 | (株)シティホーム紙屋町センター(SUUMO経由) | ||
|---|---|---|---|
| 所在地 | 広島県広島市中区大手町1-1-22第3純ブライトビル | 交通 | - |
| 営業時間 | AM9:30~PM19:00 | 定休日 | 年末年始12月27日~1月3日 |
| 免許番号 | 国土交通大臣5598 | 取引態様 | 仲介 |
| 不動産会社管理番号 | 100492159742 | 当社管理番号 | 89 |
| 所属団体 | (公社)全日本不動産協会広島県本部会員 | ||
| 公正取引協議会 | 中国地区不動産公正取引協議会加盟 | ||
| 取扱い物件情報 | 物件詳細へ | ||
※各種情報と現状に差異がある場合は、現状優先となります。問い合わせをすることで、より詳しい条件、情報を確認する事ができます。
提供:(株)シティホーム紙屋町センター(SUUMO経由)
この物件が気になったら掲載期限まであと11日
グランマーレ16に条件(家賃・エリア)が近い物件一覧
| 写真 | 家賃 管理費等 | 敷金 礼金 | 間取り 専有面積 | 築年数 | 最寄り駅 所在地 | キープ | 詳細 |
|---|---|---|---|---|---|---|---|
一戸建て 広島県廿日市市 築41年(4LDK) | |||||||
![]() | 4.9万円 なし | 4.9万円 4.9万円 | 4LDK 118.02m2 | 築41年 | 広島県廿日市市永原 | 詳細を見る | |
一戸建て 広島県山県郡北広島町 築30年(3LDK) | |||||||
![]() | 6万円 なし | 18万円 6万円 | 3LDK 89.34m2 | 築30年 | 広島県山県郡北広島町中祖 | 詳細を見る | |
タウンハウス EBBA VILLAGE(1K) | |||||||
![]() | 5.8万円 2,000円 | 11.6万円 5.8万円 | 1K 31.22m2 | 築5年 | 広島電鉄江波線 江波駅 徒歩15分 広島県広島市中区江波栄町 | 詳細を見る | |
一戸建て 広島県廿日市市 築24年(4SLDK) | |||||||
![]() | 9万円 なし | 27万円 9万円 | 4SLDK 128.34m2 | 築24年 | 広島県廿日市市四季が丘2丁目 | 詳細を見る | |
アパート インフィニティ大須(1K/3階) | |||||||
![]() | 6.3万円 なし | 12.6万円 6.3万円 | 1K 28.28m2 | 築9年 | 呉線 天神川駅 徒歩6分 山陽本線 天神川駅 徒歩6分 広島県安芸郡府中町大須1丁目 | 詳細を見る | |






