賃貸マンション
アジールコート中野坂上の賃貸物件情報(1K/3階)
| 家賃 | 管理費等 | 敷金 | 礼金 | 間取り | 専有面積 |
|---|---|---|---|---|---|
| 11.4万円 | 1.5万円 | なし | なし | 1K | 20.24m2 |
入居決定でお祝い金最大100,000円
Point
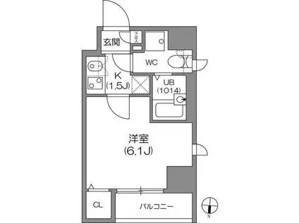
室内設備は浴室乾燥機・洗面所独立などが揃っており、とても充実しています。バルコニーのある物件です。
提供:いい部屋ネット大東建託リーシング(株)東京蒲田店(SUUMO経由)

詳細情報 アジールコート中野坂上
物件紹介
アジールコート中野坂上は東京メトロ丸ノ内線中野坂上駅から徒歩3分にあり、駅近で通勤通学に便利なマンションです。
このお部屋は2階以上に位置しているので、通行人や周囲の住人からの視線が気になりにくく、防犯面でも安心。建物のエントランスはオートロックがついており、インターホンにはTVモニタもついているため、相手の顔を確認してから来客対応することができます。
人気の角部屋で周囲の居住者の生活音も気になりにくく、また、フローリングのお部屋なのでお掃除もラクラク。キッチンはシステムキッチン仕様になっていますので、お料理好きの方にもぴったり。バス・トイレは別なので、のんびりお風呂タイムも楽しめるでしょう。また、雨の日でも浴室乾燥機を使えば、お洗濯も問題ありません。
通信設備面では、インターネット接続が可能です。また、BSアンテナ・CSアンテナがありCATVにも対応しているので、おうち時間も充実するでしょう(別途工事、契約料が必要な場合あり)。
建物にはエレベーターがついているので、重い荷物があっても安心。共用部には宅配ボックスが設定されているので、不在の時にも荷物を受け取ることができます。
コンビニまで徒歩23分の場所にあり、日用品や食料品のお買い物にも便利です。
このお部屋は2階以上に位置しているので、通行人や周囲の住人からの視線が気になりにくく、防犯面でも安心。建物のエントランスはオートロックがついており、インターホンにはTVモニタもついているため、相手の顔を確認してから来客対応することができます。
人気の角部屋で周囲の居住者の生活音も気になりにくく、また、フローリングのお部屋なのでお掃除もラクラク。キッチンはシステムキッチン仕様になっていますので、お料理好きの方にもぴったり。バス・トイレは別なので、のんびりお風呂タイムも楽しめるでしょう。また、雨の日でも浴室乾燥機を使えば、お洗濯も問題ありません。
通信設備面では、インターネット接続が可能です。また、BSアンテナ・CSアンテナがありCATVにも対応しているので、おうち時間も充実するでしょう(別途工事、契約料が必要な場合あり)。
建物にはエレベーターがついているので、重い荷物があっても安心。共用部には宅配ボックスが設定されているので、不在の時にも荷物を受け取ることができます。
コンビニまで徒歩23分の場所にあり、日用品や食料品のお買い物にも便利です。
お金・契約の情報
※「-」と表示されているものは、実際は料金が発生するものもございます。詳細はお問い合わせください。
| 家賃 | 11.4万円 | 管理費・共益費 | 1.5万円 |
|---|---|---|---|
| 敷金 | なし | 礼金 | なし |
| 入居決定でお祝い金最大100,000円 | |||
| 保証金 | - | 償却・敷引 | - |
| 住宅保険料 | 1円 | 更新料 | - |
| その他費用 | カギ費用:2.2万円、38500円: | ||
| 保証会社利用 | 必須 | 保証会社名 | エポスカード |
| 保証会社費用 | - | 保証会社備考 | ROOM iD(個人)保証料:保証人有30% 無40% (法人)40% |
| 契約形態 | - | 契約期間 | 2年 |
| 入居・引渡期間 | 2026年02月下旬 | 現況 | - |
| 入居可能条件 | 事務所不可、単身者不可、2人入居可、楽器不可 | ||
| 契約備考 | 鍵費用:22000円 退去時RC代:38500円 CATV基本料:440円/月 駐輪代:330円/月 月額(CATV基本料 440円) 鍵交換費用:22000 室内清掃費用:38500 その他設備/条件:室内洗濯機置き場、独立洗面台、防犯カメラ、クローゼット、シューズボックス | ||
部屋の情報
| 間取り | 1K | 専有面積 | 20.24m2 |
|---|---|---|---|
| 間取り詳細 | 洋室(6.1帖)、K(1.5帖) | ||
| 所在階 / 向き | 3階 / 北 | バルコニー面積 | - |
| 水道 / ガス | 水道【公営】、ガス【都市】 | ||
| 設備 | バス・トイレ別、オートロック、テレビドアホン、宅配ボックス、浴室乾燥機、インターネット対応、システムキッチン、エアコン、エレベーター、温水洗浄便座、角部屋、バルコニー、フローリング、2口コンロ、コンロ:ガス、CATV、シャワー、給湯 | ||
| 当社物件ID | 12112720 | ||
建物の情報
| 建物名 | アジールコート中野坂上 | ||
|---|---|---|---|
| 所在地 | 東京都中野区本町1丁目 | ||
| 交通 | 東京地下鉄丸ノ内線 中野坂上駅 徒歩4分 東京地下鉄丸ノ内線 西新宿駅 徒歩10分 | ||
| 階数 | 11階建 | 総戸数 | - |
| 築年月 | 2006年08月 / 築20年 | エレベーター | あり |
| 駐車場 | - | バイク置き場 | - |
| 駐輪場 | - | 管理人/管理会社 | - |
| 周辺環境 | コンビニ 徒歩23分(1771m) 販売店 徒歩19分(1450m) その他 ドラッグストア その他 公園 その他 銀行 その他 * | ||
| 建物種別 | マンション | 建物構造 | RC(鉄筋コンクリート) |
この部屋の取扱い不動産会社
| 会社名 | ハウスコム西東京株式会社 渋谷店 | ||
|---|---|---|---|
| 所在地 | 東京都渋谷区30-4玉久ビル6階 | 交通 | - |
| 営業時間 | 10:00~18:00 | 定休日 | - |
| 免許番号 | 東京都知事(1)第108225号 | 取引態様 | 仲介 |
| 不動産会社管理番号 | HC2-28604-302-0271 | 当社管理番号 | 468 |
| 所属団体 | 、 | ||
| 取扱い物件情報 | 物件詳細へ | ||
※各種情報と現状に差異がある場合は、現状優先となります。問い合わせをすることで、より詳しい条件、情報を確認する事ができます。
提供:ハウスコム西東京株式会社 渋谷店
この物件が気になったら掲載期限まであと4日
アジールコート中野坂上に条件(家賃・エリア)が近い物件一覧
| 写真 | 家賃 管理費等 | 敷金 礼金 | 間取り 専有面積 | 築年数 | 最寄り駅 所在地 | キープ | 詳細 |
|---|---|---|---|---|---|---|---|
マンション GENOVIA中野野方GREEN VELL(1K/6階) | |||||||
![]() | 9.5万円 1万円 | なし 9.5万円 | 1K 25.75m2 | 築13年 | 西武新宿線 野方駅 徒歩8分 西武新宿線 都立家政駅 徒歩14分 西武新宿線 沼袋駅 徒歩17分 東京都中野区丸山 | 詳細を見る | |
マンション CITY WALK新江古田DUE(ワンルーム/1階) | |||||||
![]() | 13.3万円 5,000円 | なし なし | ワンルーム 34.04m2 | 築1年 | 東京都大江戸線 新江古田駅 徒歩5分 東京都中野区江原町2丁目 | 詳細を見る | |
アパート 豊栄ハイム(1DK/2階) | |||||||
![]() | 6.9万円 なし | 6.9万円 6.9万円 | 1DK 23m2 | 築43年 | 西武新宿線 鷺ノ宮駅 徒歩10分 西武新宿線 下井草駅 徒歩11分 西武新宿線 都立家政駅 徒歩19分 東京都中野区白鷺 | 詳細を見る | |
アパート フラット大久保(1K/2階) | |||||||
![]() | 7.2万円 4,000円 | なし 7.2万円 | 1K 21.2m2 | 築39年 | 山手線 新大久保駅 徒歩7分 東京都新宿区大久保2丁目 | 詳細を見る | |
マンション リエール若松町(1DK/2階) | |||||||
![]() | 16.9万円 1万円 | 16.9万円 なし | 1DK 38.01m2 | 築38年 | 都営大江戸線 若松河田駅 徒歩4分 都営大江戸線 牛込柳町駅 徒歩6分 東京メトロ東西線 早稲田駅(メトロ) 徒歩8分 東京都新宿区若松町 | 詳細を見る | |
マンション BPRレジデンス練馬富士見台(1LDK/4階) | |||||||
![]() | 17.9万円 1万円 | 17.9万円 17.9万円 | 1LDK 45.91m2 | 築1年 | 西武池袋・豊島線 富士見台駅 徒歩4分 東京都練馬区貫井3丁目 | 詳細を見る | |
アパート ASSETI(1K/2階) | |||||||
![]() | 7.2万円 4,000円 | なし なし | 1K 22.67m2 | 築9年 | 東京メトロ丸ノ内線 荻窪駅 徒歩15分 西武新宿線 下井草駅 徒歩18分 JR中央線 阿佐ケ谷駅 徒歩22分 東京都杉並区本天沼 | 詳細を見る | |
マンション ルミエール旭町(1K/1階) | |||||||
![]() | 7.8万円 4,000円 | 7.8万円 7.8万円 | 1K 25.48m2 | 築13年 | 東京メトロ有楽町線 地下鉄成増駅 徒歩10分 東武東上線 成増駅 徒歩12分 東武東上線 下赤塚駅 徒歩16分 東京都練馬区旭町 | 詳細を見る | |




/105x80-f1-q70-wp1)

/105x80-f1-q70-wp1)

