賃貸マンション
N-STAGE 板橋本町アジールコートの賃貸物件情報(1K/2階)
| 家賃 | 管理費等 | 敷金 | 礼金 | 間取り | 専有面積 |
|---|---|---|---|---|---|
| 9.8万円 | 1.5万円 | なし | なし | 1K | 25.53m2 |
入居決定でお祝い金最大100,000円
- 保証金
- -
- 償却・敷引
- -
- 築年数
- 築11年
- 所在階
- 2階
- 向き
- 南東
Point
まずはお問い合わせ!
不動産会社は街のプロ、あなたに合った物件がきっと見つかります。
提供:(株)DoDoNPA新橋店(SUUMO経由)

詳細情報 N-STAGE 板橋本町アジールコート
物件紹介
N-STAGE 板橋本町アジールコートは都営三田線板橋本町駅から徒歩5分にあり、駅近で通勤通学に便利なマンションです。
このお部屋は2階以上に位置しているので、通行人や周囲の住人からの視線が気になりにくく、防犯面でも安心。建物のエントランスはオートロックがついており、インターホンにはTVモニタもついているため、相手の顔を確認してから来客対応することができます。
人気の南向きのお部屋。また、フローリングなのでお掃除もラクラク。バス・トイレ別の仕様で、のんびりお風呂タイムも楽しめます。また、浴室乾燥機を使えば、雨の日でもお洗濯は問題ありません。
建物にはエレベーターがついているので、重い荷物があっても安心。共用部には宅配ボックスが設定されているので、不在の時にも荷物を受け取ることができます。また、ペット飼育の相談ができますので、あなたの大切な家族の一員も快適に暮らせるか、ぜひ確認してみてください。
このお部屋は2階以上に位置しているので、通行人や周囲の住人からの視線が気になりにくく、防犯面でも安心。建物のエントランスはオートロックがついており、インターホンにはTVモニタもついているため、相手の顔を確認してから来客対応することができます。
人気の南向きのお部屋。また、フローリングなのでお掃除もラクラク。バス・トイレ別の仕様で、のんびりお風呂タイムも楽しめます。また、浴室乾燥機を使えば、雨の日でもお洗濯は問題ありません。
建物にはエレベーターがついているので、重い荷物があっても安心。共用部には宅配ボックスが設定されているので、不在の時にも荷物を受け取ることができます。また、ペット飼育の相談ができますので、あなたの大切な家族の一員も快適に暮らせるか、ぜひ確認してみてください。
お金・契約の情報
※「-」と表示されているものは、実際は料金が発生するものもございます。詳細はお問い合わせください。
| 家賃 | 9.8万円 | 管理費・共益費 | 1.5万円 |
|---|---|---|---|
| 敷金 | なし | 礼金 | なし |
| 入居決定でお祝い金最大100,000円 | |||
| 保証金 | - | 償却・敷引 | - |
| 住宅保険料 | - | 更新料 | - |
| 保証会社利用 | 利用可 | 保証会社名 | - |
| 保証会社費用 | - | 保証会社備考 | 保証会社利用可 エポス |
| 契約形態 | - | 契約期間 | - |
| 入居・引渡期間 | 即時 | 現況 | - |
| 入居可能条件 | ペット相談 | ||
| 契約備考 | 弊社では東京のみならず、ネットに掲載のある物件はすべてご紹介が可能です! 合計3.85万円(内訳:Goodプレミアムα(24Hサポートのみ)1.21万円Goodプレミアムα登録料0.22万円鍵交換代2.42万円) 更新料 98000円 1K ペット相談 普通借家2年 バストイレ別、エアコン、ガスコンロ対応、フローリング、TVインターホン、浴室乾燥機、オートロック、室内洗濯置、温水洗浄便座、エレベーター、洗面所独立、2口コンロ、宅配ボックス、礼金不要、敷金不要、ペット相談、2沿線利用可、保証金不要、耐火構造、2駅利用可、3駅以上利用可、駅徒歩5分以内、駅徒歩10分以内、都市ガス、シューズWIC、敷金・礼金不要 | ||
部屋の情報
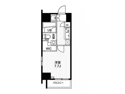
| 間取り | 1K | 専有面積 | 25.53m2 |
|---|---|---|---|
| 所在階 / 向き | 2階 / 南東 | バルコニー面積 | - |
| 水道 / ガス | - | ||
| 設備 | バス・トイレ別、2階以上、オートロック、テレビドアホン、宅配ボックス、浴室乾燥機、エアコン、エレベーター、温水洗浄便座、南向き、フローリング、洗髪洗面化粧台、2口コンロ、コンロ:ガス、洗濯機:室内 | ||
| 当社物件ID | 156830338 | ||
建物の情報
| 建物名 | N-STAGE 板橋本町アジールコート | ||
|---|---|---|---|
| 所在地 | 東京都板橋区清水町 | ||
| 交通 | 都営三田線 板橋本町駅 徒歩5分 都営三田線 本蓮沼駅 徒歩8分 JR埼京線 十条駅(東京) 徒歩23分 | ||
| 階数 | 11階建 | 総戸数 | 63戸 |
| 築年月 | 2016年01月 / 築11年 | エレベーター | あり |
| 駐車場 | なし | バイク置き場 | - |
| 駐輪場 | - | 管理人/管理会社 | - |
| 周辺環境 | その他 赤羽西保育園(幼稚園・保育園)まで1684m その他 北区立うめのき幼稚園(幼稚園・保育園)まで1273m その他 まいばすけっと 板橋本町駅南店(スーパー)まで519m その他 まいばすけっと 板橋本町商店街店(スーパー)まで882m その他 セブンイレブン 板橋清水町東店(コンビニ)まで319m その他 セブンイレブン 板橋本町駅東店(コンビニ)まで406m | ||
| 建物種別 | マンション | 建物構造 | RC(鉄筋コンクリート) |
この部屋の取扱い不動産会社
| 会社名 | (株)DoDoNPA新橋店(SUUMO経由) | ||
|---|---|---|---|
| 所在地 | 東京都港区新橋2-18-3 故萩堂ビル5階 | 交通 | - |
| 営業時間 | 10時~19時 | 定休日 | 水曜日 |
| 免許番号 | 東京都知事110262 | 取引態様 | 仲介 |
| 不動産会社管理番号 | 100481343952 | 当社管理番号 | 89 |
| 所属団体 | (公社)全日本不動産協会東京都本部会員 | ||
| 公正取引協議会 | (公社)首都圏不動産公正取引協議会加盟 | ||
| 取扱い物件情報 | 物件詳細へ | ||
※各種情報と現状に差異がある場合は、現状優先となります。問い合わせをすることで、より詳しい条件、情報を確認する事ができます。
提供:(株)DoDoNPA新橋店(SUUMO経由)
この物件が気になったら掲載期限まであと10日
N-STAGE 板橋本町アジールコートに条件(家賃・エリア)が近い物件一覧
| 写真 | 家賃 管理費等 | 敷金 礼金 | 間取り 専有面積 | 築年数 | 最寄り駅 所在地 | キープ | 詳細 |
|---|---|---|---|---|---|---|---|
マンション 10ビリオン要 テンビリオンカナメ(1K/2階) | |||||||
![]() | 8.55万円 3,800円 | 8.55万円 8.55万円 | 1K 25.78m2 | 築15年 | 東京メトロ副都心線 千川駅 徒歩5分 東京メトロ有楽町線 要町駅 徒歩8分 JR山手線 池袋駅 徒歩22分 東京都豊島区千早 | 詳細を見る | |
マンション PRATIQUE西巣鴨CLAIR(1K/3階) | |||||||
![]() | 10.2万円 8,000円 | なし なし | 1K 21.45m2 | 築3年 | 都電荒川線 新庚申塚駅 徒歩1分 都営三田線 西巣鴨駅 徒歩5分 都電荒川線 庚申塚駅 徒歩6分 東京都豊島区西巣鴨 | 詳細を見る | |
アパート 東武東上線 上板橋駅 徒歩9分 築1年(1K/1階) | |||||||
![]() | 7.6万円 5,000円 | なし 15.2万円 | 1K 23.16m2 | 築1年 | 東武東上線 上板橋駅 徒歩9分 東京メトロ有楽町線 氷川台駅 徒歩20分 東武東上線 ときわ台駅(東京) 徒歩21分 東京都板橋区桜川 | 詳細を見る | |
マンション KDXレジデンス本蓮沼(1DK/13階) | |||||||
![]() | 11.2万円 1万円 | 11.2万円 11.2万円 | 1DK 25.33m2 | 築3年 | 都営三田線 本蓮沼駅 徒歩2分 都営三田線 志村坂上駅 徒歩12分 東武東上線 中板橋駅 徒歩28分 東京都板橋区蓮沼町 | 詳細を見る | |
アパート サンガーデンII(1DK/1階) | |||||||
![]() | 8.7万円 なし | 8.7万円 8.7万円 | 1DK 32.12m2 | 築30年 | 東京メトロ有楽町線 千川駅 徒歩3分 東京メトロ有楽町線 要町駅 徒歩11分 西武池袋線 東長崎駅 徒歩18分 東京都豊島区要町 | 詳細を見る | |
マンション HF上石神井レジデンス(1K/8階) | |||||||
![]() | 9.2万円 5,000円 | 9.2万円 9.2万円 | 1K 20.36m2 | 築20年 | 西武新宿線 上石神井駅 徒歩6分 西武新宿線 上井草駅 徒歩19分 西武新宿線 武蔵関駅 徒歩19分 東京都練馬区上石神井 | 詳細を見る | |
マンション CREATIF池袋本町(1SK/5階) | |||||||
![]() | 13.7万円 1万円 | なし なし | 1SK 30.14m2 | 築2年 | 東武東上線 下板橋駅 徒歩8分 都営三田線 板橋区役所前駅 徒歩12分 JR埼京線 板橋駅 徒歩16分 東京都豊島区池袋本町 | 詳細を見る | |
アパート 練馬区北町1丁目(1LDK/1階) | |||||||
![]() | 12.3万円 6,000円 | 12.3万円 12.3万円 | 1LDK 39.95m2 | 新築 | 東武鉄道東上線 上板橋駅 徒歩9分 東武鉄道東上線 東武練馬駅 徒歩12分 東京都練馬区北町1丁目 | 詳細を見る | |









