賃貸マンション
ラ・ピアッツァ麻布十番の賃貸物件情報(1K/4階)
| 家賃 | 管理費等 | 敷金 | 礼金 | 間取り | 専有面積 |
|---|---|---|---|---|---|
| 12万円 | 1万円 | 12万円 | 12万円 | 1K | 20.36m2 |
入居決定でお祝い金最大100,000円
- 保証金
- -
- 償却・敷引
- 12万円
- 築年数
- 築23年
- 所在階
- 4階
- 向き
- 東
Point
★当社のみお取り扱い物件です★システムキッチン・グリル付2口ガスコンロ★浴室乾燥機★クローゼット★モニター付インターホン★トランクルーム★そらうみリアルエステートへお気軽にお問い合わせください!★
提供:(株)ユウキ・ホーム麻布十番サテライト店(SUUMO経由)

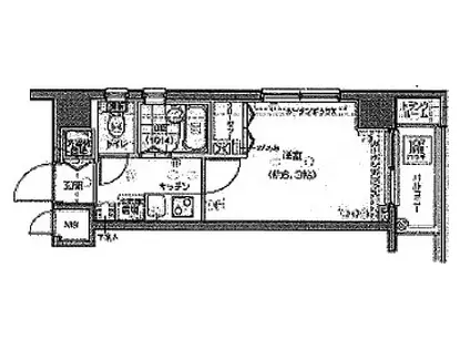
詳細情報 ラ・ピアッツァ麻布十番
物件紹介
ラ・ピアッツァ麻布十番は東京メトロ南北線麻布十番駅から徒歩2分にあり、駅近で通勤通学に便利なマンションです。
このお部屋は2階以上に位置しているので、通行人や周囲の住人からの視線が気になりにくく、防犯面でも安心。建物のエントランスはオートロックがついており、インターホンにはTVモニタもついているため、相手の顔を確認してから来客対応することができます。
人気の角部屋で周囲の居住者の生活音も気になりにくく、また、フローリングのお部屋なのでお掃除もラクラク。キッチンはシステムキッチン仕様になっていますので、お料理好きの方にもぴったり。バス・トイレは別なので、のんびりお風呂タイムも楽しめるでしょう。また、雨の日でも浴室乾燥機を使えば、お洗濯も問題ありません。
建物にはエレベーターがついているので、重い荷物があっても安心。共用部には宅配ボックスが設定されているので、不在の時にも荷物を受け取ることができます。
このお部屋は2階以上に位置しているので、通行人や周囲の住人からの視線が気になりにくく、防犯面でも安心。建物のエントランスはオートロックがついており、インターホンにはTVモニタもついているため、相手の顔を確認してから来客対応することができます。
人気の角部屋で周囲の居住者の生活音も気になりにくく、また、フローリングのお部屋なのでお掃除もラクラク。キッチンはシステムキッチン仕様になっていますので、お料理好きの方にもぴったり。バス・トイレは別なので、のんびりお風呂タイムも楽しめるでしょう。また、雨の日でも浴室乾燥機を使えば、お洗濯も問題ありません。
建物にはエレベーターがついているので、重い荷物があっても安心。共用部には宅配ボックスが設定されているので、不在の時にも荷物を受け取ることができます。
お金・契約の情報
※「-」と表示されているものは、実際は料金が発生するものもございます。詳細はお問い合わせください。
| 家賃 | 12万円 | 管理費・共益費 | 1万円 |
|---|---|---|---|
| 敷金 | 12万円 | 礼金 | 12万円 |
| 入居決定でお祝い金最大100,000円 | |||
| 保証金 | - | 償却・敷引 | 12万円 |
| 住宅保険料 | - | 更新料 | - |
| 保証会社利用 | 必須 | 保証会社名 | - |
| 保証会社費用 | - | 保証会社備考 | 保証会社利用必 詳細はお問い合わせください。 |
| 契約形態 | - | 契約期間 | - |
| 入居・引渡期間 | - | 現況 | - |
| 契約備考 | 巡回管理/1年未満解約違約金:1ヶ月 1K 単身者可 損保【要】 バストイレ別、バルコニー、エアコン、ガスコンロ対応、クロゼット、フローリング、TVインターホン、浴室乾燥機、オートロック、室内洗濯置、シューズボックス、システムキッチン、角住戸、エレベーター、2口コンロ、宅配ボックス、2面採光、防犯カメラ、分譲賃貸、グリル付、保証人不要、トランクルーム、3沿線以上利用可、駅徒歩5分以内、都市ガス、保証会社利用可 入居日:'26年2月上旬 | ||
部屋の情報
| 間取り | 1K | 専有面積 | 20.36m2 |
|---|---|---|---|
| 所在階 / 向き | 4階 / 東 | バルコニー面積 | - |
| 水道 / ガス | - | ||
| 設備 | バス・トイレ別、2階以上、オートロック、テレビドアホン、宅配ボックス、浴室乾燥機、システムキッチン、エアコン、エレベーター、角部屋、バルコニー、フローリング、トランクルーム、2口コンロ、コンロ:ガス、洗濯機:室内 | ||
| 当社物件ID | 21526738 | ||
建物の情報
| 建物名 | ラ・ピアッツァ麻布十番 | ||
|---|---|---|---|
| 所在地 | 東京都港区麻布十番 | ||
| 交通 | 東京メトロ南北線 麻布十番駅 徒歩2分 都営大江戸線 赤羽橋駅 徒歩13分 東京メトロ日比谷線 六本木駅 徒歩19分 | ||
| 階数 | 12階建 | 総戸数 | - |
| 築年月 | 2003年02月 / 築23年 | エレベーター | あり |
| 駐車場 | なし | バイク置き場 | - |
| 駐輪場 | - | 管理人/管理会社 | - |
| 周辺環境 | その他 ビオセボン麻布十番店(スーパー)まで272m その他 24次官営業 成城石井麻布十番店(スーパー)まで218m その他 セブンイレブン港区麻布十番3丁目店(コンビニ)まで183m その他 トモズ麻布十番店(ドラッグストア)まで182m その他 くすりの福太郎麻布十番店(ドラッグストア)まで252m その他 麻布十番郵便局(郵便局)まで217m | ||
| 建物種別 | マンション | 建物構造 | SRC(鉄骨鉄筋コンクリート) |
この部屋の取扱い不動産会社
| 会社名 | そらうみリアルエステート(株)賃貸事業本部(SUUMO経由) | ||
|---|---|---|---|
| 所在地 | 東京都港区麻布十番1-11-16 SHビル1階 | 交通 | - |
| 営業時間 | 午前9時30分~午後9時30分 | 定休日 | 無休 |
| 免許番号 | 東京都知事94395 | 取引態様 | 仲介 |
| 不動産会社管理番号 | 100473047637 | 当社管理番号 | 89 |
| 所属団体 | (公社)東京都宅地建物取引業協会会員 | ||
| 公正取引協議会 | (公社)首都圏不動産公正取引協議会加盟 | ||
| 取扱い物件情報 | 物件詳細へ | ||
※各種情報と現状に差異がある場合は、現状優先となります。問い合わせをすることで、より詳しい条件、情報を確認する事ができます。
提供:そらうみリアルエステート(株)賃貸事業本部(SUUMO経由)
この物件が気になったら掲載期限まであと9日
ラ・ピアッツァ麻布十番に条件(家賃・エリア)が近い物件一覧
| 写真 | 家賃 管理費等 | 敷金 礼金 | 間取り 専有面積 | 築年数 | 最寄り駅 所在地 | キープ | 詳細 |
|---|---|---|---|---|---|---|---|
マンション グレース東神田(1K/9階) | |||||||
![]() | 10.3万円 6,000円 | 10.3万円 10.3万円 | 1K 28.05m2 | 築24年 | 東京都新宿線 岩本町駅 徒歩3分 東京地下鉄日比谷線 秋葉原駅 徒歩3分 山手線 秋葉原駅 徒歩7分 東京都千代田区東神田2丁目 | 詳細を見る | |
マンション GRAN PASEO大森Ⅲ(ワンルーム/1階) | |||||||
![]() | 11万円 1万円 | なし なし | ワンルーム 20.01m2 | 築1年 | 京浜急行電鉄本線 大森海岸駅 徒歩6分 京浜東北・根岸線 大森駅(東京) 徒歩10分 東京モノレール羽田 大井競馬場前駅 徒歩22分 東京都品川区南大井3丁目 | 詳細を見る | |
マンション QU4TTRO ARCA 九段(1K/4階) | |||||||
![]() | 17.5万円 1万円 | 17.5万円 なし | 1K 29.33m2 | 築7年 | 東京地下鉄東西線 九段下駅 徒歩2分 総武・中央緩行線 飯田橋駅 徒歩8分 東京都三田線 水道橋駅 徒歩8分 東京都千代田区九段北1丁目 | 詳細を見る | |
マンション ZOOM日本橋馬喰町(1K/8階) | |||||||
![]() | 13.1万円 9,000円 | 13.1万円 13.1万円 | 1K 26.09m2 | 築8年 | 総武本線 馬喰町駅 徒歩2分 東京都新宿線 馬喰横山駅 徒歩3分 東京都浅草線 東日本橋駅 徒歩3分 東京都千代田区東神田1丁目 | 詳細を見る | |
マンション パークアクシス小伝馬町(ワンルーム/3階) | |||||||
![]() | 17.4万円 1.1万円 | 17.4万円 なし | ワンルーム 31.28m2 | 築10年 | 東京地下鉄日比谷線 小伝馬町駅 徒歩3分 総武本線 馬喰町駅 徒歩5分 山手線 秋葉原駅 徒歩11分 東京都千代田区岩本町1丁目 | 詳細を見る | |
マンション クレストコート門前仲町(1DK/10階) | |||||||
![]() | 15.5万円 1.2万円 | 15.5万円 なし | 1DK 26.14m2 | 築1年 | 都営大江戸線 門前仲町駅 徒歩7分 JR京葉線 越中島駅 徒歩11分 東京メトロ日比谷線 八丁堀駅(東京) 徒歩15分 東京都江東区永代 | 詳細を見る | |
マンション クロスレジデンス神田神保町(1DK/11階) | |||||||
![]() | 16万円 1.2万円 | 16万円 16万円 | 1DK 25.16m2 | 築2年 | 東京地下鉄半蔵門線 神保町駅 徒歩1分 東京地下鉄丸ノ内線 淡路町駅 徒歩8分 東京地下鉄東西線 九段下駅 徒歩9分 東京都千代田区神田神保町1丁目 | 詳細を見る | |
一戸建て 東京都新宿線 大島駅(東京) 徒歩7分 築77年(1DK) | |||||||
![]() | 15.8万円 1万円 | 15.8万円 15.8万円 | 1DK 27.91m2 | 築77年 | 東京都新宿線 大島駅(東京) 徒歩7分 東京都新宿線 西大島駅 徒歩7分 総武・中央緩行線 亀戸駅 徒歩11分 東京都江東区大島3丁目 | 詳細を見る | |








