賃貸マンション
デュオスカーラ渋谷の賃貸物件情報(2LDK/5階)
| 家賃 | 管理費等 | 敷金 | 礼金 | 間取り | 専有面積 |
|---|---|---|---|---|---|
| 24.5万円 | 1.5万円 | 24.5万円 | 49万円 | 2LDK | 50.24m2 |
入居決定でお祝い金最大100,000円
- 保証金
- -
- 償却・敷引
- -
- 築年数
- 築24年
- 所在階
- 5階
- 向き
- 南西
Point
オンライン内見・契約実施!気になる物件はまとめてご案内可能です!初期費用クレカ決済もご相談ください!
提供:TR(株)ナビホーム赤坂店(SUUMO経由)

詳細情報 デュオスカーラ渋谷
物件紹介
デュオスカーラ渋谷はJR山手線渋谷駅から徒歩6分にあり、駅近で通勤通学に便利なマンションです。
このお部屋は2階以上に位置しているので、通行人や周囲の住人からの視線が気になりにくく、防犯面でも安心。建物のエントランスはオートロックがついており、インターホンにはTVモニタもついているため、相手の顔を確認してから来客対応することができます。
人気の南向きのお部屋。また、フローリングなのでお掃除もラクラク。バス・トイレ別の仕様で、のんびりお風呂タイムも楽しめます。また、浴室乾燥機を使えば、雨の日でもお洗濯は問題ありません。
通信設備面では、インターネットが無料で使えるので、月々の出費を抑えられるのも魅力です。また、BSアンテナ・CSアンテナがありCATVにも対応しているので、おうち時間も充実するでしょう(別途工事、BS・CS・CATVの契約料等が必要な場合あり)。
建物にはエレベーターがついているので、重い荷物があっても安心。共用部には宅配ボックスが設定されているので、不在の時にも荷物を受け取ることができます。
このお部屋は2階以上に位置しているので、通行人や周囲の住人からの視線が気になりにくく、防犯面でも安心。建物のエントランスはオートロックがついており、インターホンにはTVモニタもついているため、相手の顔を確認してから来客対応することができます。
人気の南向きのお部屋。また、フローリングなのでお掃除もラクラク。バス・トイレ別の仕様で、のんびりお風呂タイムも楽しめます。また、浴室乾燥機を使えば、雨の日でもお洗濯は問題ありません。
通信設備面では、インターネットが無料で使えるので、月々の出費を抑えられるのも魅力です。また、BSアンテナ・CSアンテナがありCATVにも対応しているので、おうち時間も充実するでしょう(別途工事、BS・CS・CATVの契約料等が必要な場合あり)。
建物にはエレベーターがついているので、重い荷物があっても安心。共用部には宅配ボックスが設定されているので、不在の時にも荷物を受け取ることができます。
お金・契約の情報
※「-」と表示されているものは、実際は料金が発生するものもございます。詳細はお問い合わせください。
| 家賃 | 24.5万円 | 管理費・共益費 | 1.5万円 |
|---|---|---|---|
| 敷金 | 24.5万円 | 礼金 | 49万円 |
| 入居決定でお祝い金最大100,000円 | |||
| 保証金 | - | 償却・敷引 | - |
| 住宅保険料 | - | 更新料 | - |
| 保証会社利用 | 必須 | 保証会社名 | - |
| 保証会社費用 | - | 保証会社備考 | 保証会社利用必 初回保証料:総賃料の40%、年間保証料:14,000円 |
| 契約形態 | - | 契約期間 | - |
| 入居・引渡期間 | 即時 | 現況 | - |
| 契約備考 | ※賃貸保証:初回保証料:総賃料の40%、年間保証料:14,000円 ※鍵交換費用:38500円 ※24時間メンテナンスサービス(2年毎・加入必須):16500円 合計5.5万円(内訳:24時間メンテナンスサービス(2年毎・加入必須)1.65万円鍵交換代3.85万円) 更新料 新賃料1.00ヶ月分 2LDK 事務所利用不可/ルームシェア不可 普通借家2年 損保【2.6万円2年】 バストイレ別、バルコニー、エアコン、ガスコンロ対応、クロゼット、フローリング、TVインターホン、浴室乾燥機、オートロック、室内洗濯置、シューズボックス、南向き、追焚機能浴室、温水洗浄便座、エレベーター、洗面所独立、宅配ボックス、CATV、外壁タイル張り、BS・CS、3口以上コンロ、分譲賃貸、オートバス、グリル付、敷金1ヶ月、全居室フローリング、ディンプルキー、CS、ネット専用回線、ネット使用料不要、全室南向き、ダブルロックキー、保証金不要、耐火構造、全室東南向き、3駅以上利用可、3沿線以上利用可、駅徒歩10分以内、敷地内ごみ置き場、東南向き、南西向き、全室南西向き、都市ガス、南面バルコニー、BS、高速ネット対応、保証会社利用可 | ||
部屋の情報
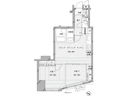
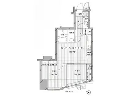
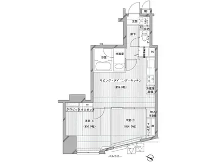
| 間取り | 2LDK | 専有面積 | 50.24m2 |
|---|---|---|---|
| 所在階 / 向き | 5階 / 南西 | バルコニー面積 | 7m2 |
| 水道 / ガス | - | ||
| 設備 | バス・トイレ別、2階以上、オートロック、テレビドアホン、宅配ボックス、浴室乾燥機、追い焚き、インターネット対応、エアコン、エレベーター、温水洗浄便座、南向き、バルコニー、フローリング、洗髪洗面化粧台、2口コンロ、コンロ:ガス、CATV、CSアンテナ、BSアンテナ、インターネット使用料無料、洗濯機:室内 | ||
| 当社物件ID | 160181304 | ||
建物の情報
| 建物名 | デュオスカーラ渋谷 | ||
|---|---|---|---|
| 所在地 | 東京都渋谷区桜丘町 | ||
| 交通 | JR山手線 渋谷駅 徒歩6分 京王井の頭線 神泉駅 徒歩10分 東急東横線 代官山駅 徒歩14分 | ||
| 階数 | 8階建 | 総戸数 | - |
| 築年月 | 2002年10月 / 築24年 | エレベーター | あり |
| 駐車場 | なし | バイク置き場 | - |
| 駐輪場 | - | 管理人/管理会社 | - |
| 周辺環境 | その他 マルエツ プチ 渋谷鶯谷町店(スーパー)まで426m その他 ローソン 南平台店(コンビニ)まで232m その他 ドラッグヨシダ(ドラッグストア)まで652m | ||
| 建物種別 | マンション | 建物構造 | RC(鉄筋コンクリート) |
この部屋の取扱い不動産会社
| 会社名 | TR(株)MINATO HOME(SUUMO経由) | ||
|---|---|---|---|
| 所在地 | 東京都港区赤坂2-19-5 内田ビル301 | 交通 | - |
| 営業時間 | 10:00~19:00 | 定休日 | 無し |
| 免許番号 | 東京都知事109457 | 取引態様 | 仲介 |
| 不動産会社管理番号 | 100482352031 | 当社管理番号 | 89 |
| 所属団体 | (公社)東京都宅地建物取引業協会会員 | ||
| 公正取引協議会 | (公社)首都圏不動産公正取引協議会加盟 | ||
| 取扱い物件情報 | 物件詳細へ | ||
※各種情報と現状に差異がある場合は、現状優先となります。問い合わせをすることで、より詳しい条件、情報を確認する事ができます。
提供:TR(株)MINATO HOME(SUUMO経由)
この物件が気になったら掲載期限まであと11日
デュオスカーラ渋谷に条件(家賃・エリア)が近い物件一覧
| 写真 | 家賃 管理費等 | 敷金 礼金 | 間取り 専有面積 | 築年数 | 最寄り駅 所在地 | キープ | 詳細 |
|---|---|---|---|---|---|---|---|
マンション ルキシア神楽坂(1DK/6階) | |||||||
![]() | 15.1万円 1.4万円 | なし 15.1万円 | 1DK 32.72m2 | 築5年 | 東京メトロ東西線 神楽坂駅 徒歩8分 都営大江戸線 飯田橋駅 徒歩9分 東京メトロ有楽町線 江戸川橋駅 徒歩10分 東京都新宿区東五軒町 | 詳細を見る | |
マンション フェニックス江戸川橋(1DK/1階) | |||||||
![]() | 17.1万円 1.1万円 | なし 17.1万円 | 1DK 40.73m2 | 築20年 | 東京メトロ有楽町線 江戸川橋駅 徒歩3分 東京メトロ東西線 神楽坂駅 徒歩8分 都営大江戸線 牛込神楽坂駅 徒歩13分 東京都新宿区水道町 | 詳細を見る | |
マンション BRILLIA TOWER 浜離宮(1K/12階) | |||||||
![]() | 18.8万円 2万円 | なし なし | 1K 25.13m2 | 築3年 | JR山手線 浜松町駅 徒歩5分 東京都港区海岸 | 詳細を見る | |
マンション コンフォリア・リヴ北新宿(1DK/8階) | |||||||
![]() | 15.5万円 1万円 | 15.5万円 なし | 1DK 25.1m2 | 築2年 | JR中央線 東中野駅 徒歩9分 JR中央線 大久保駅(東京) 徒歩10分 東京メトロ東西線 落合駅 徒歩12分 東京都新宿区北新宿 | 詳細を見る | |
マンション GRAN PASEO大森III(2LDK/2階) | |||||||
![]() | 23.7万円 1.5万円 | なし なし | 2LDK 42.55m2 | 築1年 | 京急本線 大森海岸駅 徒歩6分 JR京浜東北線 大森駅(東京) 徒歩10分 京急本線 立会川駅 徒歩17分 東京都品川区南大井 | 詳細を見る | |
マンション ローレルコート新宿タワー(1LDK/31階) | |||||||
![]() | 30万円 1万円 | 30万円 30万円 | 1LDK 64.39m2 | 築24年 | 東京メトロ丸ノ内線 新宿御苑前駅 徒歩9分 都営新宿線 曙橋駅 徒歩9分 東京メトロ副都心線 新宿三丁目駅 徒歩11分 東京都新宿区富久町 | 詳細を見る | |
アパート エクセル八雲(3LDK/1階) | |||||||
![]() | 27万円 4,500円 | なし 54万円 | 3LDK 78.02m2 | 築34年 | 東急東横線 都立大学駅 徒歩13分 東急田園都市線 駒沢大学駅 徒歩19分 東急東横線 学芸大学駅 徒歩20分 東京都目黒区八雲 | 詳細を見る | |
マンション 東急ドエル・アルス大井1丁目(3LDK/13階) | |||||||
![]() | 32万円 なし | 64万円 32万円 | 3LDK 73.42m2 | 築28年 | JR京浜東北線 大井町駅 徒歩4分 東急大井町線 大井町駅 徒歩5分 東京都品川区大井 | 詳細を見る | |









