賃貸アパート
グリーンハウスの賃貸物件情報(3LDK/1階)
| 家賃 | 管理費等 | 敷金 | 礼金 | 間取り | 専有面積 |
|---|---|---|---|---|---|
| 8.5万円 | なし | なし | なし | 3LDK | 82.26m2 |
入居決定でお祝い金最大100,000円
- 保証金
- -
- 償却・敷引
- -
- 築年数
- 築2年
- 所在階
- 1階
- 向き
- 南
Point
オール電化 駐車場2台可能 設備充実 15帖のリビング 未入居
提供:(株)ミニミニ岐阜羽島店(SUUMO経由)

詳細情報 グリーンハウス
物件紹介
グリーンハウスは名鉄竹鼻線竹鼻駅から徒歩24分にあるアパートです。
このお部屋のインターホンにはTVモニタがついているため、相手の顔を確認してから来客対応することができます。
人気の南向きのお部屋。角部屋でもあるため、周囲の居住者の生活音も気になりにくい場所です。キッチンはシステムキッチン仕様になっていますので、お料理好きの方にもぴったり。また、バス・トイレは別で、のんびりお風呂タイムも楽しめるでしょう。
このお部屋のインターホンにはTVモニタがついているため、相手の顔を確認してから来客対応することができます。
人気の南向きのお部屋。角部屋でもあるため、周囲の居住者の生活音も気になりにくい場所です。キッチンはシステムキッチン仕様になっていますので、お料理好きの方にもぴったり。また、バス・トイレは別で、のんびりお風呂タイムも楽しめるでしょう。
お金・契約の情報
※「-」と表示されているものは、実際は料金が発生するものもございます。詳細はお問い合わせください。
| 家賃 | 8.5万円 | 管理費・共益費 | なし |
|---|---|---|---|
| 敷金 | なし | 礼金 | なし |
| 入居決定でお祝い金最大100,000円 | |||
| 保証金 | - | 償却・敷引 | - |
| 住宅保険料 | - | 更新料 | - |
| 保証会社利用 | 必須 | 保証会社名 | - |
| 保証会社費用 | - | 保証会社備考 | 保証会社利用必 日本セーフティー株式会社 家賃保証会社 初回保証料50% |
| 契約形態 | - | 契約期間 | - |
| 入居・引渡期間 | 即時 | 現況 | - |
| 契約備考 | 合計15.77万円(内訳:クリーニング費用10万円/駐車場紹介料0.33万円/消毒料1.76万円/入居安心サービス料1.76万円/防災セット1.44万円/ファイテック消火剤0.48万円) 浄化槽維持管理費(水道料込)4000円 3LDK 損保【1.6万円2年】 バストイレ別、エアコン、クロゼット、シャワー付洗面台、TVインターホン、室内洗濯置、システムキッチン、南向き、角住戸、温水洗浄便座、洗面所独立、即入居可、礼金不要、敷金不要、対面式キッチン、IHクッキングヒーター、照明付、全居室収納、全居室洋室、保証人不要、駐車2台可、2沿線利用可、エアコン2台、LDK15畳以上、築2年以内、電子キー、クロゼット3ヶ所、シャッター、敷金・礼金不要、IT重説対応物件 | ||
部屋の情報
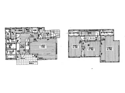
| 間取り | 3LDK | 専有面積 | 82.26m2 |
|---|---|---|---|
| 所在階 / 向き | 1階 / 南 | バルコニー面積 | - |
| 水道 / ガス | - | ||
| 設備 | バス・トイレ別、テレビドアホン、システムキッチン、エアコン、温水洗浄便座、南向き、角部屋、洗髪洗面化粧台、コンロ:IH、洗濯機:室内 | ||
| 当社物件ID | 160361404 | ||
建物の情報
| 建物名 | グリーンハウス | ||
|---|---|---|---|
| 所在地 | 岐阜県羽島市小熊町天王 | ||
| 交通 | 名鉄竹鼻線 竹鼻駅 徒歩24分 名鉄竹鼻線 羽島市役所前駅 徒歩28分 東海道新幹線 岐阜羽島駅 徒歩37分 | ||
| 階数 | 2階建 | 総戸数 | 2戸 |
| 築年月 | 2024年06月 / 築2年 | エレベーター | - |
| 駐車場 | 空有 3300円/駐2台可 | バイク置き場 | - |
| 駐輪場 | - | 管理人/管理会社 | - |
| 周辺環境 | その他 羽島市立小熊小学校(小学校)まで1393m その他 羽島市立羽島中学校(中学校)まで2288m その他 はしま西幼稚園(幼稚園・保育園)まで880m その他 羽島市役所(役所)まで2598m その他 コスモパーク羽島(公園)まで1430m その他 羽島市民病院(病院)まで1703m | ||
| 建物種別 | アパート | 建物構造 | 木造 |
この部屋の取扱い不動産会社
| 会社名 | (株)ミニミニ岐阜羽島店(SUUMO経由) | ||
|---|---|---|---|
| 所在地 | 岐阜県羽島市福寿町浅平3-54-2レッドヒルシャロウ1 | 交通 | - |
| 営業時間 | 10:00~18:00(1~3月は定休日無し) | 定休日 | 毎週水曜日定休(4~12月) |
| 免許番号 | 国土交通大臣8667 | 取引態様 | 仲介 |
| 不動産会社管理番号 | 100487025144 | 当社管理番号 | 89 |
| 取扱い物件情報 | 物件詳細へ | ||
※各種情報と現状に差異がある場合は、現状優先となります。問い合わせをすることで、より詳しい条件、情報を確認する事ができます。
提供:(株)ミニミニ岐阜羽島店(SUUMO経由)
この物件が気になったら掲載期限まであと11日
グリーンハウスに条件(家賃・エリア)が近い物件一覧
| 写真 | 家賃 管理費等 | 敷金 礼金 | 間取り 専有面積 | 築年数 | 最寄り駅 所在地 | キープ | 詳細 |
|---|---|---|---|---|---|---|---|
アパート サバービア・2(2LDK/2階) | |||||||
![]() | 6万円 4,000円 | 6万円 なし | 2LDK 55.28m2 | 築12年 | 岐阜県岐阜市長良福光 | 詳細を見る | |
マンション アーバン矢島(2LDK/2階) | |||||||
![]() | 5.8万円 4,200円 | なし なし | 2LDK 66.15m2 | 築27年 | JR東海道本線 岐阜駅 徒歩53分 名鉄名古屋本線 名鉄岐阜駅 徒歩54分 名鉄各務原線 名鉄岐阜駅 徒歩55分 岐阜県岐阜市近島 | 詳細を見る | |
アパート フォレストハイツ(2LDK/2階) | |||||||
![]() | 5.5万円 1,500円 | 5.5万円 なし | 2LDK 47.7m2 | 築43年 | JR東海道本線 岐阜駅 徒歩25分 岐阜県岐阜市村雨町 | 詳細を見る | |
マンション 第2サンハイツ戸崎(1LDK/2階) | |||||||
![]() | 5.5万円 3,000円 | 11万円 なし | 1LDK 49.5m2 | 築36年 | 東海道本線 西岐阜駅 徒歩13分 岐阜県岐阜市今嶺3丁目 | 詳細を見る | |
マンション ピノ・アガタ岐阜駅前(2LDK/8階) | |||||||
![]() | 13.4万円 9,000円 | なし 26.8万円 | 2LDK 54.74m2 | 新築 | 名鉄名古屋本線 名鉄岐阜駅 徒歩4分 東海道本線 岐阜駅 徒歩9分 岐阜県岐阜市県町1丁目 | 詳細を見る | |
アパート グランデ エスポワール(1LDK/1階) | |||||||
![]() | 5.1万円 5,500円 | 5.1万円 なし | 1LDK 40.93m2 | 築14年 | JR東海道本線 西岐阜駅 徒歩28分 岐阜県岐阜市須賀 | 詳細を見る | |
アパート COCORUⅠ(2LDK/2階) | |||||||
![]() | 7.75万円 3,500円 | なし 7.75万円 | 2LDK 58.57m2 | 新築 | 名鉄竹鼻・羽島線 柳津駅(岐阜) 徒歩21分 岐阜県岐阜市茜部野瀬2丁目 | 詳細を見る | |








