賃貸マンション
カスタネア栗平2番館の賃貸物件情報(2LDK/2階)
| 家賃 | 管理費等 | 敷金 | 礼金 | 間取り | 専有面積 |
|---|---|---|---|---|---|
| 16.1万円 | 5,000円 | 16.1万円 | 16.1万円 | 2LDK | 68.42m2 |
入居決定でお祝い金最大100,000円
- 保証金
- -
- 償却・敷引
- -
- 築年数
- 築36年
- 所在階
- 2階
- 向き
- 南西
Point
★お部屋探しはタウンハウジング町田店までお任せ下さい・親切・丁寧・一生懸命を心掛けております・弊社独自のネットワークにより、・他社様の物件もご紹介可能j・まとめてお車でご案内させて頂きます♪
提供:(株)タウンハウジング神奈川 新百合ヶ丘店(SUUMO経由)

詳細情報 カスタネア栗平2番館
物件紹介
カスタネア栗平2番館は小田急多摩線栗平駅から徒歩2分にあり、駅近で通勤通学に便利なマンションです。
このお部屋は2階以上に位置しているので、通行人や周囲の住人からの視線が気になりにくく、防犯面でも安心。建物のエントランスはオートロックがついており、インターホンにはTVモニタもついているため、相手の顔を確認してから来客対応することができます。
人気の南向きのお部屋。また、フローリングなのでお掃除もラクラク。キッチンはシステムキッチン仕様になっていますので、お料理好きの方にもぴったり。バス・トイレは別なので、のんびりお風呂タイムも楽しめるでしょう。また、雨の日でも浴室乾燥機を使えば、お洗濯も問題ありません。
通信設備面では、インターネット接続が可能です。また、BSアンテナがありCATVにも対応しているので、おうち時間も充実するでしょう(別途工事、契約料が必要な場合あり)。
建物にはエレベーターがついているので、重い荷物があっても安心。共用部には宅配ボックスが設定されているので、不在の時にも荷物を受け取ることができます。
このお部屋は2階以上に位置しているので、通行人や周囲の住人からの視線が気になりにくく、防犯面でも安心。建物のエントランスはオートロックがついており、インターホンにはTVモニタもついているため、相手の顔を確認してから来客対応することができます。
人気の南向きのお部屋。また、フローリングなのでお掃除もラクラク。キッチンはシステムキッチン仕様になっていますので、お料理好きの方にもぴったり。バス・トイレは別なので、のんびりお風呂タイムも楽しめるでしょう。また、雨の日でも浴室乾燥機を使えば、お洗濯も問題ありません。
通信設備面では、インターネット接続が可能です。また、BSアンテナがありCATVにも対応しているので、おうち時間も充実するでしょう(別途工事、契約料が必要な場合あり)。
建物にはエレベーターがついているので、重い荷物があっても安心。共用部には宅配ボックスが設定されているので、不在の時にも荷物を受け取ることができます。
お金・契約の情報
※「-」と表示されているものは、実際は料金が発生するものもございます。詳細はお問い合わせください。
| 家賃 | 16.1万円 | 管理費・共益費 | 5,000円 |
|---|---|---|---|
| 敷金 | 16.1万円 | 礼金 | 16.1万円 |
| 入居決定でお祝い金最大100,000円 | |||
| 保証金 | - | 償却・敷引 | - |
| 住宅保険料 | - | 更新料 | - |
| 保証会社利用 | 必須 | 保証会社名 | リクルートフォレントインシュア |
| 保証会社費用 | - | 保証会社備考 | オリコフォレントインシュア利用必 (株) 初回保証委託料:月額収納金額合計の50% 継続保証委託料:年10000円 引落し手数料:月300円(税別) |
| 契約形態 | 定期借家 | 契約期間 | 2年 |
| 入居・引渡期間 | 即時 | 現況 | - |
| 契約備考 | ★お部屋探しはタウンハウジング町田店までお任せ下さい・地元密着型・親切・丁寧・一生懸命を心掛けております・弊社独自のネットワークにより、取扱い物件数には自信があります・他社様の物件もご紹介・ご案内可能です・まとめてお車でご案内させて頂きますのでぜひお役立てください♪ 合計2.75万円(内訳:鍵交換代:27500円) 更新料新賃料(ヶ月):1.00ヶ月 2LDK 単身者可/二人入居可 定期借家2年 損保【1.04万円1年】 バストイレ別、バルコニー、エアコン、ガスコンロ対応、クロゼット、フローリング、シャワー付洗面台、TVインターホン、浴室乾燥機、オートロック、室内洗濯置、シューズボックス、システムキッチン、追焚機能浴室、温水洗浄便座、脱衣所、エレベーター、洗面所独立、洗面化粧台、宅配ボックス、CATV、光ファイバー、外壁タイル張り、即入居可、閑静な住宅地、3口以上コンロ、対面式キッチン、防犯カメラ、グリル付、振分、保証人不要、単身者相談、二人入居相談、全居室フローリング、ガスレンジ付、玄関ホール、収納1間半、LDK15畳以上、ディンプルキー、ネット専用回線、駅まで平坦、緑豊かな住宅地、眺望良好、保証金不要、L字型キッチン、平坦地、南面リビング、駅前、駅徒歩5分以内、敷地内ごみ置き場、来客用パーキング、南西向き、都市ガス、洗面所にドア、ダウンライト、BS、高速ネット対応、IT重説対応物件、初期費用カード決済可、通風良好 | ||
部屋の情報
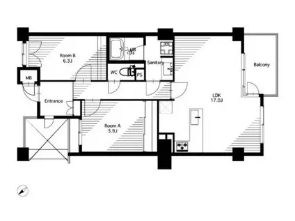
| 間取り | 2LDK | 専有面積 | 68.42m2 |
|---|---|---|---|
| 所在階 / 向き | 2階 / 南西 | バルコニー面積 | - |
| 水道 / ガス | - | ||
| 設備 | バス・トイレ別、2階以上、オートロック、テレビドアホン、宅配ボックス、浴室乾燥機、追い焚き、インターネット対応、システムキッチン、エアコン、エレベーター、温水洗浄便座、南向き、バルコニー、フローリング、洗髪洗面化粧台、2口コンロ、コンロ:ガス、CATV、BSアンテナ、洗濯機:室内 | ||
| 当社物件ID | 30025157 | ||
建物の情報
| 建物名 | カスタネア栗平2番館 | ||
|---|---|---|---|
| 所在地 | 神奈川県川崎市麻生区栗平 | ||
| 交通 | 小田急多摩線 栗平駅 徒歩2分 小田急多摩線 五月台駅 徒歩18分 小田急多摩線 黒川駅(神奈川) 徒歩30分 | ||
| 階数 | 7階建 | 総戸数 | 149戸 |
| 築年月 | 1991年02月 / 築36年 | エレベーター | あり |
| 駐車場 | 空有 11000円 | バイク置き場 | - |
| 駐輪場 | - | 管理人/管理会社 | - |
| 周辺環境 | その他 OdakyuOX栗平店(スーパー)まで229m その他 ローソン(コンビニ)まで333m その他 ファミリーマート(コンビニ)まで355m その他 調剤薬局ツルハドラッグ(ドラッグストア)まで321m その他 白鳥保育園(幼稚園・保育園)まで1068m その他 野天湯元 湯快爽快(その他)まで1021m | ||
| 建物種別 | マンション | 建物構造 | RC(鉄筋コンクリート) |
この部屋の取扱い不動産会社
| 会社名 | (株)タウンハウジング東京 町田店(SUUMO経由) | ||
|---|---|---|---|
| 所在地 | 東京都町田市原町田6-17-8 クオーレ1階 | 交通 | - |
| 営業時間 | AM10:00~PM7:00 | 定休日 | 水曜日 |
| 免許番号 | 国土交通大臣9926 | 取引態様 | 仲介 |
| 不動産会社管理番号 | 100493546159 | 当社管理番号 | 89 |
| 所属団体 | (公社)東京都宅地建物取引業協会会員 | ||
| 公正取引協議会 | (公社)首都圏不動産公正取引協議会加盟 | ||
| 取扱い物件情報 | 物件詳細へ | ||
※各種情報と現状に差異がある場合は、現状優先となります。問い合わせをすることで、より詳しい条件、情報を確認する事ができます。
提供:(株)タウンハウジング東京 町田店(SUUMO経由)
この物件が気になったら掲載期限まであと10日
カスタネア栗平2番館に条件(家賃・エリア)が近い物件一覧
| 写真 | 家賃 管理費等 | 敷金 礼金 | 間取り 専有面積 | 築年数 | 最寄り駅 所在地 | キープ | 詳細 |
|---|---|---|---|---|---|---|---|
マンション 晃榮ビル(2DK/4階) | |||||||
![]() | 10万円 5,000円 | 20万円 なし | 2DK 42.57m2 | 築41年 | 相鉄本線 西横浜駅 徒歩4分 相鉄本線 天王町駅 徒歩11分 JR横須賀線 保土ケ谷駅 徒歩15分 神奈川県横浜市西区久保町 | 詳細を見る | |
マンション ラクラス横浜(1K/9階) | |||||||
![]() | 9.9万円 1万円 | 9.9万円 9.9万円 | 1K 21.66m2 | 築5年 | 京急本線 神奈川駅 徒歩8分 JR京浜東北線 東神奈川駅 徒歩10分 JR東海道本線 横浜駅 徒歩14分 神奈川県横浜市神奈川区神奈川 | 詳細を見る | |
マンション SO2 FRONT(ワンルーム/3階) | |||||||
![]() | 10.3万円 6,000円 | 10.3万円 10.3万円 | ワンルーム 30.31m2 | 築8年 | 相鉄本線 平沼橋駅 徒歩1分 京急本線 戸部駅 徒歩6分 JR京浜東北線 横浜駅 徒歩13分 神奈川県横浜市西区平沼 | 詳細を見る | |
マンション エストゥルースプラス東神奈川(1LDK/6階) | |||||||
![]() | 15.3万円 1.2万円 | なし なし | 1LDK 45.73m2 | 築16年 | 京急本線 京急東神奈川駅 徒歩8分 JR横浜線 東神奈川駅 徒歩9分 JR京浜東北線 東神奈川駅 徒歩9分 神奈川県横浜市神奈川区神奈川 | 詳細を見る | |
アパート パールハイム(1LDK/2階) | |||||||
![]() | 11.5万円 3,000円 | 11.5万円 23万円 | 1LDK 45.41m2 | 築3年 | ブルーライン 仲町台駅 徒歩5分 ブルーライン センター南駅 徒歩30分 神奈川県横浜市都筑区仲町台 | 詳細を見る | |
マンション リヴィエールプラス(1LDK/8階) | |||||||
![]() | 12.9万円 7,700円 | なし 19.35万円 | 1LDK 49.59m2 | 築12年 | ブルーライン 阪東橋駅 徒歩8分 京急本線 黄金町駅 徒歩12分 JR京浜東北線 関内駅 徒歩20分 神奈川県横浜市南区浦舟町 | 詳細を見る | |
マンション グランビュー西谷(1SDK/1階) | |||||||
![]() | 11万円 4,000円 | 11万円 11万円 | 1SDK 50.54m2 | 築16年 | 相鉄本線 西谷駅 徒歩4分 相鉄本線 上星川駅 徒歩20分 相鉄本線 鶴ケ峰駅 徒歩26分 神奈川県横浜市保土ケ谷区西谷町 | 詳細を見る | |
アパート グラシューズムツミV(2LDK/2階) | |||||||
![]() | 10万円 6,000円 | なし 5万円 | 2LDK 54.3m2 | 築17年 | 相鉄本線 瀬谷駅 徒歩9分 相鉄本線 三ツ境駅 徒歩20分 相鉄本線 大和駅(神奈川) 徒歩37分 神奈川県横浜市瀬谷区相沢 | 詳細を見る | |








