賃貸マンション
京都市烏丸線 松ケ崎駅(京都) 徒歩10分 5階建 築30年の賃貸物件情報(3LDK/2階)
| 家賃 | 管理費等 | 敷金 | 礼金 | 間取り | 専有面積 |
|---|---|---|---|---|---|
| 11万円 | 7,500円 | 11万円 | 11万円 | 3LDK | 66.1m2 |
入居決定でお祝い金最大100,000円
Point
松ヶ崎旧とくゆうちん とってもオシャレな旧とくゆうちん。ポテンシャルの高さ
提供:株式会社 京都ライフ 北大路店(賃貸スモッカ経由)

詳細情報 京都市烏丸線 松ケ崎駅(京都) 徒歩10分 5階建 築30年
物件紹介
京都市烏丸線松ケ崎駅から徒歩10分にあり、駅近で通勤通学に便利なマンションです。
このお部屋は2階以上に位置しているので、通行人や周囲の住人からの視線が気になりにくく、防犯面でも安心です。
人気の角部屋で周囲の居住者の生活音も気になりにくく、また、フローリングのお部屋なのでお掃除もラクラク。キッチンはシステムキッチン仕様になっていますので、お料理好きの方にもぴったり。また、バス・トイレは別で、のんびりお風呂タイムも楽しめるでしょう。
通信設備面では、インターネット接続が可能です。また、BSアンテナもありますので、おうち時間も充実するでしょう(別途工事、契約料が必要な場合あり)。
建物にはエレベーターがついているので、重い荷物があっても安心。
このお部屋は2階以上に位置しているので、通行人や周囲の住人からの視線が気になりにくく、防犯面でも安心です。
人気の角部屋で周囲の居住者の生活音も気になりにくく、また、フローリングのお部屋なのでお掃除もラクラク。キッチンはシステムキッチン仕様になっていますので、お料理好きの方にもぴったり。また、バス・トイレは別で、のんびりお風呂タイムも楽しめるでしょう。
通信設備面では、インターネット接続が可能です。また、BSアンテナもありますので、おうち時間も充実するでしょう(別途工事、契約料が必要な場合あり)。
建物にはエレベーターがついているので、重い荷物があっても安心。
お金・契約の情報
※「-」と表示されているものは、実際は料金が発生するものもございます。詳細はお問い合わせください。
| 家賃 | 11万円 | 管理費・共益費 | 7,500円 |
|---|---|---|---|
| 敷金 | 11万円 | 礼金 | 11万円 |
| 入居決定でお祝い金最大100,000円 | |||
| 保証金 | - | 償却・敷引 | - |
| 住宅保険料 | 住宅保険料あり | 更新料 | - |
| 契約形態 | - | 契約期間 | 2年 |
| 入居・引渡期間 | 2026年02月中旬 | 現況 | 賃貸中 |
| 契約備考 | 更新料:無し 保証会社:利用必須 初回:月額賃料等の25%、更新時:1万円/1年 | ||
部屋の情報
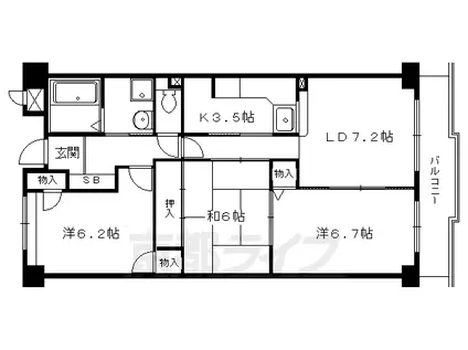
| 間取り | 3LDK | 専有面積 | 66.1m2 |
|---|---|---|---|
| 間取り詳細 | 洋室(6.7帖)、洋室(6.2帖)、和室(6帖)、LDK(10.7帖) | ||
| 所在階 / 向き | 2階 / 東 | バルコニー面積 | - |
| 水道 / ガス | ガス【都市】 | ||
| 設備 | バス・トイレ別、2階以上、追い焚き、インターネット対応、システムキッチン、エレベーター、角部屋、バルコニー、フローリング、BSアンテナ、洗濯機:室内 | ||
| 当社物件ID | 160222893 | ||
建物の情報
| 建物名 | 京都市烏丸線 松ケ崎駅(京都) 徒歩10分 5階建 築30年 | ||
|---|---|---|---|
| 所在地 | 京都府京都市左京区松ケ崎久土町 | ||
| 交通 | 京都市烏丸線 松ケ崎駅(京都) 徒歩10分 京都市烏丸線 北山駅(京都) 徒歩20分 | ||
| 階数 | 5階建 | 総戸数 | - |
| 築年月 | 1996年03月 / 築30年 | エレベーター | あり |
| 駐車場 | - | バイク置き場 | - |
| 駐輪場 | あり | 管理人/管理会社 | - |
| 建物種別 | マンション | 建物構造 | RC(鉄筋コンクリート) |
この部屋の取扱い不動産会社
| 会社名 | 株式会社 京都ライフ 北大路店(賃貸スモッカ経由) | ||
|---|---|---|---|
| 所在地 | 京都市北区小山上総町11 | 交通 | - |
| 営業時間 | - | 定休日 | - |
| 免許番号 | 京都府知事(11)第6353号 | 取引態様 | 仲介 |
| 不動産会社管理番号 | kyotolife_38712-201-22 | 当社管理番号 | 463 |
| 所属団体 | 京都府宅地建物取引業協会\n公益社団法人近畿地区不動産公正取引協議会 | ||
| 公正取引協議会 | 全国宅地建物取引業保証協会 | ||
| 取扱い物件情報 | 物件詳細へ | ||
※各種情報と現状に差異がある場合は、現状優先となります。問い合わせをすることで、より詳しい条件、情報を確認する事ができます。
提供:株式会社 京都ライフ 北大路店(賃貸スモッカ経由)
この物件が気になったら掲載期限まであと5日
京都市烏丸線 松ケ崎駅(京都) 徒歩10分 5階建 築30年に条件(家賃・エリア)が近い物件一覧
| 写真 | 家賃 管理費等 | 敷金 礼金 | 間取り 専有面積 | 築年数 | 最寄り駅 所在地 | キープ | 詳細 |
|---|---|---|---|---|---|---|---|
マンション 叡山電鉄 一乗寺駅 徒歩5分 築43年(3LDK/3階) | |||||||
![]() | 11.3万円 1.2万円 | 10万円 10万円 | 3LDK 64.9m2 | 築43年 | 叡山電鉄 一乗寺駅 徒歩5分 京阪電気鉄道鴨東線 出町柳駅 徒歩20分 京都府京都市左京区高野東開町 | 詳細を見る | |
マンション 京都市烏丸線 北大路駅 徒歩22分 築50年(ワンルーム/2階) | |||||||
![]() | 7万円 なし | 7万円 なし | ワンルーム 28.91m2 | 築50年 | 京都市烏丸線 北大路駅 徒歩22分 京都市烏丸線 北山駅(京都) 徒歩24分 京都府京都市北区大宮南椿原町 | 詳細を見る | |
一戸建て 京都市烏丸線 松ケ崎駅(京都) 徒歩10分 築67年(8DK) | |||||||
![]() | 15万円 なし | 30万円 18万円 | 8DK 184.68m2 | 築67年 | 京都市烏丸線 松ケ崎駅(京都) 徒歩10分 叡山電鉄 一乗寺駅 徒歩17分 京都府京都市左京区松ケ崎西桜木町 | 詳細を見る | |
マンション ビアンコ京都北白川(1K/2階) | |||||||
![]() | 7.4万円 6,000円 | なし 7.4万円 | 1K 24.9m2 | 新築 | 京阪電気鉄道鴨東線 出町柳駅 徒歩17分 京都府京都市左京区北白川西町 | 詳細を見る | |
アパート 京都市烏丸線 国際会館駅 徒歩7分 築18年(3LDK/1階) | |||||||
![]() | 15.2万円 3,000円 | 5万円 30万円 | 3LDK 79.68m2 | 築18年 | 京都市烏丸線 国際会館駅 徒歩7分 叡山電鉄 宝ケ池駅 徒歩7分 京都府京都市左京区上高野古川町 | 詳細を見る | |
一戸建て 叡山電鉄 一乗寺駅 徒歩7分 築31年(3LDK) | |||||||
![]() | 12万円 なし | 10万円 15万円 | 3LDK 80.73m2 | 築31年 | 叡山電鉄 一乗寺駅 徒歩7分 叡山電鉄 茶山・京都芸術大学駅 徒歩11分 京都府京都市左京区一乗寺中ノ田町 | 詳細を見る | |
マンション 近鉄京都線 小倉駅(京都) 徒歩3分 築36年(2LDK/3階) | |||||||
![]() | 7万円 1万円 | なし 3.5万円 | 2LDK 42.76m2 | 築36年 | 近鉄京都線 小倉駅(京都) 徒歩3分 近鉄京都線 伊勢田駅 徒歩13分 京都府宇治市小倉町 | 詳細を見る | |
アパート 京都市烏丸線 北大路駅 徒歩27分 築1年(2LDK/2階) | |||||||
![]() | 14.7万円 9,000円 | なし 14.7万円 | 2LDK 57.98m2 | 築1年 | 京都市烏丸線 北大路駅 徒歩27分 京都市烏丸線 北山駅(京都) 徒歩29分 京都府京都市北区大宮東小野堀町 | 詳細を見る | |









