賃貸マンション
S-RESIDENCE金山ALTANOなんでも乗りの賃貸物件情報(1K/4階)
| 家賃 | 管理費等 | 敷金 | 礼金 | 間取り | 専有面積 |
|---|---|---|---|---|---|
| 6.7万円 | 9,000円 | なし | なし | 1K | 24.64m2 |
入居決定でお祝い金最大100,000円
- 保証金
- -
- 償却・敷引
- -
- 築年数
- 築1年
- 所在階
- 4階
- 向き
- 南西
- 交通
- JR東海道本線 金山駅(愛知) 徒歩10分
地下鉄名城線 西高蔵駅 徒歩11分
地下鉄名港線 日比野駅(名古屋市営) 徒歩15分
- 所在地
- 愛知県名古屋市熱田区新尾頭
S-RESIDENCE金山ALTANOなんでも乗り
[地図を表示]
Point
★東海最大級店舗・取り扱い物件をご用意しております!ニッショー限定ならではのおすすめ物件も数多く御座います。是非今回のお部屋探しにご縁を頂けますと幸いです!お気軽にお問い合わせください★
提供:(株)ニッショー金山支店(SUUMO経由)

詳細情報 S-RESIDENCE金山ALTANOなんでも乗り
物件紹介
S-RESIDENCE金山ALTANOなんでも乗りはJR東海道本線金山駅から徒歩10分にあり、駅近で通勤通学に便利なマンションです。
このお部屋は2階以上に位置しているので、通行人や周囲の住人からの視線が気になりにくく、防犯面でも安心。インターホンにはTVモニタもついているため、相手の顔を確認してから来客対応することができます。
人気の南向きのお部屋。バス・トイレ別の仕様で、のんびりお風呂タイムも楽しめます。また、浴室乾燥機を使えば、雨の日でもお洗濯は問題ありません。
通信設備面では、インターネットが無料で使えるので、月々の出費を抑えられるのも魅力です。また、CATVにも対応しているので、おうち時間も充実するでしょう(別途工事、CATVの契約料等が必要な場合あり)。
共用部には宅配ボックスが設定されているので、不在の時にも荷物を受け取ることができます。また、ペット飼育の相談ができますので、あなたの大切な家族の一員も快適に暮らせるか、ぜひ確認してみてください。
このお部屋は2階以上に位置しているので、通行人や周囲の住人からの視線が気になりにくく、防犯面でも安心。インターホンにはTVモニタもついているため、相手の顔を確認してから来客対応することができます。
人気の南向きのお部屋。バス・トイレ別の仕様で、のんびりお風呂タイムも楽しめます。また、浴室乾燥機を使えば、雨の日でもお洗濯は問題ありません。
通信設備面では、インターネットが無料で使えるので、月々の出費を抑えられるのも魅力です。また、CATVにも対応しているので、おうち時間も充実するでしょう(別途工事、CATVの契約料等が必要な場合あり)。
共用部には宅配ボックスが設定されているので、不在の時にも荷物を受け取ることができます。また、ペット飼育の相談ができますので、あなたの大切な家族の一員も快適に暮らせるか、ぜひ確認してみてください。
お金・契約の情報
※「-」と表示されているものは、実際は料金が発生するものもございます。詳細はお問い合わせください。
| 家賃 | 6.7万円 | 管理費・共益費 | 9,000円 |
|---|---|---|---|
| 敷金 | なし | 礼金 | なし |
| 入居決定でお祝い金最大100,000円 | |||
| 保証金 | - | 償却・敷引 | - |
| 住宅保険料 | - | 更新料 | - |
| 保証会社利用 | 必須 | 保証会社名 | - |
| 保証会社費用 | - | 保証会社備考 | 保証会社利用必 近畿保証 初回保証料:総賃料の50% 1年更新:12,000円 近畿保証 初回保証料:総賃料の30% 1年更新:12,000円 法人契約(上場企業及びそれに準ずる企業)で、保証会社未加入の場合、敷金として賃料の1ヶ月分要 |
| 契約形態 | - | 契約期間 | - |
| 入居・引渡期間 | 即時 | 現況 | - |
| 入居可能条件 | ペット相談 | ||
| 契約備考 | 保証会社加入必須/火災保険加入必須/※短期解約違約金1年未満1ヶ月(賃料+共益費)/室内清掃費用解約時33000円(税込)/カギ交換費用解約時33000円(税込) 合計3.3万円(内訳:鍵交換代3.3万円) 更新料 賃料1.00ヶ月分 室内清掃費用 33000円 1K ペット相談 損保【1.8万円2年】 バストイレ別、バルコニー、エアコン、ガスコンロ対応、シャワー付洗面台、TVインターホン、浴室乾燥機、室内洗濯置、シューズボックス、温水洗浄便座、洗面所独立、2口コンロ、宅配ボックス、CATV、ペット相談、2沿線利用可、ネット使用料不要、2駅利用可、3駅以上利用可、3沿線以上利用可、駅徒歩10分以内、都市ガス | ||
部屋の情報
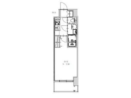
| 間取り | 1K | 専有面積 | 24.64m2 |
|---|---|---|---|
| 所在階 / 向き | 4階 / 南西 | バルコニー面積 | - |
| 水道 / ガス | - | ||
| 設備 | バス・トイレ別、2階以上、テレビドアホン、宅配ボックス、浴室乾燥機、インターネット対応、エアコン、温水洗浄便座、南向き、バルコニー、洗髪洗面化粧台、2口コンロ、コンロ:ガス、CATV、インターネット使用料無料、洗濯機:室内 | ||
| 当社物件ID | 160049310 | ||
建物の情報
| 建物名 | S-RESIDENCE金山ALTANOなんでも乗り | ||
|---|---|---|---|
| 所在地 | 愛知県名古屋市熱田区新尾頭 | ||
| 交通 | JR東海道本線 金山駅(愛知) 徒歩10分 地下鉄名城線 西高蔵駅 徒歩11分 地下鉄名港線 日比野駅(名古屋市営) 徒歩15分 | ||
| 階数 | 地下1地上10階建 | 総戸数 | 70戸 |
| 築年月 | 2025年07月 / 築1年 | エレベーター | - |
| 駐車場 | 空有 19500円 | バイク置き場 | - |
| 駐輪場 | - | 管理人/管理会社 | - |
| 周辺環境 | その他 日比野駅(その他)まで1133m その他 金山駅(その他)まで881m その他 西高蔵駅(その他)まで601m その他 三菱UFJ銀行金山支店(銀行)まで1160m その他 スギドラッグ 金山北店(ドラッグストア)まで1653m その他 カーマホームセンター 名古屋白金店(ホームセンター)まで2029m | ||
| 建物種別 | マンション | 建物構造 | RC(鉄筋コンクリート) |
この部屋の取扱い不動産会社
| 会社名 | (株)ニッショー金山支店(SUUMO経由) | ||
|---|---|---|---|
| 所在地 | 愛知県名古屋市熱田区金山町1-5-2クマダ77ビル2階 | 交通 | - |
| 営業時間 | 10:00~18:00 | 定休日 | 水曜定休(土日祝は営業) |
| 免許番号 | 国土交通大臣2018 | 取引態様 | 仲介 |
| 不動産会社管理番号 | 100463341112 | 当社管理番号 | 89 |
| 所属団体 | (公社)愛知県宅地建物取引業協会会員 | ||
| 公正取引協議会 | 東海不動産公正取引協議会加盟 | ||
| 取扱い物件情報 | 物件詳細へ | ||
※各種情報と現状に差異がある場合は、現状優先となります。問い合わせをすることで、より詳しい条件、情報を確認する事ができます。
提供:(株)ニッショー金山支店(SUUMO経由)
この物件が気になったら掲載期限まであと11日
S-RESIDENCE金山ALTANOなんでも乗りに条件(家賃・エリア)が近い物件一覧
| 写真 | 家賃 管理費等 | 敷金 礼金 | 間取り 専有面積 | 築年数 | 最寄り駅 所在地 | キープ | 詳細 |
|---|---|---|---|---|---|---|---|
マンション プレサンス東別院駅前(1K/9階) | |||||||
![]() | 6.27万円 1.03万円 | なし 7.3万円 | 1K 25.13m2 | 築5年 | 名古屋市名城線 東別院駅 徒歩2分 名古屋市名城線 金山駅(愛知) 徒歩10分 東海道本線 金山駅(愛知) 徒歩10分 愛知県名古屋市中区平和1丁目 | 詳細を見る | |
マンション プレサンス金山グリーンパークス(ワンルーム/8階) | |||||||
![]() | 5.45万円 9,500円 | なし 6.4万円 | ワンルーム 21.83m2 | 築17年 | 名古屋市名城線 東別院駅 徒歩3分 愛知県名古屋市中区平和1丁目 | 詳細を見る | |
アパート ESPRESSO新清洲(1LDK/2階) | |||||||
![]() | 8.6万円 4,000円 | なし 8.6万円 | 1LDK 50.59m2 | 築4年 | 名鉄名古屋本線 新清洲駅 徒歩4分 愛知県清須市新清洲3丁目 | 詳細を見る | |
マンション プレサンス東別院駅前Ⅱ(1K/2階) | |||||||
![]() | 6.033万円 7,670円 | なし 6.8万円 | 1K 23.6m2 | 築5年 | 名古屋市名城線 東別院駅 徒歩3分 愛知県名古屋市中区伊勢山1丁目 | 詳細を見る | |
マンション S-RESIDENCE東別院(1K/13階) | |||||||
![]() | 6.85万円 7,000円 | なし なし | 1K 25.05m2 | 築4年 | 名古屋市名城線 東別院駅 徒歩5分 名古屋市鶴舞線 上前津駅 徒歩12分 名古屋市名城線 上前津駅 徒歩12分 愛知県名古屋市中区大井町 | 詳細を見る | |
アパート ESPRESSO 清須(ワンルーム/1階) | |||||||
![]() | 6.5万円 4,000円 | 6.5万円 6.5万円 | ワンルーム 34.3m2 | 築8年 | JR東海交通城北線 尾張星の宮駅 徒歩3分 東海道本線 枇杷島駅 徒歩21分 愛知県清須市寺野美鈴 | 詳細を見る | |
マンション メイクスWアート上前津V(1DK/9階) | |||||||
![]() | 7.33万円 8,000円 | なし なし | 1DK 26.86m2 | 築2年 | 地下鉄名城線 東別院駅 徒歩9分 地下鉄鶴舞線 上前津駅 徒歩10分 名鉄名古屋本線 金山駅(愛知) 徒歩14分 愛知県名古屋市中区橘 | 詳細を見る | |



/105x80-f1-q70-wp1)

/105x80-f1-q70-wp1)


