賃貸マンション
センターコート井の頭公園の賃貸物件情報(2SLK/2階)
| 家賃 | 管理費等 | 敷金 | 礼金 | 間取り | 専有面積 |
|---|---|---|---|---|---|
| 14.2万円 | 8,000円 | 14.2万円 | なし | 2SLK | 64.96m2 |
入居決定でお祝い金最大100,000円
- 保証金
- -
- 償却・敷引
- -
- 築年数
- 築37年
- 所在階
- 2階
- 向き
- 南
Point
杉並区・中野区・練馬区・武蔵野市・三鷹市周辺のエリアの情報が豊富にございます。ぜひお問い合わせをお待ちしております。
提供:(株)タウンハウジング東京 千歳烏山店(SUUMO経由)

詳細情報 センターコート井の頭公園
物件紹介
センターコート井の頭公園は京王井の頭線井の頭公園駅から徒歩24分にあるマンションです。
このお部屋は2階以上に位置しているので、通行人や周囲の住人からの視線が気になりにくく、防犯面でも安心。インターホンにはTVモニタもついているため、相手の顔を確認してから来客対応することができます。
人気の南向き・フローリングのお部屋。角部屋でもあるため、周囲の居住者の生活音も気になりにくい場所です。バス・トイレ別の仕様で、のんびりお風呂タイムも楽しめます。
通信設備面では、インターネット接続が可能です。また、BSアンテナがありCATVにも対応しているので、おうち時間も充実するでしょう(別途工事、契約料が必要な場合あり)。
このお部屋は2階以上に位置しているので、通行人や周囲の住人からの視線が気になりにくく、防犯面でも安心。インターホンにはTVモニタもついているため、相手の顔を確認してから来客対応することができます。
人気の南向き・フローリングのお部屋。角部屋でもあるため、周囲の居住者の生活音も気になりにくい場所です。バス・トイレ別の仕様で、のんびりお風呂タイムも楽しめます。
通信設備面では、インターネット接続が可能です。また、BSアンテナがありCATVにも対応しているので、おうち時間も充実するでしょう(別途工事、契約料が必要な場合あり)。
お金・契約の情報
※「-」と表示されているものは、実際は料金が発生するものもございます。詳細はお問い合わせください。
| 家賃 | 14.2万円 | 管理費・共益費 | 8,000円 |
|---|---|---|---|
| 敷金 | 14.2万円 | 礼金 | なし |
| 入居決定でお祝い金最大100,000円 | |||
| 保証金 | - | 償却・敷引 | - |
| 住宅保険料 | - | 更新料 | - |
| 保証会社利用 | 必須 | 保証会社名 | - |
| 保証会社費用 | - | 保証会社備考 | 保証会社利用必 賃貸保証料:0.50ヶ月 Casa 初回50% 翌年1万円/年 |
| 契約形態 | - | 契約期間 | - |
| 入居・引渡期間 | 即時 | 現況 | - |
| 契約備考 | ☆お部屋探しはタウンハウジングへ☆ 合計2.2万円(内訳:鍵交換代:22000円) 更新料新賃料(ヶ月):1.00ヶ月 2SLK 法人希望/二人入居可 普通借家2年 損保【2万円2年】 バストイレ別、バルコニー、エアコン、ガスコンロ対応、クロゼット、フローリング、シャワー付洗面台、TVインターホン、室内洗濯置、陽当り良好、シューズボックス、南向き、角住戸、脱衣所、洗面所独立、洗面化粧台、2口コンロ、駐輪場、押入、CATV、即入居可、礼金不要、閑静な住宅地、独立型キッチン、振分、保証人不要、敷金1ヶ月、CATVインターネット、二人入居相談、玄関ホール、2沿線利用可、駅まで平坦、緑豊かな住宅地、保証金不要、クロゼット2ヶ所、南面リビング、一部フローリング、始発駅、2駅利用可、敷地内ごみ置き場、都市ガス、洗面所にドア、南面バルコニー、BS、高速ネット対応、IT重説対応物件、初期費用カード決済可 | ||
部屋の情報
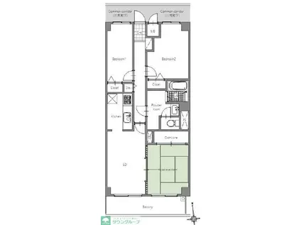
| 間取り | 2SLK | 専有面積 | 64.96m2 |
|---|---|---|---|
| 所在階 / 向き | 2階 / 南 | バルコニー面積 | - |
| 水道 / ガス | - | ||
| 設備 | バス・トイレ別、2階以上、テレビドアホン、インターネット対応、エアコン、南向き、角部屋、バルコニー、フローリング、洗髪洗面化粧台、2口コンロ、コンロ:ガス、CATV、BSアンテナ、洗濯機:室内 | ||
| 当社物件ID | 43143847 | ||
建物の情報
| 建物名 | センターコート井の頭公園 | ||
|---|---|---|---|
| 所在地 | 東京都三鷹市下連雀 | ||
| 交通 | 京王井の頭線 井の頭公園駅 徒歩24分 JR総武線 吉祥寺駅 徒歩24分 JR中央線 三鷹駅 徒歩27分 | ||
| 階数 | 4階建 | 総戸数 | 28戸 |
| 築年月 | 1989年03月 / 築37年 | エレベーター | - |
| 駐車場 | なし | バイク置き場 | - |
| 駐輪場 | あり | 管理人/管理会社 | - |
| 周辺環境 | その他 西友(スーパー)まで750m その他 セブンイレブン(コンビニ)まで260m その他 あまいけ(スーパー)まで750m その他 ファミリーマート(コンビニ)まで500m その他 ウェルパーク(ドラッグストア)まで400m その他 マクドナルド(飲食店)まで1400m | ||
| 建物種別 | マンション | 建物構造 | RC(鉄筋コンクリート) |
この部屋の取扱い不動産会社
| 会社名 | (株)タウンハウジング東京 千歳烏山店(SUUMO経由) | ||
|---|---|---|---|
| 所在地 | 東京都世田谷区南烏山6-5-15 中央駅前ビル1階 | 交通 | - |
| 営業時間 | AM10:00~PM7:00 | 定休日 | 水曜日 |
| 免許番号 | 国土交通大臣9926 | 取引態様 | 仲介 |
| 不動産会社管理番号 | 100482114901 | 当社管理番号 | 89 |
| 所属団体 | (公社)東京都宅地建物取引業協会会員 | ||
| 公正取引協議会 | (公社)首都圏不動産公正取引協議会加盟 | ||
| 取扱い物件情報 | 物件詳細へ | ||
※各種情報と現状に差異がある場合は、現状優先となります。問い合わせをすることで、より詳しい条件、情報を確認する事ができます。
提供:(株)タウンハウジング東京 千歳烏山店(SUUMO経由)
この物件が気になったら掲載期限まであと10日
センターコート井の頭公園に条件(家賃・エリア)が近い物件一覧
| 写真 | 家賃 管理費等 | 敷金 礼金 | 間取り 専有面積 | 築年数 | 最寄り駅 所在地 | キープ | 詳細 |
|---|---|---|---|---|---|---|---|
マンション オーパスホームズ武蔵小金井(2LDK/1階) | |||||||
![]() | 19.4万円 2万円 | なし なし | 2LDK 50.63m2 | 築5年 | JR中央線 武蔵小金井駅 徒歩9分 東京都小金井市本町 | 詳細を見る | |
アパート ブランコス二子玉川(ワンルーム/1階) | |||||||
![]() | 9.8万円 4,000円 | なし なし | ワンルーム 28.52m2 | 築10年 | 東急大井町線 上野毛駅 徒歩16分 東急大井町線 等々力駅 徒歩16分 東京都世田谷区野毛2丁目 | 詳細を見る | |
マンション ジョイフル祐天寺(ワンルーム/3階) | |||||||
![]() | 9.3万円 1.1万円 | なし 9.3万円 | ワンルーム 18.05m2 | 築35年 | 東急東横線 祐天寺駅 徒歩8分 東急東横線 学芸大学駅 徒歩15分 東急田園都市線 池尻大橋駅 徒歩20分 東京都世田谷区下馬 | 詳細を見る | |
マンション コラットII(1K/2階) | |||||||
![]() | 9.9万円 5,500円 | なし 9.9万円 | 1K 20.29m2 | 築9年 | 小田急線 祖師ケ谷大蔵駅 徒歩20分 小田急線 千歳船橋駅 徒歩26分 小田急線 成城学園前駅 徒歩28分 東京都世田谷区大蔵 | 詳細を見る | |
アパート グリーンハイツ(2DK/1階) | |||||||
![]() | 9.7万円 3,000円 | 9.7万円 なし | 2DK 43m2 | 築34年 | 東京都三鷹市下連雀 | 詳細を見る | |
アパート アイビーハウス(1DK/2階) | |||||||
![]() | 9万円 なし | 9万円 9万円 | 1DK 27.27m2 | 築29年 | 東京地下鉄丸ノ内線 南阿佐ケ谷駅 徒歩4分 東京都杉並区成田東4丁目 | 詳細を見る | |
マンション エスポワール善福寺(3LDK/4階) | |||||||
![]() | 16.8万円 8,000円 | 16.8万円 16.8万円 | 3LDK 65.22m2 | 築35年 | JR中央線 西荻窪駅 徒歩13分 西武新宿線 上井草駅 徒歩22分 JR中央線 荻窪駅 徒歩25分 東京都杉並区善福寺 | 詳細を見る | |
マンション シルフィッド(2LDK/5階) | |||||||
![]() | 16.6万円 7,500円 | なし 33.2万円 | 2LDK 51.76m2 | 築10年 | 東京都三鷹市下連雀6丁目 | 詳細を見る | |








