賃貸マンション
アーベイン潮見の賃貸物件情報(2LDK/3階)
| 家賃 | 管理費等 | 敷金 | 礼金 | 間取り | 専有面積 |
|---|---|---|---|---|---|
| 8.9万円 | 4,000円 | なし | 8.9万円 | 2LDK | 60.14m2 |
入居決定でお祝い金最大100,000円
Point
デザイナーズ賃貸マンション!インターネット無料!!
提供:アパマンショップ宮崎市役所前店

詳細情報 アーベイン潮見
物件紹介
アーベイン潮見は日南線宮崎駅から徒歩27分にあるマンションです。
このお部屋は2階以上に位置しているので、通行人や周囲の住人からの視線が気になりにくく、防犯面でも安心。建物のエントランスはオートロックがついており、インターホンにはTVモニタもついているため、相手の顔を確認してから来客対応することができます。
おしゃれなデザイナーズ物件!人気の南向き・フローリングのお部屋。角部屋でもあるため、周囲の居住者の生活音も気になりにくい場所です。室内にはウォークインクローゼットがありますので、たくさんの荷物も効率的に収納ができます。キッチンはシステムキッチン仕様になっていますので、お料理好きの方にもぴったり。バス・トイレは別なので、のんびりお風呂タイムも楽しめるでしょう。また、雨の日でも浴室乾燥機を使えば、お洗濯も問題ありません。
通信設備面では、インターネットが無料で使えるので、月々の出費を抑えられるのも魅力です(別途工事等が必要な場合あり)。
建物にはエレベーターがついているので、重い荷物があっても安心。共用部には宅配ボックスが設定されているので、不在の時にも荷物を受け取ることができます。
このお部屋は2階以上に位置しているので、通行人や周囲の住人からの視線が気になりにくく、防犯面でも安心。建物のエントランスはオートロックがついており、インターホンにはTVモニタもついているため、相手の顔を確認してから来客対応することができます。
おしゃれなデザイナーズ物件!人気の南向き・フローリングのお部屋。角部屋でもあるため、周囲の居住者の生活音も気になりにくい場所です。室内にはウォークインクローゼットがありますので、たくさんの荷物も効率的に収納ができます。キッチンはシステムキッチン仕様になっていますので、お料理好きの方にもぴったり。バス・トイレは別なので、のんびりお風呂タイムも楽しめるでしょう。また、雨の日でも浴室乾燥機を使えば、お洗濯も問題ありません。
通信設備面では、インターネットが無料で使えるので、月々の出費を抑えられるのも魅力です(別途工事等が必要な場合あり)。
建物にはエレベーターがついているので、重い荷物があっても安心。共用部には宅配ボックスが設定されているので、不在の時にも荷物を受け取ることができます。
お金・契約の情報
※「-」と表示されているものは、実際は料金が発生するものもございます。詳細はお問い合わせください。
| 家賃 | 8.9万円 | 管理費・共益費 | 4,000円 |
|---|---|---|---|
| 敷金 | なし | 礼金 | 8.9万円 |
| 入居決定でお祝い金最大100,000円 | |||
| 保証金 | - | 償却・敷引 | - |
| 住宅保険料 | 2.15万円(2年) | 更新料 | - |
| 保証会社利用 | 必須 | 保証会社名 | ジェイリース |
| 保証会社費用 | - | 保証会社備考 | (口座振替)初回保証料:総額家賃の50%/月額保証料:800円(クレジット決済)初回保証料:総額家賃の50%/月額保証料:総額家賃の3% |
| 契約形態 | - | 契約期間 | 2年 |
| 入居・引渡期間 | 相談 | 現況 | - |
| 入居可能条件 | 2人入居可 | ||
| 契約備考 | 衛生管理費 550円 | ||
部屋の情報
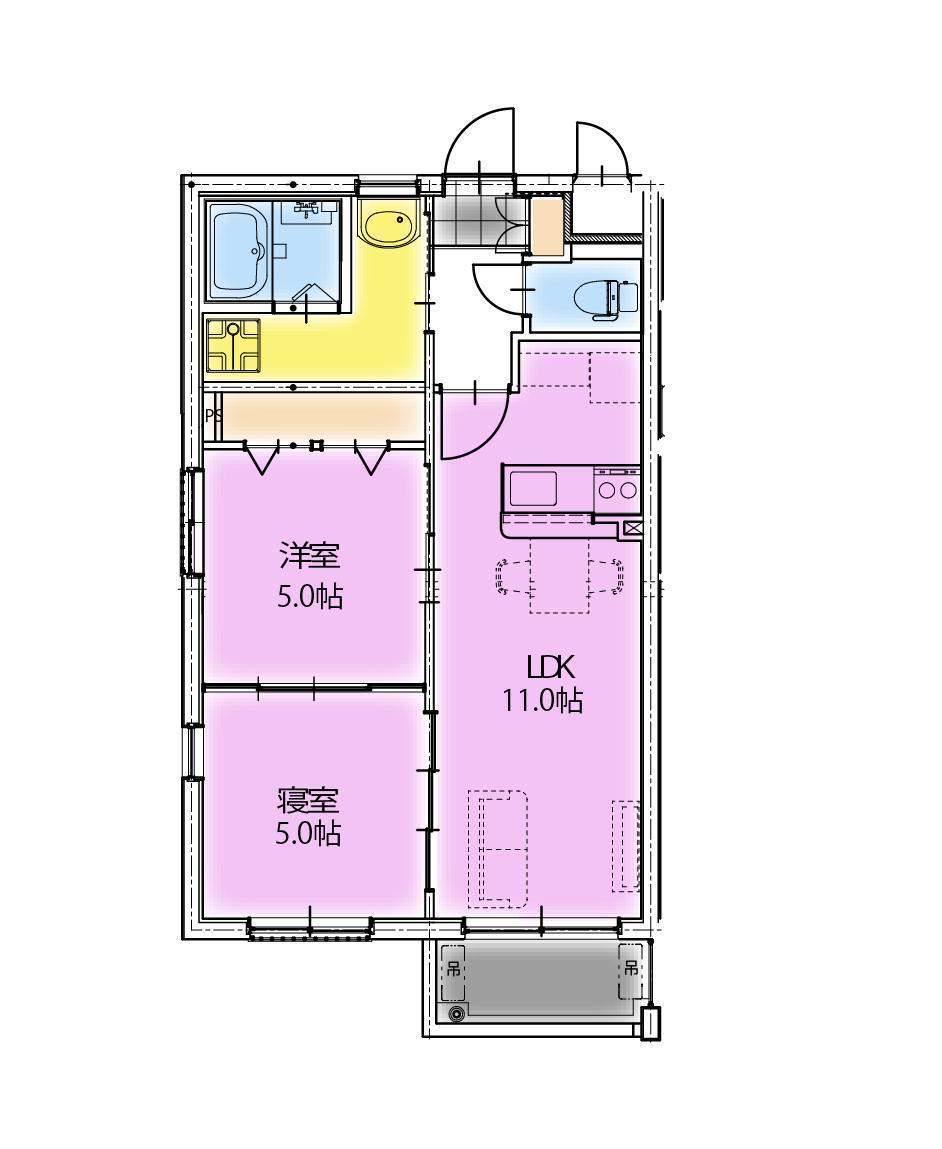
| 間取り | 2LDK | 専有面積 | 60.14m2 |
|---|---|---|---|
| 間取り詳細 | LDK(13.4帖)、洋室(5.8帖)、洋室(6.5帖) | ||
| 所在階 / 向き | 3階 / 南西 | バルコニー面積 | - |
| 水道 / ガス | - | ||
| 設備 | バス・トイレ別、オートロック、テレビドアホン、宅配ボックス、浴室乾燥機、ウォークインクローゼット、追い焚き、インターネット対応、エレベーター、温水洗浄便座、バルコニー、フローリング、デザイナーズ、インターネット使用料無料、シャワー、給湯、冷房、洗濯機:室内、閑静な住宅街 | ||
| 当社物件ID | 159824129 | ||
建物の情報
| 建物名 | アーベイン潮見 | ||
|---|---|---|---|
| 所在地 | 宮崎県宮崎市潮見町 | ||
| 交通 | 日南線 宮崎駅 徒歩27分 | ||
| 階数 | 4階建 | 総戸数 | 16戸 |
| 築年月 | 2025年11月 / 築1年 | エレベーター | あり |
| 駐車場 | 空有 7,700円/月 普通車7,700円、軽5,500円 | バイク置き場 | - |
| 駐輪場 | あり | 管理人/管理会社 | - |
| 周辺環境 | 小学校 潮見小学校 徒歩3分(227m) 保育園 潮見保育園 徒歩8分(597m) 病院 とごえ歯科医院 徒歩7分(532m) その他 セブンイレブン 徒歩5分(394m) その他 ファミリーマート 徒歩7分(531m) その他 WASHハウス宮崎中西店 徒歩8分(579m) その他 ショッピングのだ出来島店 徒歩8分(612m) その他 ディスカウントドラッグコスモス曽師店 徒歩9分(697m) | ||
| 建物種別 | マンション | 建物構造 | RC(鉄筋コンクリート) |
この部屋の取扱い不動産会社
| 会社名 | アパマンショップ宮崎市役所前店 | ||
|---|---|---|---|
| 所在地 | 宮崎県宮崎市橘通東1丁目 5-8 | 交通 | 日豊本線宮崎から徒歩25分 |
| 営業時間 | 10:00〜19:00(毎週火曜日(祝日の場合営業)) | 定休日 | 火曜日 |
| 免許番号 | 宮崎県知事(8)3636 | 取引態様 | 仲介 |
| 不動産会社管理番号 | 105246381 | 当社管理番号 | 4 |
| 所属団体 | (一社)宮崎県宅地建物取引業協会 | ||
| 公正取引協議会 | (一社) 九州不動産公正取引協議会加盟 | ||
| 取扱い物件情報 | 物件詳細へ | ||
※各種情報と現状に差異がある場合は、現状優先となります。問い合わせをすることで、より詳しい条件、情報を確認する事ができます。
提供:アパマンショップ宮崎市役所前店
この物件が気になったら掲載期限まであと13日
アーベイン潮見に条件(家賃・エリア)が近い物件一覧
| 写真 | 家賃 管理費等 | 敷金 礼金 | 間取り 専有面積 | 築年数 | 最寄り駅 所在地 | キープ | 詳細 |
|---|---|---|---|---|---|---|---|
アパート 宮崎県宮崎市 新築(1LDK/1階) | |||||||
![]() | 6.9万円 4,000円 | 6.9万円 なし | 1LDK 42.98m2 | 新築 | 宮崎県宮崎市大工3丁目 | 詳細を見る | |
マンション リージングマンション(2DK/2階) | |||||||
![]() | 6.2万円 なし | なし 6.2万円 | 2DK 58.59m2 | 築22年 | 日豊本線 加納駅(宮崎) 徒歩13分 宮崎県宮崎市大字本郷北方 | 詳細を見る | |
アパート アゼリアガーデン(1LDK/1階) | |||||||
![]() | 5.35万円 2,900円 | なし 5.35万円 | 1LDK 50.14m2 | 築3年 | 宮崎県北諸県郡三股町大字樺山 | 詳細を見る | |
アパート AKHC(1DK/3階) | |||||||
![]() | 6.5万円 3,000円 | 6.5万円 6.5万円 | 1DK 34.62m2 | 築7年 | JR日豊本線 宮崎駅 徒歩7分 宮崎県宮崎市堀川町 | 詳細を見る | |
マンション リバティーコーポⅡ(1LDK/1階) | |||||||
![]() | 5.4万円 なし | 8.1万円 なし | 1LDK 42.84m2 | 築17年 | JR日豊本線 宮崎駅 徒歩25分 宮崎県宮崎市大橋 | 詳細を見る | |
アパート ベルオリーブ(1LDK/2階) | |||||||
![]() | 6.5万円 2,900円 | なし 6.5万円 | 1LDK 50.74m2 | 築1年 | 宮崎県宮崎市京塚1丁目 | 詳細を見る | |
アパート JR日豊本線 宮崎駅 徒歩8分 築24年(ワンルーム/6階) | |||||||
![]() | 5.5万円 なし | 5.5万円 なし | ワンルーム 31.59m2 | 築24年 | JR日豊本線 宮崎駅 徒歩8分 宮崎県宮崎市高千穂通 | 詳細を見る | |
マンション AKHC(1DK/3階) | |||||||
![]() | 6.5万円 3,000円 | 6.5万円 6.5万円 | 1DK 34m2 | 築8年 | JR日豊本線 宮崎駅 徒歩15分 宮崎県宮崎市堀川町 | 詳細を見る | |









