賃貸マンション
秀和溜池山王レジデンスの賃貸物件情報(2LDK/11階)
| 家賃 | 管理費等 | 敷金 | 礼金 | 間取り | 専有面積 |
|---|---|---|---|---|---|
| 36万円 | なし | 36万円 | 36万円 | 2LDK | 47.73m2 |
入居決定でお祝い金最大100,000円
- 保証金
- -
- 償却・敷引
- -
- 築年数
- 築28年
- 所在階
- 11階
- 向き
- 南西
Point
【現地待ち合わせ・オンライン内見】もご対応致します★インターネット上の物件はほぼ全てご案内可能ですのでそちらも併せてお申しつけ下さい★初期費用カード決済可◎アクセス良好な分譲マンション!
提供:(株)ランドハウジング(SUUMO経由)

詳細情報 秀和溜池山王レジデンス
物件紹介
秀和溜池山王レジデンスは東京メトロ南北線溜池山王駅から徒歩4分にあり、駅近で通勤通学に便利なマンションです。
このお部屋は2階以上に位置しているので、通行人や周囲の住人からの視線が気になりにくく、防犯面でも安心。建物のエントランスはオートロックがついており、インターホンにはTVモニタもついているため、相手の顔を確認してから来客対応することができます。
人気の南向き・フローリングのお部屋。角部屋でもあるため、周囲の居住者の生活音も気になりにくい場所です。キッチンはシステムキッチン仕様になっていますので、お料理好きの方にもぴったり。
通信設備面ではCATVに対応しているので、おうち時間も充実するでしょう(別途工事、契約料が必要な場合あり)。
建物にはエレベーターがついているので、重い荷物があっても安心。共用部には宅配ボックスが設定されているので、不在の時にも荷物を受け取ることができます。
このお部屋は2階以上に位置しているので、通行人や周囲の住人からの視線が気になりにくく、防犯面でも安心。建物のエントランスはオートロックがついており、インターホンにはTVモニタもついているため、相手の顔を確認してから来客対応することができます。
人気の南向き・フローリングのお部屋。角部屋でもあるため、周囲の居住者の生活音も気になりにくい場所です。キッチンはシステムキッチン仕様になっていますので、お料理好きの方にもぴったり。
通信設備面ではCATVに対応しているので、おうち時間も充実するでしょう(別途工事、契約料が必要な場合あり)。
建物にはエレベーターがついているので、重い荷物があっても安心。共用部には宅配ボックスが設定されているので、不在の時にも荷物を受け取ることができます。
お金・契約の情報
※「-」と表示されているものは、実際は料金が発生するものもございます。詳細はお問い合わせください。
| 家賃 | 36万円 | 管理費・共益費 | なし |
|---|---|---|---|
| 敷金 | 36万円 | 礼金 | 36万円 |
| 入居決定でお祝い金最大100,000円 | |||
| 保証金 | - | 償却・敷引 | - |
| 住宅保険料 | - | 更新料 | - |
| 保証会社利用 | 必須 | 保証会社名 | - |
| 保証会社費用 | - | 保証会社備考 | 保証会社利用必 エルズサポート株式会社 詳細はお問合せください |
| 契約形態 | 定期借家 | 契約期間 | 2年 |
| 入居・引渡期間 | - | 現況 | - |
| 契約備考 | 2LDK 定期借家2年 損保【2.15万円2年】 バルコニー、エアコン、クロゼット、フローリング、TVインターホン、オートロック、室内洗濯置、シューズボックス、システムキッチン、南向き、追焚機能浴室、角住戸、温水洗浄便座、エレベーター、洗面所独立、駐輪場、宅配ボックス、CATV、外壁タイル張り、3口以上コンロ、分譲賃貸、グリル付、振分、3面採光、2沿線利用可、駅徒歩5分以内、駅徒歩10分以内、南西向き、都市ガス、初期費用カード決済可 入居日:'26年3月上旬 | ||
部屋の情報
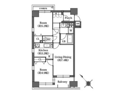
| 間取り | 2LDK | 専有面積 | 47.73m2 |
|---|---|---|---|
| 所在階 / 向き | 11階 / 南西 | バルコニー面積 | 6m2 |
| 水道 / ガス | - | ||
| 設備 | 2階以上、オートロック、テレビドアホン、宅配ボックス、追い焚き、システムキッチン、エアコン、エレベーター、温水洗浄便座、南向き、角部屋、バルコニー、フローリング、洗髪洗面化粧台、2口コンロ、CATV、洗濯機:室内 | ||
| 当社物件ID | 20234888 | ||
建物の情報
| 建物名 | 秀和溜池山王レジデンス | ||
|---|---|---|---|
| 所在地 | 東京都港区赤坂 | ||
| 交通 | 東京メトロ南北線 溜池山王駅 徒歩4分 東京メトロ南北線 六本木一丁目駅 徒歩5分 東京メトロ千代田線 赤坂駅(東京) 徒歩6分 | ||
| 階数 | 12階建 | 総戸数 | - |
| 築年月 | 1998年10月 / 築28年 | エレベーター | あり |
| 駐車場 | なし | バイク置き場 | - |
| 駐輪場 | あり | 管理人/管理会社 | - |
| 周辺環境 | その他 セブン-イレブン 港区赤坂駅南店(コンビニ)まで240m その他 成城石井 赤坂アークヒルズ店(スーパー)まで320m その他 ココカラファイン 赤坂ニ丁目店(ドラッグストア)まで160m その他 アーク森ビル内郵便局(郵便局)まで480m | ||
| 建物種別 | マンション | 建物構造 | SRC(鉄骨鉄筋コンクリート) |
この部屋の取扱い不動産会社
| 会社名 | (株)ランドハウジング(SUUMO経由) | ||
|---|---|---|---|
| 所在地 | 東京都杉並区永福4-1-4 | 交通 | - |
| 営業時間 | 10:00~18:00 | 定休日 | 火・水曜日 |
| 免許番号 | 東京都知事72092 | 取引態様 | 仲介 |
| 不動産会社管理番号 | 100482560543 | 当社管理番号 | 89 |
| 所属団体 | (公社)東京都宅地建物取引業協会会員 | ||
| 公正取引協議会 | (公社)首都圏不動産公正取引協議会加盟 | ||
| 取扱い物件情報 | 物件詳細へ | ||
※各種情報と現状に差異がある場合は、現状優先となります。問い合わせをすることで、より詳しい条件、情報を確認する事ができます。
提供:(株)ランドハウジング(SUUMO経由)
この物件が気になったら掲載期限まであと10日
秀和溜池山王レジデンスに条件(家賃・エリア)が近い物件一覧
| 写真 | 家賃 管理費等 | 敷金 礼金 | 間取り 専有面積 | 築年数 | 最寄り駅 所在地 | キープ | 詳細 |
|---|---|---|---|---|---|---|---|
マンション コスモグラン勝どき(2LDK/4階) | |||||||
![]() | 26.2万円 8,100円 | 26.2万円 26.2万円 | 2LDK 55.65m2 | 築13年 | 都営大江戸線 勝どき駅 徒歩2分 都営大江戸線 月島駅 徒歩11分 都営大江戸線 築地市場駅 徒歩22分 東京都中央区勝どき | 詳細を見る | |
マンション LOG銀座東/ログ銀座東(1LDK/2階) | |||||||
![]() | 23.5万円 1.5万円 | なし なし | 1LDK 40.67m2 | 築10年 | 東京メトロ有楽町線 新富町駅(東京) 徒歩2分 東京メトロ日比谷線 築地駅 徒歩7分 都営浅草線 宝町駅 徒歩11分 東京都中央区新富 | 詳細を見る | |
マンション ハイツ魚籃坂(2LDK/7階) | |||||||
![]() | 39.7万円 2.8万円 | 39.7万円 39.7万円 | 2LDK 51.89m2 | 築55年 | 都営三田線 白金高輪駅 徒歩4分 都営浅草線 泉岳寺駅 徒歩12分 JR山手線 田町駅(東京) 徒歩17分 東京都港区三田 | 詳細を見る | |
マンション URBAN BREEZE 恵比寿(1LDK/7階) | |||||||
![]() | 23.6万円 1.5万円 | 23.6万円 なし | 1LDK 33.62m2 | 築1年 | JR山手線 恵比寿駅 徒歩7分 JR山手線 渋谷駅 徒歩10分 東急東横線 代官山駅 徒歩10分 東京都渋谷区東 | 詳細を見る | |
マンション 勝どき ザ・タワー(1LDK/4階) | |||||||
![]() | 23万円 2万円 | 23万円 23万円 | 1LDK 48.23m2 | 築10年 | 都営大江戸線 勝どき駅 徒歩6分 東京メトロ有楽町線 月島駅 徒歩15分 東京メトロ日比谷線 築地駅 徒歩21分 東京都中央区勝どき | 詳細を見る | |
マンション ザ・パークハビオ代々木(1LDK/3階) | |||||||
![]() | 23.2万円 2万円 | 23.2万円 23.2万円 | 1LDK 33.11m2 | 築1年 | 小田急線 参宮橋駅 徒歩6分 小田急線 南新宿駅 徒歩6分 JR山手線 代々木駅 徒歩8分 東京都渋谷区代々木 | 詳細を見る | |
マンション ASPRIME八丁堀(2LDK/8階) | |||||||
![]() | 24.3万円 1.5万円 | 24.3万円 24.3万円 | 2LDK 45.08m2 | 築7年 | 東京メトロ日比谷線 八丁堀駅(東京) 徒歩4分 都営浅草線 宝町駅 徒歩4分 東京メトロ銀座線 京橋駅(東京) 徒歩7分 東京都中央区八丁堀 | 詳細を見る | |
マンション アーバンブリーズ恵比寿(1LDK/10階) | |||||||
![]() | 24.1万円 1.5万円 | 24.1万円 なし | 1LDK 33.62m2 | 築1年 | JR山手線 恵比寿駅 徒歩7分 JR山手線 渋谷駅 徒歩10分 東急東横線 代官山駅 徒歩10分 東京都渋谷区東 | 詳細を見る | |









