賃貸アパート
レオパレスコルレオニスⅡの賃貸物件情報(1K/2階)
| 家賃 | 管理費等 | 敷金 | 礼金 | 間取り | 専有面積 |
|---|---|---|---|---|---|
| 5万円 | 5,000円 | なし | 5万円 | 1K | 28.02m2 |
入居決定でお祝い金最大100,000円
Point
まずはお問い合わせ!
不動産会社は街のプロ、あなたに合った物件がきっと見つかります。
提供:アパマンショップ川越市駅店

詳細情報 レオパレスコルレオニスⅡ
物件紹介
レオパレスコルレオニスⅡは川越線笠幡駅から徒歩12分にあるアパートです。
このお部屋は2階以上に位置しているので、通行人や周囲の住人からの視線が気になりにくく、防犯面でも安心。インターホンにはTVモニタもついているため、相手の顔を確認してから来客対応することができます。
キッチンはシステムキッチン仕様になっていますので、お料理好きの方にもぴったり。バス・トイレは別なので、のんびりお風呂タイムも楽しめるでしょう。また、雨の日でも浴室乾燥機を使えば、お洗濯も問題ありません。
通信設備面では、インターネットが無料で使えるので、月々の出費を抑えられるのも魅力です(別途工事等が必要な場合あり)。
このお部屋は2階以上に位置しているので、通行人や周囲の住人からの視線が気になりにくく、防犯面でも安心。インターホンにはTVモニタもついているため、相手の顔を確認してから来客対応することができます。
キッチンはシステムキッチン仕様になっていますので、お料理好きの方にもぴったり。バス・トイレは別なので、のんびりお風呂タイムも楽しめるでしょう。また、雨の日でも浴室乾燥機を使えば、お洗濯も問題ありません。
通信設備面では、インターネットが無料で使えるので、月々の出費を抑えられるのも魅力です(別途工事等が必要な場合あり)。
お金・契約の情報
※「-」と表示されているものは、実際は料金が発生するものもございます。詳細はお問い合わせください。
| 家賃 | 5万円 | 管理費・共益費 | 5,000円 |
|---|---|---|---|
| 敷金 | なし | 礼金 | 5万円 |
| 入居決定でお祝い金最大100,000円 | |||
| 保証金 | - | 償却・敷引 | - |
| 住宅保険料 | 1円 | 更新料 | - |
| その他費用 | 抗菌施工(任意):2.376万円 | ||
| 保証会社利用 | 必須 | 保証会社名 | - |
| 保証会社費用 | - | 保証会社備考 | 保証料:55190円(契約内容により100〜120%で変動有)※記載金額は120%の場合 |
| 契約形態 | - | 契約期間 | - |
| 入居・引渡期間 | 即時 | 現況 | - |
| 契約備考 | 鍵交換費10260円、抗菌施工(任意)17712円から23328円(税込)、環境維持費540円/月 月額(環境維持費 550円) 鍵交換費用:16500 室内清掃費用:41800 その他設備/条件:室内洗濯機置き場、クローゼット、シューズボックス | ||
部屋の情報
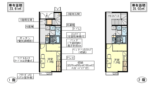
| 間取り | 1K | 専有面積 | 28.02m2 |
|---|---|---|---|
| 所在階 / 向き | 2階 / - | バルコニー面積 | - |
| 水道 / ガス | - | ||
| 設備 | バス・トイレ別、光ファイバー対応、エアコン、2口コンロ、コンロ:IH、シャワー | ||
| 当社物件ID | 3387929 | ||
建物の情報
| 建物名 | レオパレスコルレオニスⅡ | ||
|---|---|---|---|
| 所在地 | 埼玉県川越市大字笠幡 | ||
| 交通 | 川越線 笠幡駅 徒歩12分 | ||
| 階数 | 2階建 | 総戸数 | 18戸 |
| 築年月 | 2007年08月 / 築19年 | エレベーター | - |
| 駐車場 | 空有 7,700円/月 | バイク置き場 | - |
| 駐輪場 | - | 管理人/管理会社 | - |
| 周辺環境 | 販売店 徒歩14分(1074m) 病院 徒歩13分(962m) その他 ドラッグストア その他 公園 その他 銀行 その他 * | ||
| 建物種別 | アパート | 建物構造 | 木造 |
この部屋の取扱い不動産会社
| 会社名 | ハウスコム埼玉株式会社 所沢駅前店 | ||
|---|---|---|---|
| 所在地 | 埼玉県所沢市11-20フジビル5階 | 交通 | - |
| 営業時間 | 10:00~18:00 | 定休日 | 水曜定休 |
| 免許番号 | 埼玉県知事(1)第24888号 | 取引態様 | 仲介 |
| 不動産会社管理番号 | HC5-899070-208-0071 | 当社管理番号 | 468 |
| 所属団体 | 、 | ||
| 取扱い物件情報 | 物件詳細へ | ||
※各種情報と現状に差異がある場合は、現状優先となります。問い合わせをすることで、より詳しい条件、情報を確認する事ができます。
提供:ハウスコム埼玉株式会社 所沢駅前店
この物件が気になったら掲載期限まであと5日
レオパレスコルレオニスⅡに条件(家賃・エリア)が近い物件一覧
| 写真 | 家賃 管理費等 | 敷金 礼金 | 間取り 専有面積 | 築年数 | 最寄り駅 所在地 | キープ | 詳細 |
|---|---|---|---|---|---|---|---|
アパート トレス所沢B(1DK/1階) | |||||||
![]() | 4.5万円 2,000円 | なし なし | 1DK 20m2 | 築35年 | 西武池袋・豊島線 所沢駅 徒歩18分 西武鉄道新宿線 所沢駅 徒歩18分 武蔵野線 新秋津駅 徒歩30分 埼玉県所沢市大字牛沼 | 詳細を見る | |
アパート キャメル所沢狭山ヶ丘3C(1K/1階) | |||||||
![]() | 6万円 3,000円 | なし 6万円 | 1K 27.5m2 | 新築 | 西武池袋線 狭山ケ丘駅 徒歩6分 西武池袋線 武蔵藤沢駅 徒歩18分 埼玉県所沢市東狭山ケ丘 | 詳細を見る | |
アパート エールハイツKATO(1K/2階) | |||||||
![]() | 3.3万円 2,000円 | なし なし | 1K 17.4m2 | 築36年 | 西武池袋・豊島線 小手指駅 徒歩14分 西武鉄道狭山線 下山口駅 徒歩18分 西武池袋・豊島線 西所沢駅 徒歩18分 埼玉県所沢市小手指台 | 詳細を見る | |
アパート ビュー小手指A(3DK/2階) | |||||||
![]() | 4.9万円 5,000円 | なし なし | 3DK 42.57m2 | 築23年 | 西武池袋線 狭山ケ丘駅 徒歩15分 西武池袋線 小手指駅 徒歩23分 西武池袋線 武蔵藤沢駅 徒歩32分 埼玉県所沢市東狭山ケ丘 | 詳細を見る | |
アパート 北久米ハイツ(2DK/2階) | |||||||
![]() | 5.2万円 2,000円 | なし なし | 2DK 45.3m2 | 築43年 | 西武池袋・豊島線 西所沢駅 徒歩17分 西武鉄道狭山線 下山口駅 徒歩21分 西武鉄道新宿線 西武園駅 徒歩25分 埼玉県所沢市大字久米 | 詳細を見る | |
アパート スレッド (1LDK/1階) | |||||||
![]() | 7.14万円 4,000円 | 7.14万円 7.14万円 | 1LDK 40.04m2 | 築1年 | 川越線 高麗川駅 徒歩14分 八高線 高麗川駅 徒歩14分 川越線 武蔵高萩駅 徒歩45分 埼玉県日高市大字上鹿山 | 詳細を見る | |
マンション リブリ・メリオダス(1K/1階) | |||||||
![]() | 7万円 4,000円 | なし 7万円 | 1K 27.32m2 | 築8年 | 西武池袋・豊島線 所沢駅 徒歩11分 西武鉄道新宿線 所沢駅 徒歩11分 西武池袋・豊島線 西所沢駅 徒歩19分 埼玉県所沢市南住吉 | 詳細を見る | |
マンション S・Kビル(ワンルーム/5階) | |||||||
![]() | 6.6万円 4,000円 | 3万円 9万円 | ワンルーム 29.14m2 | 築18年 | 西武鉄道新宿線 狭山市駅 徒歩2分 西武池袋・豊島線 稲荷山公園駅 徒歩27分 西武鉄道新宿線 新狭山駅 徒歩37分 埼玉県狭山市入間川1丁目 | 詳細を見る | |









