賃貸マンション
ジェノヴィアトウキョウノースグリーンヴェールの賃貸物件情報(1K/8階)
| 家賃 | 管理費等 | 敷金 | 礼金 | 間取り | 専有面積 |
|---|---|---|---|---|---|
| 7.9万円 | 6,000円 | なし | なし | 1K | 25.42m2 |
入居決定でお祝い金最大100,000円
- 保証金
- -
- 償却・敷引
- -
- 築年数
- 築11年
- 所在階
- 8階
- 向き
- 東
Point
当物件は初期費用分割払い可(クレジットカード決済も可)/お客様のご希望に合わせた方法(店頭、オンライン等)で物件をご提案いたします。初期費用のお見積りや入居希望日のご相談もお気軽にお問い合わせください
提供:アエラス川口店 (株)アエラス.FR(SUUMO経由)

詳細情報 ジェノヴィアトウキョウノースグリーンヴェール
物件紹介
ジェノヴィアトウキョウノースグリーンヴェールは日暮里・舎人ライナー見沼代親水公園駅から徒歩1分にあり、駅近で通勤通学に便利なマンションです。
このお部屋は2階以上に位置しているので通行人や周囲の住人からの視線が気になりにくく、建物のエントランスはオートロックがついているので防犯性が高くなっています。
人気の角部屋。周囲の居住者の生活音も気になりにくい場所です。バス・トイレ別の仕様で、のんびりお風呂タイムも楽しめます。また、浴室乾燥機を使えば、雨の日でもお洗濯は問題ありません。
通信設備面では、インターネット接続が可能です(別途工事、契約料が必要な場合あり)。
建物にはエレベーターがついているので、重い荷物があっても安心。共用部には宅配ボックスが設定されているので、不在の時にも荷物を受け取ることができます。また、ペット飼育の相談ができますので、あなたの大切な家族の一員も快適に暮らせるか、ぜひ確認してみてください。
このお部屋は2階以上に位置しているので通行人や周囲の住人からの視線が気になりにくく、建物のエントランスはオートロックがついているので防犯性が高くなっています。
人気の角部屋。周囲の居住者の生活音も気になりにくい場所です。バス・トイレ別の仕様で、のんびりお風呂タイムも楽しめます。また、浴室乾燥機を使えば、雨の日でもお洗濯は問題ありません。
通信設備面では、インターネット接続が可能です(別途工事、契約料が必要な場合あり)。
建物にはエレベーターがついているので、重い荷物があっても安心。共用部には宅配ボックスが設定されているので、不在の時にも荷物を受け取ることができます。また、ペット飼育の相談ができますので、あなたの大切な家族の一員も快適に暮らせるか、ぜひ確認してみてください。
お金・契約の情報
※「-」と表示されているものは、実際は料金が発生するものもございます。詳細はお問い合わせください。
| 家賃 | 7.9万円 | 管理費・共益費 | 6,000円 |
|---|---|---|---|
| 敷金 | なし | 礼金 | なし |
| 入居決定でお祝い金最大100,000円 | |||
| 保証金 | - | 償却・敷引 | - |
| 住宅保険料 | - | 更新料 | - |
| 保証会社利用 | 必須 | 保証会社名 | - |
| 保証会社費用 | - | 保証会社備考 | 保証会社利用必 初回:賃料等の50% ̄、年間:10000円 ̄※諸条件応相談 |
| 契約形態 | - | 契約期間 | - |
| 入居・引渡期間 | 即時 | 現況 | - |
| 入居可能条件 | ペット相談 | ||
| 契約備考 | 日暮里舎人ライナー舎人公園駅徒歩29分/足立田園クリニックまで198m/足立舎人郵便局まで721m/更新手数料 11000円24時間緊急サポート 16500円1年以内の退去は1ヶ月分の家賃相当額が違約金としてかかります/ペット飼育の場合は敷金1ヶ月増す/退去時敷金償却/駐輪場代借主負担(使用時) 合計7.15万円(内訳:24時間緊急サポート16500円/室内清掃費用55000円) 1K ペット相談 普通借家2年 損保【要】 バストイレ別、バルコニー、エアコン、ガスコンロ対応、浴室乾燥機、オートロック、室内洗濯置、角住戸、温水洗浄便座、エレベーター、洗面所独立、洗面化粧台、駐輪場、宅配ボックス、光ファイバー、外壁タイル張り、即入居可、防犯カメラ、分譲賃貸、バイク置場、2沿線利用可、保証金不要、外壁コンクリート、始発駅、3駅以上利用可、駅前、駅徒歩5分以内、都市ガス、高速ネット対応、敷金・礼金不要、初期費用カード決済可 | ||
部屋の情報
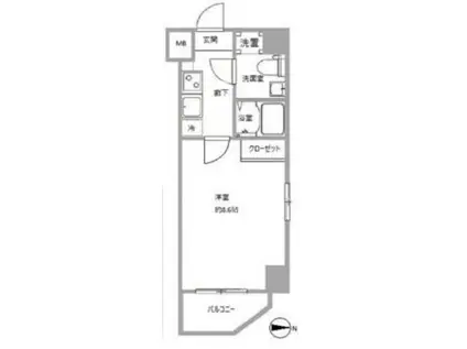
| 間取り | 1K | 専有面積 | 25.42m2 |
|---|---|---|---|
| 所在階 / 向き | 8階 / 東 | バルコニー面積 | - |
| 水道 / ガス | - | ||
| 設備 | バス・トイレ別、2階以上、オートロック、宅配ボックス、浴室乾燥機、インターネット対応、エアコン、エレベーター、温水洗浄便座、角部屋、バルコニー、洗髪洗面化粧台、コンロ:ガス、洗濯機:室内 | ||
| 当社物件ID | 24290685 | ||
建物の情報
| 建物名 | ジェノヴィアトウキョウノースグリーンヴェール | ||
|---|---|---|---|
| 所在地 | 東京都足立区舎人 | ||
| 交通 | 日暮里・舎人ライナー 見沼代親水公園駅 徒歩1分 日暮里・舎人ライナー 舎人駅 徒歩13分 東武伊勢崎線 竹ノ塚駅 バス乗車時間:16分 最寄りバス停で下車 徒歩4分 | ||
| 階数 | 10階建 | 総戸数 | - |
| 築年月 | 2015年02月 / 築11年 | エレベーター | あり |
| 駐車場 | 近隣 398m18700円 | バイク置き場 | あり |
| 駐輪場 | あり | 管理人/管理会社 | - |
| 周辺環境 | その他 ハニーズ草加舎人店(ショッピングセンター)まで532m その他 オーケー 草加舎人店(スーパー)まで636m その他 セブン-イレブン 足立舎人2丁目店(コンビニ)まで138m その他 ウェルパーク 足立舎人店(ドラッグストア)まで209m その他 島忠 ホームズ 草加舎人店(ホームセンター)まで633m その他 幸楽苑 舎人店(飲食店)まで292m | ||
| 建物種別 | マンション | 建物構造 | RC(鉄筋コンクリート) |
この部屋の取扱い不動産会社
| 会社名 | アエラス川口店 (株)アエラス.FR(SUUMO経由) | ||
|---|---|---|---|
| 所在地 | 埼玉県川口市栄町3-8-4 イソベビル 2階 | 交通 | - |
| 営業時間 | 10:00~19:00(時間外対応出来る場合有り) | 定休日 | 年中無休(年末年始などを除く) |
| 免許番号 | 国土交通大臣10206 | 取引態様 | 仲介 |
| 不動産会社管理番号 | 100473664644 | 当社管理番号 | 89 |
| 所属団体 | (公社)全日本不動産協会埼玉県本部会員 | ||
| 公正取引協議会 | (公社)首都圏不動産公正取引協議会加盟 | ||
| 取扱い物件情報 | 物件詳細へ | ||
※各種情報と現状に差異がある場合は、現状優先となります。問い合わせをすることで、より詳しい条件、情報を確認する事ができます。
提供:アエラス川口店 (株)アエラス.FR(SUUMO経由)
この物件が気になったら掲載期限まであと10日
ジェノヴィアトウキョウノースグリーンヴェールに条件(家賃・エリア)が近い物件一覧
| 写真 | 家賃 管理費等 | 敷金 礼金 | 間取り 専有面積 | 築年数 | 最寄り駅 所在地 | キープ | 詳細 |
|---|---|---|---|---|---|---|---|
マンション ベルジューレ錦糸町(1K/4階) | |||||||
![]() | 9.3万円 9,000円 | 9.3万円 9.3万円 | 1K 26.03m2 | 築11年 | 東京地下鉄半蔵門線 錦糸町駅 徒歩8分 総武・中央緩行線 錦糸町駅 徒歩8分 東京都墨田区太平1丁目 | 詳細を見る | |
マンション クレイシア両国ルクール(1K/1階) | |||||||
![]() | 9.6万円 1.2万円 | 9.6万円 9.6万円 | 1K 25.84m2 | 築8年 | 東京都大江戸線 両国駅 徒歩7分 総武・中央緩行線 両国駅 徒歩13分 総武・中央緩行線 錦糸町駅 徒歩18分 東京都墨田区石原2丁目 | 詳細を見る | |
マンション パレステージ曳舟Ⅱ(1K/9階) | |||||||
![]() | 10.9万円 1.2万円 | 10.9万円 10.9万円 | 1K 30.59m2 | 築7年 | 東武伊勢崎・大師線 曳舟駅 徒歩5分 京成電鉄押上線 京成曳舟駅 徒歩10分 東京都浅草線 押上駅 徒歩11分 東京都墨田区東向島1丁目 | 詳細を見る | |
マンション LEXE東京イースト ID(1K/7階) | |||||||
![]() | 9万円 1.5万円 | なし なし | 1K 25.72m2 | 築13年 | 東京都荒川線 荒川区役所前駅 徒歩2分 東京都荒川線 三ノ輪橋駅 徒歩6分 東京地下鉄日比谷線 三ノ輪駅 徒歩10分 東京都荒川区荒川1丁目 | 詳細を見る | |
マンション ブランセ森下(1K/6階) | |||||||
![]() | 12.05万円 1万円 | なし なし | 1K 25.27m2 | 築7年 | 東京都大江戸線 森下駅(東京) 徒歩3分 東京都新宿線 森下駅(東京) 徒歩3分 総武・中央緩行線 両国駅 徒歩17分 東京都墨田区千歳3丁目 | 詳細を見る | |
マンション パークアクシス錦糸町レジデンス(1K/14階) | |||||||
![]() | 12万円 1万円 | 12万円 12万円 | 1K 25.6m2 | 築13年 | 総武・中央緩行線 錦糸町駅 徒歩8分 東京地下鉄半蔵門線 錦糸町駅 徒歩8分 東京地下鉄半蔵門線 住吉駅(東京) 徒歩10分 東京都墨田区江東橋1丁目 | 詳細を見る | |
マンション リテラス町屋(ワンルーム/6階) | |||||||
![]() | 10万円 1.2万円 | 10万円 なし | ワンルーム 25.41m2 | 築12年 | 京成電鉄本線 町屋駅 徒歩1分 東京地下鉄千代田線 町屋駅 徒歩2分 東京都荒川区荒川7丁目 | 詳細を見る | |
マンション ベルシードアルファ押上イースト(1LDK/2階) | |||||||
![]() | 12.2万円 1.5万円 | なし なし | 1LDK 35.15m2 | 築1年 | 東武鉄道亀戸線 小村井駅 徒歩2分 東武鉄道亀戸線 東あずま駅 徒歩6分 東武鉄道亀戸線 亀戸水神駅 徒歩18分 東京都墨田区立花4丁目 | 詳細を見る | |









