賃貸マンション
東京メトロ丸ノ内線 南阿佐ケ谷駅 徒歩7分 2階建 築34年の賃貸物件情報(2DK/2階)
| 家賃 | 管理費等 | 敷金 | 礼金 | 間取り | 専有面積 |
|---|---|---|---|---|---|
| 12.7万円 | 3,000円 | 12.7万円 | 6.35万円 | 2DK | 43.32m2 |
入居決定でお祝い金最大100,000円
Point
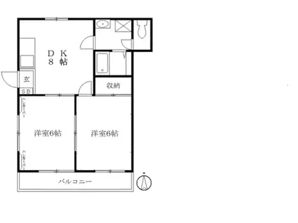
2階南向き角部屋につき日当たり・風通し良好!現在空室ですのでご内見も可能です。現地でのお待ち合わせも可能ですので、お気軽にお問い合わせください。
提供:へーベルメゾンアクタスプラン(株)阿佐ヶ谷店(SUUMO経由)

詳細情報 東京メトロ丸ノ内線 南阿佐ケ谷駅 徒歩7分 2階建 築34年
物件紹介
東京メトロ丸ノ内線南阿佐ケ谷駅から徒歩7分にあり、駅近で通勤通学に便利なマンションです。
このお部屋は2階以上に位置しているので、通行人や周囲の住人からの視線が気になりにくく、防犯面でも安心です。
人気の南向きのお部屋。角部屋でもあるため、周囲の居住者の生活音も気になりにくい場所です。バス・トイレ別の仕様で、のんびりお風呂タイムも楽しめます。
このお部屋は2階以上に位置しているので、通行人や周囲の住人からの視線が気になりにくく、防犯面でも安心です。
人気の南向きのお部屋。角部屋でもあるため、周囲の居住者の生活音も気になりにくい場所です。バス・トイレ別の仕様で、のんびりお風呂タイムも楽しめます。
お金・契約の情報
※「-」と表示されているものは、実際は料金が発生するものもございます。詳細はお問い合わせください。
| 家賃 | 12.7万円 | 管理費・共益費 | 3,000円 |
|---|---|---|---|
| 敷金 | 12.7万円 | 礼金 | 6.35万円 |
| 入居決定でお祝い金最大100,000円 | |||
| 保証金 | - | 償却・敷引 | - |
| 住宅保険料 | - | 更新料 | - |
| 保証会社利用 | 必須 | 保証会社名 | - |
| 保証会社費用 | - | 保証会社備考 | 保証会社利用必 『My Concierパートナー』初回保証料:月額賃料+共益費の50%、継続保証委託料:2万円/2年 |
| 契約形態 | - | 契約期間 | - |
| 入居・引渡期間 | 即時 | 現況 | - |
| 契約備考 | 巡回管理/耐震・耐火に優れた旭化成ヘーベルメゾン♪退去時ハウスクリーニング費用(71,500円)は借主負担となります。退去時に敷金より精算されます。 合計4.33万円(内訳:鍵交換代:25,300円~、My Concier Club:18,000円) 2DK 二人入居可/ルームシェア不可 損保【2.04万円2年】 バストイレ別、バルコニー、ガスコンロ対応、クロゼット、室内洗濯置、シューズボックス、南向き、角住戸、洗面所独立、駐輪場、即入居可、閑静な住宅地、2面採光、最上階、敷金1ヶ月、2沿線利用可、クッションフロア、雨戸、3駅以上利用可、駅徒歩10分以内、都市ガス | ||
部屋の情報
| 間取り | 2DK | 専有面積 | 43.32m2 |
|---|---|---|---|
| 所在階 / 向き | 2階 / 南 | バルコニー面積 | - |
| 水道 / ガス | - | ||
| 設備 | バス・トイレ別、2階以上、南向き、角部屋、バルコニー、洗髪洗面化粧台、コンロ:ガス、洗濯機:室内 | ||
| 当社物件ID | 1380881 | ||
建物の情報
| 建物名 | 東京メトロ丸ノ内線 南阿佐ケ谷駅 徒歩7分 2階建 築34年 | ||
|---|---|---|---|
| 所在地 | 東京都杉並区成田東 | ||
| 交通 | 東京メトロ丸ノ内線 南阿佐ケ谷駅 徒歩7分 JR中央線 阿佐ケ谷駅 徒歩12分 JR中央線 荻窪駅 徒歩16分 | ||
| 階数 | 2階建 | 総戸数 | - |
| 築年月 | 1992年05月 / 築34年 | エレベーター | - |
| 駐車場 | なし | バイク置き場 | - |
| 駐輪場 | あり | 管理人/管理会社 | - |
| 周辺環境 | その他 ファミリーマート杉並成田東五丁目店(コンビニ)まで184m その他 まいばすけっと阿佐谷南3丁目店(ショッピングセンター)まで486m | ||
| 建物種別 | マンション | 建物構造 | 鉄骨造 |
この部屋の取扱い不動産会社
| 会社名 | へーベルメゾンアクタスプラン(株)阿佐ヶ谷店(SUUMO経由) | ||
|---|---|---|---|
| 所在地 | 東京都杉並区阿佐谷南3-31-12 横川ビル2階 | 交通 | - |
| 営業時間 | AM10:00~PM6:30(時短営業中) | 定休日 | 水曜日 |
| 免許番号 | 東京都知事83360 | 取引態様 | 仲介 |
| 不動産会社管理番号 | 100472240711 | 当社管理番号 | 89 |
| 所属団体 | (公社)全日本不動産協会東京都本部会員 | ||
| 公正取引協議会 | (公社)首都圏不動産公正取引協議会加盟 | ||
| 取扱い物件情報 | 物件詳細へ | ||
※各種情報と現状に差異がある場合は、現状優先となります。問い合わせをすることで、より詳しい条件、情報を確認する事ができます。
提供:へーベルメゾンアクタスプラン(株)阿佐ヶ谷店(SUUMO経由)
この物件が気になったら掲載期限まであと10日
東京メトロ丸ノ内線 南阿佐ケ谷駅 徒歩7分 2階建 築34年に条件(家賃・エリア)が近い物件一覧
| 写真 | 家賃 管理費等 | 敷金 礼金 | 間取り 専有面積 | 築年数 | 最寄り駅 所在地 | キープ | 詳細 |
|---|---|---|---|---|---|---|---|
マンション ALIVIS中野(1DK/4階) | |||||||
![]() | 17.65万円 1.5万円 | なし 17.65万円 | 1DK 35.78m2 | 築1年 | 西武新宿線 新井薬師前駅 徒歩10分 JR中央線 中野駅(東京) 徒歩12分 JR中央線 東中野駅 徒歩16分 東京都中野区上高田 | 詳細を見る | |
マンション CONTEL NAKANO(ワンルーム/2階) | |||||||
![]() | 7.7万円 9,000円 | なし なし | ワンルーム 15.29m2 | 築5年 | 西武新宿線 沼袋駅 徒歩3分 西武新宿線 新井薬師前駅 徒歩12分 JR中央線 中野駅(東京) 徒歩24分 東京都中野区沼袋 | 詳細を見る | |
マンション YOU I COURT(1K/3階) | |||||||
![]() | 11.5万円 なし | 11.5万円 11.5万円 | 1K 25.25m2 | 築6年 | 京王電鉄井の頭線 浜田山駅 徒歩3分 京王電鉄井の頭線 西永福駅 徒歩13分 東京都杉並区浜田山3丁目 | 詳細を見る | |
マンション フォレスト世田谷大原(2LDK/2階) | |||||||
![]() | 19万円 1万円 | 19万円 なし | 2LDK 49.02m2 | 築1年 | 京王線 代田橋駅 徒歩4分 京王線 笹塚駅 徒歩8分 京王井の頭線 下北沢駅 徒歩15分 東京都世田谷区大原 | 詳細を見る | |
アパート ケー ニジュウイチ ベース スギナミ(ワンルーム/1階) | |||||||
![]() | 11.5万円 1万円 | 11.5万円 なし | ワンルーム 21.12m2 | 築1年 | 東京地下鉄丸ノ内線 南阿佐ケ谷駅 徒歩14分 東京地下鉄丸ノ内線 新高円寺駅 徒歩15分 東京都杉並区成田東1丁目 | 詳細を見る | |
マンション SAKURA(1K/4階) | |||||||
![]() | 8.5万円 1万円 | 8.5万円 なし | 1K 23.4m2 | 築3年 | 西武新宿線 上石神井駅 徒歩13分 西武新宿線 武蔵関駅 徒歩15分 京王井の頭線 吉祥寺駅 徒歩33分 東京都練馬区関町南 | 詳細を見る | |
マンション サンハイム芦川(2LDK/3階) | |||||||
![]() | 11.3万円 4,000円 | 11.3万円 なし | 2LDK 46.75m2 | 築37年 | 京王線 代田橋駅 徒歩9分 東京都杉並区方南 | 詳細を見る | |
マンション エクセル参宮橋(1K/3階) | |||||||
![]() | 8.2万円 なし | 8.2万円 なし | 1K 23.16m2 | 築27年 | 小田急線 参宮橋駅 徒歩3分 京王新線 初台駅 徒歩9分 東京メトロ千代田線 代々木公園駅 徒歩14分 東京都渋谷区代々木 | 詳細を見る | |









