賃貸マンション
北山マンションの賃貸物件情報(1LDK/3階)
| 家賃 | 管理費等 | 敷金 | 礼金 | 間取り | 専有面積 |
|---|---|---|---|---|---|
| 3.6万円 | なし | なし | なし | 1LDK | 30m2 |
入居決定でお祝い金最大100,000円
- 保証金
- -
- 償却・敷引
- -
- 築年数
- 築52年
- 所在階
- 3階
- 向き
- -
Point
暑い夏・寒い冬に大活躍のエアコン♪エアコン付き物件なら、オールシーズン快適に過ごせます◎
提供:(株)SMILEXIA(SUUMO経由)

詳細情報 北山マンション
物件紹介
北山マンションはJR姫新線播磨高岡駅から徒歩45分にあるマンションです。
このお部屋は2階以上に位置しているので、通行人や周囲の住人からの視線が気になりにくく、防犯面でも安心です。
人気の南向き・フローリングのお部屋。角部屋でもあるため、周囲の居住者の生活音も気になりにくい場所です。バス・トイレ別の仕様で、のんびりお風呂タイムも楽しめます。
このお部屋は2階以上に位置しているので、通行人や周囲の住人からの視線が気になりにくく、防犯面でも安心です。
人気の南向き・フローリングのお部屋。角部屋でもあるため、周囲の居住者の生活音も気になりにくい場所です。バス・トイレ別の仕様で、のんびりお風呂タイムも楽しめます。
お金・契約の情報
※「-」と表示されているものは、実際は料金が発生するものもございます。詳細はお問い合わせください。
| 家賃 | 3.6万円 | 管理費・共益費 | なし |
|---|---|---|---|
| 敷金 | なし | 礼金 | なし |
| 入居決定でお祝い金最大100,000円 | |||
| 保証金 | - | 償却・敷引 | - |
| 住宅保険料 | - | 更新料 | - |
| 契約形態 | - | 契約期間 | - |
| 入居・引渡期間 | 即時 | 現況 | - |
| 契約備考 | 合計1.21万円(内訳:鍵交換費12100円) 定額補修費27500円/退去時町会費(月額)500円 1LDK 二人入居可 損保【要】 バストイレ別、バルコニー、エアコン、フローリング、シューズボックス、温水洗浄便座、閑静な住宅地、最上階、二人入居相談、2沿線利用可、2駅利用可、3駅以上利用可、都市ガス、IT重説対応物件、高齢者歓迎、LGBTフレンドリー、初期費用カード決済可 | ||
部屋の情報
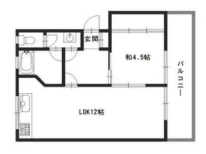
| 間取り | 1LDK | 専有面積 | 30m2 |
|---|---|---|---|
| 所在階 / 向き | 3階 / - | バルコニー面積 | - |
| 水道 / ガス | - | ||
| 設備 | バス・トイレ別、2階以上、エアコン、温水洗浄便座、バルコニー、フローリング | ||
| 当社物件ID | 143000911 | ||
建物の情報
| 建物名 | 北山マンション | ||
|---|---|---|---|
| 所在地 | 兵庫県姫路市御立中 | ||
| 交通 | JR姫新線 播磨高岡駅 徒歩48分 JR姫新線 余部駅 徒歩53分 JR播但線 野里駅 徒歩54分 | ||
| 階数 | 3階建 | 総戸数 | - |
| 築年月 | 1975年01月 / 築52年 | エレベーター | - |
| 駐車場 | なし | バイク置き場 | - |
| 駐輪場 | - | 管理人/管理会社 | - |
| 周辺環境 | その他 医療法人社団普門会姫路田中病院(病院)まで2100m その他 姫路市立安室中学校(中学校)まで1500m その他 姫路市立安室小学校(小学校)まで1500m その他 姫路市立安室東小学校(小学校)まで1900m | ||
| 建物種別 | マンション | 建物構造 | RC(鉄筋コンクリート) |
この部屋の取扱い不動産会社
| 会社名 | (株)SUMOMIT(SUUMO経由) | ||
|---|---|---|---|
| 所在地 | 兵庫県姫路市本町 233 岸田ビル | 交通 | - |
| 営業時間 | 10:00~19:00 | 定休日 | 年中無休 |
| 免許番号 | 兵庫県知事451691 | 取引態様 | 仲介 |
| 不動産会社管理番号 | 100408213208 | 当社管理番号 | 89 |
| 所属団体 | (公社)全日本不動産協会兵庫県本部会員 | ||
| 公正取引協議会 | (公社)近畿地区不動産公正取引協議会加盟 | ||
| 取扱い物件情報 | 物件詳細へ | ||
※各種情報と現状に差異がある場合は、現状優先となります。問い合わせをすることで、より詳しい条件、情報を確認する事ができます。
提供:(株)SUMOMIT(SUUMO経由)
この物件が気になったら掲載期限まであと10日
北山マンションに条件(家賃・エリア)が近い物件一覧
| 写真 | 家賃 管理費等 | 敷金 礼金 | 間取り 専有面積 | 築年数 | 最寄り駅 所在地 | キープ | 詳細 |
|---|---|---|---|---|---|---|---|
マンション カルムリー福崎B(1LDK/1階) | |||||||
![]() | 5.8万円 7,000円 | 2万円 なし | 1LDK 42.1m2 | 築19年 | JR播但線 福崎駅 徒歩4分 JR播但線 溝口駅 徒歩40分 JR播但線 香呂駅 徒歩60分 兵庫県神崎郡福崎町福田 | 詳細を見る | |
マンション アルテハイム姫路(3DK/1階) | |||||||
![]() | 4.7万円 5,000円 | なし なし | 3DK 66.73m2 | 築54年 | JR播但線 野里駅 徒歩21分 JR播但線 京口駅 徒歩41分 兵庫県姫路市北平野南の町 | 詳細を見る | |
マンション リバーサイドフナハシ(ワンルーム/2階) | |||||||
![]() | 3.5万円 2,000円 | なし なし | ワンルーム 25m2 | 築30年 | 山陽電気鉄道本線 浜の宮駅 徒歩23分 山陽電気鉄道本線 尾上の松駅 徒歩28分 兵庫県加古川市野口町良野 | 詳細を見る | |
アパート フィレールデュトラジャⅦ(1K/3階) | |||||||
![]() | 5万円 4,600円 | なし 6万円 | 1K 31.08m2 | 築8年 | 兵庫県姫路市飾東町庄 | 詳細を見る | |
マンション ベルトピア手柄Ⅴ(1K/5階) | |||||||
![]() | 3.2万円 5,000円 | なし なし | 1K 23.1m2 | 築36年 | 山陽電気鉄道本線 手柄駅 徒歩7分 山陽電気鉄道本線 亀山駅(兵庫) 徒歩10分 山陽本線 姫路駅 徒歩23分 兵庫県姫路市手柄1丁目 | 詳細を見る | |
マンション しみずビル(3DK/4階) | |||||||
![]() | 5万円 なし | なし なし | 3DK 43.06m2 | 築51年 | 山陽電気鉄道本線 山陽姫路駅 徒歩5分 播但線 姫路駅 徒歩10分 姫新線 姫路駅 徒歩10分 兵庫県姫路市塩町 | 詳細を見る | |
アパート グランディー(1K/2階) | |||||||
![]() | 4.2万円 3,000円 | 4.2万円 なし | 1K 30.96m2 | 築24年 | 山陽電鉄本線 妻鹿駅 徒歩20分 山陽電鉄本線 白浜の宮駅 徒歩25分 山陽電鉄本線 八家駅 徒歩35分 兵庫県姫路市北原 | 詳細を見る | |
マンション 第329川辺ビル(2DK/1階) | |||||||
![]() | 5.5万円 なし | なし なし | 2DK 41.31m2 | 築35年 | 山陽電鉄本線 別府駅(兵庫) 徒歩10分 山陽電鉄本線 浜の宮駅 徒歩27分 兵庫県加古川市別府町別府 | 詳細を見る | |








