賃貸マンション
カルム宇品の賃貸物件情報(1K/8階)
| 家賃 | 管理費等 | 敷金 | 礼金 | 間取り | 専有面積 |
|---|---|---|---|---|---|
| 5.9万円 | 3,000円 | 11.8万円 | 5.9万円 | 1K | 29.92m2 |
入居決定でお祝い金最大100,000円
- 保証金
- -
- 償却・敷引
- -
- 築年数
- 築12年
- 所在階
- 8階
- 向き
- 東
Point
静かで便利な立地です。大変人気の高い物件となります!【無料インターネット有】お問い合わせは当社までお早めに!
提供:賃貸住宅管理(株)広島駅前店(SUUMO経由)

詳細情報 カルム宇品
物件紹介
カルム宇品は広島電鉄宇品線宇品四丁目駅から徒歩2分にあり、駅近で通勤通学に便利なマンションです。
このお部屋は2階以上に位置しているので、通行人や周囲の住人からの視線が気になりにくく、防犯面でも安心。建物のエントランスはオートロックがついており、インターホンにはTVモニタもついているため、相手の顔を確認してから来客対応することができます。
フローリングのお部屋なのでお掃除もラクラク。室内には人気のウォークインクローゼットがありますので、たくさんの荷物も効率的に収納ができます。キッチンはシステムキッチン仕様になっていますので、お料理好きの方にもぴったり。バス・トイレは別なので、のんびりお風呂タイムも楽しめるでしょう。また、雨の日でも浴室乾燥機を使えば、お洗濯も問題ありません。
通信設備面では、インターネットが無料で使えるので、月々の出費を抑えられるのも魅力です。また、BSアンテナもありますので、おうち時間も充実するでしょう(別途工事、BSの契約料等が必要な場合あり)。
建物にはエレベーターがついているので、重い荷物があっても安心。
このお部屋は2階以上に位置しているので、通行人や周囲の住人からの視線が気になりにくく、防犯面でも安心。建物のエントランスはオートロックがついており、インターホンにはTVモニタもついているため、相手の顔を確認してから来客対応することができます。
フローリングのお部屋なのでお掃除もラクラク。室内には人気のウォークインクローゼットがありますので、たくさんの荷物も効率的に収納ができます。キッチンはシステムキッチン仕様になっていますので、お料理好きの方にもぴったり。バス・トイレは別なので、のんびりお風呂タイムも楽しめるでしょう。また、雨の日でも浴室乾燥機を使えば、お洗濯も問題ありません。
通信設備面では、インターネットが無料で使えるので、月々の出費を抑えられるのも魅力です。また、BSアンテナもありますので、おうち時間も充実するでしょう(別途工事、BSの契約料等が必要な場合あり)。
建物にはエレベーターがついているので、重い荷物があっても安心。
お金・契約の情報
※「-」と表示されているものは、実際は料金が発生するものもございます。詳細はお問い合わせください。
| 家賃 | 5.9万円 | 管理費・共益費 | 3,000円 |
|---|---|---|---|
| 敷金 | 11.8万円 | 礼金 | 5.9万円 |
| 入居決定でお祝い金最大100,000円 | |||
| 保証金 | - | 償却・敷引 | - |
| 住宅保険料 | - | 更新料 | - |
| 保証会社利用 | 必須 | 保証会社名 | - |
| 保証会社費用 | - | 保証会社備考 | 保証会社利用必 【個人契約:エフカ】初回/賃料総額の50% 1年毎更新時/10000円 毎月引落時/税別200円 |
| 契約形態 | - | 契約期間 | - |
| 入居・引渡期間 | 相談 | 現況 | - |
| 契約備考 | 現況と異なる場合は現況を優先とします。 合計3.17万円(内訳:室内除菌費(税込)0.935万円/駐輪ステッカー代0.03万円/契約更新事務手数料(2年毎更新時)(税込)2.2万円) 1K 単身者限定/事務所利用不可/ルームシェア不可 損保【1.6万円2年】 バストイレ別、バルコニー、エアコン、クロゼット、フローリング、シャワー付洗面台、TVインターホン、浴室乾燥機、オートロック、室内洗濯置、陽当り良好、シューズボックス、システムキッチン、温水洗浄便座、脱衣所、エレベーター、洗面所独立、洗面化粧台、2口コンロ、駐輪場、光ファイバー、外壁タイル張り、全居室収納、全居室洋室、ウォークインクロゼット、ガスレンジ付、クッションフロア、駅まで平坦、ネット使用料不要、眺望良好、24時間換気システム、平坦地、駅徒歩5分以内、バス停徒歩3分以内、高層階、24時間ゴミ出し可、敷地内ごみ置き場、平面駐車場、当社管理物件、都市ガス、BS、年内入居可、通風良好 | ||
部屋の情報
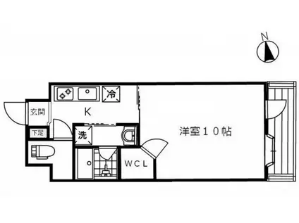
| 間取り | 1K | 専有面積 | 29.92m2 |
|---|---|---|---|
| 所在階 / 向き | 8階 / 東 | バルコニー面積 | - |
| 水道 / ガス | - | ||
| 設備 | バス・トイレ別、2階以上、オートロック、テレビドアホン、浴室乾燥機、ウォークインクローゼット、インターネット対応、システムキッチン、エアコン、エレベーター、温水洗浄便座、バルコニー、フローリング、洗髪洗面化粧台、2口コンロ、コンロ:ガス、BSアンテナ、インターネット使用料無料、洗濯機:室内 | ||
| 当社物件ID | 12830189 | ||
建物の情報
| 建物名 | カルム宇品 | ||
|---|---|---|---|
| 所在地 | 広島県広島市南区宇品神田 | ||
| 交通 | 広島電鉄宇品線 宇品四丁目駅 徒歩2分 広島電鉄宇品線 宇品五丁目駅 徒歩2分 JR山陽本線 広島駅 車で10分 | ||
| 階数 | 10階建 | 総戸数 | 35戸 |
| 築年月 | 2014年02月 / 築12年 | エレベーター | あり |
| 駐車場 | 近隣 150m13200円/平置駐 | バイク置き場 | - |
| 駐輪場 | あり | 管理人/管理会社 | - |
| 周辺環境 | その他 ディオ宇品店(ショッピングセンター)まで525m その他 DCMダイキ宇品店(ホームセンター)まで579m その他 広島宇品本通郵便局(郵便局)まで478m その他 たかもり(スーパー)まで380m その他 イオン宇品店(スーパー)まで716m その他 セブンイレブン広島宇品神田4丁目店(コンビニ)まで209m | ||
| 建物種別 | マンション | 建物構造 | RC(鉄筋コンクリート) |
この部屋の取扱い不動産会社
| 会社名 | 賃貸住宅管理(株)広島駅前店(SUUMO経由) | ||
|---|---|---|---|
| 所在地 | 広島県広島市南区松原町 10-29 | 交通 | - |
| 営業時間 | AM9:30~PM6:30 | 定休日 | 水曜日 |
| 免許番号 | 広島県知事9653 | 取引態様 | 仲介 |
| 不動産会社管理番号 | 100475392824 | 当社管理番号 | 89 |
| 所属団体 | (公社)広島県宅地建物取引業協会会員 | ||
| 公正取引協議会 | 中国地区不動産公正取引協議会加盟 | ||
| 取扱い物件情報 | 物件詳細へ | ||
※各種情報と現状に差異がある場合は、現状優先となります。問い合わせをすることで、より詳しい条件、情報を確認する事ができます。
提供:賃貸住宅管理(株)広島駅前店(SUUMO経由)
この物件が気になったら掲載期限まであと10日
カルム宇品に条件(家賃・エリア)が近い物件一覧
| 写真 | 家賃 管理費等 | 敷金 礼金 | 間取り 専有面積 | 築年数 | 最寄り駅 所在地 | キープ | 詳細 |
|---|---|---|---|---|---|---|---|
マンション 第6ガーデン(1K/3階) | |||||||
![]() | 4万円 なし | 12万円 4万円 | 1K 19.56m2 | 築34年 | JR呉線 天神川駅 徒歩12分 JR芸備線 矢賀駅 徒歩20分 JR山陽本線 広島駅 徒歩24分 広島県広島市南区大州 | 詳細を見る | |
アパート モーデ II(2LDK/2階) | |||||||
![]() | 4.9万円 2,300円 | なし 5.9万円 | 2LDK 57.21m2 | 築14年 | 広島県東広島市黒瀬町楢原 | 詳細を見る | |
マンション K&Sレジデンス(ワンルーム/3階) | |||||||
![]() | 4.5万円 2,000円 | 9万円 4.5万円 | ワンルーム 25.4m2 | 築34年 | 広島電鉄本線 稲荷町駅(広島) 徒歩4分 JR山陽本線 広島駅 徒歩6分 広島電鉄本線 銀山町駅 徒歩8分 広島県広島市南区京橋町 | 詳細を見る | |
マンション ジューケン霞ビル(1DK/4階) | |||||||
![]() | 5.5万円 なし | 11万円 5.5万円 | 1DK 32m2 | 築38年 | 広島県広島市南区霞2丁目 | 詳細を見る | |
アパート ビレッジ沖元屋(2LDK/1階) | |||||||
![]() | 5.7万円 なし | 17.1万円 5.7万円 | 2LDK 46.37m2 | 築37年 | JR山陽本線 向洋駅 徒歩8分 JR山陽本線 天神川駅 徒歩20分 JR山陽本線 海田市駅 徒歩35分 広島県安芸郡府中町鹿籠 | 詳細を見る | |
マンション A・REST中町(1K/7階) | |||||||
![]() | 5.9万円 3,000円 | 11.8万円 5.9万円 | 1K 25.17m2 | 築25年 | 広島電鉄宇品線 袋町駅 徒歩6分 広島電鉄本線 立町駅 徒歩9分 JR山陽本線 広島駅 徒歩28分 広島県広島市中区中町 | 詳細を見る | |
アパート 広白岳2丁目アパートB(1LDK/2階) | |||||||
![]() | 7.25万円 3,100円 | なし 7.25万円 | 1LDK 37.63m2 | 新築 | JR呉線 広駅 徒歩16分 広島県呉市広白岳 | 詳細を見る | |








