賃貸アパート
JR山陽本線 網干駅 徒歩12分 2階建 築36年の賃貸物件情報(3DK/1階)
| 家賃 | 管理費等 | 敷金 | 礼金 | 間取り | 専有面積 |
|---|---|---|---|---|---|
| 4万円 | なし | 4万円 | 4万円 | 3DK | 51.34m2 |
入居決定でお祝い金最大100,000円
- 保証金
- -
- 償却・敷引
- -
- 築年数
- 築36年
- 所在階
- 1階
- 向き
- -
Point
賃貸のお部屋探しはすまいるホームへ♪
提供:すまいるホーム(株)姫路駅前店(SUUMO経由)

詳細情報 JR山陽本線 網干駅 徒歩12分 2階建 築36年
物件紹介
JR山陽本線網干駅から徒歩12分にあるアパートです。
バス・トイレ別の仕様で、のんびりお風呂タイムも楽しめます。
バス・トイレ別の仕様で、のんびりお風呂タイムも楽しめます。
お金・契約の情報
※「-」と表示されているものは、実際は料金が発生するものもございます。詳細はお問い合わせください。
| 家賃 | 4万円 | 管理費・共益費 | なし |
|---|---|---|---|
| 敷金 | 4万円 | 礼金 | 4万円 |
| 入居決定でお祝い金最大100,000円 | |||
| 保証金 | - | 償却・敷引 | - |
| 住宅保険料 | - | 更新料 | - |
| 契約形態 | - | 契約期間 | - |
| 入居・引渡期間 | 即時 | 現況 | - |
| 契約備考 | 合計3万円(内訳:定額補修費30000円) 3DK 損保【要】 バストイレ別、バルコニー、エアコン、ガスコンロ対応、洗面所独立、2沿線利用可、メゾネット、2駅利用可、3駅以上利用可、プロパンガス | ||
部屋の情報
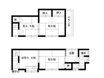
| 間取り | 3DK | 専有面積 | 51.34m2 |
|---|---|---|---|
| 所在階 / 向き | 1階 / - | バルコニー面積 | - |
| 水道 / ガス | - | ||
| 設備 | バス・トイレ別、エアコン、バルコニー、洗髪洗面化粧台、コンロ:ガス | ||
| 当社物件ID | 143002501 | ||
建物の情報
| 建物名 | JR山陽本線 網干駅 徒歩12分 2階建 築36年 | ||
|---|---|---|---|
| 所在地 | 兵庫県姫路市勝原区朝日谷 | ||
| 交通 | JR山陽本線 網干駅 徒歩12分 JR山陽本線 はりま勝原駅 徒歩30分 山陽電鉄網干線 平松駅 徒歩37分 | ||
| 階数 | 2階建 | 総戸数 | - |
| 築年月 | 1990年04月 / 築36年 | エレベーター | - |
| 駐車場 | 空有 付無料 | バイク置き場 | - |
| 駐輪場 | - | 管理人/管理会社 | - |
| 周辺環境 | その他 姫路市立勝原小学校(小学校)まで772m その他 姫路市立朝日中学校(中学校)まで1274m その他 兵庫県立大学姫路工学キャンパス 新本館(大学・短大)まで9999m | ||
| 建物種別 | アパート | 建物構造 | 木造 |
この部屋の取扱い不動産会社
| 会社名 | すまいるホーム(株)姫路駅前店(SUUMO経由) | ||
|---|---|---|---|
| 所在地 | 兵庫県姫路市豊沢町 60 | 交通 | - |
| 営業時間 | AM10:00~PM7:00 | 定休日 | 無休 |
| 免許番号 | 兵庫県知事450942 | 取引態様 | 仲介 |
| 不動産会社管理番号 | 100457000751 | 当社管理番号 | 89 |
| 所属団体 | (一社)兵庫県宅地建物取引業協会会員 | ||
| 公正取引協議会 | (公社)近畿地区不動産公正取引協議会加盟 | ||
| 取扱い物件情報 | 物件詳細へ | ||
※各種情報と現状に差異がある場合は、現状優先となります。問い合わせをすることで、より詳しい条件、情報を確認する事ができます。
提供:すまいるホーム(株)姫路駅前店(SUUMO経由)
この物件が気になったら掲載期限まであと10日
JR山陽本線 網干駅 徒歩12分 2階建 築36年に条件(家賃・エリア)が近い物件一覧
| 写真 | 家賃 管理費等 | 敷金 礼金 | 間取り 専有面積 | 築年数 | 最寄り駅 所在地 | キープ | 詳細 |
|---|---|---|---|---|---|---|---|
アパート エトランス西庄(1K/2階) | |||||||
![]() | 3.9万円 1,500円 | なし 5万円 | 1K 24.57m2 | 築21年 | 姫新線 播磨高岡駅 徒歩25分 山陽電気鉄道本線 山陽姫路駅 徒歩28分 山陽本線 姫路駅 徒歩30分 兵庫県姫路市西庄 | 詳細を見る | |
一戸建て 姫新線 東觜崎駅 徒歩40分 築71年(6LDK) | |||||||
![]() | 3.5万円 3,000円 | なし なし | 6LDK 92.46m2 | 築71年 | 姫新線 東觜崎駅 徒歩40分 姫新線 播磨新宮駅 徒歩92分 兵庫県姫路市林田町久保 | 詳細を見る | |
マンション ビレッジハウス西夢前第二(1DK/4階) | |||||||
![]() | 3.11万円 なし | なし なし | 1DK 28.98m2 | 築56年 | 山陽本線 英賀保駅 徒歩37分 姫新線 播磨高岡駅 徒歩39分 姫新線 余部駅 徒歩39分 兵庫県姫路市広畑区西夢前台5丁目 | 詳細を見る | |
アパート コンフォートテクノⅢ(1K/1階) | |||||||
![]() | 5.5万円 1,000円 | なし 11万円 | 1K 30.39m2 | 築16年 | 兵庫県たつの市新宮町光都2丁目 | 詳細を見る | |
アパート アクロポリス3(1LDK/2階) | |||||||
![]() | 5.5万円 4,000円 | 5.5万円 なし | 1LDK 41.4m2 | 築17年 | 播但線 野里駅 徒歩18分 兵庫県姫路市野里 | 詳細を見る | |
マンション ビレッジハウス書写台(3DK/3階) | |||||||
![]() | 3.86万円 なし | なし なし | 3DK 49.2m2 | 築63年 | 姫新線 余部駅 徒歩24分 兵庫県姫路市書写台2丁目 | 詳細を見る | |
一戸建て 山陽電気鉄道本線 浜の宮駅 徒歩14分 築52年(3DK) | |||||||
![]() | 3.8万円 なし | なし なし | 3DK 52.12m2 | 築52年 | 山陽電気鉄道本線 浜の宮駅 徒歩14分 山陽電気鉄道本線 別府駅(兵庫) 徒歩14分 山陽電気鉄道本線 尾上の松駅 徒歩35分 兵庫県加古川市尾上町池田 | 詳細を見る | |
アパート ヴィラ北平野Ⅰ(1K/2階) | |||||||
![]() | 2.8万円 なし | なし 2.8万円 | 1K 21m2 | 築37年 | 播但線 野里駅 徒歩21分 兵庫県姫路市北平野4 | 詳細を見る | |








