賃貸マンション
スペーシア住吉の賃貸物件情報(1K/4階)
| 家賃 | 管理費等 | 敷金 | 礼金 | 間取り | 専有面積 |
|---|---|---|---|---|---|
| 11.6万円 | 1.2万円 | なし | なし | 1K | 26.85m2 |
入居決定でお祝い金最大100,000円
- 保証金
- -
- 償却・敷引
- -
- 築年数
- 築9年
- 所在階
- 4階
- 向き
- 北
Point
まずはお問い合わせ!
不動産会社は街のプロ、あなたに合った物件がきっと見つかります。
提供:東京部屋貴族 (株)アズプラ(SUUMO経由)

詳細情報 スペーシア住吉
物件紹介
スペーシア住吉は都営新宿線住吉駅から徒歩4分にあり、駅近で通勤通学に便利なマンションです。
このお部屋は2階以上に位置しているので、通行人や周囲の住人からの視線が気になりにくく、防犯面でも安心。建物のエントランスはオートロックがついており、インターホンにはTVモニタもついているため、相手の顔を確認してから来客対応することができます。
フローリングのお部屋なのでお掃除もラクラク。キッチンはシステムキッチン仕様になっていますので、お料理好きの方にもぴったり。バス・トイレは別なので、のんびりお風呂タイムも楽しめるでしょう。また、雨の日でも浴室乾燥機を使えば、お洗濯も問題ありません。
通信設備面では、インターネットが無料で使えるので、月々の出費を抑えられるのも魅力です。また、BSアンテナ・CSアンテナがありCATVにも対応しているので、おうち時間も充実するでしょう(別途工事、BS・CS・CATVの契約料等が必要な場合あり)。
建物にはエレベーターがついているので、重い荷物があっても安心。共用部には宅配ボックスが設定されているので、不在の時にも荷物を受け取ることができます。
このお部屋は2階以上に位置しているので、通行人や周囲の住人からの視線が気になりにくく、防犯面でも安心。建物のエントランスはオートロックがついており、インターホンにはTVモニタもついているため、相手の顔を確認してから来客対応することができます。
フローリングのお部屋なのでお掃除もラクラク。キッチンはシステムキッチン仕様になっていますので、お料理好きの方にもぴったり。バス・トイレは別なので、のんびりお風呂タイムも楽しめるでしょう。また、雨の日でも浴室乾燥機を使えば、お洗濯も問題ありません。
通信設備面では、インターネットが無料で使えるので、月々の出費を抑えられるのも魅力です。また、BSアンテナ・CSアンテナがありCATVにも対応しているので、おうち時間も充実するでしょう(別途工事、BS・CS・CATVの契約料等が必要な場合あり)。
建物にはエレベーターがついているので、重い荷物があっても安心。共用部には宅配ボックスが設定されているので、不在の時にも荷物を受け取ることができます。
お金・契約の情報
※「-」と表示されているものは、実際は料金が発生するものもございます。詳細はお問い合わせください。
| 家賃 | 11.6万円 | 管理費・共益費 | 1.2万円 |
|---|---|---|---|
| 敷金 | なし | 礼金 | なし |
| フリーレント | あり | ||
| 入居決定でお祝い金最大100,000円 | |||
| 保証金 | - | 償却・敷引 | - |
| 住宅保険料 | - | 更新料 | - |
| 保証会社利用 | 利用可 | 保証会社名 | - |
| 保証会社費用 | - | 保証会社備考 | 保証会社利用可 保証会社(エポス・日本SF)加入条件有:賃料+管理費の50%~60% 月次保証料、口座振替手数料、更新保証料等有り) |
| 契約形態 | - | 契約期間 | - |
| 入居・引渡期間 | 即時 | 現況 | - |
| 契約備考 | お部屋探しは東京部屋貴族へ。お部屋探しはもちろん、ライフラインの手続きや鍵の手配、引っ越しまでの全てを一括対応。引っ越しはしたいけど、忙しくて中々お時間が取れないという方に大変喜ばれております。お客様にとって不要な物件は一切ご紹介せず、デメリットとなる情報は隠さずに正直にご提示。もう、いくつもの不動産屋物件情報サイトを確認する必要はございません。是非お電話を。〈お電話番号〉 更新料新賃料(ヶ月):1.00ヶ月 1K フリーレント1ヶ月 普通借家2年 損保【要】 バストイレ別、バルコニー、エアコン、ガスコンロ対応、クロゼット、フローリング、TVインターホン、浴室乾燥機、オートロック、室内洗濯置、システムキッチン、温水洗浄便座、エレベーター、2口コンロ、駐輪場、宅配ボックス、CATV、外壁タイル張り、即入居可、礼金不要、BS・CS、敷金不要、防犯カメラ、照明付、バイク置場、ネット使用料不要、フリーレント、ダブルロックキー、人感照明センサー、防音サッシ、駅徒歩5分以内、駅徒歩10分以内、敷地内ごみ置き場、都市ガス、敷金・礼金不要、保証会社利用可、初期費用カード決済可 | ||
部屋の情報
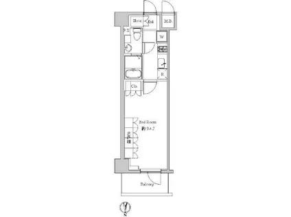
| 間取り | 1K | 専有面積 | 26.85m2 |
|---|---|---|---|
| 所在階 / 向き | 4階 / 北 | バルコニー面積 | - |
| 水道 / ガス | - | ||
| 設備 | バス・トイレ別、2階以上、オートロック、テレビドアホン、宅配ボックス、浴室乾燥機、インターネット対応、システムキッチン、エアコン、エレベーター、温水洗浄便座、バルコニー、フローリング、2口コンロ、コンロ:ガス、CATV、CSアンテナ、BSアンテナ、インターネット使用料無料、洗濯機:室内 | ||
| 当社物件ID | 22221939 | ||
建物の情報
| 建物名 | スペーシア住吉 | ||
|---|---|---|---|
| 所在地 | 東京都江東区猿江 | ||
| 交通 | 都営新宿線 住吉駅(東京) 徒歩4分 都営新宿線 菊川駅(東京) 徒歩8分 東京メトロ半蔵門線 錦糸町駅 徒歩15分 | ||
| 階数 | 8階建 | 総戸数 | 45戸 |
| 築年月 | 2017年01月 / 築9年 | エレベーター | あり |
| 駐車場 | なし | バイク置き場 | あり |
| 駐輪場 | あり | 管理人/管理会社 | - |
| 周辺環境 | その他 ビエラ江東橋(ショッピングセンター)まで480m その他 まいばすけっと住吉駅前店(スーパー)まで320m その他 ライフ深川猿江店(スーパー)まで570m その他 セブンイレブン江東猿江1丁目店(コンビニ)まで260m その他 ローソン江東住吉大門通店(コンビニ)まで210m その他 くすりの福太郎住吉2丁目店(ドラッグストア)まで140m | ||
| 建物種別 | マンション | 建物構造 | RC(鉄筋コンクリート) |
この部屋の取扱い不動産会社
| 会社名 | 東京部屋貴族 (株)アズプラ(SUUMO経由) | ||
|---|---|---|---|
| 所在地 | 東京都千代田区神田淡路町2-4 ユニオンビル2階 | 交通 | - |
| 営業時間 | 10時~21時 最終受付19時まで | 定休日 | 不定休 |
| 免許番号 | 東京都知事112636 | 取引態様 | 仲介 |
| 不動産会社管理番号 | 100468924348 | 当社管理番号 | 89 |
| 所属団体 | (公社)全日本不動産協会埼玉県本部会員 | ||
| 公正取引協議会 | (公社)首都圏不動産公正取引協議会加盟 | ||
| 取扱い物件情報 | 物件詳細へ | ||
※各種情報と現状に差異がある場合は、現状優先となります。問い合わせをすることで、より詳しい条件、情報を確認する事ができます。
提供:東京部屋貴族 (株)アズプラ(SUUMO経由)
この物件が気になったら掲載期限まであと10日
スペーシア住吉に条件(家賃・エリア)が近い物件一覧
| 写真 | 家賃 管理費等 | 敷金 礼金 | 間取り 専有面積 | 築年数 | 最寄り駅 所在地 | キープ | 詳細 |
|---|---|---|---|---|---|---|---|
マンション PLUMERIA BLANE プルメリアブラン(1LDK/1階) | |||||||
![]() | 14.9万円 3,000円 | 14.9万円 14.9万円 | 1LDK 48.99m2 | 築9年 | 京浜急行電鉄本線 大森町駅 徒歩5分 京浜急行電鉄本線 平和島駅 徒歩12分 東京都大田区大森西3丁目 | 詳細を見る | |
マンション レジディア浅草吾妻橋(1K/3階) | |||||||
![]() | 10.3万円 1万円 | なし なし | 1K 21.48m2 | 築19年 | 東京都浅草線 本所吾妻橋駅 徒歩3分 東京地下鉄銀座線 浅草駅(東武・都営・メトロ) 徒歩5分 東京都墨田区吾妻橋1丁目 | 詳細を見る | |
アパート M SONIA KUGAHARA(2LDK/1階) | |||||||
![]() | 16.8万円 3,000円 | 16.8万円 33.6万円 | 2LDK 49.27m2 | 築1年 | 東急池上線 久が原駅 徒歩8分 東急池上線 御嶽山駅 徒歩9分 東京都大田区西嶺町13丁目 | 詳細を見る | |
マンション フラーレン(2K/2階) | |||||||
![]() | 9.8万円 4,000円 | 9.8万円 9.8万円 | 2K 36.52m2 | 築28年 | 東京モノレール羽田 昭和島駅 徒歩13分 京浜急行電鉄本線 梅屋敷駅(東京) 徒歩19分 東京都大田区大森南3丁目 | 詳細を見る | |
マンション プラザN.J.A(1K/1階) | |||||||
![]() | 8.2万円 9,000円 | なし 8.2万円 | 1K 25.71m2 | 築3年 | 東武鉄道亀戸線 小村井駅 徒歩6分 京成電鉄押上線 京成曳舟駅 徒歩12分 東京都墨田区八広2丁目 | 詳細を見る | |
マンション ルーブル大森西(1K/3階) | |||||||
![]() | 10.7万円 8,000円 | なし 10.7万円 | 1K 25.46m2 | 築9年 | 京急本線 平和島駅 徒歩10分 JR京浜東北線 大森駅(東京) 徒歩15分 京急本線 大森町駅 徒歩15分 東京都大田区大森西 | 詳細を見る | |
マンション ラトレールエスポワール(1K/3階) | |||||||
![]() | 9.4万円 3,000円 | 9.4万円 なし | 1K 24.6m2 | 築23年 | 東急多摩川線 下丸子駅 徒歩4分 東急多摩川線 武蔵新田駅 徒歩14分 東京都大田区下丸子3丁目 | 詳細を見る | |
マンション グラウンデュークス西大島(ワンルーム/1階) | |||||||
![]() | 10.4万円 1.5万円 | なし なし | ワンルーム 21.64m2 | 築6年 | 都営新宿線 西大島駅 徒歩6分 東京メトロ半蔵門線 住吉駅(東京) 徒歩12分 都営新宿線 住吉駅(東京) 徒歩12分 東京都江東区大島 | 詳細を見る | |









