賃貸マンション
スペーシア住吉の賃貸物件情報(1K/5階)
| 家賃 | 管理費等 | 敷金 | 礼金 | 間取り | 専有面積 |
|---|---|---|---|---|---|
| 12.2万円 | 1万円 | なし | なし | 1K | 26.85m2 |
入居決定でお祝い金最大100,000円
- 保証金
- -
- 償却・敷引
- -
- 築年数
- 築10年
- 所在階
- 5階
- 向き
- 北
Point
オートロック・モニタ付きインターホン完備★セコム導入でセキュリティ万全★買い物に便利なコンビニ・スーパー徒歩圏内にございます♪お部屋探しはピタットハウス清澄白河店へ!!
提供:ピタットハウス清澄白河店(株)東京PM不動産(SUUMO経由)

詳細情報 スペーシア住吉
物件紹介
スペーシア住吉は東京メトロ半蔵門線住吉駅から徒歩4分にあり、駅近で通勤通学に便利なマンションです。
このお部屋は2階以上に位置しているので、通行人や周囲の住人からの視線が気になりにくく、防犯面でも安心。建物のエントランスはオートロックがついており、インターホンにはTVモニタもついているため、相手の顔を確認してから来客対応することができます。
フローリングのお部屋なのでお掃除もラクラク。キッチンはシステムキッチン仕様になっていますので、お料理好きの方にもぴったり。バス・トイレは別なので、のんびりお風呂タイムも楽しめるでしょう。また、雨の日でも浴室乾燥機を使えば、お洗濯も問題ありません。
通信設備面では、インターネットが無料で使えるので、月々の出費を抑えられるのも魅力です。また、BSアンテナ・CSアンテナがありCATVにも対応しているので、おうち時間も充実するでしょう(別途工事、BS・CS・CATVの契約料等が必要な場合あり)。
建物にはエレベーターがついているので、重い荷物があっても安心。共用部には宅配ボックスが設定されているので、不在の時にも荷物を受け取ることができます。
このお部屋は2階以上に位置しているので、通行人や周囲の住人からの視線が気になりにくく、防犯面でも安心。建物のエントランスはオートロックがついており、インターホンにはTVモニタもついているため、相手の顔を確認してから来客対応することができます。
フローリングのお部屋なのでお掃除もラクラク。キッチンはシステムキッチン仕様になっていますので、お料理好きの方にもぴったり。バス・トイレは別なので、のんびりお風呂タイムも楽しめるでしょう。また、雨の日でも浴室乾燥機を使えば、お洗濯も問題ありません。
通信設備面では、インターネットが無料で使えるので、月々の出費を抑えられるのも魅力です。また、BSアンテナ・CSアンテナがありCATVにも対応しているので、おうち時間も充実するでしょう(別途工事、BS・CS・CATVの契約料等が必要な場合あり)。
建物にはエレベーターがついているので、重い荷物があっても安心。共用部には宅配ボックスが設定されているので、不在の時にも荷物を受け取ることができます。
お金・契約の情報
※「-」と表示されているものは、実際は料金が発生するものもございます。詳細はお問い合わせください。
| 家賃 | 12.2万円 | 管理費・共益費 | 1万円 |
|---|---|---|---|
| 敷金 | なし | 礼金 | なし |
| フリーレント | あり | ||
| 入居決定でお祝い金最大100,000円 | |||
| 保証金 | - | 償却・敷引 | - |
| 住宅保険料 | - | 更新料 | - |
| 保証会社利用 | 必須 | 保証会社名 | - |
| 保証会社費用 | - | 保証会社備考 | 保証会社利用必 その他 初回保証料:総賃料の50%~ |
| 契約形態 | - | 契約期間 | - |
| 入居・引渡期間 | 即時 | 現況 | - |
| 契約備考 | 通勤管理 1K フリーレント1ヶ月 損保【1.9万円2年】 バストイレ別、バルコニー、エアコン、クロゼット、フローリング、TVインターホン、浴室乾燥機、オートロック、室内洗濯置、シューズボックス、システムキッチン、脱衣所、エレベーター、洗面所独立、2口コンロ、駐輪場、宅配ボックス、CATV、光ファイバー、外壁タイル張り、即入居可、礼金不要、BS・CS、敷金不要、防犯カメラ、全居室フローリング、CS、ネット使用料不要、フリーレント、24時間換気システム、人感照明センサー、3沿線以上利用可、駅徒歩5分以内、駅徒歩10分以内、24時間ゴミ出し可、敷地内ごみ置き場、日勤管理、都市ガス、洗面所にドア、BS、敷金・礼金不要 | ||
部屋の情報
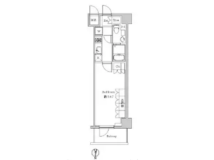
| 間取り | 1K | 専有面積 | 26.85m2 |
|---|---|---|---|
| 所在階 / 向き | 5階 / 北 | バルコニー面積 | - |
| 水道 / ガス | - | ||
| 設備 | バス・トイレ別、2階以上、オートロック、テレビドアホン、宅配ボックス、浴室乾燥機、インターネット対応、システムキッチン、エアコン、エレベーター、バルコニー、フローリング、洗髪洗面化粧台、2口コンロ、CATV、CSアンテナ、BSアンテナ、インターネット使用料無料、洗濯機:室内 | ||
| 当社物件ID | 160233908 | ||
建物の情報
| 建物名 | スペーシア住吉 | ||
|---|---|---|---|
| 所在地 | 東京都江東区猿江 | ||
| 交通 | 東京メトロ半蔵門線 住吉駅(東京) 徒歩4分 都営新宿線 菊川駅(東京) 徒歩10分 JR総武線 錦糸町駅 徒歩16分 | ||
| 階数 | 8階建 | 総戸数 | 45戸 |
| 築年月 | 2017年01月 / 築10年 | エレベーター | あり |
| 駐車場 | なし | バイク置き場 | - |
| 駐輪場 | あり | 管理人/管理会社 | - |
| 周辺環境 | その他 丸井錦糸町店(ショッピングセンター)まで1065m その他 ローソン住吉一丁目店(コンビニ)まで349m その他 江東区立東川小学校(小学校)まで262m その他 肉のハナマサ住吉店(スーパー)まで460m その他 島忠江東猿江店(ホームセンター)まで601m その他 江東区役所(役所)まで1910m | ||
| 建物種別 | マンション | 建物構造 | RC(鉄筋コンクリート) |
この部屋の取扱い不動産会社
| 会社名 | ピタットハウス清澄白河店(株)東京PM不動産(SUUMO経由) | ||
|---|---|---|---|
| 所在地 | 東京都江東区三好2-17-11 | 交通 | - |
| 営業時間 | 10時~18時 | 定休日 | 毎週水曜日 |
| 免許番号 | 東京都知事96076 | 取引態様 | 仲介 |
| 不動産会社管理番号 | 100483365705 | 当社管理番号 | 89 |
| 所属団体 | (公社)全日本不動産協会東京都本部会員 | ||
| 公正取引協議会 | (公社)首都圏不動産公正取引協議会加盟 | ||
| 取扱い物件情報 | 物件詳細へ | ||
※各種情報と現状に差異がある場合は、現状優先となります。問い合わせをすることで、より詳しい条件、情報を確認する事ができます。
提供:ピタットハウス清澄白河店(株)東京PM不動産(SUUMO経由)
この物件が気になったら掲載期限まであと10日
スペーシア住吉に条件(家賃・エリア)が近い物件一覧
| 写真 | 家賃 管理費等 | 敷金 礼金 | 間取り 専有面積 | 築年数 | 最寄り駅 所在地 | キープ | 詳細 |
|---|---|---|---|---|---|---|---|
マンション パークアクシス押上テラス(1LDK/5階) | |||||||
![]() | 16.4万円 1.2万円 | 16.4万円 16.4万円 | 1LDK 31.83m2 | 築10年 | 東京地下鉄半蔵門線 押上駅 徒歩5分 東武伊勢崎・大師線 曳舟駅 徒歩8分 東京都墨田区向島3丁目 | 詳細を見る | |
マンション ARCOBALENO UMEYASHIKI(1K/4階) | |||||||
![]() | 10.5万円 1.5万円 | なし 10.5万円 | 1K 25.57m2 | 築2年 | 京急本線 梅屋敷駅(東京) 徒歩11分 京急本線 大森町駅 徒歩15分 京急本線 京急蒲田駅 徒歩19分 東京都大田区北糀谷 | 詳細を見る | |
マンション レジディア大森Ⅲ(1K/9階) | |||||||
![]() | 10.7万円 1.5万円 | なし なし | 1K 21.66m2 | 築14年 | 京浜東北・根岸線 大森駅(東京) 徒歩2分 京浜急行電鉄本線 大森海岸駅 徒歩9分 東京都浅草線 馬込駅 徒歩27分 東京都大田区大森北1丁目 | 詳細を見る | |
マンション ステージグランデ蒲田(1K/2階) | |||||||
![]() | 9.2万円 5,000円 | なし 9.2万円 | 1K 22.55m2 | 築20年 | JR京浜東北線 蒲田駅 徒歩7分 東急池上線 蓮沼駅 徒歩7分 京急本線 雑色駅 徒歩22分 東京都大田区西蒲田 | 詳細を見る | |
マンション CONFORT(1LDK/2階) | |||||||
![]() | 12万円 3,000円 | 12万円 なし | 1LDK 34.43m2 | 築10年 | 京浜急行電鉄本線 雑色駅 徒歩7分 京浜急行電鉄空港線 糀谷駅 徒歩16分 東京都大田区東六郷1丁目 | 詳細を見る | |
一戸建て 東京都新宿線 大島駅(東京) 徒歩7分 築77年(1DK) | |||||||
![]() | 15.8万円 1万円 | 15.8万円 15.8万円 | 1DK 27.91m2 | 築77年 | 東京都新宿線 大島駅(東京) 徒歩7分 東京都新宿線 西大島駅 徒歩7分 総武・中央緩行線 亀戸駅 徒歩11分 東京都江東区大島3丁目 | 詳細を見る | |
マンション SEED JUST B-BASE Ⅱ(1LDK/2階) | |||||||
![]() | 10.1万円 1.5万円 | 10.1万円 10.1万円 | 1LDK 29.92m2 | 新築 | 東京モノレール羽田 昭和島駅 徒歩11分 京浜急行電鉄本線 梅屋敷駅(東京) 徒歩19分 東京都大田区大森南4丁目 | 詳細を見る | |
マンション ヴェラハイツ日本橋蛎殻町(ワンルーム/2階) | |||||||
![]() | 10.5万円 1.5万円 | 10.5万円 10.5万円 | ワンルーム 26.9m2 | 築43年 | 東京地下鉄日比谷線 茅場町駅 徒歩5分 東京地下鉄東西線 茅場町駅 徒歩5分 東京都浅草線 人形町駅 徒歩7分 東京都中央区日本橋蛎殻町1丁目 | 詳細を見る | |









