賃貸アパート
JR南武線 西府駅 徒歩7分 3階建 築24年の賃貸物件情報(1K/2階)
| 家賃 | 管理費等 | 敷金 | 礼金 | 間取り | 専有面積 |
|---|---|---|---|---|---|
| 5.3万円 | 3,000円 | 5.3万円 | 5.3万円 | 1K | 20.23m2 |
入居決定でお祝い金最大100,000円
Point
当物件は初期費用分割払い可(クレジットカード決済も可)/お客様のご希望に合わせた方法(店頭、オンライン等)で物件をご提案いたします。初期費用のお見積りや入居希望日のご相談もお気軽にお問い合わせください
提供:アエラス八王子店 (株)アエラス.FR(SUUMO経由)

詳細情報 JR南武線 西府駅 徒歩7分 3階建 築24年
物件紹介
JR南武線西府駅から徒歩7分にあり、駅近で通勤通学に便利なアパートです。
このお部屋は2階以上に位置しているので、通行人や周囲の住人からの視線が気になりにくく、防犯面でも安心です。
人気の南向き・フローリングのお部屋。角部屋でもあるため、周囲の居住者の生活音も気になりにくい場所です。キッチンはシステムキッチン仕様になっていますので、お料理好きの方にもぴったり。また、バス・トイレは別で、のんびりお風呂タイムも楽しめるでしょう。
通信設備面では、インターネット接続が可能です。また、CATVにも対応しているので、おうち時間も充実するでしょう(別途工事、契約料が必要な場合あり)。
このお部屋は2階以上に位置しているので、通行人や周囲の住人からの視線が気になりにくく、防犯面でも安心です。
人気の南向き・フローリングのお部屋。角部屋でもあるため、周囲の居住者の生活音も気になりにくい場所です。キッチンはシステムキッチン仕様になっていますので、お料理好きの方にもぴったり。また、バス・トイレは別で、のんびりお風呂タイムも楽しめるでしょう。
通信設備面では、インターネット接続が可能です。また、CATVにも対応しているので、おうち時間も充実するでしょう(別途工事、契約料が必要な場合あり)。
お金・契約の情報
※「-」と表示されているものは、実際は料金が発生するものもございます。詳細はお問い合わせください。
| 家賃 | 5.3万円 | 管理費・共益費 | 3,000円 |
|---|---|---|---|
| 敷金 | 5.3万円 | 礼金 | 5.3万円 |
| 入居決定でお祝い金最大100,000円 | |||
| 保証金 | - | 償却・敷引 | - |
| 住宅保険料 | - | 更新料 | - |
| 保証会社利用 | 必須 | 保証会社名 | - |
| 保証会社費用 | - | 保証会社備考 | 保証会社利用必 月額賃料等の50% ̄100%(初回保証料)、2年目以降は1万円/年 |
| 契約形態 | - | 契約期間 | - |
| 入居・引渡期間 | - | 現況 | - |
| 契約備考 | 西府図書館まで793m/府中警察署本宿交番まで458m/要火災保険 15000円2年間(更新可)/駐輪場代借主負担(使用時)/室内清掃費用借主負担/CATVでBS、CS視聴可(CATV、BS別途契約要、有償) 合計1.76万円(内訳:カギ交換費用17600円) 1K 普通借家2年 損保【要】 バストイレ別、エアコン、ガスコンロ対応、フローリング、シャワー付洗面台、室内洗濯置、システムキッチン、南向き、角住戸、温水洗浄便座、洗面所独立、洗面化粧台、駐輪場、CATV、光ファイバー、敷金1ヶ月、保証金不要、3駅以上利用可、駅徒歩10分以内、プロパンガス、高速ネット対応、礼金1ヶ月、初期費用カード決済可 入居日:'26年1月下旬 | ||
部屋の情報
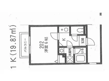
| 間取り | 1K | 専有面積 | 20.23m2 |
|---|---|---|---|
| 所在階 / 向き | 2階 / 南 | バルコニー面積 | - |
| 水道 / ガス | - | ||
| 設備 | バス・トイレ別、2階以上、インターネット対応、システムキッチン、エアコン、温水洗浄便座、南向き、角部屋、フローリング、洗髪洗面化粧台、コンロ:ガス、CATV、洗濯機:室内 | ||
| 当社物件ID | 19874139 | ||
建物の情報
| 建物名 | JR南武線 西府駅 徒歩7分 3階建 築24年 | ||
|---|---|---|---|
| 所在地 | 東京都府中市西府町 | ||
| 交通 | JR南武線 西府駅 徒歩7分 JR南武線 谷保駅 徒歩19分 JR南武線 分倍河原駅 徒歩23分 | ||
| 階数 | 3階建 | 総戸数 | - |
| 築年月 | 2002年06月 / 築24年 | エレベーター | - |
| 駐車場 | 空有 10000円 | バイク置き場 | - |
| 駐輪場 | あり | 管理人/管理会社 | - |
| 周辺環境 | その他 オーケー 西府店(スーパー)まで637m その他 ファミリーマート 府中甲州街道店(コンビニ)まで383m その他 ドラッグセイムス府中西府店(ドラッグストア)まで561m その他 おうちDEPO 府中店(ホームセンター)まで454m その他 サイゼリヤ 府中西府店(飲食店)まで341m その他 府中西府町郵便局(郵便局)まで522m | ||
| 建物種別 | アパート | 建物構造 | 木造 |
この部屋の取扱い不動産会社
| 会社名 | アエラス八王子店 (株)アエラス.FR(SUUMO経由) | ||
|---|---|---|---|
| 所在地 | 東京都八王子市東町 8-2 豊泉2号ビル 1階 | 交通 | - |
| 営業時間 | 設備不良につきアエラス立川店・橋本店にて営業中です | 定休日 | 毎週水曜日 |
| 免許番号 | 国土交通大臣10206 | 取引態様 | 仲介 |
| 不動産会社管理番号 | 100479684244 | 当社管理番号 | 89 |
| 所属団体 | (公社)全日本不動産協会東京都本部会員 | ||
| 公正取引協議会 | (公社)首都圏不動産公正取引協議会加盟 | ||
| 取扱い物件情報 | 物件詳細へ | ||
※各種情報と現状に差異がある場合は、現状優先となります。問い合わせをすることで、より詳しい条件、情報を確認する事ができます。
提供:アエラス八王子店 (株)アエラス.FR(SUUMO経由)
この物件が気になったら掲載期限まであと10日
JR南武線 西府駅 徒歩7分 3階建 築24年に条件(家賃・エリア)が近い物件一覧
| 写真 | 家賃 管理費等 | 敷金 礼金 | 間取り 専有面積 | 築年数 | 最寄り駅 所在地 | キープ | 詳細 |
|---|---|---|---|---|---|---|---|
マンション ヘリオス378国分寺(ワンルーム/3階) | |||||||
![]() | 5万円 3,000円 | 5万円 2.5万円 | ワンルーム 21.38m2 | 築36年 | 中央本線 国分寺駅 徒歩2分 西武鉄道多摩湖線 国分寺駅 徒歩2分 西武鉄道国分寺線 国分寺駅 徒歩2分 東京都国分寺市本町2丁目 | 詳細を見る | |
アパート クレールメゾンⅡ(1K/1階) | |||||||
![]() | 5万円 3,000円 | 5万円 なし | 1K 22.77m2 | 築22年 | 京王電鉄京王線 平山城址公園駅 徒歩4分 京王電鉄京王線 長沼駅(東京) 徒歩18分 東京都日野市平山5丁目 | 詳細を見る | |
アパート シティハイツ高幡不動(1K/2階) | |||||||
![]() | 5.9万円 4,000円 | なし なし | 1K 20.35m2 | 新築 | 多摩モノレール 程久保駅 徒歩6分 京王電鉄京王線 高幡不動駅 徒歩14分 京王電鉄京王線 多摩動物公園駅 徒歩15分 東京都日野市三沢5丁目 | 詳細を見る | |
アパート NSプレジオ(1K/2階) | |||||||
![]() | 6.9万円 4,000円 | なし なし | 1K 33.56m2 | 築20年 | JR中央線 日野駅(東京) 徒歩15分 JR中央線 豊田駅 徒歩22分 京王線 南平駅 徒歩34分 東京都日野市大坂上 | 詳細を見る | |
アパート レオネクスト日野万願寺(ワンルーム/3階) | |||||||
![]() | 8.1万円 5,000円 | なし 8.1万円 | ワンルーム 23.18m2 | 築10年 | 多摩モノレール 万願寺駅 徒歩6分 多摩モノレール 甲州街道駅 徒歩16分 京王電鉄京王線 高幡不動駅 徒歩21分 東京都日野市 | 詳細を見る | |
アパート ジャルディネット(1LDK/1階) | |||||||
![]() | 7.2万円 5,000円 | なし なし | 1LDK 33.62m2 | 築17年 | 京王電鉄京王線 南平駅 徒歩10分 京王電鉄京王線 平山城址公園駅 徒歩11分 中央本線 豊田駅 徒歩26分 東京都日野市平山4丁目 | 詳細を見る | |
アパート レオパレス東豊田Ⅰ(1K/1階) | |||||||
![]() | 5.4万円 5,000円 | なし 5.4万円 | 1K 22.35m2 | 築22年 | 中央本線 豊田駅 徒歩12分 京王電鉄京王線 南平駅 徒歩20分 中央本線 日野駅(東京) 徒歩31分 東京都日野市東豊田3丁目 | 詳細を見る | |
アパート リブリ・パークリビング暁(1K/1階) | |||||||
![]() | 6.9万円 4,000円 | なし なし | 1K 26.08m2 | 築9年 | 中央本線 豊田駅 徒歩17分 八高線 北八王子駅 徒歩18分 京王電鉄京王線 平山城址公園駅 徒歩32分 東京都日野市旭が丘2丁目 | 詳細を見る | |









