賃貸マンション
ROOTS SHIKIの賃貸物件情報(1K/9階)
| 家賃 | 管理費等 | 敷金 | 礼金 | 間取り | 専有面積 |
|---|---|---|---|---|---|
| 9.6万円 | 1万円 | なし | なし | 1K | 27.32m2 |
入居決定でお祝い金最大100,000円
- 保証金
- -
- 償却・敷引
- -
- 築年数
- 築2年
- 所在階
- 9階
- 向き
- -
Point
まずはお問い合わせ!
不動産会社は街のプロ、あなたに合った物件がきっと見つかります。
提供:レインボーホーム 虹久昇コレクション(有)上福岡店(SUUMO経由)

詳細情報 ROOTS SHIKI
物件紹介
ROOTS SHIKIは東武東上線志木駅から徒歩6分にあり、駅近で通勤通学に便利なマンションです。
このお部屋は2階以上に位置しているので、通行人や周囲の住人からの視線が気になりにくく、防犯面でも安心。建物のエントランスはオートロックがついており、インターホンにはTVモニタもついているため、相手の顔を確認してから来客対応することができます。
フローリングのお部屋なのでお掃除もラクラク。キッチンはシステムキッチン仕様になっていますので、お料理好きの方にもぴったり。バス・トイレは別なので、のんびりお風呂タイムも楽しめるでしょう。また、雨の日でも浴室乾燥機を使えば、お洗濯も問題ありません。
通信設備面では、インターネットが無料で使えるので、月々の出費を抑えられるのも魅力です。また、BSアンテナもありますので、おうち時間も充実するでしょう(別途工事、BSの契約料等が必要な場合あり)。
建物にはエレベーターがついているので、重い荷物があっても安心。共用部には宅配ボックスが設定されているので、不在の時にも荷物を受け取ることができます。
このお部屋は2階以上に位置しているので、通行人や周囲の住人からの視線が気になりにくく、防犯面でも安心。建物のエントランスはオートロックがついており、インターホンにはTVモニタもついているため、相手の顔を確認してから来客対応することができます。
フローリングのお部屋なのでお掃除もラクラク。キッチンはシステムキッチン仕様になっていますので、お料理好きの方にもぴったり。バス・トイレは別なので、のんびりお風呂タイムも楽しめるでしょう。また、雨の日でも浴室乾燥機を使えば、お洗濯も問題ありません。
通信設備面では、インターネットが無料で使えるので、月々の出費を抑えられるのも魅力です。また、BSアンテナもありますので、おうち時間も充実するでしょう(別途工事、BSの契約料等が必要な場合あり)。
建物にはエレベーターがついているので、重い荷物があっても安心。共用部には宅配ボックスが設定されているので、不在の時にも荷物を受け取ることができます。
お金・契約の情報
※「-」と表示されているものは、実際は料金が発生するものもございます。詳細はお問い合わせください。
| 家賃 | 9.6万円 | 管理費・共益費 | 1万円 |
|---|---|---|---|
| 敷金 | なし | 礼金 | なし |
| 入居決定でお祝い金最大100,000円 | |||
| 保証金 | - | 償却・敷引 | - |
| 住宅保険料 | - | 更新料 | - |
| 保証会社利用 | 必須 | 保証会社名 | - |
| 保証会社費用 | - | 保証会社備考 | 保証会社利用必 初回保証料:総賃料の50% 月額:総賃料の1% |
| 契約形態 | - | 契約期間 | - |
| 入居・引渡期間 | - | 現況 | - |
| 契約備考 | 【仲介手数料:不要】対象物件!当店は、掲載物件以外の他社様で扱っている物件情報も併せてご紹介可能です。(担当者直通)LINE問合せやオンライン接客も柔軟に対応します。 合計4.22万円(内訳:24時間サポート1.5万円Goodプレミアム登録料0.3万円鍵交換代2.42万円) 更新料 新賃料1.00ヶ月分 1K 普通借家2年 損保【2.2万円2年】 バストイレ別、バルコニー、エアコン、ガスコンロ対応、クロゼット、フローリング、TVインターホン、浴室乾燥機、オートロック、室内洗濯置、シューズボックス、システムキッチン、温水洗浄便座、脱衣所、エレベーター、洗面所独立、洗面化粧台、駐輪場、宅配ボックス、光ファイバー、礼金不要、3口以上コンロ、防犯カメラ、全居室洋室、保証人不要、仲介手数料不要、全居室フローリング、2沿線利用可、ネット専用回線、ネット使用料不要、築2年以内、2駅利用可、3駅以上利用可、駅徒歩10分以内、敷地内ごみ置き場、都市ガス、玄関収納、BS、年内入居可、敷金・礼金不要、初期費用カード決済可 入居日:'26年4月下旬 | ||
部屋の情報
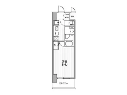
| 間取り | 1K | 専有面積 | 27.32m2 |
|---|---|---|---|
| 所在階 / 向き | 9階 / - | バルコニー面積 | - |
| 水道 / ガス | - | ||
| 設備 | バス・トイレ別、2階以上、オートロック、テレビドアホン、宅配ボックス、浴室乾燥機、インターネット対応、システムキッチン、エアコン、エレベーター、温水洗浄便座、バルコニー、フローリング、洗髪洗面化粧台、2口コンロ、コンロ:ガス、BSアンテナ、インターネット使用料無料、洗濯機:室内 | ||
| 当社物件ID | 158470815 | ||
建物の情報
| 建物名 | ROOTS SHIKI | ||
|---|---|---|---|
| 所在地 | 埼玉県志木市本町 | ||
| 交通 | 東武東上線 志木駅 徒歩6分 東武東上線 柳瀬川駅 徒歩22分 JR武蔵野線 北朝霞駅 徒歩24分 | ||
| 階数 | 12階建 | 総戸数 | - |
| 築年月 | 2025年02月 / 築2年 | エレベーター | あり |
| 駐車場 | 近隣 200m12000円 | バイク置き場 | - |
| 駐輪場 | あり | 管理人/管理会社 | - |
| 周辺環境 | その他 志木駅(その他)まで480m その他 立教大学 新座キャンパス(大学・短大)まで1724m その他 東洋大学 朝霞キャンパス(大学・短大)まで2671m その他 跡見学園女子大学(大学・短大)まで4489m その他 ちよだ鮨(飲食店)まで4426m その他 にしだ場 柳瀬川店(飲食店)まで1747m | ||
| 建物種別 | マンション | 建物構造 | RC(鉄筋コンクリート) |
この部屋の取扱い不動産会社
| 会社名 | レインボーホーム 虹久昇コレクション(有)上福岡店(SUUMO経由) | ||
|---|---|---|---|
| 所在地 | 埼玉県ふじみ野市上福岡1-12-1 3階 | 交通 | - |
| 営業時間 | 9:30~18:30 | 定休日 | 水 |
| 免許番号 | 国土交通大臣10313 | 取引態様 | 仲介 |
| 不動産会社管理番号 | 100490081840 | 当社管理番号 | 89 |
| 所属団体 | (公社)埼玉県宅地建物取引業協会会員 | ||
| 公正取引協議会 | (公社)首都圏不動産公正取引協議会加盟 | ||
| 取扱い物件情報 | 物件詳細へ | ||
※各種情報と現状に差異がある場合は、現状優先となります。問い合わせをすることで、より詳しい条件、情報を確認する事ができます。
提供:レインボーホーム 虹久昇コレクション(有)上福岡店(SUUMO経由)
この物件が気になったら掲載期限まであと11日
ROOTS SHIKIに条件(家賃・エリア)が近い物件一覧
| 写真 | 家賃 管理費等 | 敷金 礼金 | 間取り 専有面積 | 築年数 | 最寄り駅 所在地 | キープ | 詳細 |
|---|---|---|---|---|---|---|---|
アパート ベル ソフィア(1K/3階) | |||||||
![]() | 8.5万円 3,500円 | なし 12.75万円 | 1K 25.83m2 | 築4年 | JR埼京線 中浦和駅 徒歩7分 JR埼京線 南与野駅 徒歩23分 JR埼京線 武蔵浦和駅 徒歩25分 埼玉県さいたま市桜区 | 詳細を見る | |
マンション リブリ・さいたま市桜区中島(1K/1階) | |||||||
![]() | 7.5万円 3,000円 | なし 7.5万円 | 1K 27.32m2 | 新築 | JR埼京線 南与野駅 徒歩10分 JR埼京線 与野本町駅 徒歩24分 JR京浜東北線 北浦和駅 徒歩32分 埼玉県さいたま市桜区 | 詳細を見る | |
マンション グラン・ドムール浦和栄和(3LDK/2階) | |||||||
![]() | 10.5万円 なし | 10.5万円 なし | 3LDK 61.29m2 | 築37年 | 埼玉県さいたま市桜区 | 詳細を見る | |
アパート ジェルメM(1K/3階) | |||||||
![]() | 8.45万円 3,500円 | なし 8.45万円 | 1K 28.87m2 | 築2年 | JR武蔵野線 北朝霞駅 徒歩18分 東武東上線 朝霞駅 徒歩21分 埼玉県朝霞市 | 詳細を見る | |
アパート レオパレスパタータII(1K/3階) | |||||||
![]() | 6.4万円 7,000円 | なし なし | 1K 19.87m2 | 築17年 | JR京浜東北線 蕨駅 徒歩23分 JR埼京線 北戸田駅 徒歩25分 埼玉県さいたま市南区文蔵 | 詳細を見る | |
マンション グランガーデンⅠ(1LDK/4階) | |||||||
![]() | 11万円 1.1万円 | 5.5万円 22万円 | 1LDK 38.65m2 | 築15年 | 京浜東北・根岸線 北浦和駅 徒歩13分 京浜東北・根岸線 与野駅 徒歩16分 埼玉県さいたま市浦和区領家6丁目 | 詳細を見る | |
マンション ロイヤル谷津(3DK/3階) | |||||||
![]() | 7.2万円 3,000円 | なし なし | 3DK 55m2 | 築32年 | 東武東上線 鶴瀬駅 徒歩8分 東武東上線 みずほ台駅 徒歩22分 東武東上線 ふじみ野駅 徒歩32分 埼玉県富士見市 | 詳細を見る | |
マンション 山中ハイツ(3DK/4階) | |||||||
![]() | 8万円 なし | 8万円 8万円 | 3DK 53.36m2 | 築47年 | 京浜東北・根岸線 浦和駅 徒歩15分 京浜東北・根岸線 北浦和駅 徒歩20分 埼玉県さいたま市浦和区本太4丁目 | 詳細を見る | |









