賃貸マンション
メイクスデザイン南青山の賃貸物件情報(1K/7階)
| 家賃 | 管理費等 | 敷金 | 礼金 | 間取り | 専有面積 |
|---|---|---|---|---|---|
| 13.5万円 | 1.5万円 | なし | 13.5万円 | 1K | 25.62m2 |
入居決定でお祝い金最大100,000円
- 保証金
- -
- 償却・敷引
- -
- 築年数
- 築14年
- 所在階
- 7階
- 向き
- 北東
Point
★システムキッチン・2口ガスコンロ★浴室乾燥機★温水洗浄便座★室内洗濯機置場★フローリング★エアコン★クローゼット★TVドアホン★そらうみリアルエステートへお気軽にお問い合わせください!★
提供:そらうみリアルエステート(株)賃貸事業本部(SUUMO経由)

詳細情報 メイクスデザイン南青山
物件紹介
メイクスデザイン南青山は東京メトロ千代田線表参道駅から徒歩12分にあるマンションです。
このお部屋は2階以上に位置しているので、通行人や周囲の住人からの視線が気になりにくく、防犯面でも安心。建物のエントランスはオートロックがついており、インターホンにはTVモニタもついているため、相手の顔を確認してから来客対応することができます。
おしゃれなデザイナーズ物件!また、楽器相談が可能な物件となっているので、楽器演奏をお考えの方はぜひ相談してみてください。人気の南向き・フローリングのお部屋。角部屋でもあるため、周囲の居住者の生活音も気になりにくい場所です。キッチンはシステムキッチン仕様になっていますので、お料理好きの方にもぴったり。バス・トイレは別なので、のんびりお風呂タイムも楽しめるでしょう。また、雨の日でも浴室乾燥機を使えば、お洗濯も問題ありません。
通信設備面では、インターネットが無料で使えるので、月々の出費を抑えられるのも魅力です。また、BSアンテナ・CSアンテナがありCATVにも対応しているので、おうち時間も充実するでしょう(別途工事、BS・CS・CATVの契約料等が必要な場合あり)。
建物にはエレベーターがついているので、重い荷物があっても安心。共用部には宅配ボックスが設定されているので、不在の時にも荷物を受け取ることができます。また、ペット飼育の相談ができますので、あなたの大切な家族の一員も快適に暮らせるか、ぜひ確認してみてください。
このお部屋は2階以上に位置しているので、通行人や周囲の住人からの視線が気になりにくく、防犯面でも安心。建物のエントランスはオートロックがついており、インターホンにはTVモニタもついているため、相手の顔を確認してから来客対応することができます。
おしゃれなデザイナーズ物件!また、楽器相談が可能な物件となっているので、楽器演奏をお考えの方はぜひ相談してみてください。人気の南向き・フローリングのお部屋。角部屋でもあるため、周囲の居住者の生活音も気になりにくい場所です。キッチンはシステムキッチン仕様になっていますので、お料理好きの方にもぴったり。バス・トイレは別なので、のんびりお風呂タイムも楽しめるでしょう。また、雨の日でも浴室乾燥機を使えば、お洗濯も問題ありません。
通信設備面では、インターネットが無料で使えるので、月々の出費を抑えられるのも魅力です。また、BSアンテナ・CSアンテナがありCATVにも対応しているので、おうち時間も充実するでしょう(別途工事、BS・CS・CATVの契約料等が必要な場合あり)。
建物にはエレベーターがついているので、重い荷物があっても安心。共用部には宅配ボックスが設定されているので、不在の時にも荷物を受け取ることができます。また、ペット飼育の相談ができますので、あなたの大切な家族の一員も快適に暮らせるか、ぜひ確認してみてください。
お金・契約の情報
※「-」と表示されているものは、実際は料金が発生するものもございます。詳細はお問い合わせください。
| 家賃 | 13.5万円 | 管理費・共益費 | 1.5万円 |
|---|---|---|---|
| 敷金 | なし | 礼金 | 13.5万円 |
| 入居決定でお祝い金最大100,000円 | |||
| 保証金 | - | 償却・敷引 | - |
| 住宅保険料 | - | 更新料 | - |
| 保証会社利用 | 必須 | 保証会社名 | - |
| 保証会社費用 | - | 保証会社備考 | 保証会社利用必 初回保証料:月額賃料の50%、詳細はお問い合わせ下さい |
| 契約形態 | - | 契約期間 | - |
| 入居・引渡期間 | 即時 | 現況 | - |
| 入居可能条件 | ペット相談 | ||
| 契約備考 | 巡回管理/ペット飼育時:敷金2ヶ月※詳細はお問い合わせください 短期解約違約金有※詳細はお問い合わせください エアコンクリーニング費用:16500円/台 駐輪場:有り※詳細・空要確認 合計6.05万円(内訳:24Hサポート1.65万円鍵交換代4.4万円) 室内清掃費用 49500円 1K 単身者可/ペット相談 普通借家2年 損保【2.2万円2年】 バストイレ別、バルコニー、エアコン、ガスコンロ対応、クロゼット、フローリング、TVインターホン、浴室乾燥機、オートロック、室内洗濯置、シューズボックス、システムキッチン、温水洗浄便座、エレベーター、洗面化粧台、2口コンロ、駐輪場、宅配ボックス、即入居可、敷金不要、防犯カメラ、ペット相談、分譲賃貸、保証人不要、2沿線利用可、ネット使用料不要、2駅利用可、3駅以上利用可、24時間ゴミ出し可、敷地内ごみ置き場、都市ガス、保証会社利用可 敷金積み増し【ペット飼育の場合敷金2ヶ月(総額)】 | ||
部屋の情報
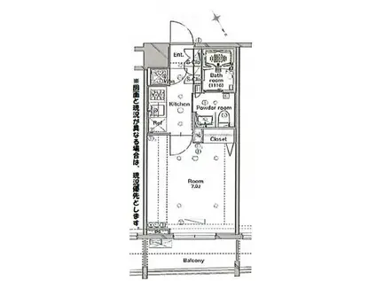
| 間取り | 1K | 専有面積 | 25.62m2 |
|---|---|---|---|
| 所在階 / 向き | 7階 / 北東 | バルコニー面積 | - |
| 水道 / ガス | - | ||
| 設備 | バス・トイレ別、2階以上、オートロック、テレビドアホン、宅配ボックス、浴室乾燥機、インターネット対応、システムキッチン、エアコン、エレベーター、温水洗浄便座、バルコニー、フローリング、2口コンロ、コンロ:ガス、インターネット使用料無料、洗濯機:室内 | ||
| 当社物件ID | 30306577 | ||
建物の情報
| 建物名 | メイクスデザイン南青山 | ||
|---|---|---|---|
| 所在地 | 東京都港区南青山 | ||
| 交通 | 東京メトロ千代田線 表参道駅 徒歩12分 東京メトロ日比谷線 六本木駅 徒歩13分 東京メトロ日比谷線 広尾駅 徒歩14分 | ||
| 階数 | 12階建 | 総戸数 | - |
| 築年月 | 2012年09月 / 築14年 | エレベーター | あり |
| 駐車場 | なし | バイク置き場 | - |
| 駐輪場 | あり | 管理人/管理会社 | - |
| 周辺環境 | その他 セブンイレブン 西麻布4丁目店(コンビニ)まで82m その他 成城石井 西麻布店(スーパー)まで260m その他 株式会社清水薬局 本店(ドラッグストア)まで154m | ||
| 建物種別 | マンション | 建物構造 | RC(鉄筋コンクリート) |
この部屋の取扱い不動産会社
| 会社名 | そらうみリアルエステート(株)本店(SUUMO経由) | ||
|---|---|---|---|
| 所在地 | 東京都港区麻布十番2-20-14 麻布十番ハウス104 | 交通 | - |
| 営業時間 | 午前9時30分~午後9時30分 | 定休日 | 無休 |
| 免許番号 | 東京都知事94395 | 取引態様 | 仲介 |
| 不動産会社管理番号 | 100482759479 | 当社管理番号 | 89 |
| 所属団体 | (公社)東京都宅地建物取引業協会会員 | ||
| 公正取引協議会 | (公社)首都圏不動産公正取引協議会加盟 | ||
| 取扱い物件情報 | 物件詳細へ | ||
※各種情報と現状に差異がある場合は、現状優先となります。問い合わせをすることで、より詳しい条件、情報を確認する事ができます。
提供:そらうみリアルエステート(株)本店(SUUMO経由)
この物件が気になったら掲載期限まであと10日
メイクスデザイン南青山に条件(家賃・エリア)が近い物件一覧
| 写真 | 家賃 管理費等 | 敷金 礼金 | 間取り 専有面積 | 築年数 | 最寄り駅 所在地 | キープ | 詳細 |
|---|---|---|---|---|---|---|---|
マンション GRAN PASEO大森Ⅲ(ワンルーム/1階) | |||||||
![]() | 11万円 1万円 | なし なし | ワンルーム 20.01m2 | 築1年 | 京浜急行電鉄本線 大森海岸駅 徒歩6分 京浜東北・根岸線 大森駅(東京) 徒歩10分 東京モノレール羽田 大井競馬場前駅 徒歩22分 東京都品川区南大井3丁目 | 詳細を見る | |
一戸建て 東京地下鉄有楽町線 豊洲駅 徒歩12分 築51年(3DK) | |||||||
![]() | 13.8万円 なし | 13.8万円 13.8万円 | 3DK 64.71m2 | 築51年 | 東京地下鉄有楽町線 豊洲駅 徒歩12分 京葉線 潮見駅 徒歩20分 東京地下鉄東西線 木場駅 徒歩24分 東京都江東区枝川1丁目 | 詳細を見る | |
マンション パークフロント代々木(1LDK/2階) | |||||||
![]() | 21.3万円 7,000円 | 21.3万円 42.6万円 | 1LDK 42.66m2 | 築6年 | 小田急線 代々木八幡駅 徒歩4分 東京メトロ千代田線 代々木公園駅 徒歩4分 東京都渋谷区代々木 | 詳細を見る | |
マンション ヴェラハイツ日本橋蛎殻町(ワンルーム/2階) | |||||||
![]() | 10.5万円 1.5万円 | 10.5万円 10.5万円 | ワンルーム 26.9m2 | 築43年 | 東京地下鉄日比谷線 茅場町駅 徒歩5分 東京地下鉄東西線 茅場町駅 徒歩5分 東京都浅草線 人形町駅 徒歩7分 東京都中央区日本橋蛎殻町1丁目 | 詳細を見る | |
マンション プラウドフラット南品川(1K/1階) | |||||||
![]() | 12.2万円 1万円 | 12.2万円 12.2万円 | 1K 25.44m2 | 築7年 | 京急本線 青物横丁駅 徒歩5分 りんかい線 品川シーサイド駅 徒歩11分 JR京浜東北線 大井町駅 徒歩16分 東京都品川区南品川 | 詳細を見る | |
マンション ハイツ髙沢(1LDK/2階) | |||||||
![]() | 13.5万円 5,000円 | 13.5万円 27万円 | 1LDK 32.89m2 | 築7年 | 東急池上線 旗の台駅 徒歩5分 東急大井町線 荏原町駅 徒歩6分 横須賀線 西大井駅 徒歩21分 東京都品川区旗の台4丁目 | 詳細を見る | |
マンション ONE ROOF FLAT TSUKISHIMA(1K/2階) | |||||||
![]() | 12.9万円 1.5万円 | 12.9万円 12.9万円 | 1K 25.02m2 | 築11年 | 東京地下鉄有楽町線 月島駅 徒歩4分 東京都大江戸線 月島駅 徒歩4分 東京都大江戸線 勝どき駅 徒歩6分 東京都中央区月島4丁目 | 詳細を見る | |
マンション クレイシア秋葉原ラグゼスウィート(1DK/3階) | |||||||
![]() | 15.3万円 1.2万円 | 15.3万円 15.3万円 | 1DK 30.48m2 | 築7年 | 総武本線 馬喰町駅 徒歩5分 東京都新宿線 岩本町駅 徒歩6分 山手線 秋葉原駅 徒歩8分 東京都千代田区東神田2丁目 | 詳細を見る | |








