賃貸アパート
クリスタルリバー七番館の賃貸物件情報(1LDK/3階)
| 家賃 | 管理費等 | 敷金 | 礼金 | 間取り | 専有面積 |
|---|---|---|---|---|---|
| 5万円 | 4,000円 | なし | なし | 1LDK | 32.3m2 |
入居決定でお祝い金最大100,000円
- 保証金
- -
- 償却・敷引
- -
- 築年数
- 築19年
- 所在階
- 3階
- 向き
- 西
Point
JR札沼線「太平」駅徒歩23分☆人気の1LDKに募集が出ました♪32平米以上・灯油暖房、カメラ付きインターホン付き物件!(^^)!☆店舗公式LINE登録orお電話でお問合せで初期費用軽減!
提供:ピタットハウス学園前店コア電子(株)(SUUMO経由)

詳細情報 クリスタルリバー七番館
物件紹介
クリスタルリバー七番館はJR札沼線太平駅から徒歩16分にあるアパートです。
このお部屋は2階以上に位置しているので、通行人や周囲の住人からの視線が気になりにくく、防犯面でも安心。インターホンにはTVモニタもついているため、相手の顔を確認してから来客対応することができます。
こちらは楽器相談が可能な物件。楽器演奏をお考えの方はぜひ相談してみてください。フローリングのお部屋なのでお掃除もラクラク。バス・トイレ別の仕様で、のんびりお風呂タイムも楽しめます。
通信設備面では、インターネット接続が可能です。また、CATVにも対応しているので、おうち時間も充実するでしょう(別途工事、契約料が必要な場合あり)。
このお部屋は2階以上に位置しているので、通行人や周囲の住人からの視線が気になりにくく、防犯面でも安心。インターホンにはTVモニタもついているため、相手の顔を確認してから来客対応することができます。
こちらは楽器相談が可能な物件。楽器演奏をお考えの方はぜひ相談してみてください。フローリングのお部屋なのでお掃除もラクラク。バス・トイレ別の仕様で、のんびりお風呂タイムも楽しめます。
通信設備面では、インターネット接続が可能です。また、CATVにも対応しているので、おうち時間も充実するでしょう(別途工事、契約料が必要な場合あり)。
お金・契約の情報
※「-」と表示されているものは、実際は料金が発生するものもございます。詳細はお問い合わせください。
| 家賃 | 5万円 | 管理費・共益費 | 4,000円 |
|---|---|---|---|
| 敷金 | なし | 礼金 | なし |
| 入居決定でお祝い金最大100,000円 | |||
| 保証金 | - | 償却・敷引 | - |
| 住宅保険料 | - | 更新料 | - |
| 保証会社利用 | 必須 | 保証会社名 | - |
| 保証会社費用 | - | 保証会社備考 | 保証会社利用必 賃料等の0.3~1ヶ月分(最低保証料2万円)継続保証料1万円/年 |
| 契約形態 | - | 契約期間 | - |
| 入居・引渡期間 | 即時 | 現況 | - |
| 入居可能条件 | 楽器相談 | ||
| 契約備考 | 巡回管理/入居日相談可/フリーレント(家賃無料期間)交渉可クレジット支払以外の分割支払い相談可♪ 合計5.5万円(内訳:水廻り消毒料 契約時 33000円 鍵交換代 22000円税込) 24時間管理費 1650円/月額 1LDK 二人入居可/楽器相談 普通借家2年 損保【2万円2年】 バストイレ別、バルコニー、ガスコンロ対応、フローリング、TVインターホン、洗面所独立、駐輪場、CATV、光ファイバー、即入居可、閑静な住宅地、最上階、二人入居相談、ネット専用回線、楽器相談、平坦地、3駅以上利用可、敷地内ごみ置き場、全居室6畳以上、プロパンガス、高速ネット対応、敷金・礼金不要、初期費用カード決済可 | ||
部屋の情報
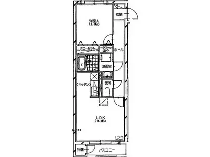
| 間取り | 1LDK | 専有面積 | 32.3m2 |
|---|---|---|---|
| 所在階 / 向き | 3階 / 西 | バルコニー面積 | 2m2 |
| 水道 / ガス | - | ||
| 設備 | バス・トイレ別、2階以上、テレビドアホン、インターネット対応、バルコニー、フローリング、洗髪洗面化粧台、コンロ:ガス、CATV | ||
| 当社物件ID | 159820950 | ||
建物の情報
| 建物名 | クリスタルリバー七番館 | ||
|---|---|---|---|
| 所在地 | 北海道札幌市北区屯田六条 | ||
| 交通 | JR札沼線 太平駅 徒歩16分 JR札沼線 百合が原駅 徒歩19分 JR札沼線 篠路駅 徒歩26分 | ||
| 階数 | 3階建 | 総戸数 | 15戸 |
| 築年月 | 2007年09月 / 築19年 | エレベーター | - |
| 駐車場 | 空有 6600円 | バイク置き場 | - |
| 駐輪場 | あり | 管理人/管理会社 | - |
| 周辺環境 | その他 業務スーパー屯田店(スーパー)まで287m その他 セブンイレブン札幌太平6条1丁目店(コンビニ)まで489m その他 医療法人社団荒木病院(病院)まで1957m その他 札幌屯田八条郵便局(郵便局)まで905m その他 北洋銀行屯田支店(銀行)まで667m その他 ユニクロ札幌屯田店(ショッピングセンター)まで751m | ||
| 建物種別 | アパート | 建物構造 | RC(鉄筋コンクリート) |
この部屋の取扱い不動産会社
| 会社名 | ピタットハウス東区役所前店コア電子(株)(SUUMO経由) | ||
|---|---|---|---|
| 所在地 | 北海道札幌市東区北十二条東8-1-6 | 交通 | - |
| 営業時間 | 9:30~18:30 | 定休日 | 年末年始12月30日~1月4日 |
| 免許番号 | 北海道知事石狩7140 | 取引態様 | 仲介 |
| 不動産会社管理番号 | 100480709052 | 当社管理番号 | 89 |
| 所属団体 | (公社)北海道宅地建物取引業協会会員 | ||
| 公正取引協議会 | (一社)北海道不動産公正取引協議会加盟 | ||
| 取扱い物件情報 | 物件詳細へ | ||
※各種情報と現状に差異がある場合は、現状優先となります。問い合わせをすることで、より詳しい条件、情報を確認する事ができます。
提供:ピタットハウス東区役所前店コア電子(株)(SUUMO経由)
この物件が気になったら掲載期限まであと10日
クリスタルリバー七番館に条件(家賃・エリア)が近い物件一覧
| 写真 | 家賃 管理費等 | 敷金 礼金 | 間取り 専有面積 | 築年数 | 最寄り駅 所在地 | キープ | 詳細 |
|---|---|---|---|---|---|---|---|
マンション NOBLE VISTA ENI (1LDK/4階) | |||||||
![]() | 6.4万円 3,000円 | 6.4万円 なし | 1LDK 36.76m2 | 新築 | JR千歳線 恵庭駅 徒歩9分 北海道恵庭市相生町 | 詳細を見る | |
アパート レオパレスSAS62(1K/1階) | |||||||
![]() | 5万円 6,500円 | なし なし | 1K 23.18m2 | 築19年 | 札沼線 拓北駅 徒歩13分 北海道札幌市北区拓北二条2丁目 | 詳細を見る | |
アパート パークサイドハイツ(1DK/2階) | |||||||
![]() | 3.5万円 なし | なし 3.5万円 | 1DK 31.41m2 | 築44年 | 函館本線 小樽駅 徒歩14分 北海道小樽市花園4丁目 | 詳細を見る | |
マンション ビレッジハウス新川6号棟(1LDK/1階) | |||||||
![]() | 3.84万円 なし | なし なし | 1LDK 40.81m2 | 築50年 | JR函館本線 発寒駅 徒歩38分 JR札沼線 新川駅(北海道) 徒歩39分 JR札沼線 新琴似駅 徒歩49分 北海道札幌市北区新川六条 | 詳細を見る | |
マンション BLITZ(1LDK/4階) | |||||||
![]() | 7.3万円 4,000円 | 7.3万円 なし | 1LDK 35.34m2 | 築1年 | JR千歳線 千歳駅(北海道) 徒歩13分 北海道千歳市栄町 | 詳細を見る | |
タウンハウス 萌えぎ野タウンハウス(2LDK) | |||||||
![]() | 5.2万円 3,000円 | なし 2.6万円 | 2LDK 62.11m2 | 築22年 | 函館本線 江別駅 徒歩27分 北海道江別市萌えぎ野西 | 詳細を見る | |
マンション 黄金北3丁目MS B棟(1LDK/3階) | |||||||
![]() | 6.2万円 4,000円 | なし 6.2万円 | 1LDK 34.1m2 | 新築 | 千歳線 恵庭駅 徒歩14分 北海道恵庭市黄金北3丁目 | 詳細を見る | |
マンション グレイス23(1DK/4階) | |||||||
![]() | 3.8万円 5,000円 | 3.8万円 なし | 1DK 26.35m2 | 築41年 | 札幌市南北線 北24条駅 徒歩2分 北海道札幌市北区北二十三条西3丁目 | 詳細を見る | |







/105x80-f1-q70-wp1)
