賃貸マンション
LASANTE広尾 ラサンテ広尾の賃貸物件情報(1K/8階)
| 家賃 | 管理費等 | 敷金 | 礼金 | 間取り | 専有面積 |
|---|---|---|---|---|---|
| 15万円 | 1万円 | 15万円 | 15万円 | 1K | 20.87m2 |
入居決定でお祝い金最大100,000円
- 保証金
- -
- 償却・敷引
- -
- 築年数
- 築19年
- 所在階
- 8階
- 向き
- -
Point
★システムキッチン・2口ガスコンロ★浴室乾燥機★室内洗濯機置場★温水洗浄便座★フローリング★エアコン★TVインターホン★オートロック★駐輪場・バイク置場★詳細はお気軽にお問い合わせください!★
提供:(株)ユウキ・ホーム麻布十番サテライト店(SUUMO経由)

詳細情報 LASANTE広尾 ラサンテ広尾
物件紹介
LASANTE広尾 ラサンテ広尾はJR山手線恵比寿駅から徒歩9分にあり、駅近で通勤通学に便利なマンションです。
このお部屋は2階以上に位置しているので、通行人や周囲の住人からの視線が気になりにくく、防犯面でも安心。建物のエントランスはオートロックがついており、インターホンにはTVモニタもついているため、相手の顔を確認してから来客対応することができます。
人気の角部屋で周囲の居住者の生活音も気になりにくく、また、フローリングのお部屋なのでお掃除もラクラク。キッチンはシステムキッチン仕様になっていますので、お料理好きの方にもぴったり。バス・トイレは別なので、のんびりお風呂タイムも楽しめるでしょう。また、雨の日でも浴室乾燥機を使えば、お洗濯も問題ありません。
通信設備面では、インターネットが無料で使えるので、月々の出費を抑えられるのも魅力です。また、BSアンテナ・CSアンテナがありCATVにも対応しているので、おうち時間も充実するでしょう(別途工事、BS・CS・CATVの契約料等が必要な場合あり)。
建物にはエレベーターがついているので、重い荷物があっても安心。共用部には宅配ボックスが設定されているので、不在の時にも荷物を受け取ることができます。また、ペット飼育の相談ができますので、あなたの大切な家族の一員も快適に暮らせるか、ぜひ確認してみてください。
このお部屋は2階以上に位置しているので、通行人や周囲の住人からの視線が気になりにくく、防犯面でも安心。建物のエントランスはオートロックがついており、インターホンにはTVモニタもついているため、相手の顔を確認してから来客対応することができます。
人気の角部屋で周囲の居住者の生活音も気になりにくく、また、フローリングのお部屋なのでお掃除もラクラク。キッチンはシステムキッチン仕様になっていますので、お料理好きの方にもぴったり。バス・トイレは別なので、のんびりお風呂タイムも楽しめるでしょう。また、雨の日でも浴室乾燥機を使えば、お洗濯も問題ありません。
通信設備面では、インターネットが無料で使えるので、月々の出費を抑えられるのも魅力です。また、BSアンテナ・CSアンテナがありCATVにも対応しているので、おうち時間も充実するでしょう(別途工事、BS・CS・CATVの契約料等が必要な場合あり)。
建物にはエレベーターがついているので、重い荷物があっても安心。共用部には宅配ボックスが設定されているので、不在の時にも荷物を受け取ることができます。また、ペット飼育の相談ができますので、あなたの大切な家族の一員も快適に暮らせるか、ぜひ確認してみてください。
お金・契約の情報
※「-」と表示されているものは、実際は料金が発生するものもございます。詳細はお問い合わせください。
| 家賃 | 15万円 | 管理費・共益費 | 1万円 |
|---|---|---|---|
| 敷金 | 15万円 | 礼金 | 15万円 |
| 入居決定でお祝い金最大100,000円 | |||
| 保証金 | - | 償却・敷引 | - |
| 住宅保険料 | - | 更新料 | - |
| 保証会社利用 | 必須 | 保証会社名 | - |
| 保証会社費用 | - | 保証会社備考 | 保証会社利用必 保証料:月額総賃料の50% 詳細はお問い合わせください。 |
| 契約形態 | - | 契約期間 | - |
| 入居・引渡期間 | - | 現況 | - |
| 入居可能条件 | ペット相談 | ||
| 契約備考 | 巡回管理/駐車場・駐輪場・バイク置場:空詳細要確認 短期解約違約金:1年未満1ヶ月 ペット飼育時:敷金1ヶ月追加 退去時エアコン清掃費:19800円 合計5.83万円(内訳:MREALプレミアム会費2年1.98万円鍵交換代3.85万円) 室内清掃費用 41322円 1K 単身者可/ペット相談 普通借家2年 損保【3.2万円2年】 バストイレ別、バルコニー、エアコン、ガスコンロ対応、クロゼット、フローリング、TVインターホン、浴室乾燥機、オートロック、室内洗濯置、シューズボックス、システムキッチン、角住戸、温水洗浄便座、エレベーター、2口コンロ、駐輪場、宅配ボックス、防犯カメラ、ペット相談、保証人不要、バイク置場、2沿線利用可、ネット使用料不要、2駅利用可、3駅以上利用可、3沿線以上利用可、駅徒歩10分以内、24時間ゴミ出し可、敷地内ごみ置き場、都市ガス、保証会社利用可 敷金積み増し【ペット飼育の場合敷金2ヶ月(総額)】 入居日:'26年5月中旬 | ||
部屋の情報
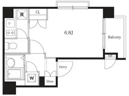
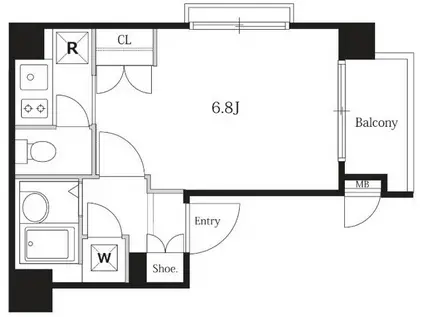
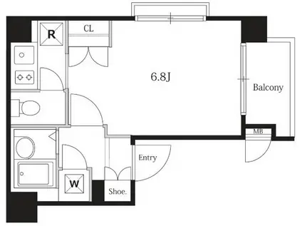
| 間取り | 1K | 専有面積 | 20.87m2 |
|---|---|---|---|
| 所在階 / 向き | 8階 / - | バルコニー面積 | - |
| 水道 / ガス | - | ||
| 設備 | バス・トイレ別、2階以上、オートロック、テレビドアホン、宅配ボックス、浴室乾燥機、インターネット対応、システムキッチン、エアコン、エレベーター、温水洗浄便座、角部屋、バルコニー、フローリング、2口コンロ、コンロ:ガス、インターネット使用料無料、洗濯機:室内 | ||
| 当社物件ID | 160513655 | ||
建物の情報
| 建物名 | LASANTE広尾 ラサンテ広尾 | ||
|---|---|---|---|
| 所在地 | 東京都渋谷区広尾 | ||
| 交通 | JR山手線 恵比寿駅 徒歩9分 東京メトロ日比谷線 広尾駅 徒歩9分 東急東横線 代官山駅 徒歩19分 | ||
| 階数 | 10階建 | 総戸数 | 121戸 |
| 築年月 | 2007年06月 / 築19年 | エレベーター | あり |
| 駐車場 | なし | バイク置き場 | あり |
| 駐輪場 | あり | 管理人/管理会社 | - |
| 周辺環境 | その他 ローソン 広尾南店(コンビニ)まで89m その他 アサヒ薬局(ドラッグストア)まで120m その他 まいばすけっと 広尾5丁目店(スーパー)まで308m | ||
| 建物種別 | マンション | 建物構造 | RC(鉄筋コンクリート) |
この部屋の取扱い不動産会社
| 会社名 | そらうみリアルエステート(株)賃貸事業本部(SUUMO経由) | ||
|---|---|---|---|
| 所在地 | 東京都港区麻布十番1-11-16 SHビル1階 | 交通 | - |
| 営業時間 | 午前9時30分~午後9時30分 | 定休日 | 無休 |
| 免許番号 | 東京都知事94395 | 取引態様 | 仲介 |
| 不動産会社管理番号 | 100492075285 | 当社管理番号 | 89 |
| 所属団体 | (公社)東京都宅地建物取引業協会会員 | ||
| 公正取引協議会 | (公社)首都圏不動産公正取引協議会加盟 | ||
| 取扱い物件情報 | 物件詳細へ | ||
※各種情報と現状に差異がある場合は、現状優先となります。問い合わせをすることで、より詳しい条件、情報を確認する事ができます。
提供:そらうみリアルエステート(株)賃貸事業本部(SUUMO経由)
この物件が気になったら掲載期限まであと12日
LASANTE広尾 ラサンテ広尾に条件(家賃・エリア)が近い物件一覧
| 写真 | 家賃 管理費等 | 敷金 礼金 | 間取り 専有面積 | 築年数 | 最寄り駅 所在地 | キープ | 詳細 |
|---|---|---|---|---|---|---|---|
マンション レクス武蔵小山(ワンルーム/2階) | |||||||
![]() | 10.3万円 1万円 | なし 10.3万円 | ワンルーム 19.43m2 | 築3年 | 東急目黒線 武蔵小山駅 徒歩5分 東急目黒線 不動前駅 徒歩11分 東急池上線 戸越銀座駅 徒歩12分 東京都品川区小山 | 詳細を見る | |
マンション リブリ・リバーサイド・住川(1K/1階) | |||||||
![]() | 13.6万円 4,000円 | なし 27.2万円 | 1K 24.25m2 | 築5年 | 東京メトロ日比谷線 中目黒駅 徒歩5分 東急東横線 代官山駅 徒歩12分 東急田園都市線 池尻大橋駅 徒歩19分 東京都目黒区青葉台 | 詳細を見る | |
アパート エクセル経堂(ワンルーム/2階) | |||||||
![]() | 11.5万円 2,000円 | 11.5万円 11.5万円 | ワンルーム 30.4m2 | 築13年 | 小田急線 経堂駅 徒歩7分 小田急線 豪徳寺駅 徒歩7分 東急世田谷線 山下駅(東京) 徒歩7分 東京都世田谷区宮坂 | 詳細を見る | |
マンション ブランノワール早稲田(ワンルーム/4階) | |||||||
![]() | 12.3万円 1.5万円 | なし 12.3万円 | ワンルーム 24.75m2 | 築19年 | 東京メトロ有楽町線 江戸川橋駅 徒歩6分 東京メトロ東西線 早稲田駅(メトロ) 徒歩8分 都営大江戸線 牛込柳町駅 徒歩15分 東京都新宿区早稲田鶴巻町 | 詳細を見る | |
マンション ルキシア神楽坂(1DK/6階) | |||||||
![]() | 15.1万円 1.4万円 | なし 15.1万円 | 1DK 32.72m2 | 築5年 | 東京メトロ東西線 神楽坂駅 徒歩8分 都営大江戸線 飯田橋駅 徒歩9分 東京メトロ有楽町線 江戸川橋駅 徒歩10分 東京都新宿区東五軒町 | 詳細を見る | |
マンション クレイシア新宿中落合(1K/4階) | |||||||
![]() | 9.55万円 1.2万円 | 9.55万円 9.55万円 | 1K 25.35m2 | 築6年 | 西武新宿線 下落合駅(東京) 徒歩9分 西武池袋線 椎名町駅 徒歩9分 都営大江戸線 落合南長崎駅 徒歩11分 東京都新宿区中落合 | 詳細を見る | |
マンション FUU OIMACHI BY LATIERRA(1K/7階) | |||||||
![]() | 11.5万円 2万円 | 11.5万円 なし | 1K 17.92m2 | 築35年 | JR京浜東北線 大井町駅 徒歩7分 東急大井町線 大井町駅 徒歩8分 東急大井町線 下神明駅 徒歩10分 東京都品川区大井 | 詳細を見る | |
マンション BRILLIA TOWER 浜離宮(1K/12階) | |||||||
![]() | 18.8万円 2万円 | なし なし | 1K 25.13m2 | 築3年 | JR山手線 浜松町駅 徒歩5分 東京都港区海岸 | 詳細を見る | |








