賃貸アパート
コーポK-1の賃貸物件情報(1LDK/2階)
| 家賃 | 管理費等 | 敷金 | 礼金 | 間取り | 専有面積 |
|---|---|---|---|---|---|
| 4.8万円 | なし | 4.8万円 | なし | 1LDK | 38m2 |
入居決定でお祝い金最大100,000円
Point
当店ではご自宅にいながら、スマホ等を使った「オンライン内見」、「オンライン重説」でのご契約手続きまで可能です。非対面で現地(物件)にいるスタッフとWebを使ってリアルタイムで内見できます。
提供:いい部屋ネット大東建託リーシング(株)鳥取店(SUUMO経由)

詳細情報 コーポK-1
物件紹介
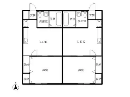
コーポK-1は一畑電車北松江線松江しんじ湖温泉駅から徒歩11分にあるアパートです。
このお部屋は2階以上に位置しているので、通行人や周囲の住人からの視線が気になりにくく、防犯面でも安心。インターホンにはTVモニタもついているため、相手の顔を確認してから来客対応することができます。
人気の南向き・フローリングのお部屋。角部屋でもあるため、周囲の居住者の生活音も気になりにくい場所です。バス・トイレ別の仕様で、のんびりお風呂タイムも楽しめます。
このお部屋は2階以上に位置しているので、通行人や周囲の住人からの視線が気になりにくく、防犯面でも安心。インターホンにはTVモニタもついているため、相手の顔を確認してから来客対応することができます。
人気の南向き・フローリングのお部屋。角部屋でもあるため、周囲の居住者の生活音も気になりにくい場所です。バス・トイレ別の仕様で、のんびりお風呂タイムも楽しめます。
お金・契約の情報
※「-」と表示されているものは、実際は料金が発生するものもございます。詳細はお問い合わせください。
| 家賃 | 4.8万円 | 管理費・共益費 | なし |
|---|---|---|---|
| 敷金 | 4.8万円 | 礼金 | なし |
| 入居決定でお祝い金最大100,000円 | |||
| 保証金 | - | 償却・敷引 | - |
| 住宅保険料 | - | 更新料 | - |
| 保証会社利用 | 必須 | 保証会社名 | - |
| 保証会社費用 | - | 保証会社備考 | 保証会社利用必 詳細1:■保証会社要加入:初回保証料 賃料総額の40% / 連帯保証人1名必要¥ 1年毎更新料 15,000円 / 賃料振替手数料毎月440円 |
| 契約形態 | - | 契約期間 | - |
| 入居・引渡期間 | 即時 | 現況 | - |
| 契約備考 | 礼金、更新料不要、入居時のカギ交換費用不要■退去時:ハウスクリーニング費用をご負担いただきます。住宅総合保険加入要 2年間(更新必要)駐車場:有(料金込み) 1LDK 損保【要】 バストイレ別、エアコン、クロゼット、フローリング、TVインターホン、室内洗濯置、南向き、角住戸、駐輪場、礼金不要、最上階、IT重説対応物件、初期費用カード決済可 | ||
部屋の情報
| 間取り | 1LDK | 専有面積 | 38m2 |
|---|---|---|---|
| 所在階 / 向き | 2階 / 南 | バルコニー面積 | - |
| 水道 / ガス | - | ||
| 設備 | バス・トイレ別、2階以上、テレビドアホン、エアコン、南向き、角部屋、フローリング、洗濯機:室内 | ||
| 当社物件ID | 28471763 | ||
建物の情報
| 建物名 | コーポK-1 | ||
|---|---|---|---|
| 所在地 | 島根県松江市砂子町 | ||
| 交通 | 一畑電車北松江線 松江しんじ湖温泉駅 徒歩11分 | ||
| 階数 | 2階建 | 総戸数 | - |
| 築年月 | 1971年01月 / 築56年 | エレベーター | - |
| 駐車場 | 空有 付無料 | バイク置き場 | - |
| 駐輪場 | あり | 管理人/管理会社 | - |
| 周辺環境 | その他 大阪王将 松江黒田店(飲食店)まで586m その他 Verde(ヴェルデ) 中原店(スーパー)まで593m その他 マルマン黒田店(スーパー)まで1163m その他 ドラッグストアウェルネス黒田店(ドラッグストア)まで871m その他 ラパン母衣町店(スーパー)まで1743m その他 Mishimaya(みしまや) 春日店(スーパー)まで1661m | ||
| 建物種別 | アパート | 建物構造 | 木造 |
この部屋の取扱い不動産会社
| 会社名 | いい部屋ネット大東建託リーシング(株)松江店(SUUMO経由) | ||
|---|---|---|---|
| 所在地 | 島根県松江市西津田2-6-33 西津田テナントB棟1階 | 交通 | - |
| 営業時間 | 10:00~12:30 13:30~18:00 | 定休日 | 火曜日・水曜日 |
| 免許番号 | 国土交通大臣9120 | 取引態様 | 仲介 |
| 不動産会社管理番号 | 100468342172 | 当社管理番号 | 89 |
| 所属団体 | (公財)日本賃貸住宅管理協会会員 | ||
| 公正取引協議会 | (公社)首都圏不動産公正取引協議会加盟 | ||
| 取扱い物件情報 | 物件詳細へ | ||
※各種情報と現状に差異がある場合は、現状優先となります。問い合わせをすることで、より詳しい条件、情報を確認する事ができます。
提供:いい部屋ネット大東建託リーシング(株)松江店(SUUMO経由)
この物件が気になったら掲載期限まであと10日
コーポK-1に条件(家賃・エリア)が近い物件一覧
| 写真 | 家賃 管理費等 | 敷金 礼金 | 間取り 専有面積 | 築年数 | 最寄り駅 所在地 | キープ | 詳細 |
|---|---|---|---|---|---|---|---|
アパート エムトラスト(1K/1階) | |||||||
![]() | 4.35万円 2,300円 | なし 5.85万円 | 1K 26.11m2 | 築8年 | JR山陰本線 出雲市駅 徒歩11分 島根県出雲市塩冶町 | 詳細を見る | |
マンション 堂形マンション(1K/5階) | |||||||
![]() | 3.3万円 3,000円 | なし なし | 1K 18.5m2 | 築53年 | 一畑電車北松江線 松江しんじ湖温泉駅 徒歩5分 島根県松江市堂形町 | 詳細を見る | |
マンション シャムロック(2DK/1階) | |||||||
![]() | 5万円 3,000円 | 5万円 なし | 2DK 52.5m2 | 築23年 | JR山陰本線 松江駅 徒歩33分 JR山陰本線 東松江駅(島根) 徒歩58分 島根県松江市東津田町 | 詳細を見る | |
アパート シェリール(2DK/2階) | |||||||
![]() | 6.1万円 2,000円 | 6.1万円 6.1万円 | 2DK 58.4m2 | 築17年 | JR山陰本線 松江駅 徒歩20分 島根県松江市東津田町 | 詳細を見る | |
アパート プチ・プランタンⅦ(1LDK/2階) | |||||||
![]() | 4.9万円 1,800円 | なし 6.4万円 | 1LDK 48.38m2 | 築12年 | 島根県出雲市築山新町 | 詳細を見る | |
アパート サンクレストI(1K/2階) | |||||||
![]() | 2.9万円 なし | なし なし | 1K 17.39m2 | 築35年 | 一畑電車北松江線 松江しんじ湖温泉駅 徒歩19分 一畑電車北松江線 松江イングリッシュガーデン前駅 徒歩39分 JR山陰本線 松江駅 徒歩46分 島根県松江市国屋町 | 詳細を見る | |
アパート TRIANON.K(1LDK/2階) | |||||||
![]() | 6.9万円 4,000円 | 6.9万円 なし | 1LDK 42.82m2 | 築1年 | 島根県松江市古志原2丁目 | 詳細を見る | |
マンション グリーンハイツ堂形(1DK/4階) | |||||||
![]() | 3万円 5,000円 | なし なし | 1DK 24.91m2 | 築46年 | 一畑電車北松江線 松江しんじ湖温泉駅 徒歩10分 島根県松江市堂形町 | 詳細を見る | |









