賃貸マンション
ルーブル新宿西落合七番館の賃貸物件情報(1K/4階)
| 家賃 | 管理費等 | 敷金 | 礼金 | 間取り | 専有面積 |
|---|---|---|---|---|---|
| 7.4万円 | 8,000円 | 7.4万円 | 7.4万円 | 1K | 20.25m2 |
入居決定でお祝い金最大100,000円
- 保証金
- -
- 償却・敷引
- -
- 築年数
- 築21年
- 所在階
- 4階
- 向き
- 南西
Point
2駅2路線利用可能な便利な立地!ファミリー層も多く暮らす穏やかな環境です!5分圏内には、まいばすけっとやコンビニもあります。バルコニーからの眺望は開けているので日当たり・眺望良好です!
提供:THE SHOP アーバネスト(株)赤坂本店(SUUMO経由)

詳細情報 ルーブル新宿西落合七番館
物件紹介
ルーブル新宿西落合七番館は西武新宿線新井薬師前駅から徒歩6分にあり、駅近で通勤通学に便利なマンションです。
このお部屋は2階以上に位置しているので、通行人や周囲の住人からの視線が気になりにくく、防犯面でも安心。建物のエントランスはオートロックがついており、インターホンにはTVモニタもついているため、相手の顔を確認してから来客対応することができます。
人気の南向き・フローリングのお部屋。角部屋でもあるため、周囲の居住者の生活音も気になりにくい場所です。バス・トイレ別の仕様で、のんびりお風呂タイムも楽しめます。また、浴室乾燥機を使えば、雨の日でもお洗濯は問題ありません。
通信設備面では、インターネット接続が可能です(別途工事、契約料が必要な場合あり)。
建物にはエレベーターがついているので、重い荷物があっても安心。共用部には宅配ボックスが設定されているので、不在の時にも荷物を受け取ることができます。
このお部屋は2階以上に位置しているので、通行人や周囲の住人からの視線が気になりにくく、防犯面でも安心。建物のエントランスはオートロックがついており、インターホンにはTVモニタもついているため、相手の顔を確認してから来客対応することができます。
人気の南向き・フローリングのお部屋。角部屋でもあるため、周囲の居住者の生活音も気になりにくい場所です。バス・トイレ別の仕様で、のんびりお風呂タイムも楽しめます。また、浴室乾燥機を使えば、雨の日でもお洗濯は問題ありません。
通信設備面では、インターネット接続が可能です(別途工事、契約料が必要な場合あり)。
建物にはエレベーターがついているので、重い荷物があっても安心。共用部には宅配ボックスが設定されているので、不在の時にも荷物を受け取ることができます。
お金・契約の情報
※「-」と表示されているものは、実際は料金が発生するものもございます。詳細はお問い合わせください。
| 家賃 | 7.4万円 | 管理費・共益費 | 8,000円 |
|---|---|---|---|
| 敷金 | 7.4万円 | 礼金 | 7.4万円 |
| 入居決定でお祝い金最大100,000円 | |||
| 保証金 | - | 償却・敷引 | - |
| 住宅保険料 | - | 更新料 | - |
| 保証会社利用 | 必須 | 保証会社名 | - |
| 保証会社費用 | - | 保証会社備考 | 保証会社利用必 初回保証委託料は総賃料等の50%~ 月額1% |
| 契約形態 | - | 契約期間 | - |
| 入居・引渡期間 | - | 現況 | - |
| 契約備考 | 巡回管理/・更新料:新賃料の1ヵ月分・更新事務手数料:22,000円・短期解約違約金:1年未満で賃料1ヶ月分 合計5.72万円(内訳:契約事務手数料11000円/鍵交換費27500円/24時間サポート料18700円) 1K 普通借家2年 損保【2万円2年】 バストイレ別、バルコニー、エアコン、ガスコンロ対応、クロゼット、フローリング、TVインターホン、浴室乾燥機、オートロック、室内洗濯置、陽当り良好、シューズボックス、角住戸、温水洗浄便座、エレベーター、2口コンロ、駐輪場、宅配ボックス、光ファイバー、外壁タイル張り、閑静な住宅地、2面採光、防犯カメラ、分譲賃貸、敷金1ヶ月、ガスレンジ付、2沿線利用可、ディンプルキー、ネット専用回線、眺望良好、保証金不要、24時間換気システム、内階段、3駅以上利用可、駅徒歩10分以内、敷地内ごみ置き場、南西向き、都市ガス、高速ネット対応、礼金1ヶ月、IT重説対応物件、初期費用カード決済可、通風良好 入居日:'25年12月中旬 | ||
部屋の情報
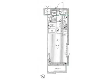
| 間取り | 1K | 専有面積 | 20.25m2 |
|---|---|---|---|
| 所在階 / 向き | 4階 / 南西 | バルコニー面積 | 2m2 |
| 水道 / ガス | - | ||
| 設備 | バス・トイレ別、2階以上、オートロック、テレビドアホン、宅配ボックス、浴室乾燥機、インターネット対応、エアコン、エレベーター、温水洗浄便座、南向き、角部屋、バルコニー、フローリング、2口コンロ、コンロ:ガス、洗濯機:室内 | ||
| 当社物件ID | 4531250 | ||
建物の情報
| 建物名 | ルーブル新宿西落合七番館 | ||
|---|---|---|---|
| 所在地 | 東京都新宿区西落合 | ||
| 交通 | 西武新宿線 新井薬師前駅 徒歩6分 西武新宿線 沼袋駅 徒歩10分 都営大江戸線 落合南長崎駅 徒歩13分 | ||
| 階数 | 5階建 | 総戸数 | 35戸 |
| 築年月 | 2005年03月 / 築21年 | エレベーター | あり |
| 駐車場 | なし | バイク置き場 | - |
| 駐輪場 | あり | 管理人/管理会社 | - |
| 周辺環境 | その他 まいばすけっと 新井薬師前駅北店(スーパー)まで138m その他 コーノ新井薬師店(スーパー)まで365m その他 セブンイレブン 中野新井薬師前駅北店(コンビニ)まで228m その他 ドラッグストアスマイル新井薬師店(ドラッグストア)まで337m その他 中野上高田郵便局(郵便局)まで621m その他 東京三協信用金庫西落合支店(銀行)まで437m | ||
| 建物種別 | マンション | 建物構造 | RC(鉄筋コンクリート) |
この部屋の取扱い不動産会社
| 会社名 | THE SHOP アーバネスト(株)赤坂本店(SUUMO経由) | ||
|---|---|---|---|
| 所在地 | 東京都港区赤坂3-15-5 アーベイン赤坂1階2階 | 交通 | - |
| 営業時間 | 10:00~19:00 | 定休日 | 無休 |
| 免許番号 | 東京都知事87852 | 取引態様 | 仲介 |
| 不動産会社管理番号 | 100473484342 | 当社管理番号 | 89 |
| 所属団体 | (公社)全日本不動産協会東京都本部会員 | ||
| 公正取引協議会 | (公社)首都圏不動産公正取引協議会加盟 | ||
| 取扱い物件情報 | 物件詳細へ | ||
※各種情報と現状に差異がある場合は、現状優先となります。問い合わせをすることで、より詳しい条件、情報を確認する事ができます。
提供:THE SHOP アーバネスト(株)赤坂本店(SUUMO経由)
この物件が気になったら掲載期限まであと10日
ルーブル新宿西落合七番館に条件(家賃・エリア)が近い物件一覧
| 写真 | 家賃 管理費等 | 敷金 礼金 | 間取り 専有面積 | 築年数 | 最寄り駅 所在地 | キープ | 詳細 |
|---|---|---|---|---|---|---|---|
マンション L-FLAT 白山(1K/3階) | |||||||
![]() | 10万円 1万円 | なし 10万円 | 1K 25.88m2 | 築20年 | 東京都三田線 白山駅(東京) 徒歩7分 東京都三田線 千石駅 徒歩8分 東京地下鉄南北線 本駒込駅 徒歩13分 東京都文京区白山4丁目 | 詳細を見る | |
マンション 菱和パレス御茶ノ水駿河台(1K/9階) | |||||||
![]() | 10.5万円 9,000円 | 10.5万円 10.5万円 | 1K 22.41m2 | 築26年 | 東京都新宿線 神保町駅 徒歩5分 東京都新宿線 小川町駅(東京) 徒歩5分 東京地下鉄丸ノ内線 淡路町駅 徒歩5分 東京都千代田区神田錦町3丁目 | 詳細を見る | |
マンション レジディア文京湯島Ⅱ(ワンルーム/8階) | |||||||
![]() | 9.7万円 1万円 | なし なし | ワンルーム 19.87m2 | 築22年 | 東京地下鉄千代田線 湯島駅 徒歩1分 山手線 御徒町駅 徒歩5分 東京地下鉄銀座線 上野広小路駅 徒歩5分 東京都文京区湯島3丁目 | 詳細を見る | |
マンション アドリーム千駄木(1K/5階) | |||||||
![]() | 7.3万円 6,000円 | 7.3万円 7.3万円 | 1K 16.35m2 | 築32年 | 山手線 西日暮里駅 徒歩10分 東京地下鉄千代田線 千駄木駅 徒歩10分 東京地下鉄南北線 本駒込駅 徒歩13分 東京都文京区千駄木4丁目 | 詳細を見る | |
マンション イクス・ピア(1K/2階) | |||||||
![]() | 7.5万円 3,000円 | 7.5万円 7.5万円 | 1K 16.05m2 | 築18年 | 東京地下鉄南北線 本駒込駅 徒歩6分 山手線 駒込駅 徒歩12分 東京都三田線 白山駅(東京) 徒歩12分 東京都文京区本駒込3丁目 | 詳細を見る | |
マンション カーサラスク目白台(1K/3階) | |||||||
![]() | 11.3万円 5,000円 | 11.3万円 11.3万円 | 1K 25.94m2 | 築11年 | 東京地下鉄有楽町線 護国寺駅 徒歩5分 東京地下鉄副都心線 雑司が谷駅(東京メトロ) 徒歩11分 東京地下鉄有楽町線 東池袋駅 徒歩15分 東京都文京区目白台2丁目 | 詳細を見る | |
マンション メインステージ御茶ノ水(1K/2階) | |||||||
![]() | 9.2万円 8,000円 | 9.2万円 9.2万円 | 1K 18.44m2 | 築25年 | 東京地下鉄千代田線 湯島駅 徒歩5分 東京地下鉄銀座線 上野広小路駅 徒歩9分 山手線 御徒町駅 徒歩9分 東京都文京区湯島2丁目 | 詳細を見る | |
マンション ペントス神田五軒町(1K/3階) | |||||||
![]() | 9.8万円 3,000円 | 4.9万円 19.6万円 | 1K 20.65m2 | 築17年 | 東京地下鉄銀座線 末広町駅(東京) 徒歩3分 山手線 御徒町駅 徒歩8分 山手線 秋葉原駅 徒歩9分 東京都千代田区外神田6丁目 | 詳細を見る | |









