賃貸アパート
メゾンクレール壺川の賃貸物件情報(1LDK/2階)
| 家賃 | 管理費等 | 敷金 | 礼金 | 間取り | 専有面積 |
|---|---|---|---|---|---|
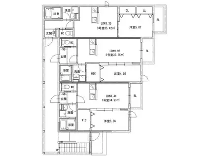
| 5.9万円 | 4,000円 | なし | 5.9万円 | 1LDK | 35.42m2 |
入居決定でお祝い金最大100,000円
- 保証金
- -
- 償却・敷引
- -
- 築年数
- 築1年
- 所在階
- 2階
- 向き
- -
- 交通
- 熊本電気鉄道 黒髪町駅 徒歩15分
熊本市電上熊本線 県立体育館前駅 徒歩16分
JR鹿児島本線 上熊本駅(JR・熊本電鉄) 徒歩18分
- 所在地
- 熊本県熊本市中央区壺川
メゾンクレール壺川
[地図を表示]
Point
メゾンクレール壺川:熊本電気鉄道黒髪町駅にも近くて便利。共用部には宅配ボックスを設置しているため、好きなタイミングで荷物を受け取ることができます。室内設備は浴室乾燥機・洗面化粧台などが揃っており、とて
提供:(株)コスギ不動産リーシング光の森支店(SUUMO経由)

詳細情報 メゾンクレール壺川
物件紹介
メゾンクレール壺川は熊本電気鉄道藤崎宮前駅から徒歩11分にあるアパートです。
このお部屋は2階以上に位置しているので、通行人や周囲の住人からの視線が気になりにくく、防犯面でも安心。建物のエントランスはオートロックがついており、インターホンにはTVモニタもついているため、相手の顔を確認してから来客対応することができます。
人気の角部屋で周囲の居住者の生活音も気になりにくく、また、フローリングのお部屋なのでお掃除もラクラク。キッチンはシステムキッチン仕様になっていますので、お料理好きの方にもぴったり。バス・トイレは別なので、のんびりお風呂タイムも楽しめるでしょう。また、雨の日でも浴室乾燥機を使えば、お洗濯も問題ありません。
通信設備面では、インターネットが無料で使えるので、月々の出費を抑えられるのも魅力です(別途工事等が必要な場合あり)。
共用部には宅配ボックスが設定されているので、不在の時にも荷物を受け取ることができます。
このお部屋は2階以上に位置しているので、通行人や周囲の住人からの視線が気になりにくく、防犯面でも安心。建物のエントランスはオートロックがついており、インターホンにはTVモニタもついているため、相手の顔を確認してから来客対応することができます。
人気の角部屋で周囲の居住者の生活音も気になりにくく、また、フローリングのお部屋なのでお掃除もラクラク。キッチンはシステムキッチン仕様になっていますので、お料理好きの方にもぴったり。バス・トイレは別なので、のんびりお風呂タイムも楽しめるでしょう。また、雨の日でも浴室乾燥機を使えば、お洗濯も問題ありません。
通信設備面では、インターネットが無料で使えるので、月々の出費を抑えられるのも魅力です(別途工事等が必要な場合あり)。
共用部には宅配ボックスが設定されているので、不在の時にも荷物を受け取ることができます。
お金・契約の情報
※「-」と表示されているものは、実際は料金が発生するものもございます。詳細はお問い合わせください。
| 家賃 | 5.9万円 | 管理費・共益費 | 4,000円 |
|---|---|---|---|
| 敷金 | なし | 礼金 | 5.9万円 |
| 入居決定でお祝い金最大100,000円 | |||
| 保証金 | - | 償却・敷引 | - |
| 住宅保険料 | - | 更新料 | - |
| 保証会社利用 | 必須 | 保証会社名 | - |
| 保証会社費用 | - | 保証会社備考 | 保証会社利用必 初回保証料:月額賃料の60%¥¥/更新料なし¥¥/毎月保証料800円 |
| 契約形態 | - | 契約期間 | - |
| 入居・引渡期間 | - | 現況 | - |
| 契約備考 | 合計2.09万円(内訳:24時間サポート0.088万円鍵交換代2万円) 室内清掃費用 50000円 町会費 月額300円 1LDK 二人入居可 普通借家2年 損保【2万円2年】 バストイレ別、エアコン、フローリング、TVインターホン、浴室乾燥機、オートロック、室内洗濯置、シューズボックス、システムキッチン、角住戸、温水洗浄便座、洗面化粧台、2口コンロ、宅配ボックス、光ファイバー、敷金不要、グリル付、二人入居相談、2沿線利用可、ネット使用料不要、保証金不要、24時間換気システム、複層ガラス、2駅利用可、3駅以上利用可、3沿線以上利用可、敷地内ごみ置き場、プロパンガス、礼金1ヶ月、保証会社利用可 入居日:'26年3月中旬 | ||
部屋の情報
| 間取り | 1LDK | 専有面積 | 35.42m2 |
|---|---|---|---|
| 所在階 / 向き | 2階 / - | バルコニー面積 | - |
| 水道 / ガス | - | ||
| 設備 | バス・トイレ別、2階以上、オートロック、テレビドアホン、宅配ボックス、浴室乾燥機、インターネット対応、システムキッチン、エアコン、温水洗浄便座、角部屋、フローリング、2口コンロ、インターネット使用料無料、洗濯機:室内 | ||
| 当社物件ID | 160500096 | ||
建物の情報
| 建物名 | メゾンクレール壺川 | ||
|---|---|---|---|
| 所在地 | 熊本県熊本市中央区壺川 | ||
| 交通 | 熊本電気鉄道 黒髪町駅 徒歩15分 熊本市電上熊本線 県立体育館前駅 徒歩16分 JR鹿児島本線 上熊本駅(JR・熊本電鉄) 徒歩18分 | ||
| 階数 | 3階建 | 総戸数 | - |
| 築年月 | 2025年06月 / 築1年 | エレベーター | - |
| 駐車場 | 空有 6600円 | バイク置き場 | - |
| 駐輪場 | - | 管理人/管理会社 | - |
| 建物種別 | アパート | 建物構造 | 木造 |
この部屋の取扱い不動産会社
| 会社名 | (株)コスギ不動産リーシング平成支店(SUUMO経由) | ||
|---|---|---|---|
| 所在地 | 熊本県熊本市南区江越2-3-1 ライズ平成大通 | 交通 | - |
| 営業時間 | 10:00~18:00 | 定休日 | 水曜日 |
| 免許番号 | 熊本県知事5551 | 取引態様 | 仲介 |
| 不動産会社管理番号 | 100491454309 | 当社管理番号 | 89 |
| 所属団体 | (公社)熊本県宅地建物取引業協会会員 | ||
| 公正取引協議会 | (一社)九州不動産公正取引協議会加盟 | ||
| 取扱い物件情報 | 物件詳細へ | ||
※各種情報と現状に差異がある場合は、現状優先となります。問い合わせをすることで、より詳しい条件、情報を確認する事ができます。
提供:(株)コスギ不動産リーシング平成支店(SUUMO経由)
この物件が気になったら掲載期限まであと10日
メゾンクレール壺川に条件(家賃・エリア)が近い物件一覧
| 写真 | 家賃 管理費等 | 敷金 礼金 | 間取り 専有面積 | 築年数 | 最寄り駅 所在地 | キープ | 詳細 |
|---|---|---|---|---|---|---|---|
マンション ライオンズマンション九品寺(4LDK/10階) | |||||||
![]() | 8.5万円 4,000円 | なし なし | 4LDK 101.7m2 | 築41年 | 熊本市電健軍線 九品寺交差点駅 徒歩6分 熊本市電健軍線 水道町駅 徒歩6分 熊本県熊本市中央区九品寺 | 詳細を見る | |
アパート レオパレス西阿弥陀寺2009(1K/1階) | |||||||
![]() | 4.9万円 4,500円 | なし 4.9万円 | 1K 19.87m2 | 築17年 | 熊本市健軍線 祗園橋駅 徒歩4分 熊本県熊本市中央区西阿弥陀寺町 | 詳細を見る | |
アパート カーザ・ミィア(1LDK/2階) | |||||||
![]() | 4.8万円 1,800円 | なし 4.8万円 | 1LDK 44.97m2 | 築11年 | 熊本電気鉄道 坪井川公園駅 徒歩16分 熊本電気鉄道 黒髪町駅 徒歩17分 熊本電気鉄道 北熊本駅 徒歩17分 熊本県熊本市中央区 | 詳細を見る | |
マンション レオパレスSKY I(1K/1階) | |||||||
![]() | 4.3万円 6,500円 | なし 4.3万円 | 1K 19.87m2 | 築17年 | 熊本電気鉄道 北熊本駅 徒歩14分 熊本県熊本市中央区 | 詳細を見る | |
マンション ラ・シャルール(2LDK/1階) | |||||||
![]() | 8.5万円 4,000円 | なし 17万円 | 2LDK 58.09m2 | 築12年 | 熊本県熊本市中央区 | 詳細を見る | |
アパート フルール出水(1LDK/1階) | |||||||
![]() | 5.4万円 4,000円 | なし 5.4万円 | 1LDK 41.94m2 | 築19年 | JR豊肥本線 南熊本駅 徒歩25分 JR豊肥本線 平成駅 徒歩29分 熊本市電健軍線 水前寺公園駅 徒歩29分 熊本県熊本市中央区 | 詳細を見る | |
アパート レオネクストサン井芹(1K/2階) | |||||||
![]() | 5.2万円 4,500円 | なし 5.2万円 | 1K 34.88m2 | 築16年 | 鹿児島本線 上熊本駅(JR・熊本電鉄) 徒歩12分 熊本県熊本市西区花園5丁目 | 詳細を見る | |
マンション 第5ノブハウス(3K/4階) | |||||||
![]() | 4万円 3,000円 | なし なし | 3K 52m2 | 築46年 | 熊本市健軍線 商業高校前駅 徒歩15分 熊本県熊本市中央区水前寺6丁目 | 詳細を見る | |
熊本市中央区の町名から探す
熊本市中央区の部屋を間取りから探す
熊本市中央区の駅から探す
熊本市中央区と隣接している市区町村から探す
- 熊本市中央区(5,202)








