賃貸マンション
アリカ押上の賃貸物件情報(1K/4階)
| 家賃 | 管理費等 | 敷金 | 礼金 | 間取り | 専有面積 |
|---|---|---|---|---|---|
| 9.6万円 | 1.2万円 | 9.6万円 | 9.6万円 | 1K | 21.97m2 |
入居決定でお祝い金最大100,000円
Point
室内設備は浴室乾燥機・洗面所独立など充実した設備を備え付けています。
提供:(株)リライフ池袋店(SUUMO経由)

詳細情報 アリカ押上
物件紹介
アリカ押上は東京メトロ半蔵門線押上駅から徒歩5分にあり、駅近で通勤通学に便利なマンションです。
このお部屋は2階以上に位置しているので、通行人や周囲の住人からの視線が気になりにくく、防犯面でも安心。建物のエントランスはオートロックがついており、インターホンにはTVモニタもついているため、相手の顔を確認してから来客対応することができます。
おしゃれなデザイナーズ物件!人気の南向き・フローリングのお部屋。角部屋でもあるため、周囲の居住者の生活音も気になりにくい場所です。キッチンはシステムキッチン仕様になっていますので、お料理好きの方にもぴったり。バス・トイレは別なので、のんびりお風呂タイムも楽しめるでしょう。また、雨の日でも浴室乾燥機を使えば、お洗濯も問題ありません。
通信設備面では、インターネットが無料で使えるので、月々の出費を抑えられるのも魅力です。また、BSアンテナ・CSアンテナがありCATVにも対応しているので、おうち時間も充実するでしょう(別途工事、BS・CS・CATVの契約料等が必要な場合あり)。
建物にはエレベーターがついているので、重い荷物があっても安心。共用部には宅配ボックスが設定されているので、不在の時にも荷物を受け取ることができます。
このお部屋は2階以上に位置しているので、通行人や周囲の住人からの視線が気になりにくく、防犯面でも安心。建物のエントランスはオートロックがついており、インターホンにはTVモニタもついているため、相手の顔を確認してから来客対応することができます。
おしゃれなデザイナーズ物件!人気の南向き・フローリングのお部屋。角部屋でもあるため、周囲の居住者の生活音も気になりにくい場所です。キッチンはシステムキッチン仕様になっていますので、お料理好きの方にもぴったり。バス・トイレは別なので、のんびりお風呂タイムも楽しめるでしょう。また、雨の日でも浴室乾燥機を使えば、お洗濯も問題ありません。
通信設備面では、インターネットが無料で使えるので、月々の出費を抑えられるのも魅力です。また、BSアンテナ・CSアンテナがありCATVにも対応しているので、おうち時間も充実するでしょう(別途工事、BS・CS・CATVの契約料等が必要な場合あり)。
建物にはエレベーターがついているので、重い荷物があっても安心。共用部には宅配ボックスが設定されているので、不在の時にも荷物を受け取ることができます。
お金・契約の情報
※「-」と表示されているものは、実際は料金が発生するものもございます。詳細はお問い合わせください。
| 家賃 | 9.6万円 | 管理費・共益費 | 1.2万円 |
|---|---|---|---|
| 敷金 | 9.6万円 | 礼金 | 9.6万円 |
| 入居決定でお祝い金最大100,000円 | |||
| 保証金 | - | 償却・敷引 | - |
| 住宅保険料 | 1円 | 更新料 | - |
| その他費用 | プレミアムデスク(2年/税込):1.65万円 | ||
| 保証会社利用 | 必須 | 保証会社名 | エポスカード |
| 保証会社費用 | - | 保証会社備考 | 月額総賃料の50%/月次保証料、月額総賃料の1.5%/1年毎10,000円 |
| 契約形態 | - | 契約期間 | 2年 |
| 入居・引渡期間 | 相談 | 現況 | - |
| 入居可能条件 | 事務所不可、楽器不可、ペット不可 | ||
| 契約備考 | 鍵交換費用:38500 その他設備/条件:室内洗濯機置き場、独立洗面台、クローゼット、シューズボックス | ||
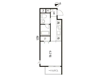
部屋の情報
| 間取り | 1K | 専有面積 | 21.97m2 |
|---|---|---|---|
| 間取り詳細 | 洋室(6.2帖)、K(2帖) | ||
| 所在階 / 向き | 4階 / 東 | バルコニー面積 | - |
| 水道 / ガス | 水道【公営】、ガス【都市】 | ||
| 設備 | バス・トイレ別、オートロック、テレビドアホン、宅配ボックス、浴室乾燥機、インターネット対応、システムキッチン、エアコン、エレベーター、温水洗浄便座、角部屋、バルコニー、フローリング、2口コンロ、コンロ:ガス、インターネット使用料無料、シャワー、給湯 | ||
| 当社物件ID | 116816158 | ||
建物の情報
| 建物名 | アリカ押上 | ||
|---|---|---|---|
| 所在地 | 東京都墨田区業平5丁目 | ||
| 交通 | 東京地下鉄半蔵門線 押上駅 徒歩5分 東武鉄道亀戸線 小村井駅 徒歩18分 | ||
| 階数 | 6階建 | 総戸数 | 9戸 |
| 築年月 | 2021年03月 / 築5年 | エレベーター | あり |
| 駐車場 | ご確認ください | バイク置き場 | - |
| 駐輪場 | - | 管理人/管理会社 | - |
| 周辺環境 | 販売店 徒歩17分(1286m) 中学校 墨田中学校 徒歩14分(1079m) 小学校 押上小学校 徒歩10分(747m) その他 ドラッグストア その他 公園 その他 銀行 その他 * | ||
| 建物種別 | マンション | 建物構造 | 鉄骨造 |
この部屋の取扱い不動産会社
| 会社名 | ハウスコム東東京株式会社 押上店 | ||
|---|---|---|---|
| 所在地 | 東京都墨田区16-2三橋ビル1階 | 交通 | - |
| 営業時間 | 10:00~18:00 | 定休日 | 水曜定休 |
| 免許番号 | 東京都知事(1)第108283号 | 取引態様 | 仲介 |
| 不動産会社管理番号 | HC5-3664778-401-0072 | 当社管理番号 | 468 |
| 所属団体 | 、 | ||
| 取扱い物件情報 | 物件詳細へ | ||
※各種情報と現状に差異がある場合は、現状優先となります。問い合わせをすることで、より詳しい条件、情報を確認する事ができます。
提供:ハウスコム東東京株式会社 押上店
この物件が気になったら掲載期限まであと5日
アリカ押上に条件(家賃・エリア)が近い物件一覧
| 写真 | 家賃 管理費等 | 敷金 礼金 | 間取り 専有面積 | 築年数 | 最寄り駅 所在地 | キープ | 詳細 |
|---|---|---|---|---|---|---|---|
マンション ザ レジデンス オブ トーキョー H20 スカイタワー(1K/2階) | |||||||
![]() | 10.5万円 1万円 | 10.5万円 10.5万円 | 1K 25.16m2 | 築2年 | 東京地下鉄日比谷線 三ノ輪駅 徒歩10分 常磐線 南千住駅 徒歩15分 東京都台東区日本堤1丁目 | 詳細を見る | |
マンション フラッツ東陽(ワンルーム/6階) | |||||||
![]() | 13.9万円 3.5万円 | 34万円 34万円 | ワンルーム 33.62m2 | 築18年 | 東京メトロ東西線 木場駅 徒歩6分 東京メトロ東西線 東陽町駅 徒歩7分 都営大江戸線 門前仲町駅 徒歩21分 東京都江東区東陽 | 詳細を見る | |
マンション クラリティア浅草橋(1DK/14階) | |||||||
![]() | 14.8万円 1.2万円 | 14.8万円 なし | 1DK 25.45m2 | 築1年 | 総武・中央緩行線 浅草橋駅 徒歩4分 東京都浅草線 浅草橋駅 徒歩4分 山手線 秋葉原駅 徒歩8分 東京都台東区浅草橋4丁目 | 詳細を見る | |
マンション パークアクシス押上テラス(ワンルーム/2階) | |||||||
![]() | 13.8万円 1万円 | 13.8万円 13.8万円 | ワンルーム 26.4m2 | 築10年 | 東京地下鉄半蔵門線 押上駅 徒歩5分 東武伊勢崎・大師線 曳舟駅 徒歩8分 東京都墨田区向島3丁目 | 詳細を見る | |
マンション パークアクシス錦糸町・親水公園(1K/6階) | |||||||
![]() | 11.7万円 1万円 | 11.7万円 11.7万円 | 1K 26.3m2 | 築14年 | 総武・中央緩行線 錦糸町駅 徒歩10分 東京地下鉄半蔵門線 錦糸町駅 徒歩12分 東京都浅草線 本所吾妻橋駅 徒歩15分 東京都墨田区亀沢4丁目 | 詳細を見る | |
マンション アンディーン月島(1K/3階) | |||||||
![]() | 9.7万円 1.3万円 | なし なし | 1K 20.62m2 | 築23年 | 東京メトロ有楽町線 月島駅 徒歩2分 都営大江戸線 月島駅 徒歩4分 都営大江戸線 勝どき駅 徒歩8分 東京都中央区月島 | 詳細を見る | |
マンション エテルノ両国リバーサイド(1K/4階) | |||||||
![]() | 9万円 1万円 | 9万円 9万円 | 1K 25.51m2 | 築18年 | JR総武線 両国駅 徒歩3分 都営大江戸線 両国駅 徒歩9分 JR総武線 浅草橋駅 徒歩10分 東京都墨田区両国 | 詳細を見る | |
マンション クラリティア浅草(1DK/5階) | |||||||
![]() | 14万円 1.5万円 | 14万円 なし | 1DK 25.46m2 | 築1年 | 東武伊勢崎・大師線 浅草駅(東武・都営・メトロ) 徒歩9分 東京都浅草線 浅草駅(東武・都営・メトロ) 徒歩10分 つくばエクスプレス 浅草駅(つくばEXP) 徒歩13分 東京都台東区浅草6丁目 | 詳細を見る | |








