賃貸アパート
GRAND TS OOMORIの賃貸物件情報(3DK/1階)
| 家賃 | 管理費等 | 敷金 | 礼金 | 間取り | 専有面積 |
|---|---|---|---|---|---|
| 15.5万円 | 4,000円 | 15.5万円 | なし | 3DK | 60.52m2 |
入居決定でお祝い金最大100,000円
- 保証金
- -
- 償却・敷引
- -
- 築年数
- 築10年
- 所在階
- 1階
- 向き
- -
Point
引越料金10000円負担(当社指定)/家具家電付きプラン有
提供:(株)Vision蒲田店(SUUMO経由)

詳細情報 GRAND TS OOMORI
物件紹介
GRAND TS OOMORIは京急本線大森町駅から徒歩18分にあるアパートです。
このお部屋のインターホンにはTVモニタがついているため、相手の顔を確認してから来客対応することができます。
人気の角部屋で周囲の居住者の生活音も気になりにくく、また、フローリングのお部屋なのでお掃除もラクラク。室内にはウォークインクローゼットがありますので、たくさんの荷物も効率的に収納ができます。キッチンはシステムキッチン仕様になっていますので、お料理好きの方にもぴったり。バス・トイレは別なので、のんびりお風呂タイムも楽しめるでしょう。また、雨の日でも浴室乾燥機を使えば、お洗濯も問題ありません。
通信設備面では、インターネット接続が可能です。また、CATVにも対応しているので、おうち時間も充実するでしょう(別途工事、契約料が必要な場合あり)。
このお部屋のインターホンにはTVモニタがついているため、相手の顔を確認してから来客対応することができます。
人気の角部屋で周囲の居住者の生活音も気になりにくく、また、フローリングのお部屋なのでお掃除もラクラク。室内にはウォークインクローゼットがありますので、たくさんの荷物も効率的に収納ができます。キッチンはシステムキッチン仕様になっていますので、お料理好きの方にもぴったり。バス・トイレは別なので、のんびりお風呂タイムも楽しめるでしょう。また、雨の日でも浴室乾燥機を使えば、お洗濯も問題ありません。
通信設備面では、インターネット接続が可能です。また、CATVにも対応しているので、おうち時間も充実するでしょう(別途工事、契約料が必要な場合あり)。
お金・契約の情報
※「-」と表示されているものは、実際は料金が発生するものもございます。詳細はお問い合わせください。
| 家賃 | 15.5万円 | 管理費・共益費 | 4,000円 |
|---|---|---|---|
| 敷金 | 15.5万円 | 礼金 | なし |
| 入居決定でお祝い金最大100,000円 | |||
| 保証金 | - | 償却・敷引 | - |
| 住宅保険料 | - | 更新料 | - |
| 保証会社利用 | 必須 | 保証会社名 | - |
| 保証会社費用 | - | 保証会社備考 | 保証会社利用必 初回/総賃料の50% 月額/総賃料の1.3% |
| 契約形態 | - | 契約期間 | - |
| 入居・引渡期間 | - | 現況 | - |
| 契約備考 | 契約金カード払い・分割可能/家具家電付きプラン有。退去時クリーニング費用:1平米あたり1320円、エアコンクリーニング費用13200円/1台あたり。短期解約違約金:1年以内総賃料1ヶ月分。 合計5.83万円(内訳:24時間サポート料1.98万円鍵交換代3.85万円) 3DK 二人入居可 普通借家2年 損保【要】 バストイレ別、バルコニー、エアコン、ガスコンロ対応、クロゼット、フローリング、シャワー付洗面台、TVインターホン、浴室乾燥機、室内洗濯置、シューズボックス、システムキッチン、追焚機能浴室、温水洗浄便座、脱衣所、洗面所独立、洗面化粧台、CATV、光ファイバー、礼金不要、2面採光、最上階、3口以上コンロ、ロフト、グリル付、全居室洋室、保証人不要、全居室フローリング、2沿線利用可、ネット専用回線、ダブルロックキー、始発駅、2駅利用可、3駅以上利用可、3沿線以上利用可、都市ガス、洗面所にドア、初期費用カード決済可 入居日:'25年12月下旬 | ||
部屋の情報
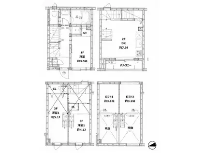
| 間取り | 3DK | 専有面積 | 60.52m2 |
|---|---|---|---|
| 所在階 / 向き | 1階 / - | バルコニー面積 | - |
| 水道 / ガス | - | ||
| 設備 | バス・トイレ別、テレビドアホン、浴室乾燥機、追い焚き、インターネット対応、システムキッチン、エアコン、温水洗浄便座、バルコニー、フローリング、ロフトあり、洗髪洗面化粧台、2口コンロ、コンロ:ガス、CATV、洗濯機:室内 | ||
| 当社物件ID | 159883273 | ||
建物の情報
| 建物名 | GRAND TS OOMORI | ||
|---|---|---|---|
| 所在地 | 東京都大田区中央 | ||
| 交通 | 京急本線 大森町駅 徒歩18分 JR京浜東北線 蒲田駅 徒歩20分 東急池上線 池上駅 徒歩20分 | ||
| 階数 | 3階建 | 総戸数 | - |
| 築年月 | 2016年09月 / 築10年 | エレベーター | - |
| 駐車場 | なし | バイク置き場 | - |
| 駐輪場 | - | 管理人/管理会社 | - |
| 周辺環境 | その他 大森町駅(その他)まで1384m | ||
| 建物種別 | アパート | 建物構造 | 木造 |
この部屋の取扱い不動産会社
| 会社名 | (株)Vision錦糸町店(SUUMO経由) | ||
|---|---|---|---|
| 所在地 | 東京都墨田区錦糸3-3‐10 松澤ビル4階 | 交通 | - |
| 営業時間 | 10:00~19:00 | 定休日 | 水曜日(電話対応可能) |
| 免許番号 | 東京都知事96944 | 取引態様 | 仲介 |
| 不動産会社管理番号 | 100473996821 | 当社管理番号 | 89 |
| 所属団体 | (公社)東京都宅地建物取引業協会会員 | ||
| 公正取引協議会 | (公社)首都圏不動産公正取引協議会加盟 | ||
| 取扱い物件情報 | 物件詳細へ | ||
※各種情報と現状に差異がある場合は、現状優先となります。問い合わせをすることで、より詳しい条件、情報を確認する事ができます。
提供:(株)Vision錦糸町店(SUUMO経由)
この物件が気になったら掲載期限まであと10日
GRAND TS OOMORIに条件(家賃・エリア)が近い物件一覧
| 写真 | 家賃 管理費等 | 敷金 礼金 | 間取り 専有面積 | 築年数 | 最寄り駅 所在地 | キープ | 詳細 |
|---|---|---|---|---|---|---|---|
マンション ウエリスアーバン水天宮前(1K/11階) | |||||||
![]() | 14.5万円 2万円 | 14.5万円 なし | 1K 26.1m2 | 築3年 | 東京地下鉄半蔵門線 水天宮前駅 徒歩9分 東京地下鉄東西線 門前仲町駅 徒歩9分 東京都江東区佐賀2丁目 | 詳細を見る | |
アパート SEED SAVE PETIRASU Ⅲ(1LDK/1階) | |||||||
![]() | 10.7万円 1万円 | 21.4万円 10.7万円 | 1LDK 30.55m2 | 新築 | 東京モノレール羽田 昭和島駅 徒歩12分 京浜急行電鉄本線 大森町駅 徒歩18分 東京都大田区大森東5丁目 | 詳細を見る | |
タウンハウス 大田菜園長屋(2LDK) | |||||||
![]() | 15.4万円 5,000円 | 15.4万円 23.1万円 | 2LDK 52.17m2 | 築9年 | 京浜急行電鉄本線 雑色駅 徒歩8分 京浜急行電鉄本線 六郷土手駅 徒歩13分 東京都大田区東六郷3丁目 | 詳細を見る | |
マンション SEED JUST B-BASE II(1LDK/1階) | |||||||
![]() | 9.9万円 1.5万円 | 9.9万円 9.9万円 | 1LDK 25.41m2 | 新築 | 東京モノレール羽田 昭和島駅 徒歩11分 京浜急行電鉄本線 梅屋敷駅(東京) 徒歩19分 東京都大田区大森南4丁目 | 詳細を見る | |
アパート M SONIA KUGAHARA(2LDK/1階) | |||||||
![]() | 16.5万円 3,000円 | 16.5万円 33万円 | 2LDK 49.27m2 | 築1年 | 東急池上線 久が原駅 徒歩8分 東急池上線 御嶽山駅 徒歩9分 東京都大田区西嶺町 | 詳細を見る | |
マンション ルーブル大森西(1K/3階) | |||||||
![]() | 10.7万円 8,000円 | なし 10.7万円 | 1K 25.46m2 | 築9年 | 京急本線 平和島駅 徒歩10分 JR京浜東北線 大森駅(東京) 徒歩15分 京急本線 大森町駅 徒歩20分 東京都大田区大森西 | 詳細を見る | |
マンション クロスレジデンス蒲田Ⅱ(ワンルーム/5階) | |||||||
![]() | 11.5万円 1万円 | 11.5万円 11.5万円 | ワンルーム 25.09m2 | 築5年 | 東急池上線 蓮沼駅 徒歩5分 東京都大田区西蒲田7丁目 | 詳細を見る | |
マンション NORUM VIENTO(1LDK/3階) | |||||||
![]() | 14.1万円 3,000円 | 14.1万円 28.2万円 | 1LDK 40.27m2 | 築18年 | JR京浜東北線 蒲田駅 徒歩12分 東急池上線 蓮沼駅 徒歩16分 京急本線 京急蒲田駅 徒歩22分 東京都大田区西蒲田 | 詳細を見る | |








