賃貸マンション
パーク・シティ新川崎の賃貸物件情報(3LDK/23階)
| 家賃 | 管理費等 | 敷金 | 礼金 | 間取り | 専有面積 |
|---|---|---|---|---|---|
| 18.8万円 | なし | 37.6万円 | 18.8万円 | 3LDK | 82.66m2 |
入居決定でお祝い金最大100,000円
- 保証金
- -
- 償却・敷引
- -
- 築年数
- 築39年
- 所在階
- 23階
- 向き
- 東
Point
眺望良好!リビングからはスカイツリーや朝日が眺めます。高層・2面採光で北・東向きでも明るく感じます。敷地内にクリニックや郵便局、スポーツクラブ等ございます。
提供:(株)ケン・コーポレーション銀座湾岸支店(SUUMO経由)

詳細情報 パーク・シティ新川崎
物件紹介
パーク・シティ新川崎はJR南武線鹿島田駅から徒歩5分にあり、駅近で通勤通学に便利なマンションです。
このお部屋は2階以上に位置しているので、通行人や周囲の住人からの視線が気になりにくく、防犯面でも安心。建物のエントランスはオートロックがついており、インターホンにはTVモニタもついているため、相手の顔を確認してから来客対応することができます。
人気の角部屋。周囲の居住者の生活音も気になりにくい場所です。キッチンはシステムキッチン仕様になっていますので、お料理好きの方にもぴったり。また、バス・トイレは別で、のんびりお風呂タイムも楽しめるでしょう。
通信設備面ではBSアンテナ・CSアンテナがありますので、おうち時間も充実するでしょう(別途工事、契約料が必要な場合あり)。
建物にはエレベーターがついているので、重い荷物があっても安心。
このお部屋は2階以上に位置しているので、通行人や周囲の住人からの視線が気になりにくく、防犯面でも安心。建物のエントランスはオートロックがついており、インターホンにはTVモニタもついているため、相手の顔を確認してから来客対応することができます。
人気の角部屋。周囲の居住者の生活音も気になりにくい場所です。キッチンはシステムキッチン仕様になっていますので、お料理好きの方にもぴったり。また、バス・トイレは別で、のんびりお風呂タイムも楽しめるでしょう。
通信設備面ではBSアンテナ・CSアンテナがありますので、おうち時間も充実するでしょう(別途工事、契約料が必要な場合あり)。
建物にはエレベーターがついているので、重い荷物があっても安心。
お金・契約の情報
※「-」と表示されているものは、実際は料金が発生するものもございます。詳細はお問い合わせください。
| 家賃 | 18.8万円 | 管理費・共益費 | なし |
|---|---|---|---|
| 敷金 | 37.6万円 | 礼金 | 18.8万円 |
| 入居決定でお祝い金最大100,000円 | |||
| 保証金 | - | 償却・敷引 | - |
| 住宅保険料 | - | 更新料 | - |
| 契約形態 | - | 契約期間 | - |
| 入居・引渡期間 | - | 現況 | - |
| 契約備考 | 常駐管理/※設備・施設は別途料金が必要なものもありますので確認下さい。 賠償保険加入費用・退去時室内清掃費用が発生します。契約条件により金員内容が異なります。■退去時:室内清掃費1,320円(税込)/平米 3LDK 事務所利用不可 普通借家2年 損保【要】 バストイレ別、バルコニー、エアコン、クロゼット、TVインターホン、オートロック、室内洗濯置、シューズボックス、システムキッチン、角住戸、温水洗浄便座、エレベーター、洗面所独立、駐輪場、2面採光、3口以上コンロ、防犯カメラ、IHクッキングヒーター、24時間有人管理、分譲賃貸、オートバス、バイク置場、オール電化、2面バルコニー、2沿線利用可、LDK15畳以上、CS、眺望良好、オーブンレンジ、3駅以上利用可、3沿線以上利用可、駅徒歩5分以内、タワー型マンション、高層階、敷地内ごみ置き場、BS、保証会社利用可 入居日:'26年3月中旬 | ||
部屋の情報
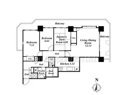
| 間取り | 3LDK | 専有面積 | 82.66m2 |
|---|---|---|---|
| 所在階 / 向き | 23階 / 東 | バルコニー面積 | 26m2 |
| 水道 / ガス | - | ||
| 設備 | バス・トイレ別、2階以上、オートロック、テレビドアホン、追い焚き、システムキッチン、エアコン、エレベーター、温水洗浄便座、角部屋、バルコニー、洗髪洗面化粧台、タワーマンション、オール電化、2口コンロ、コンロ:IH、CSアンテナ、BSアンテナ、洗濯機:室内 | ||
| 当社物件ID | 25431814 | ||
建物の情報
| 建物名 | パーク・シティ新川崎 | ||
|---|---|---|---|
| 所在地 | 神奈川県川崎市幸区小倉 | ||
| 交通 | JR南武線 鹿島田駅 徒歩5分 JR横須賀線 新川崎駅 徒歩9分 JR南武線 矢向駅 徒歩13分 | ||
| 階数 | 30階建 | 総戸数 | 229戸 |
| 築年月 | 1987年03月 / 築39年 | エレベーター | あり |
| 駐車場 | 空有 21000円 | バイク置き場 | あり |
| 駐輪場 | あり | 管理人/管理会社 | - |
| 建物種別 | マンション | 建物構造 | SRC(鉄骨鉄筋コンクリート) |
この部屋の取扱い不動産会社
| 会社名 | (株)ケン・コーポレーション銀座湾岸支店(SUUMO経由) | ||
|---|---|---|---|
| 所在地 | 東京都中央区勝どき3-3-7 ケンメディアビル7階 | 交通 | - |
| 営業時間 | 9:00~18:00 | 定休日 | 日曜日、水曜日、祝日 |
| 免許番号 | 国土交通大臣4372 | 取引態様 | 仲介 |
| 不動産会社管理番号 | 100483366798 | 当社管理番号 | 89 |
| 所属団体 | (一社)不動産流通経営協会会員 | ||
| 公正取引協議会 | (公社)首都圏不動産公正取引協議会加盟 | ||
| 取扱い物件情報 | 物件詳細へ | ||
※各種情報と現状に差異がある場合は、現状優先となります。問い合わせをすることで、より詳しい条件、情報を確認する事ができます。
提供:(株)ケン・コーポレーション銀座湾岸支店(SUUMO経由)
この物件が気になったら掲載期限まであと10日
パーク・シティ新川崎に条件(家賃・エリア)が近い物件一覧
| 写真 | 家賃 管理費等 | 敷金 礼金 | 間取り 専有面積 | 築年数 | 最寄り駅 所在地 | キープ | 詳細 |
|---|---|---|---|---|---|---|---|
マンション パシフィックロイヤルコートみなとみらいオーシャンタワー(1K/13階) | |||||||
![]() | 16.8万円 1.5万円 | 16.8万円 33.6万円 | 1K 45.01m2 | 築19年 | みなとみらい線 新高島駅 徒歩7分 みなとみらい線 みなとみらい駅 徒歩8分 JR東海道本線 横浜駅 徒歩15分 神奈川県横浜市西区みなとみらい | 詳細を見る | |
一戸建て 京浜東北・根岸線 磯子駅 徒歩18分 築32年(4SLDK) | |||||||
![]() | 15万円 なし | 15万円 15万円 | 4SLDK 94.39m2 | 築32年 | 京浜東北・根岸線 磯子駅 徒歩18分 京浜東北・根岸線 根岸駅(神奈川) 徒歩20分 神奈川県横浜市磯子区久木町 | 詳細を見る | |
マンション エクセレント富士(3LDK/5階) | |||||||
![]() | 12.9万円 1.1万円 | 25.8万円 なし | 3LDK 64.44m2 | 築27年 | グリーンライン 北山田駅(神奈川) 徒歩3分 グリーンライン 東山田駅 徒歩17分 ブルーライン センター北駅 徒歩28分 神奈川県横浜市都筑区北山田 | 詳細を見る | |
アパート ヴューテラス寺尾の森(3LDK/2階) | |||||||
![]() | 18.7万円 7,000円 | なし 37.4万円 | 3LDK 68.42m2 | 築8年 | JR横浜線 大口駅 徒歩13分 東急東横線 妙蓮寺駅 徒歩24分 京急本線 生麦駅 徒歩27分 神奈川県横浜市神奈川区西寺尾 | 詳細を見る | |
マンション 金沢シーサイドタウン9-5号棟(4LDK/2階) | |||||||
![]() | 18万円 5,000円 | 18万円 18万円 | 4LDK 103.44m2 | 築44年 | シーサイドライン 並木中央駅 徒歩7分 京急本線 京急富岡駅 徒歩17分 京急本線 能見台駅 徒歩20分 神奈川県横浜市金沢区並木 | 詳細を見る | |
一戸建て 東急田園都市線 藤が丘駅(神奈川) 徒歩19分 築51年(3DK) | |||||||
![]() | 16万円 なし | 32万円 16万円 | 3DK 62.92m2 | 築51年 | 東急田園都市線 藤が丘駅(神奈川) 徒歩19分 神奈川県横浜市青葉区千草台 | 詳細を見る | |
一戸建て 京浜急行電鉄逗子線 六浦駅 徒歩9分 築9年(4LDK) | |||||||
![]() | 17.5万円 なし | 17.5万円 なし | 4LDK 98.82m2 | 築9年 | 京浜急行電鉄逗子線 六浦駅 徒歩9分 神奈川県横浜市金沢区六浦南2丁目 | 詳細を見る | |








