賃貸アパート
サンハイツの賃貸物件情報(1K/1階)
| 家賃 | 管理費等 | 敷金 | 礼金 | 間取り | 専有面積 |
|---|---|---|---|---|---|
| 3.3万円 | 2,000円 | なし | なし | 1K | 18m2 |
入居決定でお祝い金最大100,000円
- 保証金
- -
- 償却・敷引
- -
- 築年数
- 築37年
- 所在階
- 1階
- 向き
- 南東
Point
お車でご来店の際は、店舗前駐車場もしくは、周辺のコインパーキングをご利用いただければ、弊社の方でご精算させていただきます♪
提供:(株)良和ハウス岡山駅前店(SUUMO経由)

詳細情報 サンハイツ
物件紹介
サンハイツはJR山陽本線高島駅から徒歩11分にあるアパートです。
バス・トイレ別の仕様で、のんびりお風呂タイムも楽しめます。
通信設備面では、インターネットが無料で使えるので、月々の出費を抑えられるのも魅力です(別途工事等が必要な場合あり)。
バス・トイレ別の仕様で、のんびりお風呂タイムも楽しめます。
通信設備面では、インターネットが無料で使えるので、月々の出費を抑えられるのも魅力です(別途工事等が必要な場合あり)。
お金・契約の情報
※「-」と表示されているものは、実際は料金が発生するものもございます。詳細はお問い合わせください。
| 家賃 | 3.3万円 | 管理費・共益費 | 2,000円 |
|---|---|---|---|
| 敷金 | なし | 礼金 | なし |
| 入居決定でお祝い金最大100,000円 | |||
| 保証金 | - | 償却・敷引 | - |
| 住宅保険料 | - | 更新料 | - |
| 契約形態 | - | 契約期間 | - |
| 入居・引渡期間 | 即時 | 現況 | - |
| 契約備考 | 合計3.85万円(内訳:カギ交換代:16500円/ハウスクリーニング:22000円) 町内会費:200円 1K 損保【2.2万円2年】 バストイレ別、バルコニー、エアコン、クロゼット、フローリング、シューズボックス、角住戸、駐輪場、即入居可、礼金不要、敷金不要、IHクッキングヒーター、ロフト、全居室洋室、単身者相談、全居室フローリング、2沿線利用可、クッションフロア、ネット専用回線、ネット使用料不要、3駅以上利用可、東南向き、プロパンガス、南面バルコニー、敷金・礼金不要 | ||
部屋の情報
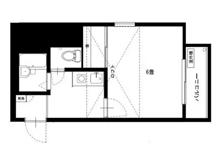
| 間取り | 1K | 専有面積 | 18m2 |
|---|---|---|---|
| 所在階 / 向き | 1階 / 南東 | バルコニー面積 | - |
| 水道 / ガス | - | ||
| 設備 | バス・トイレ別、インターネット対応、エアコン、南向き、角部屋、バルコニー、フローリング、ロフトあり、コンロ:IH、インターネット使用料無料 | ||
| 当社物件ID | 151083790 | ||
建物の情報
| 建物名 | サンハイツ | ||
|---|---|---|---|
| 所在地 | 岡山県岡山市中区さい | ||
| 交通 | JR山陽本線 高島駅(岡山) 徒歩11分 JR山陽本線 西川原駅 徒歩23分 JR津山線 法界院駅 徒歩35分 | ||
| 階数 | 2階建 | 総戸数 | - |
| 築年月 | 1989年11月 / 築37年 | エレベーター | - |
| 駐車場 | なし | バイク置き場 | - |
| 駐輪場 | あり | 管理人/管理会社 | - |
| 周辺環境 | その他 岡山市立旭竜小学校(小学校)まで816m その他 岡山県立岡山操山中学校(中学校)まで2154m その他 岡山市立旭竜認定こども園(幼稚園・保育園)まで322m その他 岡山県立岡山操山高校(高校・高専)まで2131m その他 岡山市中区役所(役所)まで1945m その他 岡山高島団地郵便局(郵便局)まで401m | ||
| 建物種別 | アパート | 建物構造 | 木造 |
この部屋の取扱い不動産会社
| 会社名 | (株)良和ハウス岡山駅西口店(SUUMO経由) | ||
|---|---|---|---|
| 所在地 | 岡山県岡山市北区奉還町2-1-27 | 交通 | - |
| 営業時間 | 10時~18時 | 定休日 | 火曜日 |
| 免許番号 | 国土交通大臣9113 | 取引態様 | 仲介 |
| 不動産会社管理番号 | 100479760238 | 当社管理番号 | 89 |
| 所属団体 | (公社)岡山県宅地建物取引業協会会員 | ||
| 公正取引協議会 | 中国地区不動産公正取引協議会加盟 | ||
| 取扱い物件情報 | 物件詳細へ | ||
※各種情報と現状に差異がある場合は、現状優先となります。問い合わせをすることで、より詳しい条件、情報を確認する事ができます。
提供:(株)良和ハウス岡山駅西口店(SUUMO経由)
この物件が気になったら掲載期限まであと11日
サンハイツに条件(家賃・エリア)が近い物件一覧
| 写真 | 家賃 管理費等 | 敷金 礼金 | 間取り 専有面積 | 築年数 | 最寄り駅 所在地 | キープ | 詳細 |
|---|---|---|---|---|---|---|---|
アパート プレシャスビル(1DK/2階) | |||||||
![]() | 3万円 なし | 3万円 3万円 | 1DK 29.81m2 | 築35年 | 岡山電軌東山本線 東山・おかでんミュージアム駅駅 徒歩3分 岡山電軌東山本線 門田屋敷駅 徒歩6分 岡山電軌東山本線 中納言駅 徒歩8分 岡山県岡山市中区東山2丁目 | 詳細を見る | |
マンション リバーサイド井上(1K/5階) | |||||||
![]() | 3.9万円 3,000円 | 3.9万円 3.9万円 | 1K 26.06m2 | 築36年 | 岡山電軌東山本線 城下駅(岡山) 徒歩17分 岡山電軌東山本線 県庁通り駅 徒歩17分 岡山電軌東山本線 小橋駅 徒歩17分 岡山県岡山市中区浜1丁目 | 詳細を見る | |
アパート メゾンエトワール(1K/1階) | |||||||
![]() | 2.2万円 3,000円 | 4.4万円 2.2万円 | 1K 22m2 | 築33年 | 津山線 法界院駅 徒歩42分 吉備線 大安寺駅 徒歩63分 岡山県岡山市北区津高 | 詳細を見る | |
アパート エレガンス近藤Ⅰ(1K/1階) | |||||||
![]() | 3万円 2,000円 | なし なし | 1K 18.59m2 | 築38年 | 赤穂線 大多羅駅 徒歩21分 山陽本線 東岡山駅 徒歩23分 山陽本線 上道駅(岡山) 徒歩53分 岡山県岡山市中区長利 | 詳細を見る | |
アパート コーポ守安(3DK/2階) | |||||||
![]() | 4.2万円 3,000円 | 4.2万円 4.2万円 | 3DK 54.45m2 | 築38年 | 山陽本線 倉敷駅 徒歩21分 岡山県倉敷市浜ノ茶屋2丁目 | 詳細を見る | |
アパート グリーンファミール(2DK/2階) | |||||||
![]() | 4.1万円 2,000円 | なし なし | 2DK 47.23m2 | 築26年 | 赤穂線 寒河駅 徒歩3分 岡山県備前市日生町寒河 | 詳細を見る | |
アパート チェリーハウス(2DK/1階) | |||||||
![]() | 3.8万円 3,000円 | なし なし | 2DK 44.7m2 | 築31年 | 岡山電軌東山本線 門田屋敷駅 徒歩50分 岡山電軌東山本線 中納言駅 徒歩53分 岡山県岡山市中区山崎 | 詳細を見る | |
マンション メゾン・ド・カメリア(1K/3階) | |||||||
![]() | 5.3万円 6,000円 | なし 5万円 | 1K 26.04m2 | 築4年 | 津山線 法界院駅 徒歩10分 山陽本線 西川原駅 徒歩24分 津山線 備前原駅 徒歩30分 岡山県岡山市北区北方3丁目 | 詳細を見る | |








