賃貸マンション
クレヴィスタ板橋桜川の賃貸物件情報(1K/2階)
| 家賃 | 管理費等 | 敷金 | 礼金 | 間取り | 専有面積 |
|---|---|---|---|---|---|
| 8万円 | 1.5万円 | なし | 8万円 | 1K | 25.93m2 |
入居決定でお祝い金最大100,000円
- 保証金
- -
- 償却・敷引
- -
- 築年数
- 築12年
- 所在階
- 2階
- 向き
- 西
Point
当社管理のベルシード、ベルメントシリーズを含め、他社様の物件もお取り扱いしております。ご案内は現地待ち合わせとなります。当社管理物件は全てWEBにて申込が可能となります。お気軽にご相談ください。
提供:(株)ベルテックス(SUUMO経由)

詳細情報 クレヴィスタ板橋桜川
物件紹介
クレヴィスタ板橋桜川は東武東上線上板橋駅から徒歩7分にあり、駅近で通勤通学に便利なマンションです。
このお部屋は2階以上に位置しているので、通行人や周囲の住人からの視線が気になりにくく、防犯面でも安心。建物のエントランスはオートロックがついており、インターホンにはTVモニタもついているため、相手の顔を確認してから来客対応することができます。
フローリングのお部屋なのでお掃除もラクラク。キッチンはシステムキッチン仕様になっていますので、お料理好きの方にもぴったり。バス・トイレは別なので、のんびりお風呂タイムも楽しめるでしょう。また、雨の日でも浴室乾燥機を使えば、お洗濯も問題ありません。
通信設備面では、インターネット接続が可能です。また、BSアンテナ・CSアンテナがありCATVにも対応しているので、おうち時間も充実するでしょう(別途工事、契約料が必要な場合あり)。
建物にはエレベーターがついているので、重い荷物があっても安心。共用部には宅配ボックスが設定されているので、不在の時にも荷物を受け取ることができます。また、ペット飼育の相談ができますので、あなたの大切な家族の一員も快適に暮らせるか、ぜひ確認してみてください。
このお部屋は2階以上に位置しているので、通行人や周囲の住人からの視線が気になりにくく、防犯面でも安心。建物のエントランスはオートロックがついており、インターホンにはTVモニタもついているため、相手の顔を確認してから来客対応することができます。
フローリングのお部屋なのでお掃除もラクラク。キッチンはシステムキッチン仕様になっていますので、お料理好きの方にもぴったり。バス・トイレは別なので、のんびりお風呂タイムも楽しめるでしょう。また、雨の日でも浴室乾燥機を使えば、お洗濯も問題ありません。
通信設備面では、インターネット接続が可能です。また、BSアンテナ・CSアンテナがありCATVにも対応しているので、おうち時間も充実するでしょう(別途工事、契約料が必要な場合あり)。
建物にはエレベーターがついているので、重い荷物があっても安心。共用部には宅配ボックスが設定されているので、不在の時にも荷物を受け取ることができます。また、ペット飼育の相談ができますので、あなたの大切な家族の一員も快適に暮らせるか、ぜひ確認してみてください。
お金・契約の情報
※「-」と表示されているものは、実際は料金が発生するものもございます。詳細はお問い合わせください。
| 家賃 | 8万円 | 管理費・共益費 | 1.5万円 |
|---|---|---|---|
| 敷金 | なし | 礼金 | 8万円 |
| 入居決定でお祝い金最大100,000円 | |||
| 保証金 | - | 償却・敷引 | - |
| 住宅保険料 | - | 更新料 | - |
| 保証会社利用 | 必須 | 保証会社名 | - |
| 保証会社費用 | - | 保証会社備考 | 保証会社利用必 初回契約時:50%、[リロ:月1,000円][JRAG:1万円/年(月330円)] [カーサ:月1%][ジャックス:月額保証料1%]※外国籍の方は敷金1ヶ月追加となります。 |
| 契約形態 | - | 契約期間 | - |
| 入居・引渡期間 | - | 現況 | - |
| 入居可能条件 | ペット相談 | ||
| 契約備考 | 当社は総合不動産会社で、他社様が掲載されている物件も一括してご案内可能となりますのでお気軽にご相談ください。初期費用も併せてご相談下さい。 合計4.95万円(内訳:鍵交換費用(必須)33000円/室内抗菌代(必須)16500円) ベルプラス(必須)2200円/月 1K 単身者可/ペット相談/事務所利用不可/ルームシェア相談 普通借家2年 バストイレ別、バルコニー、エアコン、ガスコンロ対応、クロゼット、フローリング、TVインターホン、浴室乾燥機、オートロック、室内洗濯置、シューズボックス、システムキッチン、温水洗浄便座、脱衣所、エレベーター、洗面所独立、洗面化粧台、2口コンロ、駐輪場、宅配ボックス、CATV、光ファイバー、BS・CS、敷金不要、防犯カメラ、ペット相談、分譲賃貸、グリル付、保証人不要、二人入居相談、2沿線利用可、24時間換気システム、ルームシェア相談、3駅以上利用可、駅徒歩10分以内、敷地内ごみ置き場、当社管理物件、都市ガス、礼金1ヶ月、IT重説対応物件、LGBTフレンドリー 敷金積み増し【ペット飼育の場合敷金1ヶ月(総額)】 入居日:'26年4月中旬 | ||
部屋の情報
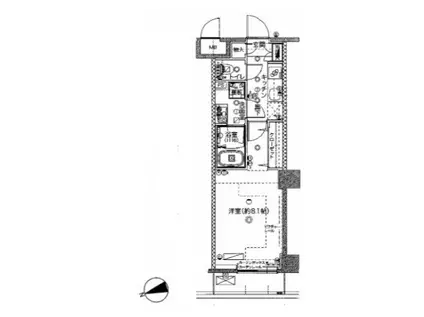
| 間取り | 1K | 専有面積 | 25.93m2 |
|---|---|---|---|
| 所在階 / 向き | 2階 / 西 | バルコニー面積 | - |
| 水道 / ガス | - | ||
| 設備 | バス・トイレ別、2階以上、オートロック、テレビドアホン、宅配ボックス、浴室乾燥機、インターネット対応、システムキッチン、エアコン、エレベーター、温水洗浄便座、バルコニー、フローリング、洗髪洗面化粧台、2口コンロ、コンロ:ガス、CATV、CSアンテナ、BSアンテナ、洗濯機:室内 | ||
| 当社物件ID | 20336981 | ||
建物の情報
| 建物名 | クレヴィスタ板橋桜川 | ||
|---|---|---|---|
| 所在地 | 東京都板橋区桜川 | ||
| 交通 | 東武東上線 上板橋駅 徒歩7分 東武東上線 東武練馬駅 徒歩20分 東京メトロ有楽町線 氷川台駅 徒歩21分 | ||
| 階数 | 地下1地上5階建 | 総戸数 | 42戸 |
| 築年月 | 2014年08月 / 築12年 | エレベーター | あり |
| 駐車場 | なし | バイク置き場 | - |
| 駐輪場 | あり | 管理人/管理会社 | - |
| 建物種別 | マンション | 建物構造 | RC(鉄筋コンクリート) |
この部屋の取扱い不動産会社
| 会社名 | (株)ベルテックス(SUUMO経由) | ||
|---|---|---|---|
| 所在地 | 東京都新宿区西新宿6-8-1 住友不動産新宿オークタワー9階 | 交通 | - |
| 営業時間 | 10:00~18:30 | 定休日 | 毎週水曜日 |
| 免許番号 | 国土交通大臣9910 | 取引態様 | 代理 |
| 不動産会社管理番号 | 100493830270 | 当社管理番号 | 89 |
| 所属団体 | (公社)東京都宅地建物取引業協会会員 | ||
| 公正取引協議会 | (公社)首都圏不動産公正取引協議会加盟 | ||
| 取扱い物件情報 | 物件詳細へ | ||
※各種情報と現状に差異がある場合は、現状優先となります。問い合わせをすることで、より詳しい条件、情報を確認する事ができます。
提供:(株)ベルテックス(SUUMO経由)
この物件が気になったら掲載期限まであと12日
クレヴィスタ板橋桜川に条件(家賃・エリア)が近い物件一覧
| 写真 | 家賃 管理費等 | 敷金 礼金 | 間取り 専有面積 | 築年数 | 最寄り駅 所在地 | キープ | 詳細 |
|---|---|---|---|---|---|---|---|
アパート ラ・ヴィータ板橋(1K/3階) | |||||||
![]() | 7.3万円 3,000円 | なし なし | 1K 16.74m2 | 築13年 | JR埼京線 板橋駅 徒歩3分 都営三田線 新板橋駅 徒歩4分 東武東上線 下板橋駅 徒歩11分 東京都北区滝野川 | 詳細を見る | |
マンション ヒルズ飛鳥山(1K/7階) | |||||||
![]() | 10.5万円 1.2万円 | なし 10.5万円 | 1K 26.69m2 | 築16年 | 都電荒川線 飛鳥山駅 徒歩3分 JR京浜東北線 王子駅 徒歩5分 東京メトロ南北線 西ケ原駅 徒歩11分 東京都北区滝野川 | 詳細を見る | |
マンション サンハイツ金井町(2DK/4階) | |||||||
![]() | 10.1万円 7,000円 | 10.1万円 10.1万円 | 2DK 29.83m2 | 築48年 | 東武東上線 下板橋駅 徒歩7分 都営三田線 板橋区役所前駅 徒歩8分 東武東上線 大山駅(東京) 徒歩9分 東京都板橋区大山金井町 | 詳細を見る | |
マンション プレール・ドゥーク大山駅前(1K/1階) | |||||||
![]() | 9.9万円 1万円 | なし 9.9万円 | 1K 26.2m2 | 築4年 | 東武東上線 大山駅(東京) 徒歩2分 都営三田線 板橋区役所前駅 徒歩13分 東京メトロ副都心線 要町駅 徒歩23分 東京都板橋区大山町 | 詳細を見る | |
マンション アローハイツ坂下(1K/3階) | |||||||
![]() | 6.5万円 3,000円 | 6.5万円 なし | 1K 23.98m2 | 築41年 | 都営三田線 蓮根駅 徒歩8分 都営三田線 志村三丁目駅 徒歩9分 東京都板橋区坂下 | 詳細を見る | |
マンション 日神パレス北池袋(1K/1階) | |||||||
![]() | 7万円 9,000円 | 7万円 7万円 | 1K 17.11m2 | 築39年 | 東武鉄道東上線 北池袋駅 徒歩5分 埼京線 板橋駅 徒歩9分 東京都豊島区池袋本町4丁目 | 詳細を見る | |
アパート コーポ長崎村(ワンルーム/1階) | |||||||
![]() | 5.5万円 2,000円 | なし なし | ワンルーム 14.87m2 | 築37年 | 西武池袋線 東長崎駅 徒歩7分 東京メトロ有楽町線 千川駅 徒歩10分 西武池袋線 江古田駅 徒歩17分 東京都豊島区長崎 | 詳細を見る | |
アパート ラクレール王子神谷(1K/2階) | |||||||
![]() | 7.2万円 なし | 7.2万円 7.2万円 | 1K 24.53m2 | 築13年 | 東京メトロ南北線 王子神谷駅 徒歩4分 JR京浜東北線 東十条駅 徒歩15分 JR埼京線 十条駅(東京) 徒歩24分 東京都北区豊島 | 詳細を見る | |









