賃貸マンション
芦屋市伊勢町 サニーサイド伊勢町3階の賃貸物件情報(2LDK/3階)
| 家賃 | 管理費等 | 敷金 | 礼金 | 間取り | 専有面積 |
|---|---|---|---|---|---|
| 9.5万円 | 5,000円 | なし | 9.5万円 | 2LDK | 60m2 |
入居決定でお祝い金最大100,000円
- 保証金
- -
- 償却・敷引
- -
- 築年数
- 築31年
- 所在階
- 3階
- 向き
- 南
Point
キッチン、浴室、洗面新調。WiFi無料、ペット相談可、最上階です。
提供:芦屋ハート不動産(株)(SUUMO経由)

詳細情報 芦屋市伊勢町 サニーサイド伊勢町3階
物件紹介
芦屋市伊勢町 サニーサイド伊勢町3階は阪神本線芦屋駅から徒歩14分にあるマンションです。
このお部屋は2階以上に位置しているので、通行人や周囲の住人からの視線が気になりにくく、防犯面でも安心です。
人気の南向きのお部屋。角部屋でもあるため、周囲の居住者の生活音も気になりにくい場所です。
通信設備面では、インターネットが無料で使えるので、月々の出費を抑えられるのも魅力です(別途工事等が必要な場合あり)。
ペット飼育の相談ができますので、あなたの大切な家族の一員も快適に暮らせるか、ぜひ確認してみてください。
このお部屋は2階以上に位置しているので、通行人や周囲の住人からの視線が気になりにくく、防犯面でも安心です。
人気の南向きのお部屋。角部屋でもあるため、周囲の居住者の生活音も気になりにくい場所です。
通信設備面では、インターネットが無料で使えるので、月々の出費を抑えられるのも魅力です(別途工事等が必要な場合あり)。
ペット飼育の相談ができますので、あなたの大切な家族の一員も快適に暮らせるか、ぜひ確認してみてください。
お金・契約の情報
※「-」と表示されているものは、実際は料金が発生するものもございます。詳細はお問い合わせください。
| 家賃 | 9.5万円 | 管理費・共益費 | 5,000円 |
|---|---|---|---|
| 敷金 | なし | 礼金 | 9.5万円 |
| 入居決定でお祝い金最大100,000円 | |||
| 保証金 | - | 償却・敷引 | - |
| 住宅保険料 | - | 更新料 | - |
| 保証会社利用 | 必須 | 保証会社名 | - |
| 保証会社費用 | - | 保証会社備考 | 保証会社利用必 興和アシスト 初期費用家賃1か月100%更新料なし。または家賃50%更新料1万円/年 |
| 契約形態 | - | 契約期間 | - |
| 入居・引渡期間 | 即時 | 現況 | - |
| 入居可能条件 | ペット相談 | ||
| 契約備考 | リフォーム:2025年10月キッチン、浴室、洗面所、床/キッチン、浴室、洗面新調。WiFi無料、ペット相談可、最上階です。 火災保険、家賃保証契約 2LDK ペット相談 普通借家2年 損保【2万円2年】 バルコニー、エアコン、南向き、角住戸、洗面所独立、駐輪場、即入居可、最上階、ペット相談、2沿線利用可、ネット使用料不要、1フロア1住戸、平坦地、南面2室、四方角部屋、バス2路線、LDK18畳以上、都市ガス、礼金1ヶ月 | ||
部屋の情報
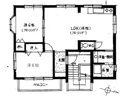
| 間取り | 2LDK | 専有面積 | 60m2 |
|---|---|---|---|
| 所在階 / 向き | 3階 / 南 | バルコニー面積 | 4m2 |
| 水道 / ガス | - | ||
| 設備 | 2階以上、インターネット対応、エアコン、南向き、角部屋、バルコニー、洗髪洗面化粧台、インターネット使用料無料 | ||
| 当社物件ID | 160322985 | ||
建物の情報
| 建物名 | 芦屋市伊勢町 サニーサイド伊勢町3階 | ||
|---|---|---|---|
| 所在地 | 兵庫県芦屋市伊勢町 | ||
| 交通 | 阪神本線 芦屋駅(阪神) 徒歩14分 阪神本線 打出駅 徒歩17分 JR東海道本線 芦屋駅(JR) 徒歩19分 | ||
| 階数 | 3階建 | 総戸数 | - |
| 築年月 | 1995年10月 / 築31年 | エレベーター | - |
| 駐車場 | 空有 13000円/平置駐 | バイク置き場 | - |
| 駐輪場 | あり | 管理人/管理会社 | - |
| 周辺環境 | その他 コープ浜芦屋(スーパー)まで358m その他 スギ薬局芦屋呉川町店(ドラッグストア)まで379m その他 ライフ芦屋呉川町店(スーパー)まで389m その他 芦屋中央公園(公園)まで857m その他 芦屋伊勢郵便局(郵便局)まで311m その他 芦屋市立精道小学校(小学校)まで794m | ||
| 建物種別 | マンション | 建物構造 | RC(鉄筋コンクリート) |
この部屋の取扱い不動産会社
| 会社名 | 芦屋ハート不動産(株)(SUUMO経由) | ||
|---|---|---|---|
| 所在地 | 兵庫県芦屋市呉川町 17-6 | 交通 | - |
| 営業時間 | 10時~17時 | 定休日 | 水・日・祝日 |
| 免許番号 | 兵庫県知事204651 | 取引態様 | 仲介 |
| 不動産会社管理番号 | 100485989924 | 当社管理番号 | 89 |
| 所属団体 | (一社)兵庫県宅地建物取引業協会会員 | ||
| 公正取引協議会 | (公社)近畿地区不動産公正取引協議会加盟 | ||
| 取扱い物件情報 | 物件詳細へ | ||
※各種情報と現状に差異がある場合は、現状優先となります。問い合わせをすることで、より詳しい条件、情報を確認する事ができます。
提供:芦屋ハート不動産(株)(SUUMO経由)
この物件が気になったら掲載期限まであと10日
芦屋市伊勢町 サニーサイド伊勢町3階に条件(家賃・エリア)が近い物件一覧
| 写真 | 家賃 管理費等 | 敷金 礼金 | 間取り 専有面積 | 築年数 | 最寄り駅 所在地 | キープ | 詳細 |
|---|---|---|---|---|---|---|---|
マンション 兵庫県神戸市西区 築30年(3LDK/2階) | |||||||
![]() | 6.3万円 7,000円 | なし なし | 3LDK 66.94m2 | 築30年 | 兵庫県神戸市西区竜が岡2丁目 | 詳細を見る | |
アパート 兵庫県神戸市垂水区 築1年(1LDK/1階) | |||||||
![]() | 6.5万円 5,000円 | なし 6.5万円 | 1LDK 33.35m2 | 築1年 | 兵庫県神戸市垂水区名谷町 | 詳細を見る | |
マンション 兵庫県神戸市西区 築33年(3LDK/3階) | |||||||
![]() | 5.8万円 5,000円 | なし なし | 3LDK 66.19m2 | 築33年 | 兵庫県神戸市西区池上4丁目 | 詳細を見る | |
マンション 神戸市西神山手線 名谷駅 徒歩14分 築45年(2DK/4階) | |||||||
![]() | 5.83万円 4,200円 | 11.66万円 なし | 2DK 53m2 | 築45年 | 神戸市西神山手線 名谷駅 徒歩14分 兵庫県神戸市須磨区北落合1丁目 | 詳細を見る | |
マンション 兵庫県神戸市西区 築35年(3LDK/1階) | |||||||
![]() | 6.5万円 8,000円 | なし なし | 3LDK 65.49m2 | 築35年 | 兵庫県神戸市西区池上1丁目 | 詳細を見る | |
マンション プラザハイツ二ツ屋 D棟(3LDK/2階) | |||||||
![]() | 6.7万円 2,000円 | なし 6.7万円 | 3LDK 66.84m2 | 築28年 | 兵庫県神戸市西区 | 詳細を見る | |
マンション 兵庫県神戸市須磨区 築41年(2LDK/5階) | |||||||
![]() | 5.96万円 4,200円 | 11.92万円 なし | 2LDK 61m2 | 築41年 | 兵庫県神戸市須磨区北落合1丁目 | 詳細を見る | |
アパート エステート藤木(2LDK/2階) | |||||||
![]() | 6.3万円 2,000円 | なし なし | 2LDK 58.84m2 | 築31年 | 兵庫県神戸市西区伊川谷町潤和 | 詳細を見る | |









