賃貸アパート
レオパレスやはたの賃貸物件情報(1K/2階)
| 家賃 | 管理費等 | 敷金 | 礼金 | 間取り | 専有面積 |
|---|---|---|---|---|---|
| 3.9万円 | 4,500円 | なし | なし | 1K | 22.35m2 |
入居決定でお祝い金最大100,000円
- 保証金
- -
- 償却・敷引
- -
- 築年数
- 築20年
- 所在階
- 2階
- 向き
- 南西
- 交通
- 所在地
- 広島県広島市佐伯区
レオパレスやはた
[地図を表示]
Point
室内にいながら、モニター越しに相手を確認できるモニター付インターホン♪セキュリティ面も安心!仕事や学校の都合で家をあけてしまう方へ、不在時でも荷物が受け取れる宅配ボックス付き物件★良和ハウスまで☆
提供:(株)良和ハウス楠木店(SUUMO経由)

詳細情報 レオパレスやはた
物件紹介
このお部屋は2階以上に位置しているので、通行人や周囲の住人からの視線が気になりにくく、防犯面でも安心。インターホンにはTVモニタもついているため、相手の顔を確認してから来客対応することができます。
人気の南向きのお部屋。また、フローリングなのでお掃除もラクラク。キッチンはシステムキッチン仕様になっていますので、お料理好きの方にもぴったり。バス・トイレは別なので、のんびりお風呂タイムも楽しめるでしょう。また、雨の日でも浴室乾燥機を使えば、お洗濯も問題ありません。
通信設備面では、インターネット接続が可能です(別途工事、契約料が必要な場合あり)。
共用部には宅配ボックスが設定されているので、不在の時にも荷物を受け取ることができます。
人気の南向きのお部屋。また、フローリングなのでお掃除もラクラク。キッチンはシステムキッチン仕様になっていますので、お料理好きの方にもぴったり。バス・トイレは別なので、のんびりお風呂タイムも楽しめるでしょう。また、雨の日でも浴室乾燥機を使えば、お洗濯も問題ありません。
通信設備面では、インターネット接続が可能です(別途工事、契約料が必要な場合あり)。
共用部には宅配ボックスが設定されているので、不在の時にも荷物を受け取ることができます。
お金・契約の情報
※「-」と表示されているものは、実際は料金が発生するものもございます。詳細はお問い合わせください。
| 家賃 | 3.9万円 | 管理費・共益費 | 4,500円 |
|---|---|---|---|
| 敷金 | なし | 礼金 | なし |
| 入居決定でお祝い金最大100,000円 | |||
| 保証金 | - | 償却・敷引 | - |
| 住宅保険料 | - | 更新料 | - |
| 保証会社利用 | 必須 | 保証会社名 | - |
| 保証会社費用 | - | 保証会社備考 | 保証会社利用必 要確認 |
| 契約形態 | - | 契約期間 | - |
| 入居・引渡期間 | 相談 | 現況 | - |
| 契約備考 | ■環境維持費:550円/月 合計5.83万円(内訳:カギ交換代:16500円/ハウスクリーニング:41800円) インターネット使用料:3630円 1K 損保【要】 バストイレ別、バルコニー、エアコン、クロゼット、フローリング、TVインターホン、浴室乾燥機、室内洗濯置、陽当り良好、シューズボックス、システムキッチン、温水洗浄便座、洗面化粧台、2口コンロ、駐輪場、宅配ボックス、礼金不要、閑静な住宅地、最上階、敷金不要、IHクッキングヒーター、全居室洋室、単身者相談、全居室フローリング、ネット専用回線、駅まで平坦、緑豊かな住宅地、平坦地、学生相談、家電付、家具付、防犯ガラス、バス2路線、田園風景、上階無し、敷地内ごみ置き場、平面駐車場、南西向き、プロパンガス、年内入居可、年度内入居可、敷金・礼金不要、初期費用カード決済可 | ||
部屋の情報
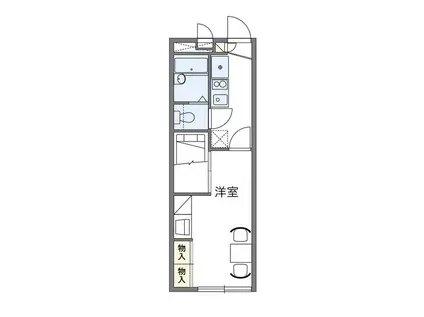
| 間取り | 1K | 専有面積 | 22.35m2 |
|---|---|---|---|
| 所在階 / 向き | 2階 / 南西 | バルコニー面積 | - |
| 水道 / ガス | - | ||
| 設備 | バス・トイレ別、2階以上、テレビドアホン、宅配ボックス、浴室乾燥機、インターネット対応、システムキッチン、エアコン、温水洗浄便座、南向き、バルコニー、フローリング、2口コンロ、コンロ:IH、洗濯機:室内 | ||
| 当社物件ID | 23722880 | ||
建物の情報
| 建物名 | レオパレスやはた | ||
|---|---|---|---|
| 所在地 | 広島県広島市佐伯区 | ||
| 交通 | - | ||
| 階数 | 2階建 | 総戸数 | 20戸 |
| 築年月 | 2006年11月 / 築20年 | エレベーター | - |
| 駐車場 | 空有 7150円 | バイク置き場 | - |
| 駐輪場 | あり | 管理人/管理会社 | - |
| 周辺環境 | その他 五日市福屋(ショッピングセンター)まで3082m その他 アルゾ五日市利松店(スーパー)まで841m その他 セブンイレブン広島八幡店(コンビニ)まで128m その他 ウォンツ八幡3号店(ドラッグストア)まで577m その他 広島市立八幡小学校(小学校)まで768m その他 広島中央保健生活協同組合生協さえ(病院)まで822m | ||
| 建物種別 | アパート | 建物構造 | 鉄骨造 |
この部屋の取扱い不動産会社
| 会社名 | (株)良和ハウス五日市店(SUUMO経由) | ||
|---|---|---|---|
| 所在地 | 広島県広島市佐伯区海老園1-4-37 | 交通 | - |
| 営業時間 | 10時~18時 | 定休日 | 水曜日 |
| 免許番号 | 国土交通大臣9113 | 取引態様 | 仲介 |
| 不動産会社管理番号 | 100451675656 | 当社管理番号 | 89 |
| 所属団体 | (公社)広島県宅地建物取引業協会会員 | ||
| 公正取引協議会 | 中国地区不動産公正取引協議会加盟 | ||
| 取扱い物件情報 | 物件詳細へ | ||
※各種情報と現状に差異がある場合は、現状優先となります。問い合わせをすることで、より詳しい条件、情報を確認する事ができます。
提供:(株)良和ハウス五日市店(SUUMO経由)
この物件が気になったら掲載期限まであと11日
レオパレスやはたに条件(家賃・エリア)が近い物件一覧
| 写真 | 家賃 管理費等 | 敷金 礼金 | 間取り 専有面積 | 築年数 | 最寄り駅 所在地 | キープ | 詳細 |
|---|---|---|---|---|---|---|---|
アパート スターライト中央C棟(2LDK/2階) | |||||||
![]() | 5.4万円 5,000円 | なし 2万円 | 2LDK 53.76m2 | 築27年 | JR呉線 天応駅 徒歩68分 JR呉線 呉ポートピア駅 徒歩70分 広島県呉市焼山中央 | 詳細を見る | |
マンション よしもとハイツ(1K/3階) | |||||||
![]() | 4.1万円 なし | なし なし | 1K 22.68m2 | 築28年 | JR山陽本線 宮内串戸駅 徒歩5分 広島電鉄宮島線 宮内駅(広島) 徒歩5分 広島電鉄宮島線 JA広島病院前駅 徒歩7分 広島県廿日市市地御前 | 詳細を見る | |
アパート ヴィラ リヴィエールIII(ワンルーム/2階) | |||||||
![]() | 4.5万円 4,000円 | 4.5万円 4.5万円 | ワンルーム 21.28m2 | 築8年 | 広島高速交通アストラムライン 広域公園前駅 徒歩7分 広島高速交通アストラムライン 大塚駅(広島) 徒歩16分 広島県広島市佐伯区五日市町大字石内 | 詳細を見る | |
アパート メイプルハイツA棟(1K/2階) | |||||||
![]() | 4万円 2,000円 | 4万円 8万円 | 1K 26.93m2 | 築30年 | アストラムライン 広域公園前駅 徒歩11分 広島県広島市佐伯区五月が丘5丁目 | 詳細を見る | |
マンション リベルタ可愛(1K/4階) | |||||||
![]() | 4.3万円 3,000円 | 8.6万円 8.6万円 | 1K 23.49m2 | 築24年 | 広島電鉄宮島線 廿日市市役所前駅(平良) 徒歩5分 広島電鉄宮島線 広電廿日市駅 徒歩7分 JR山陽本線 廿日市駅 徒歩9分 広島県廿日市市可愛 | 詳細を見る | |
マンション 月光鎮守府(1LDK/1階) | |||||||
![]() | 5.65万円 1万円 | なし なし | 1LDK 29.28m2 | 新築 | 呉線 呉駅 徒歩9分 広島県呉市本通1丁目 | 詳細を見る | |
アパート レオパレスレインボー K(1K/2階) | |||||||
![]() | 4万円 4,500円 | なし なし | 1K 23.18m2 | 築22年 | 広島県広島市佐伯区五日市町大字上河内五日市町大字上河内 | 詳細を見る | |
アパート プレジールSHIGEMORI(1K/1階) | |||||||
![]() | 3.8万円 3,000円 | なし 5.7万円 | 1K 26.71m2 | 築31年 | 広島県東広島市西条下見 | 詳細を見る | |








