賃貸アパート
エバーグリーンの賃貸物件情報(1K/2階)
| 家賃 | 管理費等 | 敷金 | 礼金 | 間取り | 専有面積 |
|---|---|---|---|---|---|
| 6.5万円 | なし | 6.5万円 | 6.5万円 | 1K | 24.64m2 |
入居決定でお祝い金最大100,000円
- 保証金
- -
- 償却・敷引
- -
- 築年数
- 築23年
- 所在階
- 2階
- 向き
- 南
Point
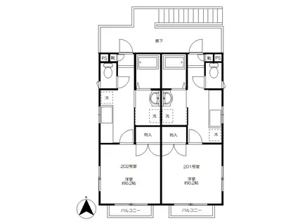
全4世帯の為、全戸角部屋・2面採光・2階南西角部屋で陽当り良好・2口ガスキッチンで調理スペースもある為、料理もはかどります。最寄りの武蔵小金井駅は開発が進んでおり、暮らしていて不便を感じない立地です。
提供:アリスホーム(株)(SUUMO経由)

詳細情報 エバーグリーン
物件紹介
エバーグリーンはJR中央線武蔵小金井駅から徒歩8分にあり、駅近で通勤通学に便利なアパートです。
このお部屋は2階以上に位置しているので、通行人や周囲の住人からの視線が気になりにくく、防犯面でも安心。インターホンにはTVモニタもついているため、相手の顔を確認してから来客対応することができます。
人気の南向きのお部屋。角部屋でもあるため、周囲の居住者の生活音も気になりにくい場所です。バス・トイレ別の仕様で、のんびりお風呂タイムも楽しめます。
通信設備面では、インターネットが無料で使えるので、月々の出費を抑えられるのも魅力です。また、CATVにも対応しているので、おうち時間も充実するでしょう(別途工事、CATVの契約料等が必要な場合あり)。
このお部屋は2階以上に位置しているので、通行人や周囲の住人からの視線が気になりにくく、防犯面でも安心。インターホンにはTVモニタもついているため、相手の顔を確認してから来客対応することができます。
人気の南向きのお部屋。角部屋でもあるため、周囲の居住者の生活音も気になりにくい場所です。バス・トイレ別の仕様で、のんびりお風呂タイムも楽しめます。
通信設備面では、インターネットが無料で使えるので、月々の出費を抑えられるのも魅力です。また、CATVにも対応しているので、おうち時間も充実するでしょう(別途工事、CATVの契約料等が必要な場合あり)。
お金・契約の情報
※「-」と表示されているものは、実際は料金が発生するものもございます。詳細はお問い合わせください。
| 家賃 | 6.5万円 | 管理費・共益費 | なし |
|---|---|---|---|
| 敷金 | 6.5万円 | 礼金 | 6.5万円 |
| 入居決定でお祝い金最大100,000円 | |||
| 保証金 | - | 償却・敷引 | - |
| 住宅保険料 | - | 更新料 | - |
| 保証会社利用 | 必須 | 保証会社名 | 全保連 |
| 保証会社費用 | - | 保証会社備考 | 全保連利用必 初回保証料:月額総賃料の60%・月額保証料:1400円 |
| 契約形態 | - | 契約期間 | - |
| 入居・引渡期間 | - | 現況 | - |
| 契約備考 | 鍵交換別途見積り。西側の腰窓にはシャッターがありますが防火設備としてのシャッターの代替設備として網入りガラスにしております(2023年)。現状西側のシャッターは開閉しずらいですが、修理等は行いませんので開閉しない事とします。 退去時、室内全体のルームクリーニング費用借主負担。 1K 単身者限定 普通借家2年 損保【1.9万円2年】 バストイレ別、バルコニー、エアコン、ガスコンロ対応、TVインターホン、室内洗濯置、陽当り良好、シューズボックス、南向き、角住戸、温水洗浄便座、脱衣所、洗面所独立、2口コンロ、駐輪場、CATV、2面採光、敷金1ヶ月、CATVインターネット、ネット使用料不要、キッチンに窓、1フロア2住戸、電子ロック、始発駅、駅徒歩10分以内、バス停徒歩3分以内、敷地内ごみ置き場、南西向き、当社管理物件、都市ガス、洗面所にドア、フローリング風フロアタイル、礼金1ヶ月、通風良好 入居日:'26年1月下旬 | ||
部屋の情報
| 間取り | 1K | 専有面積 | 24.64m2 |
|---|---|---|---|
| 所在階 / 向き | 2階 / 南 | バルコニー面積 | - |
| 水道 / ガス | - | ||
| 設備 | バス・トイレ別、2階以上、テレビドアホン、インターネット対応、エアコン、温水洗浄便座、南向き、角部屋、バルコニー、洗髪洗面化粧台、2口コンロ、コンロ:ガス、CATV、インターネット使用料無料、洗濯機:室内 | ||
| 当社物件ID | 7403843 | ||
建物の情報
| 建物名 | エバーグリーン | ||
|---|---|---|---|
| 所在地 | 東京都小金井市本町 | ||
| 交通 | JR中央線 武蔵小金井駅 徒歩8分 JR中央線 東小金井駅 徒歩21分 西武多摩川線 新小金井駅 徒歩32分 | ||
| 階数 | 2階建 | 総戸数 | 4戸 |
| 築年月 | 2003年03月 / 築23年 | エレベーター | - |
| 駐車場 | なし | バイク置き場 | - |
| 駐輪場 | あり | 管理人/管理会社 | - |
| 周辺環境 | その他 nonowa武蔵小金井(ショッピングセンター)まで647m その他 いなげや小金井本町店(スーパー)まで213m その他 セブンイレブンムサシ小金井北口店(コンビニ)まで165m その他 サンドラッグ武蔵小金井駅前店(ドラッグストア)まで736m その他 ヤマダデンキテックランド小金井店(ホームセンター)まで736m その他 デニーズ小金井本町店(飲食店)まで311m | ||
| 建物種別 | アパート | 建物構造 | 木造 |
この部屋の取扱い不動産会社
| 会社名 | アリスホーム(株)(SUUMO経由) | ||
|---|---|---|---|
| 所在地 | 東京都小金井市本町5-15-9 | 交通 | - |
| 営業時間 | 9:30~19:00(火曜のみ17時まで) | 定休日 | 毎週火曜日・水曜日 |
| 免許番号 | 東京都知事102645 | 取引態様 | 仲介 |
| 不動産会社管理番号 | 100335445736 | 当社管理番号 | 89 |
| 所属団体 | (公社)東京都宅地建物取引業協会会員 | ||
| 公正取引協議会 | (公社)首都圏不動産公正取引協議会加盟 | ||
| 取扱い物件情報 | 物件詳細へ | ||
※各種情報と現状に差異がある場合は、現状優先となります。問い合わせをすることで、より詳しい条件、情報を確認する事ができます。
提供:アリスホーム(株)(SUUMO経由)
この物件が気になったら掲載期限まであと10日
エバーグリーンに条件(家賃・エリア)が近い物件一覧
| 写真 | 家賃 管理費等 | 敷金 礼金 | 間取り 専有面積 | 築年数 | 最寄り駅 所在地 | キープ | 詳細 |
|---|---|---|---|---|---|---|---|
アパート 保谷コーポ(2DK/2階) | |||||||
![]() | 8万円 4,000円 | 8万円 8万円 | 2DK 41.58m2 | 築39年 | 西武鉄道新宿線 田無駅 徒歩20分 東京都西東京市新町3丁目 | 詳細を見る | |
アパート メゾン・ド・アブリコ(1K/2階) | |||||||
![]() | 7万円 6,000円 | なし 7万円 | 1K 23.4m2 | 築19年 | 西武多摩川線 多磨駅 徒歩10分 京王線 武蔵野台駅 徒歩17分 京王線 多磨霊園駅 徒歩18分 東京都府中市紅葉丘 | 詳細を見る | |
アパート アヴァンティコートA棟(2DK/2階) | |||||||
![]() | 10万円 4,000円 | なし 10万円 | 2DK 47.69m2 | 築31年 | 京王井の頭線 三鷹台駅 徒歩24分 京王井の頭線 久我山駅 徒歩27分 京王線 仙川駅 徒歩27分 東京都三鷹市北野 | 詳細を見る | |
アパート グリーンリーフ国立(1K/1階) | |||||||
![]() | 6.1万円 4,000円 | なし なし | 1K 18.65m2 | 築6年 | JR中央線 国立駅 徒歩13分 JR南武線 西国立駅 徒歩24分 JR南武線 矢川駅 徒歩30分 東京都国分寺市西町 | 詳細を見る | |
アパート セルシオ田無(ワンルーム/1階) | |||||||
![]() | 4.2万円 2,000円 | なし なし | ワンルーム 15.02m2 | 築34年 | 西武新宿線 田無駅 徒歩8分 西武新宿線 西武柳沢駅 徒歩15分 東京都西東京市南町 | 詳細を見る | |
アパート VILLA MF(1LDK/2階) | |||||||
![]() | 10万円 なし | 10万円 10万円 | 1LDK 36.36m2 | 築13年 | 京王線 分倍河原駅 徒歩13分 JR武蔵野線 北府中駅 徒歩13分 京王線 府中駅(東京) 徒歩22分 東京都府中市美好町 | 詳細を見る | |
マンション 醍醐マンション(1LDK/3階) | |||||||
![]() | 9万円 2,000円 | 9万円 9万円 | 1LDK 53.46m2 | 築52年 | 西武多摩湖線 一橋学園駅 徒歩5分 西武多摩湖線 青梅街道駅 徒歩15分 JR武蔵野線 新小平駅 徒歩21分 東京都小平市学園東町 | 詳細を見る | |








