賃貸アパート
ヒーリンググレース高槻高西町B棟の賃貸物件情報(2LDK/2階)
| 家賃 | 管理費等 | 敷金 | 礼金 | 間取り | 専有面積 |
|---|---|---|---|---|---|
| 11.8万円 | 5,800円 | なし | 23.6万円 | 2LDK | 53.98m2 |
入居決定でお祝い金最大100,000円
Point
2026年4月完成予定新築物件。浴室乾燥機付き設備充実。新生活が幸せであふれるようなご提案を心がけております。初期費用クレジット決済可能物件。お部屋探しのことなら住むーズ 堀江店まで。
提供:住む→ズ四ツ橋堀江店(株)谷山企画(SUUMO経由)

詳細情報 ヒーリンググレース高槻高西町B棟
物件紹介
ヒーリンググレース高槻高西町B棟は阪急京都線高槻市駅から徒歩18分にあるアパートです。
このお部屋は2階以上に位置しているので、通行人や周囲の住人からの視線が気になりにくく、防犯面でも安心。インターホンにはTVモニタもついているため、相手の顔を確認してから来客対応することができます。
フローリングのお部屋なのでお掃除もラクラク。バス・トイレ別の仕様で、のんびりお風呂タイムも楽しめます。また、浴室乾燥機を使えば、雨の日でもお洗濯は問題ありません。
通信設備面では、インターネット接続が可能です。また、BSアンテナ・CSアンテナがありCATVにも対応しているので、おうち時間も充実するでしょう(別途工事、契約料が必要な場合あり)。
このお部屋は2階以上に位置しているので、通行人や周囲の住人からの視線が気になりにくく、防犯面でも安心。インターホンにはTVモニタもついているため、相手の顔を確認してから来客対応することができます。
フローリングのお部屋なのでお掃除もラクラク。バス・トイレ別の仕様で、のんびりお風呂タイムも楽しめます。また、浴室乾燥機を使えば、雨の日でもお洗濯は問題ありません。
通信設備面では、インターネット接続が可能です。また、BSアンテナ・CSアンテナがありCATVにも対応しているので、おうち時間も充実するでしょう(別途工事、契約料が必要な場合あり)。
お金・契約の情報
※「-」と表示されているものは、実際は料金が発生するものもございます。詳細はお問い合わせください。
| 家賃 | 11.8万円 | 管理費・共益費 | 5,800円 |
|---|---|---|---|
| 敷金 | なし | 礼金 | 23.6万円 |
| 入居決定でお祝い金最大100,000円 | |||
| 保証金 | - | 償却・敷引 | - |
| 住宅保険料 | - | 更新料 | - |
| 保証会社利用 | 必須 | 保証会社名 | - |
| 保証会社費用 | - | 保証会社備考 | 保証会社利用必 エルズ 初回保証料:総賃料の50% |
| 契約形態 | - | 契約期間 | - |
| 入居・引渡期間 | - | 現況 | - |
| 入居可能条件 | 事務所可 | ||
| 契約備考 | インターネット使用料1200円/月 2LDK 単身者可/事務所利用相談/ルームシェア相談 普通借家2年 損保【0.8万円1年】 バストイレ別、エアコン、ガスコンロ対応、クロゼット、フローリング、TVインターホン、浴室乾燥機、室内洗濯置、陽当り良好、シューズボックス、温水洗浄便座、脱衣所、洗面所独立、洗面化粧台、2口コンロ、駐輪場、CATV、BS・CS、敷金不要、保証人不要、CATVインターネット、二人入居相談、バイク置場、2沿線利用可、眺望良好、保証金不要、事務所相談、築2年以内、ルームシェア相談、未入居、2駅利用可、敷地内ごみ置き場、都市ガス、高速ネット対応、礼金2ヶ月、IT重説対応物件、LGBTフレンドリー、初期費用カード決済可、通風良好 入居日:'26年4月中旬 | ||
部屋の情報
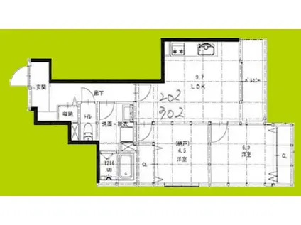
| 間取り | 2LDK | 専有面積 | 53.98m2 |
|---|---|---|---|
| 所在階 / 向き | 2階 / - | バルコニー面積 | - |
| 水道 / ガス | - | ||
| 設備 | バス・トイレ別、2階以上、テレビドアホン、浴室乾燥機、インターネット対応、エアコン、温水洗浄便座、フローリング、洗髪洗面化粧台、2口コンロ、コンロ:ガス、CATV、CSアンテナ、BSアンテナ、洗濯機:室内 | ||
| 当社物件ID | 160208653 | ||
建物の情報
| 建物名 | ヒーリンググレース高槻高西町B棟 | ||
|---|---|---|---|
| 所在地 | 大阪府高槻市高西町 | ||
| 交通 | 阪急京都線 高槻市駅 徒歩18分 JR東海道本線 高槻駅 徒歩22分 | ||
| 階数 | 3階建 | 総戸数 | - |
| 築年月 | 2026年04月 / 新築 | エレベーター | - |
| 駐車場 | なし | バイク置き場 | あり |
| 駐輪場 | あり | 管理人/管理会社 | - |
| 周辺環境 | その他 ホームセンターコーナン 高槻城西店(ホームセンター)まで755m その他 高槻城内郵便局(郵便局)まで910m その他 なか卯 高槻津之江店(その他)まで1295m その他 万代 高槻春日店(スーパー)まで1356m その他 セブンイレブン 高槻城東町店(コンビニ)まで1535m その他 天下一品 高槻八丁畷店(その他)まで1457m | ||
| 建物種別 | アパート | 建物構造 | 木造 |
この部屋の取扱い不動産会社
| 会社名 | 住む→ズ四ツ橋堀江店(株)谷山企画(SUUMO経由) | ||
|---|---|---|---|
| 所在地 | 大阪府大阪市西区北堀江1-2-17ー6階 EAST | 交通 | - |
| 営業時間 | 9:00-21:30 | 定休日 | ☆年中無休☆年末年始 |
| 免許番号 | 大阪府知事58352 | 取引態様 | 仲介 |
| 不動産会社管理番号 | 100482711383 | 当社管理番号 | 89 |
| 所属団体 | (一社)大阪府宅地建物取引業協会会員 | ||
| 公正取引協議会 | (公社)近畿地区不動産公正取引協議会加盟 | ||
| 取扱い物件情報 | 物件詳細へ | ||
※各種情報と現状に差異がある場合は、現状優先となります。問い合わせをすることで、より詳しい条件、情報を確認する事ができます。
提供:住む→ズ四ツ橋堀江店(株)谷山企画(SUUMO経由)
この物件が気になったら掲載期限まであと11日
ヒーリンググレース高槻高西町B棟に条件(家賃・エリア)が近い物件一覧
| 写真 | 家賃 管理費等 | 敷金 礼金 | 間取り 専有面積 | 築年数 | 最寄り駅 所在地 | キープ | 詳細 |
|---|---|---|---|---|---|---|---|
マンション 石垣ハイツ(2LDK/1階) | |||||||
![]() | 7.5万円 5,000円 | なし 7.5万円 | 2LDK 61.2m2 | 築38年 | 京阪交野線 星ケ丘駅(大阪) 徒歩8分 京阪交野線 村野駅 徒歩13分 京阪交野線 宮之阪駅 徒歩14分 大阪府枚方市星丘 | 詳細を見る | |
マンション マンションフォルツーナ(3LDK/3階) | |||||||
| 10.9万円 1.5万円 | なし 10.9万円 | 3LDK 65.79m2 | 築29年 | 阪急電鉄京都線 茨木市駅 徒歩23分 大阪モノレール本線 南茨木駅 徒歩29分 阪急電鉄京都線 総持寺駅 徒歩32分 大阪府茨木市平田台3-1 | 詳細を見る | ||
アパート ヴィアーレⅡ(2LDK/2階) | |||||||
| 8.75万円 4,600円 | なし 12万円 | 2LDK 58.28m2 | 築5年 | 東海道本線 茨木駅 徒歩34分 東海道本線 JR総持寺駅 徒歩34分 大阪モノレール彩都 豊川駅(大阪) 徒歩34分 大阪府茨木市郡5丁目5-26 | 詳細を見る | ||
一戸建て 京阪電気鉄道京阪線 寝屋川市駅 徒歩6分 築28年(4LDK) | |||||||
![]() | 8.5万円 なし | なし 17万円 | 4LDK 82.24m2 | 築28年 | 京阪電気鉄道京阪線 寝屋川市駅 徒歩6分 京阪電気鉄道京阪線 萱島駅 徒歩25分 京阪電気鉄道京阪線 香里園駅 徒歩40分 大阪府寝屋川市日之出町 | 詳細を見る | |



