賃貸マンション
シャインビュー新大阪の賃貸物件情報(ワンルーム/7階)
| 家賃 | 管理費等 | 敷金 | 礼金 | 間取り | 専有面積 |
|---|---|---|---|---|---|
| 6.7万円 | 6,000円 | なし | なし | ワンルーム | 25.17m2 |
入居決定でお祝い金最大100,000円
- 保証金
- -
- 償却・敷引
- -
- 築年数
- 築22年
- 所在階
- 7階
- 向き
- 南
Point
収納はシューズボックス・クロゼットなど豊富なので、衣類や履き物の整理がしやすく便利です。
提供:住まいStyle 新大阪店(株)Piece(SUUMO経由)

詳細情報 シャインビュー新大阪
物件紹介
シャインビュー新大阪は阪急京都線南方駅から徒歩5分にあり、駅近で通勤通学に便利なマンションです。
このお部屋は2階以上に位置しているので、通行人や周囲の住人からの視線が気になりにくく、防犯面でも安心。建物のエントランスはオートロックがついており、インターホンにはTVモニタもついているため、相手の顔を確認してから来客対応することができます。
おしゃれなデザイナーズ物件!人気の南向きのお部屋。また、フローリングなのでお掃除もラクラク。キッチンはシステムキッチン仕様になっていますので、お料理好きの方にもぴったり。バス・トイレは別なので、のんびりお風呂タイムも楽しめるでしょう。また、雨の日でも浴室乾燥機を使えば、お洗濯も問題ありません。
通信設備面では、インターネットが無料で使えるので、月々の出費を抑えられるのも魅力です。また、BSアンテナ・CSアンテナがありCATVにも対応しているので、おうち時間も充実するでしょう(別途工事、BS・CS・CATVの契約料等が必要な場合あり)。
建物にはエレベーターがついているので、重い荷物があっても安心。
コンビニまで徒歩2分の場所にあり、日用品や食料品のお買い物にも便利です。
このお部屋は2階以上に位置しているので、通行人や周囲の住人からの視線が気になりにくく、防犯面でも安心。建物のエントランスはオートロックがついており、インターホンにはTVモニタもついているため、相手の顔を確認してから来客対応することができます。
おしゃれなデザイナーズ物件!人気の南向きのお部屋。また、フローリングなのでお掃除もラクラク。キッチンはシステムキッチン仕様になっていますので、お料理好きの方にもぴったり。バス・トイレは別なので、のんびりお風呂タイムも楽しめるでしょう。また、雨の日でも浴室乾燥機を使えば、お洗濯も問題ありません。
通信設備面では、インターネットが無料で使えるので、月々の出費を抑えられるのも魅力です。また、BSアンテナ・CSアンテナがありCATVにも対応しているので、おうち時間も充実するでしょう(別途工事、BS・CS・CATVの契約料等が必要な場合あり)。
建物にはエレベーターがついているので、重い荷物があっても安心。
コンビニまで徒歩2分の場所にあり、日用品や食料品のお買い物にも便利です。
お金・契約の情報
※「-」と表示されているものは、実際は料金が発生するものもございます。詳細はお問い合わせください。
| 家賃 | 6.7万円 | 管理費・共益費 | 6,000円 |
|---|---|---|---|
| 敷金 | なし | 礼金 | なし |
| 入居決定でお祝い金最大100,000円 | |||
| 保証金 | - | 償却・敷引 | - |
| 住宅保険料 | 1円 | 更新料 | - |
| 保証会社利用 | 必須 | 保証会社名 | 全保連 |
| 保証会社費用 | - | 保証会社備考 | 初回50% 毎年更新13,000円 |
| 契約形態 | - | 契約期間 | 2年 |
| 入居・引渡期間 | 2026年04月上旬 | 現況 | - |
| 契約備考 | 室内清掃費用 27500円 鍵交換代 22000円 月額(水道代 2000円) 鍵交換費用:22000 室内清掃費用:27500 その他設備/条件:室内洗濯機置き場、独立洗面台、防犯カメラ、クローゼット、シューズボックス | ||
部屋の情報
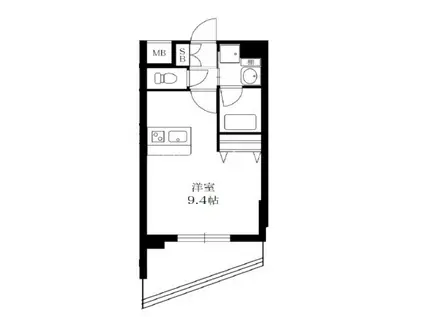
| 間取り | ワンルーム | 専有面積 | 25.17m2 |
|---|---|---|---|
| 間取り詳細 | 洋室(9.4帖) | ||
| 所在階 / 向き | 7階 / 南 | バルコニー面積 | - |
| 水道 / ガス | 水道【公営】、ガス【都市】 | ||
| 設備 | バス・トイレ別、オートロック、テレビドアホン、浴室乾燥機、インターネット対応、システムキッチン、カウンターキッチン、エアコン、エレベーター、温水洗浄便座、バルコニー、フローリング、洗髪洗面化粧台、2口コンロ、コンロ:IH、CATV、BSアンテナ、シャワー、給湯 | ||
| 当社物件ID | 4611905 | ||
建物の情報
| 建物名 | シャインビュー新大阪 | ||
|---|---|---|---|
| 所在地 | 大阪府大阪市淀川区木川東2丁目 | ||
| 交通 | 大阪メトロ御堂筋線 西中島南方駅 徒歩7分 阪急電鉄京都線 南方駅(大阪) 徒歩8分 | ||
| 階数 | 9階建 | 総戸数 | 48戸 |
| 築年月 | 2005年03月 / 築22年 | エレベーター | あり |
| 駐車場 | - | バイク置き場 | あり |
| 駐輪場 | あり | 管理人/管理会社 | - |
| 周辺環境 | コンビニ 徒歩2分(133m) 販売店 徒歩2分(156m) その他 ドラッグストア その他 公園 その他 銀行 その他 * | ||
| 建物種別 | マンション | 建物構造 | RC(鉄筋コンクリート) |
この部屋の取扱い不動産会社
| 会社名 | 大阪ハウスコム株式会社 十三店 | ||
|---|---|---|---|
| 所在地 | 大阪府大阪市淀川区10-3 | 交通 | - |
| 営業時間 | 10:00~18:00 | 定休日 | 水曜定休 |
| 免許番号 | 国土交通大臣(3)第8685号 | 取引態様 | 仲介 |
| 不動産会社管理番号 | HC2-3113825-705-0265 | 当社管理番号 | 468 |
| 所属団体 | 、 | ||
| 取扱い物件情報 | 物件詳細へ | ||
※各種情報と現状に差異がある場合は、現状優先となります。問い合わせをすることで、より詳しい条件、情報を確認する事ができます。
提供:大阪ハウスコム株式会社 十三店
この物件が気になったら掲載期限まであと5日
シャインビュー新大阪に条件(家賃・エリア)が近い物件一覧
| 写真 | 家賃 管理費等 | 敷金 礼金 | 間取り 専有面積 | 築年数 | 最寄り駅 所在地 | キープ | 詳細 |
|---|---|---|---|---|---|---|---|
マンション ウインズコート新大阪2(1K/7階) | |||||||
| 6.55万円 6,000円 | なし 7.86万円 | 1K 22.09m2 | 築10年 | 大阪市御堂筋線 西中島南方駅 徒歩10分 阪急電鉄宝塚線 十三駅 徒歩15分 大阪市御堂筋線 新大阪駅 徒歩22分 大阪府大阪市淀川区木川東3丁目10-10 | 詳細を見る | ||
アパート クレアール八戸ノ里(1K/1階) | |||||||
![]() | 6.15万円 5,500円 | なし なし | 1K 25.3m2 | 築1年 | 近鉄奈良線 八戸ノ里駅 徒歩8分 近鉄奈良線 河内小阪駅 徒歩16分 地下鉄中央線 長田駅(大阪) 徒歩18分 大阪府東大阪市御厨南 | 詳細を見る | |
マンション レオパレス千里山東(1K/1階) | |||||||
| 6.1万円 5,000円 | なし 6.1万円 | 1K 19.87m2 | 築19年 | 阪急電鉄千里線 千里山駅 徒歩15分 阪急電鉄千里線 関大前駅 徒歩18分 阪急電鉄千里線 南千里駅 徒歩28分 大阪府吹田市千里山東4丁目14-6 | 詳細を見る | ||
マンション T・コート21(1K/1階) | |||||||
| 6.2万円 4,100円 | なし 6.2万円 | 1K 27.25m2 | 築17年 | 東海道本線 千里丘駅 徒歩5分 阪急電鉄京都線 摂津市駅 徒歩10分 大阪モノレール本線 沢良宜駅 徒歩13分 大阪府摂津市千里丘東1丁目1-1 | 詳細を見る | ||
マンション 常陽第6ガーデンハイツ(1K/3階) | |||||||
| 4.8万円 5,000円 | なし 4.8万円 | 1K 21m2 | 築22年 | 阪急電鉄千里線 豊津駅(大阪) 徒歩10分 大阪市御堂筋線 江坂駅 徒歩13分 北大阪急行南北線 江坂駅 徒歩14分 大阪府吹田市垂水町1丁目40-25 | 詳細を見る | ||
マンション ルクレ新大阪レジデンス(1DK/8階) | |||||||
| 9.5万円 7,000円 | なし なし | 1DK 30.1m2 | 築20年 | 大阪市御堂筋線 西中島南方駅 徒歩13分 阪急電鉄宝塚線 十三駅 徒歩16分 大阪市御堂筋線 新大阪駅 徒歩20分 大阪府大阪市淀川区木川東4丁目16-11 | 詳細を見る | ||
アパート AMOUR VILLE江坂(1LDK/1階) | |||||||
| 8.4万円 4,000円 | なし 10万円 | 1LDK 35.28m2 | 築4年 | 阪急電鉄千里線 豊津駅(大阪) 徒歩9分 阪急電鉄千里線 吹田駅(阪急) 徒歩11分 おおさか東線 南吹田駅 徒歩17分 大阪府吹田市金田町3-5 | 詳細を見る | ||
マンション ALIVIS SHIMO-SHINJO SOL TERRACE(1LDK/2階) | |||||||
| 9.2万円 1.5万円 | なし なし | 1LDK 30.03m2 | 築1年 | 阪急電鉄千里線 下新庄駅 徒歩6分 阪急電鉄千里線 淡路駅 徒歩15分 おおさか東線 南吹田駅 徒歩22分 大阪府吹田市西御旅町8-47 | 詳細を見る | ||

