賃貸マンション
コンフォリア・リヴ丁堀の賃貸物件情報(1K/3階)
| 家賃 | 管理費等 | 敷金 | 礼金 | 間取り | 専有面積 |
|---|---|---|---|---|---|
| 16.3万円 | 1万円 | 16.3万円 | なし | 1K | 25.33m2 |
入居決定でお祝い金最大100,000円
- 保証金
- -
- 償却・敷引
- -
- 築年数
- 築1年
- 所在階
- 3階
- 向き
- 北西
Point
千代田区・中央区・港区の賃貸物件のご紹介はお任せください!【お部屋探しはミニミニ東京駅前店で♪】初期費用のお見積りもお気軽にご相談ください。
提供:(株)ミニミニ城東東京駅前店(SUUMO経由)

詳細情報 コンフォリア・リヴ丁堀
物件紹介
コンフォリア・リヴ丁堀は東京メトロ日比谷線八丁堀駅から徒歩4分にあり、駅近で通勤通学に便利なマンションです。
このお部屋は2階以上に位置しているので、通行人や周囲の住人からの視線が気になりにくく、防犯面でも安心。建物のエントランスはオートロックがついており、インターホンにはTVモニタもついているため、相手の顔を確認してから来客対応することができます。
フローリングのお部屋なのでお掃除もラクラク。バス・トイレ別の仕様で、のんびりお風呂タイムも楽しめます。また、浴室乾燥機を使えば、雨の日でもお洗濯は問題ありません。
通信設備面では、インターネットが無料で使えるので、月々の出費を抑えられるのも魅力です。また、BSアンテナ・CSアンテナもありますので、おうち時間も充実するでしょう(別途工事、BS・CSの契約料等が必要な場合あり)。
建物にはエレベーターがついているので、重い荷物があっても安心。共用部には宅配ボックスが設定されているので、不在の時にも荷物を受け取ることができます。また、ペット飼育の相談ができますので、あなたの大切な家族の一員も快適に暮らせるか、ぜひ確認してみてください。
このお部屋は2階以上に位置しているので、通行人や周囲の住人からの視線が気になりにくく、防犯面でも安心。建物のエントランスはオートロックがついており、インターホンにはTVモニタもついているため、相手の顔を確認してから来客対応することができます。
フローリングのお部屋なのでお掃除もラクラク。バス・トイレ別の仕様で、のんびりお風呂タイムも楽しめます。また、浴室乾燥機を使えば、雨の日でもお洗濯は問題ありません。
通信設備面では、インターネットが無料で使えるので、月々の出費を抑えられるのも魅力です。また、BSアンテナ・CSアンテナもありますので、おうち時間も充実するでしょう(別途工事、BS・CSの契約料等が必要な場合あり)。
建物にはエレベーターがついているので、重い荷物があっても安心。共用部には宅配ボックスが設定されているので、不在の時にも荷物を受け取ることができます。また、ペット飼育の相談ができますので、あなたの大切な家族の一員も快適に暮らせるか、ぜひ確認してみてください。
お金・契約の情報
※「-」と表示されているものは、実際は料金が発生するものもございます。詳細はお問い合わせください。
| 家賃 | 16.3万円 | 管理費・共益費 | 1万円 |
|---|---|---|---|
| 敷金 | 16.3万円 | 礼金 | なし |
| 入居決定でお祝い金最大100,000円 | |||
| 保証金 | - | 償却・敷引 | - |
| 住宅保険料 | - | 更新料 | - |
| 保証会社利用 | 必須 | 保証会社名 | - |
| 保証会社費用 | - | 保証会社備考 | 保証会社利用必 エポスカード(RP) 保証料:賃料等の50% 月額保証料:賃料等の1% |
| 契約形態 | - | 契約期間 | - |
| 入居・引渡期間 | 即時 | 現況 | - |
| 入居可能条件 | ペット相談 | ||
| 契約備考 | 保証会社:必須:一部法人契約除く・敷金積増1ヶ月 保証会社名:エポスカード(RP)保証料:賃料等の50%(最低2万)、月額保証料:賃料等の1%(更新料無) ※礼金0ヶ月:1年以内解約時賃料等1か月分違約金有 ※退居時、エアコン清掃費・室内清掃費かかります ※ペット飼育可:小型犬1匹又は猫2匹迄 ※保証会社GTN利用時礼金1ヶ月積増 インターネット無料!(ファイバーゲートに限る) 取扱店舗:ミニミニ 合計7.92万円(内訳:入居安心サービス料1.76万円/消毒料1.76万円/清掃費4.4万円) 1K ペット相談 損保【1.66万円2年】 バストイレ別、バルコニー、エアコン、クロゼット、フローリング、TVインターホン、浴室乾燥機、オートロック、室内洗濯置、シューズボックス、温水洗浄便座、エレベーター、洗面所独立、洗面化粧台、駐輪場、宅配ボックス、即入居可、礼金不要、防犯カメラ、ペット相談、ディンプルキー、CS、ネット使用料不要、浄水器、築2年以内、24時間換気システム、防音サッシ、3沿線以上利用可、駅徒歩5分以内、敷地内ごみ置き場、平面駐車場、BS、IT重説対応物件 敷金積み増し【ペット飼育の場合敷金32.6万円(総額)】 | ||
部屋の情報
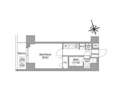
| 間取り | 1K | 専有面積 | 25.33m2 |
|---|---|---|---|
| 所在階 / 向き | 3階 / 北西 | バルコニー面積 | - |
| 水道 / ガス | - | ||
| 設備 | バス・トイレ別、2階以上、オートロック、テレビドアホン、宅配ボックス、浴室乾燥機、インターネット対応、エアコン、エレベーター、温水洗浄便座、バルコニー、フローリング、洗髪洗面化粧台、CSアンテナ、BSアンテナ、インターネット使用料無料、洗濯機:室内 | ||
| 当社物件ID | 160522830 | ||
建物の情報
| 建物名 | コンフォリア・リヴ丁堀 | ||
|---|---|---|---|
| 所在地 | 東京都中央区入船 | ||
| 交通 | 東京メトロ日比谷線 八丁堀駅(東京) 徒歩4分 東京メトロ有楽町線 新富町駅(東京) 徒歩4分 JR京葉線 八丁堀駅(東京) 徒歩5分 | ||
| 階数 | 12階建 | 総戸数 | 53戸 |
| 築年月 | 2026年01月 / 築1年 | エレベーター | あり |
| 駐車場 | 空有 55000円 | バイク置き場 | - |
| 駐輪場 | あり | 管理人/管理会社 | - |
| 周辺環境 | その他 中央区立中央小学校(小学校)まで268m その他 中央区立佃中学校(中学校)まで1369m その他 ブライト保育園東京入船(幼稚園・保育園)まで169m その他 東京都立晴海総合高校(高校・高専)まで2072m その他 中央区役所(役所)まで671m その他 新富郵便局(郵便局)まで249m | ||
| 建物種別 | マンション | 建物構造 | RC(鉄筋コンクリート) |
この部屋の取扱い不動産会社
| 会社名 | (株)ミニミニ城東東京駅前店(SUUMO経由) | ||
|---|---|---|---|
| 所在地 | 東京都中央区八重洲1-8-17 新槇町ビルヂングB1F | 交通 | - |
| 営業時間 | 10:00~18:00 | 定休日 | 水曜日 |
| 免許番号 | 国土交通大臣6271 | 取引態様 | 仲介 |
| 不動産会社管理番号 | 100492352920 | 当社管理番号 | 89 |
| 取扱い物件情報 | 物件詳細へ | ||
※各種情報と現状に差異がある場合は、現状優先となります。問い合わせをすることで、より詳しい条件、情報を確認する事ができます。
提供:(株)ミニミニ城東東京駅前店(SUUMO経由)
この物件が気になったら掲載期限まであと10日
コンフォリア・リヴ丁堀に条件(家賃・エリア)が近い物件一覧
| 写真 | 家賃 管理費等 | 敷金 礼金 | 間取り 専有面積 | 築年数 | 最寄り駅 所在地 | キープ | 詳細 |
|---|---|---|---|---|---|---|---|
マンション EST FELICITA 押上(1SLDK/1階) | |||||||
![]() | 20万円 8,000円 | なし なし | 1SLDK 46.43m2 | 築1年 | 東京地下鉄半蔵門線 押上駅 徒歩5分 東武伊勢崎・大師線 押上駅 徒歩12分 東京都墨田区押上3丁目 | 詳細を見る | |
マンション アーバネックス東京八丁堀(1LDK/2階) | |||||||
![]() | 16.3万円 1.5万円 | 16.3万円 なし | 1LDK 25.02m2 | 築4年 | 東京地下鉄日比谷線 八丁堀駅(東京) 徒歩4分 京葉線 八丁堀駅(東京) 徒歩4分 東京地下鉄日比谷線 築地駅 徒歩8分 東京都中央区入船2丁目 | 詳細を見る | |
マンション ラクラス日本橋久松町(1LDK/9階) | |||||||
![]() | 22.2万円 1.3万円 | 22.2万円 22.2万円 | 1LDK 41.83m2 | 築21年 | 都営浅草線 東日本橋駅 徒歩4分 都営新宿線 馬喰横山駅 徒歩4分 JR総武線快速 馬喰町駅 徒歩6分 東京都中央区日本橋久松町 | 詳細を見る | |
マンション キャッスルマンション両国B号館(2LDK/7階) | |||||||
![]() | 21.7万円 2万円 | 21.7万円 なし | 2LDK 50.22m2 | 築41年 | JR総武線 両国駅 徒歩5分 都営大江戸線 森下駅(東京) 徒歩9分 東京都墨田区両国 | 詳細を見る | |
アパート ピエ・デル・モンテ(2DK/1階) | |||||||
![]() | 5.3万円 3,900円 | なし なし | 2DK 46.92m2 | 築22年 | 近江鉄道八日市線 新八日市駅 徒歩3分 近江鉄道本線 八日市駅 徒歩7分 近江鉄道八日市線 太郎坊宮前駅 徒歩12分 滋賀県東近江市八日市清水 | 詳細を見る | |
マンション ルフォンプログレ清澄白河プレミア(1K/11階) | |||||||
![]() | 15.5万円 1万円 | 15.5万円 15.5万円 | 1K 25.1m2 | 築7年 | 東京メトロ半蔵門線 清澄白河駅 徒歩8分 都営新宿線 菊川駅(東京) 徒歩11分 都営大江戸線 森下駅(東京) 徒歩12分 東京都江東区白河 | 詳細を見る | |
マンション ジェノヴィア上野2スカイガーデン(1K/11階) | |||||||
![]() | 16.9万円 1.1万円 | なし 16.9万円 | 1K 30.36m2 | 築7年 | 山手線 上野駅 徒歩5分 東京地下鉄日比谷線 入谷駅(東京) 徒歩7分 東京地下鉄銀座線 稲荷町駅(東京) 徒歩8分 東京都台東区北上野1丁目 | 詳細を見る | |
マンション CASSIA押上(1K/1階) | |||||||
![]() | 10.4万円 5,000円 | 10.4万円 10.4万円 | 1K 21.6m2 | 築19年 | 東京地下鉄半蔵門線 押上駅 徒歩5分 東京都浅草線 押上駅 徒歩5分 東京都墨田区押上1丁目 | 詳細を見る | |









