賃貸マンション
コンフォリア・リヴ丁堀の賃貸物件情報(1LDK/2階)
| 家賃 | 管理費等 | 敷金 | 礼金 | 間取り | 専有面積 |
|---|---|---|---|---|---|
| 25.9万円 | 1.5万円 | 25.9万円 | なし | 1LDK | 41.1m2 |
入居決定でお祝い金最大100,000円
- 保証金
- -
- 償却・敷引
- -
- 築年数
- 新築
- 所在階
- 2階
- 向き
- 北西
Point
初期費用分割払い可能☆最大24ヶ月払い☆カード決済も対応しております!!遠方の方や忙しい方向けオンライン内見実施中☆
提供:Ptif(株)(SUUMO経由)

詳細情報 コンフォリア・リヴ丁堀
物件紹介
コンフォリア・リヴ丁堀はJR京葉線八丁堀駅から徒歩4分にあり、駅近で通勤通学に便利なマンションです。
このお部屋は2階以上に位置しているので、通行人や周囲の住人からの視線が気になりにくく、防犯面でも安心。建物のエントランスはオートロックがついており、インターホンにはTVモニタもついているため、相手の顔を確認してから来客対応することができます。
フローリングのお部屋なのでお掃除もラクラク。室内には人気のウォークインクローゼットがありますので、たくさんの荷物も効率的に収納ができます。キッチンはシステムキッチン仕様になっていますので、お料理好きの方にもぴったり。バス・トイレは別なので、のんびりお風呂タイムも楽しめるでしょう。また、雨の日でも浴室乾燥機を使えば、お洗濯も問題ありません。
通信設備面では、インターネットが無料で使えるので、月々の出費を抑えられるのも魅力です。また、BSアンテナ・CSアンテナがありCATVにも対応しているので、おうち時間も充実するでしょう(別途工事、BS・CS・CATVの契約料等が必要な場合あり)。
建物にはエレベーターがついているので、重い荷物があっても安心。共用部には宅配ボックスが設定されているので、不在の時にも荷物を受け取ることができます。また、ペット飼育の相談ができますので、あなたの大切な家族の一員も快適に暮らせるか、ぜひ確認してみてください。
このお部屋は2階以上に位置しているので、通行人や周囲の住人からの視線が気になりにくく、防犯面でも安心。建物のエントランスはオートロックがついており、インターホンにはTVモニタもついているため、相手の顔を確認してから来客対応することができます。
フローリングのお部屋なのでお掃除もラクラク。室内には人気のウォークインクローゼットがありますので、たくさんの荷物も効率的に収納ができます。キッチンはシステムキッチン仕様になっていますので、お料理好きの方にもぴったり。バス・トイレは別なので、のんびりお風呂タイムも楽しめるでしょう。また、雨の日でも浴室乾燥機を使えば、お洗濯も問題ありません。
通信設備面では、インターネットが無料で使えるので、月々の出費を抑えられるのも魅力です。また、BSアンテナ・CSアンテナがありCATVにも対応しているので、おうち時間も充実するでしょう(別途工事、BS・CS・CATVの契約料等が必要な場合あり)。
建物にはエレベーターがついているので、重い荷物があっても安心。共用部には宅配ボックスが設定されているので、不在の時にも荷物を受け取ることができます。また、ペット飼育の相談ができますので、あなたの大切な家族の一員も快適に暮らせるか、ぜひ確認してみてください。
お金・契約の情報
※「-」と表示されているものは、実際は料金が発生するものもございます。詳細はお問い合わせください。
| 家賃 | 25.9万円 | 管理費・共益費 | 1.5万円 |
|---|---|---|---|
| 敷金 | 25.9万円 | 礼金 | なし |
| 入居決定でお祝い金最大100,000円 | |||
| 保証金 | - | 償却・敷引 | - |
| 住宅保険料 | - | 更新料 | - |
| 保証会社利用 | 必須 | 保証会社名 | - |
| 保証会社費用 | - | 保証会社備考 | 保証会社利用必 初回保証委託料:月額賃料等の50%、月次保証料:賃料等の1% 詳細はお問い合わせください。 |
| 契約形態 | - | 契約期間 | - |
| 入居・引渡期間 | - | 現況 | - |
| 入居可能条件 | ペット相談 | ||
| 契約備考 | 未入居/通勤管理 更新料 新賃料1.00ヶ月分 室内清掃費用 55990円 1LDK 二人入居可/ペット相談 普通借家2年 損保【1.66万円2年】 バストイレ別、バルコニー、エアコン、ガスコンロ対応、クロゼット、TVインターホン、浴室乾燥機、オートロック、室内洗濯置、陽当り良好、シューズボックス、システムキッチン、温水洗浄便座、エレベーター、洗面所独立、駐輪場、宅配ボックス、CATV、礼金不要、閑静な住宅地、BS・CS、3口以上コンロ、防犯カメラ、ペット相談、ウォークインクロゼット、保証人不要、二人入居相談、全居室フローリング、ディンプルキー、ネット専用回線、ネット使用料不要、眺望良好、ダブルロックキー、築2年以内、24時間換気システム、築3年以内、耐火構造、耐震構造、防犯ガラス、高気密住宅、2駅利用可、3駅以上利用可、駅前、防犯強化地域、駅徒歩5分以内、駅徒歩10分以内、耐風構造、高層階、24時間ゴミ出し可、敷地内ごみ置き場、築5年以内、日勤管理、LDK12畳以上、備付食器棚、都市ガス、通風良好 敷金積み増し【ペット飼育の場合敷金2ヶ月(総額)】 入居日:'26年3月中旬 | ||
部屋の情報
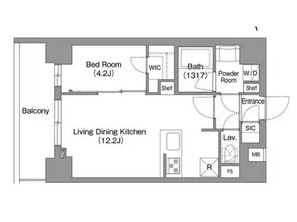
| 間取り | 1LDK | 専有面積 | 41.1m2 |
|---|---|---|---|
| 所在階 / 向き | 2階 / 北西 | バルコニー面積 | - |
| 水道 / ガス | - | ||
| 設備 | バス・トイレ別、2階以上、オートロック、テレビドアホン、宅配ボックス、浴室乾燥機、ウォークインクローゼット、インターネット対応、システムキッチン、エアコン、エレベーター、温水洗浄便座、バルコニー、フローリング、洗髪洗面化粧台、2口コンロ、コンロ:ガス、CATV、CSアンテナ、BSアンテナ、インターネット使用料無料、洗濯機:室内 | ||
| 当社物件ID | 160290134 | ||
建物の情報
| 建物名 | コンフォリア・リヴ丁堀 | ||
|---|---|---|---|
| 所在地 | 東京都中央区入船 | ||
| 交通 | JR京葉線 八丁堀駅(東京) 徒歩4分 東京メトロ有楽町線 新富町駅(東京) 徒歩6分 東京メトロ日比谷線 築地駅 徒歩9分 | ||
| 階数 | 12階建 | 総戸数 | - |
| 築年月 | 2026年02月 / 新築 | エレベーター | あり |
| 駐車場 | なし | バイク置き場 | - |
| 駐輪場 | あり | 管理人/管理会社 | - |
| 周辺環境 | その他 ファミリーマート 中央明石町店(コンビニ)まで540m その他 セブンイレブン 中央区八丁堀4丁目店(コンビニ)まで520m | ||
| 建物種別 | マンション | 建物構造 | RC(鉄筋コンクリート) |
この部屋の取扱い不動産会社
| 会社名 | PRA(株)青山店(SUUMO経由) | ||
|---|---|---|---|
| 所在地 | 東京都港区北青山1-3-3 三橋ビル8階 | 交通 | - |
| 営業時間 | 9:00~20:00 | 定休日 | 無し |
| 免許番号 | 東京都知事109775 | 取引態様 | 仲介 |
| 不動産会社管理番号 | 100485041318 | 当社管理番号 | 89 |
| 所属団体 | (公社)東京都宅地建物取引業協会会員 | ||
| 公正取引協議会 | (公社)首都圏不動産公正取引協議会加盟 | ||
| 取扱い物件情報 | 物件詳細へ | ||
※各種情報と現状に差異がある場合は、現状優先となります。問い合わせをすることで、より詳しい条件、情報を確認する事ができます。
提供:PRA(株)青山店(SUUMO経由)
この物件が気になったら掲載期限まであと10日
コンフォリア・リヴ丁堀に条件(家賃・エリア)が近い物件一覧
| 写真 | 家賃 管理費等 | 敷金 礼金 | 間取り 専有面積 | 築年数 | 最寄り駅 所在地 | キープ | 詳細 |
|---|---|---|---|---|---|---|---|
マンション コンフォリア東上野(1LDK/8階) | |||||||
![]() | 21万円 1万円 | 21万円 なし | 1LDK 41.86m2 | 築2年 | 東京地下鉄銀座線 稲荷町駅(東京) 徒歩3分 山手線 上野駅 徒歩9分 東京都台東区東上野6丁目 | 詳細を見る | |
マンション GENOVIA本所吾妻橋SKYGARDEN(1LDK/4階) | |||||||
![]() | 17.3万円 2万円 | なし なし | 1LDK 41.27m2 | 築5年 | 東京都浅草線 本所吾妻橋駅 徒歩10分 東京都大江戸線 両国駅 徒歩12分 東京地下鉄銀座線 浅草駅(東武・都営・メトロ) 徒歩15分 東京都墨田区石原3丁目 | 詳細を見る | |
マンション パークホームズ木場クリアテラス(2LDK/10階) | |||||||
![]() | 23.8万円 1.5万円 | 23.8万円 23.8万円 | 2LDK 56.53m2 | 築12年 | 東京メトロ東西線 木場駅 徒歩3分 東京メトロ東西線 東陽町駅 徒歩14分 都営大江戸線 門前仲町駅 徒歩16分 東京都江東区木場 | 詳細を見る | |
マンション パークアクシス神保町(1DK/5階) | |||||||
![]() | 18万円 1万円 | 18万円 なし | 1DK 27.31m2 | 築2年 | 東京都新宿線 神保町駅 徒歩4分 総武・中央緩行線 水道橋駅 徒歩6分 東京地下鉄半蔵門線 九段下駅 徒歩9分 東京都千代田区神田神保町1丁目 | 詳細を見る | |
マンション ザ・ライオンズフォーシア外神田(1DK/5階) | |||||||
![]() | 19.1万円 1.5万円 | 19.1万円 なし | 1DK 33.49m2 | 築1年 | 東京地下鉄銀座線 末広町駅(東京) 徒歩3分 総武・中央緩行線 秋葉原駅 徒歩9分 中央本線 御茶ノ水駅 徒歩10分 東京都千代田区外神田3丁目 | 詳細を見る | |
マンション パティーナ本所吾妻橋(1LDK/4階) | |||||||
![]() | 18.1万円 1.5万円 | なし なし | 1LDK 40.47m2 | 築11年 | 東京都浅草線 本所吾妻橋駅 徒歩6分 京成電鉄押上線 押上駅 徒歩10分 東京都墨田区東駒形4丁目 | 詳細を見る | |
マンション アビタシオン・創(1LDK/4階) | |||||||
![]() | 19.4万円 1.1万円 | なし 19.4万円 | 1LDK 45.04m2 | 築11年 | 都営大江戸線 森下駅(東京) 徒歩7分 JR総武線 両国駅 徒歩12分 都営大江戸線 両国駅 徒歩16分 東京都江東区新大橋 | 詳細を見る | |
マンション クレイシア秋葉原ラグゼスウィート(1DK/9階) | |||||||
![]() | 15.9万円 1.5万円 | 15.9万円 15.9万円 | 1DK 30.48m2 | 築7年 | 総武本線 馬喰町駅 徒歩5分 東京都新宿線 岩本町駅 徒歩6分 山手線 秋葉原駅 徒歩8分 東京都千代田区東神田2丁目 | 詳細を見る | |









