賃貸マンション
BPRレジデンス門前仲町の賃貸物件情報(1K/3階)
| 家賃 | 管理費等 | 敷金 | 礼金 | 間取り | 専有面積 |
|---|---|---|---|---|---|
| 11.8万円 | 1万円 | 11.8万円 | 11.8万円 | 1K | 25.46m2 |
入居決定でお祝い金最大100,000円
- 保証金
- -
- 償却・敷引
- -
- 築年数
- 築7年
- 所在階
- 3階
- 向き
- 北西
Point
室内見学承ります・お客様のご都合に合わせてオンラインまたはお近くの店舗でご提案可・初期費用分割払い可・クレジットカード利用可・引越業者割引・初期費用のお見積や入居日のご相談もお気軽にお問合せください
提供:ピアホーム広尾駅前店(株)PH.C(SUUMO経由)

詳細情報 BPRレジデンス門前仲町
物件紹介
BPRレジデンス門前仲町は都営大江戸線門前仲町駅から徒歩9分にあり、駅近で通勤通学に便利なマンションです。
このお部屋は2階以上に位置しているので、通行人や周囲の住人からの視線が気になりにくく、防犯面でも安心。建物のエントランスはオートロックがついており、インターホンにはTVモニタもついているため、相手の顔を確認してから来客対応することができます。
フローリングのお部屋なのでお掃除もラクラク。室内には人気のウォークインクローゼットがありますので、たくさんの荷物も効率的に収納ができます。キッチンはシステムキッチン仕様になっていますので、お料理好きの方にもぴったり。バス・トイレは別なので、のんびりお風呂タイムも楽しめるでしょう。また、雨の日でも浴室乾燥機を使えば、お洗濯も問題ありません。
通信設備面では、インターネットが無料で使えるので、月々の出費を抑えられるのも魅力です。また、BSアンテナ・CSアンテナがありCATVにも対応しているので、おうち時間も充実するでしょう(別途工事、BS・CS・CATVの契約料等が必要な場合あり)。
建物にはエレベーターがついているので、重い荷物があっても安心。共用部には宅配ボックスが設定されているので、不在の時にも荷物を受け取ることができます。また、ペット飼育の相談ができますので、あなたの大切な家族の一員も快適に暮らせるか、ぜひ確認してみてください。
このお部屋は2階以上に位置しているので、通行人や周囲の住人からの視線が気になりにくく、防犯面でも安心。建物のエントランスはオートロックがついており、インターホンにはTVモニタもついているため、相手の顔を確認してから来客対応することができます。
フローリングのお部屋なのでお掃除もラクラク。室内には人気のウォークインクローゼットがありますので、たくさんの荷物も効率的に収納ができます。キッチンはシステムキッチン仕様になっていますので、お料理好きの方にもぴったり。バス・トイレは別なので、のんびりお風呂タイムも楽しめるでしょう。また、雨の日でも浴室乾燥機を使えば、お洗濯も問題ありません。
通信設備面では、インターネットが無料で使えるので、月々の出費を抑えられるのも魅力です。また、BSアンテナ・CSアンテナがありCATVにも対応しているので、おうち時間も充実するでしょう(別途工事、BS・CS・CATVの契約料等が必要な場合あり)。
建物にはエレベーターがついているので、重い荷物があっても安心。共用部には宅配ボックスが設定されているので、不在の時にも荷物を受け取ることができます。また、ペット飼育の相談ができますので、あなたの大切な家族の一員も快適に暮らせるか、ぜひ確認してみてください。
お金・契約の情報
※「-」と表示されているものは、実際は料金が発生するものもございます。詳細はお問い合わせください。
| 家賃 | 11.8万円 | 管理費・共益費 | 1万円 |
|---|---|---|---|
| 敷金 | 11.8万円 | 礼金 | 11.8万円 |
| 入居決定でお祝い金最大100,000円 | |||
| 保証金 | - | 償却・敷引 | - |
| 住宅保険料 | - | 更新料 | - |
| 保証会社利用 | 必須 | 保証会社名 | - |
| 保証会社費用 | - | 保証会社備考 | 保証会社利用必 保証料 賃料等の50%~ |
| 契約形態 | - | 契約期間 | - |
| 入居・引渡期間 | - | 現況 | - |
| 入居可能条件 | ペット相談 | ||
| 契約備考 | 当物件は「住まいのリライフ」で取り扱っております。リライフは首都圏25店舗のネットワークで豊富な物件情報をお客様へご提供します。当物件に類似した未公開物件なども合わせてご提案可能です。お気軽にお問合せください。清掃費:3.85万円/エアコン清掃費:1.1万円 合計3.3万円(内訳:鍵交換代金3.3万円) 1K ペット相談 損保【1.65万円2年】 バストイレ別、バルコニー、エアコン、ガスコンロ対応、クロゼット、フローリング、TVインターホン、浴室乾燥機、オートロック、室内洗濯置、シューズボックス、システムキッチン、追焚機能浴室、温水洗浄便座、脱衣所、エレベーター、洗面所独立、2口コンロ、駐輪場、宅配ボックス、BS・CS、防犯カメラ、ペット相談、グリル付、ウォークインクロゼット、保証人不要、バイク置場、ディンプルキー、ネット使用料不要、ダブルロックキー、24時間換気システム、3駅以上利用可、3沿線以上利用可、24時間ゴミ出し可、敷地内ごみ置き場、都市ガス、室内物干機、玄関収納、LAN、保証会社利用可、初期費用カード決済可 敷金積み増し【ペット飼育の場合敷金1ヶ月(総額)】 入居日:'26年2月下旬 | ||
部屋の情報
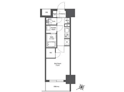
| 間取り | 1K | 専有面積 | 25.46m2 |
|---|---|---|---|
| 所在階 / 向き | 3階 / 北西 | バルコニー面積 | - |
| 水道 / ガス | - | ||
| 設備 | バス・トイレ別、2階以上、オートロック、テレビドアホン、宅配ボックス、浴室乾燥機、ウォークインクローゼット、追い焚き、インターネット対応、システムキッチン、エアコン、エレベーター、温水洗浄便座、バルコニー、フローリング、洗髪洗面化粧台、2口コンロ、コンロ:ガス、CSアンテナ、BSアンテナ、インターネット使用料無料、洗濯機:室内 | ||
| 当社物件ID | 160180161 | ||
建物の情報
| 建物名 | BPRレジデンス門前仲町 | ||
|---|---|---|---|
| 所在地 | 東京都江東区佐賀 | ||
| 交通 | 都営大江戸線 門前仲町駅 徒歩9分 東京メトロ半蔵門線 水天宮前駅 徒歩10分 JR京葉線 越中島駅 徒歩15分 | ||
| 階数 | 12階建 | 総戸数 | 107戸 |
| 築年月 | 2020年01月 / 築7年 | エレベーター | あり |
| 駐車場 | なし | バイク置き場 | あり |
| 駐輪場 | あり | 管理人/管理会社 | - |
| 周辺環境 | その他 スギドラッグ新川一丁目店(ドラッグストア)まで817m その他 牡丹屋クリーニング 深川店(その他)まで422m その他 まいばすけっと日本橋箱崎町店(スーパー)まで685m その他 まいばすけっと新川2丁目店(スーパー)まで705m その他 セブンイレブン 江東猿江1丁目店(コンビニ)まで92m その他 セブンイレブン 江東佐賀1丁目店(コンビニ)まで94m | ||
| 建物種別 | マンション | 建物構造 | RC(鉄筋コンクリート) |
この部屋の取扱い不動産会社
| 会社名 | (株)リライフ門前仲町店(SUUMO経由) | ||
|---|---|---|---|
| 所在地 | 東京都江東区富岡1-7-4 キーポイントビル1階 | 交通 | - |
| 営業時間 | 10:00~20:00 | 定休日 | 毎週水曜日 |
| 免許番号 | 国土交通大臣10792 | 取引態様 | 仲介 |
| 不動産会社管理番号 | 100481820089 | 当社管理番号 | 89 |
| 所属団体 | (公社)東京都宅地建物取引業協会会員 | ||
| 公正取引協議会 | (公社)首都圏不動産公正取引協議会加盟 | ||
| 取扱い物件情報 | 物件詳細へ | ||
※各種情報と現状に差異がある場合は、現状優先となります。問い合わせをすることで、より詳しい条件、情報を確認する事ができます。
提供:(株)リライフ門前仲町店(SUUMO経由)
この物件が気になったら掲載期限まであと11日
BPRレジデンス門前仲町に条件(家賃・エリア)が近い物件一覧
| 写真 | 家賃 管理費等 | 敷金 礼金 | 間取り 専有面積 | 築年数 | 最寄り駅 所在地 | キープ | 詳細 |
|---|---|---|---|---|---|---|---|
マンション アリビオ両国(1K/2階) | |||||||
![]() | 9万円 8,000円 | なし 9万円 | 1K 22.12m2 | 築12年 | 東京都大江戸線 両国駅 徒歩6分 東京地下鉄銀座線 浅草駅(東武・都営・メトロ) 徒歩13分 総武・中央緩行線 両国駅 徒歩15分 東京都墨田区石原1丁目 | 詳細を見る | |
マンション パークアクシス錦糸町ウエスト(ワンルーム/9階) | |||||||
![]() | 11.9万円 2万円 | 11.9万円 なし | ワンルーム 26.19m2 | 築7年 | 東京都新宿線 菊川駅(東京) 徒歩9分 総武・中央緩行線 錦糸町駅 徒歩11分 東京都大江戸線 両国駅 徒歩15分 東京都墨田区緑4丁目 | 詳細を見る | |
マンション プチトリアノン(1K/1階) | |||||||
![]() | 7.6万円 3,000円 | 7.6万円 7.6万円 | 1K 21.55m2 | 築25年 | JR横須賀線 西大井駅 徒歩12分 JR京浜東北線 大森駅(東京) 徒歩16分 都営浅草線 馬込駅 徒歩20分 東京都品川区西大井 | 詳細を見る | |
マンション クレヴィアリグゼ北品川2ステーションコート(1K/10階) | |||||||
![]() | 12.3万円 1.2万円 | 12.3万円 12.3万円 | 1K 23.07m2 | 築4年 | 京急本線 新馬場駅 徒歩3分 京急本線 北品川駅 徒歩10分 りんかい線 天王洲アイル駅 徒歩14分 東京都品川区北品川 | 詳細を見る | |
マンション AIFLAT両国(1K/4階) | |||||||
![]() | 12.8万円 1万円 | なし 12.8万円 | 1K 26.35m2 | 築5年 | 東京都大江戸線 両国駅 徒歩4分 総武・中央緩行線 両国駅 徒歩10分 東京都新宿線 森下駅(東京) 徒歩13分 東京都墨田区亀沢1丁目 | 詳細を見る | |
マンション ブランセ森下(1K/5階) | |||||||
![]() | 11.9万円 1万円 | なし なし | 1K 25.18m2 | 築7年 | 東京都大江戸線 森下駅(東京) 徒歩3分 東京都新宿線 森下駅(東京) 徒歩3分 総武・中央緩行線 両国駅 徒歩17分 東京都墨田区千歳3丁目 | 詳細を見る | |
マンション パークアクシス錦糸公園(1LDK/2階) | |||||||
![]() | 16万円 1.8万円 | 16万円 16万円 | 1LDK 31.08m2 | 築3年 | 東京地下鉄半蔵門線 錦糸町駅 徒歩5分 総武本線 錦糸町駅 徒歩6分 東京都墨田区錦糸4丁目 | 詳細を見る | |
マンション フェニックス日本橋兜町壱番館(1K/4階) | |||||||
![]() | 8.6万円 8,000円 | 8.6万円 8.6万円 | 1K 21.06m2 | 築23年 | 東京地下鉄東西線 茅場町駅 徒歩4分 東京地下鉄銀座線 日本橋駅(東京) 徒歩5分 山手線 東京駅 徒歩10分 東京都中央区日本橋兜町 | 詳細を見る | |








