賃貸マンション
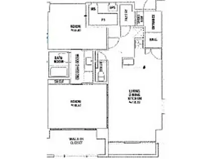
スカイプラザ赤坂の賃貸物件情報(2LDK/3階)
| 家賃 | 管理費等 | 敷金 | 礼金 | 間取り | 専有面積 |
|---|---|---|---|---|---|
| 42万円 | 2.2万円 | 84万円 | 42万円 | 2LDK | 77.76m2 |
入居決定でお祝い金最大100,000円
- 保証金
- -
- 償却・敷引
- -
- 築年数
- 築48年
- 所在階
- 3階
- 向き
- -
Point
★システムキッチン・3口IHコンロ★バス・トイレ別★浴室乾燥機★温水洗浄便座★室内洗濯機置場★フローリング★バルコニー★ウォークインクローゼット★詳細はお気軽にお問い合わせください!★
提供:そらうみリアルエステート(株)賃貸事業本部(SUUMO経由)

詳細情報 スカイプラザ赤坂
物件紹介
スカイプラザ赤坂は東京メトロ銀座線青山一丁目駅から徒歩5分にあり、駅近で通勤通学に便利なマンションです。
このお部屋は2階以上に位置しているので、通行人や周囲の住人からの視線が気になりにくく、防犯面でも安心です。
フローリングのお部屋なのでお掃除もラクラク。室内には人気のウォークインクローゼットがありますので、たくさんの荷物も効率的に収納ができます。キッチンはシステムキッチン仕様になっていますので、お料理好きの方にもぴったり。バス・トイレは別なので、のんびりお風呂タイムも楽しめるでしょう。また、雨の日でも浴室乾燥機を使えば、お洗濯も問題ありません。
建物にはエレベーターがついているので、重い荷物があっても安心。共用部には宅配ボックスが設定されているので、不在の時にも荷物を受け取ることができます。また、ペット飼育の相談ができますので、あなたの大切な家族の一員も快適に暮らせるか、ぜひ確認してみてください。
このお部屋は2階以上に位置しているので、通行人や周囲の住人からの視線が気になりにくく、防犯面でも安心です。
フローリングのお部屋なのでお掃除もラクラク。室内には人気のウォークインクローゼットがありますので、たくさんの荷物も効率的に収納ができます。キッチンはシステムキッチン仕様になっていますので、お料理好きの方にもぴったり。バス・トイレは別なので、のんびりお風呂タイムも楽しめるでしょう。また、雨の日でも浴室乾燥機を使えば、お洗濯も問題ありません。
建物にはエレベーターがついているので、重い荷物があっても安心。共用部には宅配ボックスが設定されているので、不在の時にも荷物を受け取ることができます。また、ペット飼育の相談ができますので、あなたの大切な家族の一員も快適に暮らせるか、ぜひ確認してみてください。
お金・契約の情報
※「-」と表示されているものは、実際は料金が発生するものもございます。詳細はお問い合わせください。
| 家賃 | 42万円 | 管理費・共益費 | 2.2万円 |
|---|---|---|---|
| 敷金 | 84万円 | 礼金 | 42万円 |
| 入居決定でお祝い金最大100,000円 | |||
| 保証金 | - | 償却・敷引 | - |
| 住宅保険料 | - | 更新料 | - |
| 保証会社利用 | 必須 | 保証会社名 | - |
| 保証会社費用 | - | 保証会社備考 | 保証会社利用必 初回保証料:0.5ヶ月から 詳細はお問い合わせ下さい。 |
| 契約形態 | 定期借家 | 契約期間 | 2年 |
| 入居・引渡期間 | 即時 | 現況 | - |
| 入居可能条件 | 事務所可、ペット相談 | ||
| 契約備考 | 通勤管理/ペット:小型犬のみ、敷金1ヶ月積増 SOHO相談可※詳細要確認 室内禁煙 2LDK 単身者可/ペット相談/事務所利用相談 定期借家2年 損保【要】 バストイレ別、バルコニー、クロゼット、フローリング、浴室乾燥機、室内洗濯置、シューズボックス、システムキッチン、温水洗浄便座、エレベーター、洗面所独立、洗面化粧台、宅配ボックス、3口以上コンロ、ペット相談、IHクッキングヒーター、ウォークインクロゼット、保証人不要、全居室フローリング、2沿線利用可、食器洗乾燥機、事務所相談、L字型キッチン、2駅利用可、3駅以上利用可、3沿線以上利用可、駅徒歩5分以内、駅徒歩10分以内、保証会社利用可 敷金積み増し【ペット飼育の場合敷金3ヶ月(総額)】 | ||
部屋の情報
| 間取り | 2LDK | 専有面積 | 77.76m2 |
|---|---|---|---|
| 所在階 / 向き | 3階 / - | バルコニー面積 | - |
| 水道 / ガス | - | ||
| 設備 | バス・トイレ別、2階以上、宅配ボックス、浴室乾燥機、ウォークインクローゼット、システムキッチン、エレベーター、温水洗浄便座、バルコニー、フローリング、洗髪洗面化粧台、2口コンロ、コンロ:IH、洗濯機:室内 | ||
| 当社物件ID | 159863530 | ||
建物の情報
| 建物名 | スカイプラザ赤坂 | ||
|---|---|---|---|
| 所在地 | 東京都港区赤坂 | ||
| 交通 | 東京メトロ銀座線 青山一丁目駅 徒歩5分 東京メトロ千代田線 乃木坂駅 徒歩7分 東京メトロ日比谷線 六本木駅 徒歩10分 | ||
| 階数 | 地下1地上5階建 | 総戸数 | - |
| 築年月 | 1978年11月 / 築48年 | エレベーター | あり |
| 駐車場 | なし | バイク置き場 | - |
| 駐輪場 | - | 管理人/管理会社 | - |
| 周辺環境 | その他 セブンイレブン 赤坂8丁目店(コンビニ)まで220m その他 まいばすけっと 青山一丁目店(スーパー)まで425m その他 スギ薬局 赤坂店(ドラッグストア)まで824m | ||
| 建物種別 | マンション | 建物構造 | RC(鉄筋コンクリート) |
この部屋の取扱い不動産会社
| 会社名 | そらうみリアルエステート(株)本店(SUUMO経由) | ||
|---|---|---|---|
| 所在地 | 東京都港区麻布十番2-20-14 麻布十番ハウス104 | 交通 | - |
| 営業時間 | 午前9時30分~午後9時30分 | 定休日 | 無休 |
| 免許番号 | 東京都知事94395 | 取引態様 | 仲介 |
| 不動産会社管理番号 | 100473012154 | 当社管理番号 | 89 |
| 所属団体 | (公社)東京都宅地建物取引業協会会員 | ||
| 公正取引協議会 | (公社)首都圏不動産公正取引協議会加盟 | ||
| 取扱い物件情報 | 物件詳細へ | ||
※各種情報と現状に差異がある場合は、現状優先となります。問い合わせをすることで、より詳しい条件、情報を確認する事ができます。
提供:そらうみリアルエステート(株)本店(SUUMO経由)
この物件が気になったら掲載期限まであと11日
スカイプラザ赤坂に条件(家賃・エリア)が近い物件一覧
| 写真 | 家賃 管理費等 | 敷金 礼金 | 間取り 専有面積 | 築年数 | 最寄り駅 所在地 | キープ | 詳細 |
|---|---|---|---|---|---|---|---|
マンション クレストコート東陽町(3LDK/5階) | |||||||
![]() | 31.6万円 2万円 | 31.6万円 なし | 3LDK 58.37m2 | 新築 | 東京メトロ東西線 東陽町駅 徒歩5分 東京メトロ東西線 木場駅 徒歩9分 東京メトロ東西線 門前仲町駅 徒歩21分 東京都江東区東陽 | 詳細を見る | |
一戸建て 東京地下鉄銀座線 表参道駅 徒歩7分 築40年(3LDK) | |||||||
![]() | 38万円 なし | 76万円 38万円 | 3LDK 89.92m2 | 築40年 | 東京地下鉄銀座線 表参道駅 徒歩7分 東京都渋谷区神宮前3丁目 | 詳細を見る | |
マンション PATH牛込神楽坂(2LDK/2階) | |||||||
![]() | 29万円 1万円 | 29万円 なし | 2LDK 60.55m2 | 築37年 | 都営大江戸線 牛込神楽坂駅 徒歩4分 東京メトロ東西線 神楽坂駅 徒歩9分 東京メトロ南北線 市ケ谷駅 徒歩10分 東京都新宿区北町 | 詳細を見る | |
マンション レジデンス渋谷富ヶ谷(1SLDK/2階) | |||||||
![]() | 28.5万円 1.5万円 | なし なし | 1SLDK 40.74m2 | 築20年 | 東京地下鉄千代田線 代々木公園駅 徒歩11分 小田急電鉄小田原線 代々木八幡駅 徒歩11分 東京都渋谷区富ヶ谷2丁目 | 詳細を見る | |
マンション イプセ白金台(1SLDK/3階) | |||||||
![]() | 28.6万円 2万円 | 28.6万円 28.6万円 | 1SLDK 46.2m2 | 築1年 | 東京地下鉄南北線 白金台駅 徒歩8分 東京都港区白金台2丁目 | 詳細を見る | |
マンション 小田急コアロード六本木フロンテ(1LDK/2階) | |||||||
![]() | 38万円 1万円 | なし なし | 1LDK 53.14m2 | 築23年 | 都営大江戸線 麻布十番駅 徒歩7分 東京メトロ日比谷線 六本木駅 徒歩8分 東京メトロ南北線 六本木一丁目駅 徒歩9分 東京都港区六本木 | 詳細を見る | |
マンション パークキューブ日本橋水天宮(2LDK/4階) | |||||||
![]() | 30.7万円 1.5万円 | 30.7万円 30.7万円 | 2LDK 58m2 | 築21年 | 東京メトロ半蔵門線 水天宮前駅 徒歩1分 都営浅草線 人形町駅 徒歩8分 東京メトロ日比谷線 茅場町駅 徒歩9分 東京都中央区日本橋箱崎町 | 詳細を見る | |
マンション ルネサンス六本木プレミアムコート(1LDK/3階) | |||||||
![]() | 32万円 1.8万円 | なし なし | 1LDK 40.58m2 | 築5年 | 東京メトロ日比谷線 六本木駅 徒歩4分 東京メトロ千代田線 乃木坂駅 徒歩10分 東京メトロ日比谷線 広尾駅 徒歩17分 東京都港区西麻布 | 詳細を見る | |



/105x80-f1-q70-wp1)





