賃貸アパート
近鉄京都線 富野荘駅 徒歩4分 3階建 築19年の賃貸物件情報(2LDK/3階)
| 家賃 | 管理費等 | 敷金 | 礼金 | 間取り | 専有面積 |
|---|---|---|---|---|---|
| 8.3万円 | 7,000円 | なし | 15万円 | 2LDK | 53.45m2 |
入居決定でお祝い金最大100,000円
Point
富野荘駅近です リラックスできる浴室発見 近鉄富野荘駅まで徒歩4分の2LDKマンションです。
提供:株式会社 京都ライフ 京田辺店(賃貸スモッカ経由)

詳細情報 近鉄京都線 富野荘駅 徒歩4分 3階建 築19年
物件紹介
近鉄京都線富野荘駅から徒歩4分にあり、駅近で通勤通学に便利なアパートです。
このお部屋は2階以上に位置しているので通行人や周囲の住人からの視線が気になりにくく、建物のエントランスはオートロックがついているので防犯性が高くなっています。
人気の南向き・フローリングのお部屋。角部屋でもあるため、周囲の居住者の生活音も気になりにくい場所です。室内にはウォークインクローゼットがありますので、たくさんの荷物も効率的に収納ができます。バス・トイレ別の仕様で、のんびりお風呂タイムも楽しめます。また、浴室乾燥機を使えば、雨の日でもお洗濯は問題ありません。
このお部屋は2階以上に位置しているので通行人や周囲の住人からの視線が気になりにくく、建物のエントランスはオートロックがついているので防犯性が高くなっています。
人気の南向き・フローリングのお部屋。角部屋でもあるため、周囲の居住者の生活音も気になりにくい場所です。室内にはウォークインクローゼットがありますので、たくさんの荷物も効率的に収納ができます。バス・トイレ別の仕様で、のんびりお風呂タイムも楽しめます。また、浴室乾燥機を使えば、雨の日でもお洗濯は問題ありません。
お金・契約の情報
※「-」と表示されているものは、実際は料金が発生するものもございます。詳細はお問い合わせください。
| 家賃 | 8.3万円 | 管理費・共益費 | 7,000円 |
|---|---|---|---|
| 敷金 | なし | 礼金 | 15万円 |
| 入居決定でお祝い金最大100,000円 | |||
| 保証金 | - | 償却・敷引 | - |
| 住宅保険料 | 住宅保険料あり | 更新料 | - |
| 契約形態 | - | 契約期間 | 2年 |
| 入居・引渡期間 | 2025年12月下旬 | 現況 | 賃貸中 |
| 契約備考 | 嬉しい3点セパレートにウォークインクローゼット、浴室乾燥機、追い焚き機能付浴室、温水洗浄便座など充実の設備。オートロックでセキュリティも安心です。コンビニ、スーパーなど近くにあって便利ですよ。 害虫駆除費:22,000円 ファイテック消火剤:4,950円 更新料:1ヶ月 保証会社:利用必須 初回:3.5万円、月額:月額賃料等の1% その他設備/条件:最上階の物件、独立洗面台 | ||
部屋の情報
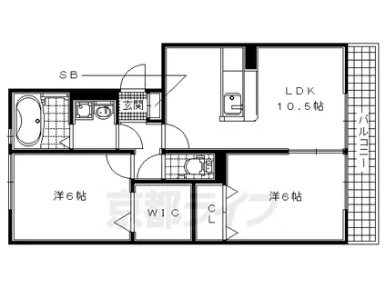
| 間取り | 2LDK | 専有面積 | 53.45m2 |
|---|---|---|---|
| 間取り詳細 | 洋室(6帖)、洋室(6帖)、LDK(10.5帖) | ||
| 所在階 / 向き | 3階 / 南 | バルコニー面積 | - |
| 水道 / ガス | ガス【都市】 | ||
| 設備 | バス・トイレ別、2階以上、オートロック、浴室乾燥機、ウォークインクローゼット、追い焚き、カウンターキッチン、温水洗浄便座、南向き、角部屋、バルコニー、フローリング、洗濯機:室内 | ||
| 当社物件ID | 159740932 | ||
建物の情報
| 建物名 | 近鉄京都線 富野荘駅 徒歩4分 3階建 築19年 | ||
|---|---|---|---|
| 所在地 | 京都府城陽市富野 | ||
| 交通 | 近鉄京都線 富野荘駅 徒歩4分 奈良線 長池駅 徒歩22分 | ||
| 階数 | 3階建 | 総戸数 | - |
| 築年月 | 2007年08月 / 築19年 | エレベーター | - |
| 駐車場 | - | バイク置き場 | - |
| 駐輪場 | あり | 管理人/管理会社 | - |
| 建物種別 | アパート | 建物構造 | 軽量鉄骨造 |
この部屋の取扱い不動産会社
| 会社名 | 株式会社 京都ライフ 京田辺店(賃貸スモッカ経由) | ||
|---|---|---|---|
| 所在地 | 京都府京田辺市田辺中央1丁目7-11 | 交通 | - |
| 営業時間 | - | 定休日 | - |
| 免許番号 | 京都府知事(11)第6353号 | 取引態様 | 仲介 |
| 不動産会社管理番号 | kyotolife_26556-301-24 | 当社管理番号 | 463 |
| 所属団体 | 京都府宅地建物取引業協会\n公益社団法人近畿地区不動産公正取引協議会 | ||
| 公正取引協議会 | 全国宅地建物取引業保証協会 | ||
| 取扱い物件情報 | 物件詳細へ | ||
※各種情報と現状に差異がある場合は、現状優先となります。問い合わせをすることで、より詳しい条件、情報を確認する事ができます。
提供:株式会社 京都ライフ 京田辺店(賃貸スモッカ経由)
この物件が気になったら掲載期限まであと6日
近鉄京都線 富野荘駅 徒歩4分 3階建 築19年に条件(家賃・エリア)が近い物件一覧
| 写真 | 家賃 管理費等 | 敷金 礼金 | 間取り 専有面積 | 築年数 | 最寄り駅 所在地 | キープ | 詳細 |
|---|---|---|---|---|---|---|---|
アパート 近鉄京都線 新田辺駅 徒歩5分 築18年(1K/1階) | |||||||
![]() | 6.1万円 7,000円 | なし 6.1万円 | 1K 21.81m2 | 築18年 | 近鉄京都線 新田辺駅 徒歩5分 片町線 京田辺駅 徒歩7分 京都府京田辺市田辺中央2丁目 | 詳細を見る | |
マンション 近鉄京都線 向島駅 徒歩14分 築35年(2DK/6階) | |||||||
![]() | 6.5万円 5,000円 | 6.5万円 なし | 2DK 44.55m2 | 築35年 | 近鉄京都線 向島駅 徒歩14分 近鉄京都線 小倉駅(京都) 徒歩15分 京都府宇治市槇島町 | 詳細を見る | |
マンション 広野町西裏マンション(1DK/2階) | |||||||
![]() | 8.2万円 6,000円 | なし 16.4万円 | 1DK 32.49m2 | 新築 | 奈良線 新田駅(京都) 徒歩2分 京都府宇治市広野町西裏 | 詳細を見る | |
マンション 近鉄京都線 久津川駅 徒歩4分 築4年(1K/2階) | |||||||
![]() | 6万円 5,000円 | なし 6万円 | 1K 24.84m2 | 築4年 | 近鉄京都線 久津川駅 徒歩4分 奈良線 新田駅(京都) 徒歩15分 京都府城陽市平川 | 詳細を見る | |
アパート 近鉄京都線 久津川駅 徒歩2分 築1年(1K/1階) | |||||||
![]() | 6.7万円 5,000円 | なし 6.7万円 | 1K 26.63m2 | 築1年 | 近鉄京都線 久津川駅 徒歩2分 近鉄京都線 寺田駅(京都) 徒歩18分 京都府城陽市平川 | 詳細を見る | |
マンション 京阪電気鉄道京阪線 石清水八幡宮駅 徒歩29分 築32年(2LDK/2階) | |||||||
![]() | 5.9万円 4,400円 | なし なし | 2LDK 60.72m2 | 築32年 | 京阪電気鉄道京阪線 石清水八幡宮駅 徒歩29分 京阪電気鉄道京阪線 樟葉駅 徒歩35分 京都府八幡市八幡広門 | 詳細を見る | |
マンション 近鉄京都線 大久保駅(京都) 徒歩3分 新築(1DK/3階) | |||||||
![]() | 8.3万円 6,000円 | なし 16.6万円 | 1DK 32.49m2 | 新築 | 近鉄京都線 大久保駅(京都) 徒歩3分 奈良線 新田駅(京都) 徒歩5分 京都府宇治市広野町西裏 | 詳細を見る | |
マンション 奈良線 城陽駅 徒歩4分 新築(2LDK/2階) | |||||||
![]() | 10.2万円 8,000円 | なし 15万円 | 2LDK 53.59m2 | 新築 | 奈良線 城陽駅 徒歩4分 近鉄京都線 寺田駅(京都) 徒歩12分 京都府城陽市寺田 | 詳細を見る | |









