賃貸マンション
グランドハイツ北長野の賃貸物件情報(3LDK/9階)
| 家賃 | 管理費等 | 敷金 | 礼金 | 間取り | 専有面積 |
|---|---|---|---|---|---|
| 10.5万円 | なし | 21万円 | 21万円 | 3LDK | 70.42m2 |
入居決定でお祝い金最大100,000円
Point
JR線北長野駅まで徒歩5分の分譲マンション!
提供:大成産業(株)メディアクス大成(SUUMO経由)

詳細情報 グランドハイツ北長野
物件紹介
グランドハイツ北長野はしなの鉄道北しなの線北長野駅から徒歩7分にあり、駅近で通勤通学に便利なマンションです。
このお部屋は2階以上に位置しているので通行人や周囲の住人からの視線が気になりにくく、建物のエントランスはオートロックがついているので防犯性が高くなっています。
人気の南向きのお部屋。また、フローリングなのでお掃除もラクラク。キッチンはシステムキッチン仕様になっていますので、お料理好きの方にもぴったり。また、バス・トイレは別で、のんびりお風呂タイムも楽しめるでしょう。
通信設備面ではCATVに対応しているので、おうち時間も充実するでしょう(別途工事、契約料が必要な場合あり)。
建物にはエレベーターがついているので、重い荷物があっても安心。共用部には宅配ボックスが設定されているので、不在の時にも荷物を受け取ることができます。
このお部屋は2階以上に位置しているので通行人や周囲の住人からの視線が気になりにくく、建物のエントランスはオートロックがついているので防犯性が高くなっています。
人気の南向きのお部屋。また、フローリングなのでお掃除もラクラク。キッチンはシステムキッチン仕様になっていますので、お料理好きの方にもぴったり。また、バス・トイレは別で、のんびりお風呂タイムも楽しめるでしょう。
通信設備面ではCATVに対応しているので、おうち時間も充実するでしょう(別途工事、契約料が必要な場合あり)。
建物にはエレベーターがついているので、重い荷物があっても安心。共用部には宅配ボックスが設定されているので、不在の時にも荷物を受け取ることができます。
お金・契約の情報
※「-」と表示されているものは、実際は料金が発生するものもございます。詳細はお問い合わせください。
| 家賃 | 10.5万円 | 管理費・共益費 | なし |
|---|---|---|---|
| 敷金 | 21万円 | 礼金 | 21万円 |
| 入居決定でお祝い金最大100,000円 | |||
| 保証金 | - | 償却・敷引 | - |
| 住宅保険料 | 1万円(2年) | 更新料 | - |
| 保証会社利用 | 必須 | 保証会社名 | ジェイリース株式会社 |
| 保証会社費用 | - | 保証会社備考 | 初回保証料88,000円 |
| 契約形態 | - | 契約期間 | 2年 |
| 入居・引渡期間 | 相談 | 現況 | - |
部屋の情報
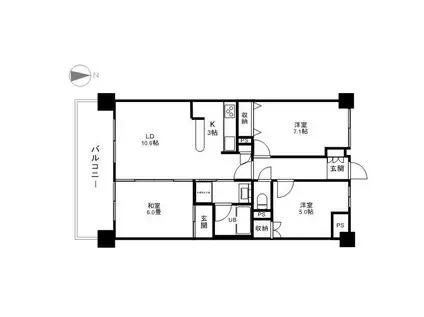
| 間取り | 3LDK | 専有面積 | 70.42m2 |
|---|---|---|---|
| 所在階 / 向き | 9階 / 南西 | バルコニー面積 | - |
| 水道 / ガス | ガス【都市】 | ||
| 設備 | バス・トイレ別、オートロック、追い焚き、システムキッチン、エレベーター、温水洗浄便座、バルコニー、フローリング、コンロ:ガス、CATV、シャワー、給湯、洗濯機:室内 | ||
| 当社物件ID | 10558801 | ||
建物の情報
| 建物名 | グランドハイツ北長野 | ||
|---|---|---|---|
| 所在地 | 長野県長野市吉田4丁目 | ||
| 交通 | しなの鉄道北しなの 北長野駅 徒歩10分 | ||
| 階数 | 9階建 | 総戸数 | 96戸 |
| 築年月 | 1996年04月 / 築30年 | エレベーター | あり |
| 駐車場 | 空有 5,000円/月 | バイク置き場 | - |
| 駐輪場 | あり | 管理人/管理会社 | - |
| 建物種別 | マンション | 建物構造 | RC(鉄筋コンクリート) |
この部屋の取扱い不動産会社
| 会社名 | アパマンショップ古牧店 | ||
|---|---|---|---|
| 所在地 | 長野県長野市平林1丁目 41−12 | 交通 | 長野電鉄長野線桐原から徒歩18分 |
| 営業時間 | 10:00〜18:00 | 定休日 | - |
| 免許番号 | 長野県知事(11)2555 | 取引態様 | 仲介 |
| 不動産会社管理番号 | 64750852 | 当社管理番号 | 4 |
| 所属団体 | (公社)長野県宅地建物取引業協会 | ||
| 公正取引協議会 | (公社) 首都圏不動産公正取引協議会加盟 | ||
| 取扱い物件情報 | 物件詳細へ | ||
※各種情報と現状に差異がある場合は、現状優先となります。問い合わせをすることで、より詳しい条件、情報を確認する事ができます。
提供:アパマンショップ古牧店
この物件が気になったら掲載期限まであと12日
グランドハイツ北長野に条件(家賃・エリア)が近い物件一覧
| 写真 | 家賃 管理費等 | 敷金 礼金 | 間取り 専有面積 | 築年数 | 最寄り駅 所在地 | キープ | 詳細 |
|---|---|---|---|---|---|---|---|
アパート トリシア横町ウエスト(1LDK/2階) | |||||||
![]() | 8.65万円 5,500円 | なし 8万円 | 1LDK 42.93m2 | 築1年 | 北陸新幹線 上田駅 徒歩14分 しなの鉄道 上田駅 徒歩14分 上田電鉄別所線 上田駅 徒歩14分 長野県上田市中央 | 詳細を見る | |
アパート カンティーナ(1LDK/2階) | |||||||
![]() | 6.4万円 5,000円 | 6.4万円 6.4万円 | 1LDK 45.89m2 | 築9年 | しなの鉄道 上田駅 徒歩26分 上田電鉄別所線 上田駅 徒歩26分 長野県上田市中央西 | 詳細を見る | |
アパート プランヴェール早苗町(1LDK/1階) | |||||||
![]() | 6.3万円 4,500円 | 6.3万円 6.3万円 | 1LDK 42.23m2 | 築9年 | 長野電鉄長野線 市役所前駅(長野) 徒歩9分 JR信越本線 長野駅(JR・しなの) 徒歩18分 長野電鉄長野線 長野駅(JR・しなの) 徒歩18分 長野県長野市早苗町 | 詳細を見る | |
アパート メゾン マルベリィ(2LDK/2階) | |||||||
![]() | 7.05万円 4,400円 | なし 7.05万円 | 2LDK 63.03m2 | 築1年 | 長野電鉄長野線 信州中野駅 徒歩14分 長野電鉄長野線 延徳駅 徒歩20分 長野電鉄長野線 中野松川駅 徒歩25分 長野県中野市大字中野 | 詳細を見る | |
アパート フレグランスモア綱島S棟(3LDK/1階) | |||||||
![]() | 6.5万円 2,000円 | 6.5万円 なし | 3LDK 66.9m2 | 築34年 | 信越本線 川中島駅 徒歩50分 長野県長野市青木島町綱島 | 詳細を見る | |
アパート トリシア居町(1LDK/1階) | |||||||
![]() | 7.5万円 5,000円 | なし 15万円 | 1LDK 32.78m2 | 築1年 | 長野電鉄長野線 市役所前駅(長野) 徒歩10分 長野電鉄長野線 権堂駅 徒歩16分 JR信越本線 長野駅(JR・しなの) 徒歩17分 長野県長野市居町 | 詳細を見る | |
アパート おとめ座スピカ(1K/2階) | |||||||
![]() | 6.5万円 3,000円 | 6.5万円 6.5万円 | 1K 31.12m2 | 築11年 | 長野電鉄長野線 善光寺下駅 徒歩5分 長野県長野市 | 詳細を見る | |
アパート AVANZARⅡ(2LDK/2階) | |||||||
![]() | 9.4万円 5,500円 | なし 9.4万円 | 2LDK 59.58m2 | 築2年 | 信越本線 篠ノ井駅 徒歩19分 長野県長野市川中島町原 | 詳細を見る | |






/105x80-f1-q70-wp1)


