賃貸マンション
フジスカイ幸町の賃貸物件情報(1K/2階)
| 家賃 | 管理費等 | 敷金 | 礼金 | 間取り | 専有面積 |
|---|---|---|---|---|---|
| 5.3万円 | 3,000円 | 5.3万円 | 5.3万円 | 1K | 23.76m2 |
入居決定でお祝い金最大100,000円
Point
室内設備はエアコン・フローリングなどが揃っているので、快適に過ごしやすいお部屋になります。
提供:イオンハウジングイオン茅ヶ崎中央店(株)ユーミーらいふ不動産(SUUMO経由)

詳細情報 フジスカイ幸町
物件紹介
フジスカイ幸町はJR東海道本線茅ケ崎駅から徒歩5分にあり、駅近で通勤通学に便利なマンションです。
このお部屋は2階以上に位置しているので、通行人や周囲の住人からの視線が気になりにくく、防犯面でも安心です。
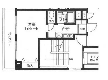
人気の南向き・フローリングのお部屋。角部屋でもあるため、周囲の居住者の生活音も気になりにくい場所です。キッチンはシステムキッチン仕様になっていますので、お料理好きの方にもぴったり。また、バス・トイレは別で、のんびりお風呂タイムも楽しめるでしょう。
通信設備面では、インターネット接続が可能です。また、CATVにも対応しているので、おうち時間も充実するでしょう(別途工事、契約料が必要な場合あり)。
建物にはエレベーターがついているので、重い荷物があっても安心。
コンビニまで徒歩2分の場所にあり、日用品や食料品のお買い物にも便利です。
このお部屋は2階以上に位置しているので、通行人や周囲の住人からの視線が気になりにくく、防犯面でも安心です。
人気の南向き・フローリングのお部屋。角部屋でもあるため、周囲の居住者の生活音も気になりにくい場所です。キッチンはシステムキッチン仕様になっていますので、お料理好きの方にもぴったり。また、バス・トイレは別で、のんびりお風呂タイムも楽しめるでしょう。
通信設備面では、インターネット接続が可能です。また、CATVにも対応しているので、おうち時間も充実するでしょう(別途工事、契約料が必要な場合あり)。
建物にはエレベーターがついているので、重い荷物があっても安心。
コンビニまで徒歩2分の場所にあり、日用品や食料品のお買い物にも便利です。
お金・契約の情報
※「-」と表示されているものは、実際は料金が発生するものもございます。詳細はお問い合わせください。
| 家賃 | 5.3万円 | 管理費・共益費 | 3,000円 |
|---|---|---|---|
| 敷金 | 5.3万円 | 礼金 | 5.3万円 |
| 入居決定でお祝い金最大100,000円 | |||
| 保証金 | - | 償却・敷引 | - |
| 住宅保険料 | 1円 | 更新料 | - |
| 保証会社利用 | - | 保証会社名 | - |
| 保証会社費用 | - | 保証会社備考 | - |
| 契約形態 | - | 契約期間 | 2年 |
| 入居・引渡期間 | 相談 | 現況 | - |
| 入居可能条件 | ペット不可 | ||
| 契約備考 | 保証会社利用必須 初回保証料:総賃料の50%〜 その他設備/条件:室内洗濯機置き場、シューズボックス | ||
部屋の情報
| 間取り | 1K | 専有面積 | 23.76m2 |
|---|---|---|---|
| 間取り詳細 | 洋室(6帖)、K(2.5帖) | ||
| 所在階 / 向き | 2階 / - | バルコニー面積 | - |
| 水道 / ガス | 水道【公営】、ガス【都市】 | ||
| 設備 | バス・トイレ別、エアコン、エレベーター、角部屋、バルコニー、フローリング、コンロ:電気、シャワー、給湯、1口コンロ、タイル張り | ||
| 当社物件ID | 24455725 | ||
建物の情報
| 建物名 | フジスカイ幸町 | ||
|---|---|---|---|
| 所在地 | 神奈川県茅ヶ崎市幸町 | ||
| 交通 | 東海道本線 茅ケ崎駅 徒歩6分 相模線 茅ケ崎駅 徒歩6分 | ||
| 階数 | 5階建 | 総戸数 | - |
| 築年月 | 2002年05月 / 築24年 | エレベーター | あり |
| 駐車場 | なし | バイク置き場 | - |
| 駐輪場 | - | 管理人/管理会社 | - |
| 周辺環境 | コンビニ 徒歩2分(90m) 販売店 徒歩3分(170m) その他 ドラッグストア その他 公園 その他 銀行 その他 * | ||
| 建物種別 | マンション | 建物構造 | 鉄骨造 |
この部屋の取扱い不動産会社
| 会社名 | ハウスコム西神奈川株式会社 平塚店 | ||
|---|---|---|---|
| 所在地 | 神奈川県平塚市2-211階 | 交通 | - |
| 営業時間 | 10:00~18:00 | 定休日 | 水曜定休 |
| 免許番号 | 神奈川県知事(1)第31770号 | 取引態様 | 仲介 |
| 不動産会社管理番号 | HC2-823636-204-0018 | 当社管理番号 | 468 |
| 所属団体 | 、 | ||
| 取扱い物件情報 | 物件詳細へ | ||
※各種情報と現状に差異がある場合は、現状優先となります。問い合わせをすることで、より詳しい条件、情報を確認する事ができます。
提供:ハウスコム西神奈川株式会社 平塚店
この物件が気になったら掲載期限まであと4日
フジスカイ幸町に条件(家賃・エリア)が近い物件一覧
| 写真 | 家賃 管理費等 | 敷金 礼金 | 間取り 専有面積 | 築年数 | 最寄り駅 所在地 | キープ | 詳細 |
|---|---|---|---|---|---|---|---|
アパート 平塚市桃浜町PJ(1K/1階) | |||||||
![]() | 7.5万円 3,000円 | なし なし | 1K 26.49m2 | 新築 | JR東海道本線 平塚駅 徒歩7分 神奈川県平塚市桃浜町 | 詳細を見る | |
アパート ヤマフジハイツ D(1K/1階) | |||||||
![]() | 3.6万円 なし | 3.6万円 3.6万円 | 1K 19.87m2 | 築34年 | 小田急電鉄江ノ島線 六会日大前駅 徒歩5分 神奈川県藤沢市亀井野2丁目 | 詳細を見る | |
アパート シャルムハイツ(1K/1階) | |||||||
![]() | 5.1万円 2,000円 | なし なし | 1K 24.46m2 | 築18年 | 神奈川県平塚市万田2丁目 | 詳細を見る | |
マンション リーフ8(1K/5階) | |||||||
![]() | 6.3万円 5,000円 | なし なし | 1K 26.33m2 | 築19年 | JR東海道本線 平塚駅 徒歩5分 JR東海道本線 大磯駅 徒歩49分 神奈川県平塚市紅谷町 | 詳細を見る | |
マンション レオパレスグリーンプラザ湘南(1K/3階) | |||||||
![]() | 7.7万円 5,000円 | なし 7.7万円 | 1K 19.87m2 | 築18年 | 小田急電鉄江ノ島線 長後駅 徒歩7分 神奈川県藤沢市高倉 | 詳細を見る | |
マンション 大貫ビル(ワンルーム/4階) | |||||||
![]() | 7万円 4,000円 | なし なし | ワンルーム 29.61m2 | 築35年 | JR東海道本線 平塚駅 徒歩5分 神奈川県平塚市宝町 | 詳細を見る | |
アパート 第3広田モンドハイツ(2DK/1階) | |||||||
![]() | 5.7万円 なし | 11.4万円 5.7万円 | 2DK 34.78m2 | 築41年 | 小田急電鉄江ノ島線 湘南台駅 徒歩13分 小田急電鉄江ノ島線 長後駅 徒歩14分 神奈川県藤沢市下土棚 | 詳細を見る | |
マンション ポライトリー(1K/4階) | |||||||
![]() | 7.8万円 4,100円 | なし 7.8万円 | 1K 27.68m2 | 築5年 | 小田急江ノ島線 長後駅 徒歩9分 相鉄いずみ野線 いずみ中央駅 徒歩25分 神奈川県藤沢市高倉 | 詳細を見る | |








