賃貸マンション
エスティメゾン中野富士見町の賃貸物件情報(2LDK/3階)
| 家賃 | 管理費等 | 敷金 | 礼金 | 間取り | 専有面積 |
|---|---|---|---|---|---|
| 24.5万円 | 1.5万円 | 24.5万円 | 24.5万円 | 2LDK | 53.96m2 |
入居決定でお祝い金最大100,000円
- 保証金
- -
- 償却・敷引
- -
- 築年数
- 築17年
- 所在階
- 3階
- 向き
- 南
Point
セキュリティ面は、TVインターホン・オートロックなど充実しているので、防犯対策もばっちりです。
提供:アパマンショップ吉祥寺店

詳細情報 エスティメゾン中野富士見町
物件紹介
エスティメゾン中野富士見町は東京地下鉄方南支線中野富士見町駅から徒歩4分にあり、駅近で通勤通学に便利なマンションです。
このお部屋は2階以上に位置しているので、通行人や周囲の住人からの視線が気になりにくく、防犯面でも安心。建物のエントランスはオートロックがついており、インターホンにはTVモニタもついているため、相手の顔を確認してから来客対応することができます。
人気の南向きのお部屋。また、フローリングなのでお掃除もラクラク。キッチンはシステムキッチン仕様になっていますので、お料理好きの方にもぴったり。バス・トイレは別なので、のんびりお風呂タイムも楽しめるでしょう。また、雨の日でも浴室乾燥機を使えば、お洗濯も問題ありません。
通信設備面では、インターネット接続が可能です。また、CSアンテナがありCATVにも対応しているので、おうち時間も充実するでしょう(別途工事、契約料が必要な場合あり)。
建物にはエレベーターがついているので、重い荷物があっても安心。共用部には宅配ボックスが設定されているので、不在の時にも荷物を受け取ることができます。また、ペット飼育の相談ができますので、あなたの大切な家族の一員も快適に暮らせるか、ぜひ確認してみてください。
コンビニまで徒歩15分の場所にあり、日用品や食料品のお買い物にも便利です。
このお部屋は2階以上に位置しているので、通行人や周囲の住人からの視線が気になりにくく、防犯面でも安心。建物のエントランスはオートロックがついており、インターホンにはTVモニタもついているため、相手の顔を確認してから来客対応することができます。
人気の南向きのお部屋。また、フローリングなのでお掃除もラクラク。キッチンはシステムキッチン仕様になっていますので、お料理好きの方にもぴったり。バス・トイレは別なので、のんびりお風呂タイムも楽しめるでしょう。また、雨の日でも浴室乾燥機を使えば、お洗濯も問題ありません。
通信設備面では、インターネット接続が可能です。また、CSアンテナがありCATVにも対応しているので、おうち時間も充実するでしょう(別途工事、契約料が必要な場合あり)。
建物にはエレベーターがついているので、重い荷物があっても安心。共用部には宅配ボックスが設定されているので、不在の時にも荷物を受け取ることができます。また、ペット飼育の相談ができますので、あなたの大切な家族の一員も快適に暮らせるか、ぜひ確認してみてください。
コンビニまで徒歩15分の場所にあり、日用品や食料品のお買い物にも便利です。
お金・契約の情報
※「-」と表示されているものは、実際は料金が発生するものもございます。詳細はお問い合わせください。
| 家賃 | 24.5万円 | 管理費・共益費 | 1.5万円 |
|---|---|---|---|
| 敷金 | 24.5万円 | 礼金 | 24.5万円 |
| 入居決定でお祝い金最大100,000円 | |||
| 保証金 | - | 償却・敷引 | - |
| 住宅保険料 | 1円 | 更新料 | - |
| その他費用 | くらしのサポートサービス:1.65万円 | ||
| 保証会社利用 | 必須 | 保証会社名 | - |
| 保証会社費用 | - | 保証会社備考 | 賃料総額の20%。月額総賃料1% |
| 契約形態 | - | 契約期間 | 2年 |
| 入居・引渡期間 | 即時 | 現況 | - |
| 入居可能条件 | 事務所不可、2人入居可、ペット相談 | ||
| 契約備考 | 鍵交換費用:33000 その他設備/条件:室内洗濯機置き場、独立洗面台、防犯カメラ、クローゼット、シューズボックス | ||
部屋の情報
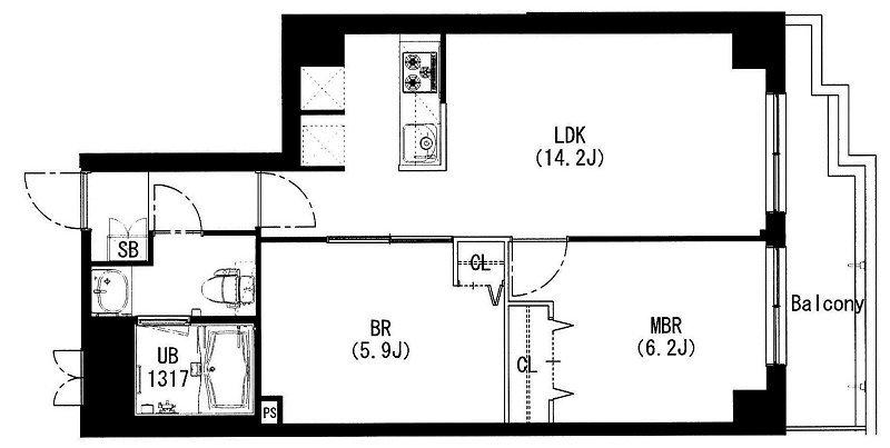
| 間取り | 2LDK | 専有面積 | 53.96m2 |
|---|---|---|---|
| 間取り詳細 | LDK(14.2帖)、洋室(6.2帖)、洋室(5.9帖) | ||
| 所在階 / 向き | 3階 / 南 | バルコニー面積 | - |
| 水道 / ガス | 水道【公営】、ガス【都市】 | ||
| 設備 | バス・トイレ別、オートロック、テレビドアホン、宅配ボックス、浴室乾燥機、追い焚き、システムキッチン、カウンターキッチン、エアコン、エレベーター、温水洗浄便座、バルコニー、フローリング、3口コンロ、コンロ:ガス、CSアンテナ、シャワー、タイル張り | ||
| 当社物件ID | 101146386 | ||
建物の情報
| 建物名 | エスティメゾン中野富士見町 | ||
|---|---|---|---|
| 所在地 | 東京都中野区弥生町5丁目 | ||
| 交通 | 東京地下鉄方南支線 中野富士見町駅 徒歩7分 東京地下鉄方南支線 中野新橋駅 徒歩11分 | ||
| 階数 | 3階建 | 総戸数 | - |
| 築年月 | 2009年03月 / 築17年 | エレベーター | あり |
| 駐車場 | - | バイク置き場 | - |
| 駐輪場 | - | 管理人/管理会社 | - |
| 周辺環境 | コンビニ 徒歩15分(1149m) 販売店 徒歩11分(838m) その他 ドラッグストア その他 公園 その他 銀行 その他 * | ||
| 建物種別 | マンション | 建物構造 | RC(鉄筋コンクリート) |
この部屋の取扱い不動産会社
| 会社名 | ハウスコム東東京株式会社 池袋西口店 | ||
|---|---|---|---|
| 所在地 | 東京都豊島区19-6松長ビル2階 | 交通 | - |
| 営業時間 | 10:00~18:00 | 定休日 | - |
| 免許番号 | 東京都知事(1)第108283号 | 取引態様 | 仲介 |
| 不動産会社管理番号 | HC2-819640-308-0113 | 当社管理番号 | 468 |
| 所属団体 | 、 | ||
| 取扱い物件情報 | 物件詳細へ | ||
※各種情報と現状に差異がある場合は、現状優先となります。問い合わせをすることで、より詳しい条件、情報を確認する事ができます。
提供:ハウスコム東東京株式会社 池袋西口店
この物件が気になったら掲載期限まであと4日
エスティメゾン中野富士見町に条件(家賃・エリア)が近い物件一覧
| 写真 | 家賃 管理費等 | 敷金 礼金 | 間取り 専有面積 | 築年数 | 最寄り駅 所在地 | キープ | 詳細 |
|---|---|---|---|---|---|---|---|
マンション オープンブルーム渋谷本町(1LDK/3階) | |||||||
![]() | 18.1万円 1.1万円 | なし 18.1万円 | 1LDK 29.14m2 | 築2年 | 都営大江戸線 西新宿五丁目駅 徒歩10分 京王新線 初台駅 徒歩14分 東京都渋谷区本町 | 詳細を見る | |
マンション オープンレジデンシア巣鴨ユニーブル(2LDK/6階) | |||||||
![]() | 23万円 1万円 | 23万円 23万円 | 2LDK 54.18m2 | 築9年 | JR山手線 巣鴨駅 徒歩3分 都営三田線 巣鴨駅 徒歩3分 都電荒川線 庚申塚駅 徒歩10分 東京都豊島区巣鴨 | 詳細を見る | |
アパート ソレイユ(2LDK/2階) | |||||||
![]() | 18万円 6,500円 | なし 36万円 | 2LDK 57.23m2 | 築3年 | 西武新宿線 野方駅 徒歩6分 西武新宿線 沼袋駅 徒歩12分 東京都中野区野方 | 詳細を見る | |
アパート レオネクスト成宗(1LDK/2階) | |||||||
![]() | 15.8万円 5,500円 | なし 15.8万円 | 1LDK 52.87m2 | 築17年 | 東京メトロ丸ノ内線 南阿佐ケ谷駅 徒歩11分 JR中央線 荻窪駅 徒歩22分 東京メトロ丸ノ内線 荻窪駅 徒歩22分 東京都杉並区成田東 | 詳細を見る | |
マンション アジールコート松濤(1LDK/9階) | |||||||
![]() | 22.3万円 1.2万円 | 22.3万円 なし | 1LDK 33.74m2 | 築1年 | 京王井の頭線 神泉駅 徒歩7分 JR山手線 渋谷駅 徒歩12分 京王井の頭線 駒場東大前駅 徒歩13分 東京都渋谷区松濤 | 詳細を見る | |
マンション 杉並区和泉2丁目メゾン(2LDK/1階) | |||||||
![]() | 24.2万円 8,000円 | 24.2万円 24.2万円 | 2LDK 54.17m2 | 新築 | 京王線 明大前駅 徒歩8分 京王井の頭線 永福町駅 徒歩12分 京王線 下高井戸駅 徒歩15分 東京都杉並区和泉 | 詳細を見る | |
マンション ウエストパークタワー池袋(1DK/13階) | |||||||
![]() | 16.4万円 1万円 | 32.8万円 なし | 1DK 35.65m2 | 築20年 | JR山手線 池袋駅 徒歩2分 JR山手線 目白駅 徒歩13分 東京メトロ有楽町線 要町駅 徒歩13分 東京都豊島区西池袋 | 詳細を見る | |
マンション 恵比寿レジデンス参番館(1LDK/9階) | |||||||
![]() | 23.7万円 1.5万円 | 23.7万円 なし | 1LDK 37.16m2 | 新築 | JR山手線 恵比寿駅 徒歩4分 東急東横線 代官山駅 徒歩10分 東急東横線 中目黒駅 徒歩18分 東京都渋谷区東 | 詳細を見る | |








